++ Jugendstil-Juwel im Wiener Altbau + Nur noch 3-Neubau Wohnungen und 3 Altbauwohnungen + U4 Unter Sankt Veit +
-
Erstbezug
Beschreibung
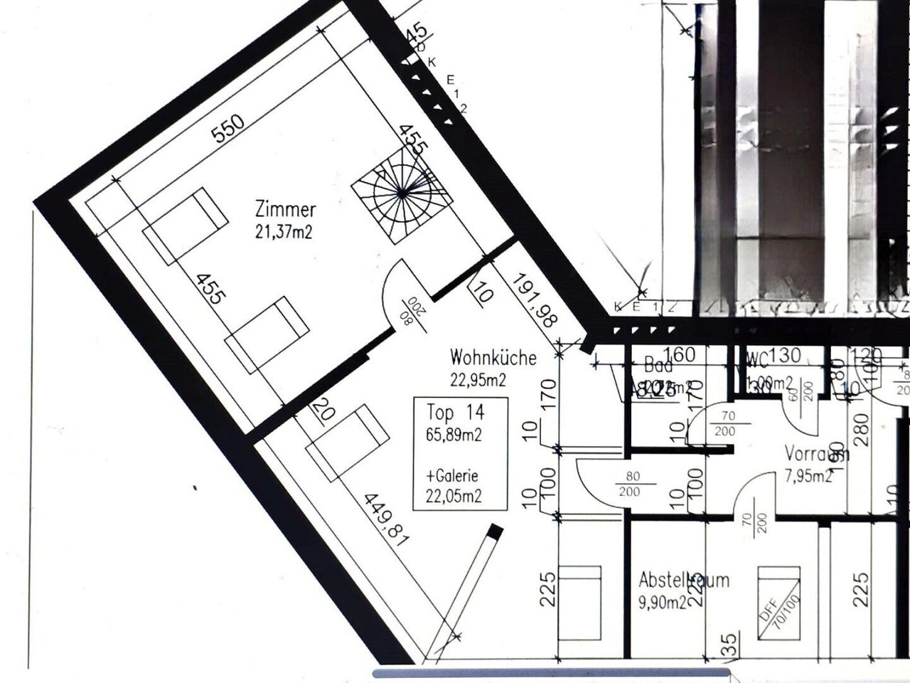
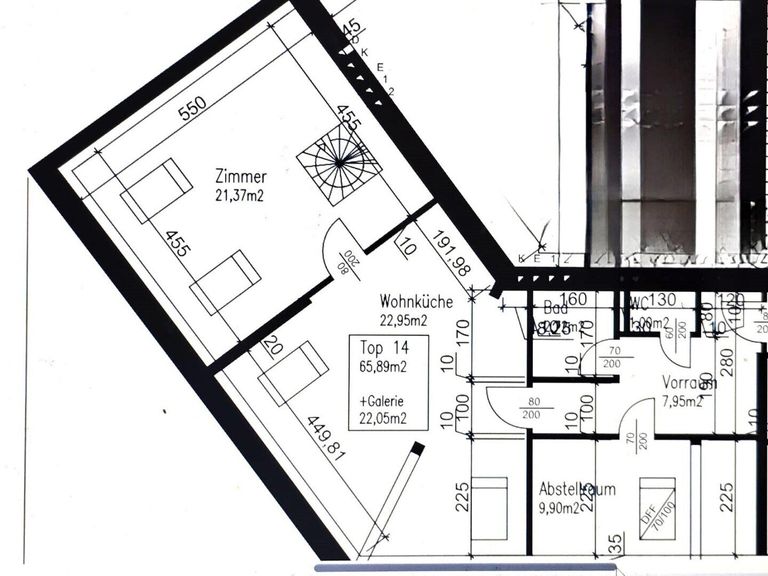
Zum Verkauf gelangt diese (Erstbezug) im Jahre 1982 ausgebaute Dachgeschoßwohnung in einem klassischen Altbaustilhaus - Jugendstil - Die helle 2-Zimmer Dschgeschoßwohnung besticht durch Ihre wundervollen und großzügigen Räume. Die lichtdurchflutete Dachgeschoßwohnung ist folgendermaßen aufgeteilt: + Vorraum 07,95m², mit Eichenparkett ausgestattet + Wohn-Essküche 44,42m², mit Eichenparkett ausgestattet leicht möglich ein wunderschönes 2.Schlafzimmer zu bekommen Der Wohnessbereich kann leicht geteilt werden, um einen zusätzlichen separaten Raum zu erhalten. Weiters befindet sich in diesem eine schöne Wendeltreppe, welche zur 22,05m² großen Galerie führt. + Schlafzimmer 09.90m², mit Eichenparkett ausgestattet + Bad 02.72m², mit Wanne ausgestattet, verfliest + Toilette 01.00m², mit Handwaschbecken, verfliest _______________________________________________________...
Zum Verkauf gelangt diese (Erstbezug) im Jahre 1982 ausgebaute Dachgeschoßwohnung in einem klassischen Altbaustilhaus - Jugendstil -
Die helle 2-Zimmer Dschgeschoßwohnung besticht durch Ihre wundervollen und großzügigen Räume.
Die lichtdurchflutete Dachgeschoßwohnung ist folgendermaßen aufgeteilt:
+ Vorraum 07,95m², mit Eichenparkett ausgestattet
+ Wohn-Essküche 44,42m², mit Eichenparkett ausgestattet leicht möglich ein wunderschönes 2.Schlafzimmer zu bekommen
Der Wohnessbereich kann leicht geteilt werden, um einen zusätzlichen separaten Raum zu erhalten. Weiters
befindet sich in diesem eine schöne Wendeltreppe, welche zur 22,05m² großen Galerie führt.
+ Schlafzimmer 09.90m², mit Eichenparkett ausgestattet
+ Bad 02.72m², mit Wanne ausgestattet, verfliest
+ Toilette 01.00m², mit Handwaschbecken, verfliest
_______________________________________________________
gesamt 65,69m²
+Galerie 22,05m²
------------------------------------------------------------------------------------------------
Gesamtfläche 87,74m²
AUSSTATTUNG:
+ Eichenparkett
+ Lift
+ 2fach verglaste Fenster
+ Vaillant Gastherme
+ Grohe Armaturen
+ Waschmaschinenanschluss
In diesem sanierten Haus befinden sich im Dachgeschoß noch 2 weitere Bj1982 Wohnungen mit gleicher Ausstattung
TOP 13 ---------------- 67,00m² (Galerie 12m²)
TOP 12---------------- 42,m²
Sowie Altbauwohnungen
TOP 05 ----------------- 120,57 m²plus Veranda 4,1m² VERKAUFT
TOP 06 -----------------116 m ²plus Veranda 5,33m²
TOP 07 ----------------- 124,62m², Verkauft
TOP 10 ----------------- 123,85m², Veranda/Loggia 4,1m²
TOP 11 ----------------- 60,31m²
LAGE/INFRASTUKTUR:
In unmittelbarer Umgebung finden Sie alles nötige für den täglichen Gebrauch (Geschäfte, Post, Banken, Schule, etc...)
Die U-Bahn Station U4 Unter Sankt Veit ist in 100 Meter fußläufig erreichbar.
Ebenfalls ganz in der Nähe und zu fuß erreichbar befindet sich Stationen der Buslinie 47A sowie Straßenbahnlinien 49 und 52,
welche auch für eine gute Verkehrsanbindung ins Wiener Zentrum sorgen.
ENERGIEEFFIZIENZ
HWB 125,02 kwh/m²a
Klasse: D
fGEE 2,33
Klasse: D
gültig bis 21.04.2029
Kaufpreis: € 435.000,- geldlasten- und bestandsfrei
Gesetzliche Nebenkosten:
3,5% Grunderwerbsteuer
1,1% Grundbucheintragungsgebühr
3,0% Maklerhonorar + 20% USt.
? Vertragserrichtungskosten + 20% USt..
Anbieter: gb-direkt Finanzberatung & Immobilienhandel GmbH
Ansprechpartner: Frau Benes
Mobil: 0699 11 60 87 06
Email: office@direktfinanzimmo.at
Detaillierte Unterlagen (Exposé) senden wir gerne auf Anfrage zu.
BITTE BEACHTEN SIE, DASS WIR NUR ANFRAGEN MIT VOLLSTÄNDIGER ANGABE DER ANSCHRIFT UND ANGABEN ZUR PERSON
(NAME, ADRESSE, TELEFON, EMAIL) BEARBEITEN KÖNNEN.
Wir weisen darauf hin, dass alle Angaben, auf die sich das vorliegende Exposé/Inserat beziehen, sich ausschließlich auf Daten und Angaben von Verkäufern/Vermietern bzw. sachkundigen Dritten stützen und wir für diese keine, wie auch immer geartete, Haftung übernehmen. Desweiteren geben wir bekannt, dass zwischen den Verkäufern/Vermietern und gb-direkt Finanzberatung & Immobilienhandel GmbH, kein familiäres oder wirtschaftliches Naheverhältnis oder gesellschaftliche Verflechtung besteht. Irrtümer und Änderungen sowie Zwischenverkauf vorbehalten.
Hinweis gemäß Energieausweisvorlagegesetz:
Ein Energieausweis wurde vom Eigentümer bzw. Verkäufer, nach unserer Aufklärung über die ab 1.12.2012 geltende generelle Vorlagepflicht, sowie Aufforderung zu seiner Erstellung noch nicht vorgelegt. Daher gilt zumindest eine dem Alter und der Art des Gebäudes entsprechende Gesamtenergieeffizienz als vereinbart. Wir übernehmen keinerlei Gewähr oder Haftung für die tatsächliche Energieeffizienz der angebotenen Immobilie.
Der Vermittler ist als Doppelmakler tätig.
Infrastruktur / Entfernungen
Gesundheit
Arzt <500m
Apotheke <500m
Klinik <1.000m
Krankenhaus <1.000m
Kinder & Schulen
Schule <500m
Kindergarten <500m
Universität <2.000m
Höhere Schule <3.000m
Nahversorgung
Supermarkt <500m
Bäckerei <500m
Einkaufszentrum <3.000m
Sonstige
Geldautomat <1.000m
Bank <1.000m
Post <500m
Polizei <1.000m
Verkehr
Bus <500m
U-Bahn <500m
Straßenbahn <500m
Bahnhof <500m
Autobahnanschluss <4.500m
Angaben Entfernung Luftlinie / Quelle: OpenStreetMap
Objektdaten
Ausstattung
- Etage Heizung
- Befeuerung mit Gas
- Personen Fahrstuhl
Zustand
- Zustand
- ERSTBEZUG
- HWB
- 125.02 kWh/m² pro Jahr
- Klasse HWB
- D
- fGEE
- 2.33
- Klasse fGEE
- D
Flächen
- Anzahl der Zimmer
- 3
- Anzahl der Badezimmer
- 1
- Anzahl der sep. WCs
- 1
- Wohnfläche
- 88m²
Kosten
- Kaufpreis Brutto
- € 435.000,00
- Betriebskosten
- € 138,71
Wohnungen zum Kaufen in Österreich
- Bezirk Gemeindebezirk Ottakring
- Bezirk Gemeindebezirk Ottakring
- Bezirk Gemeindebezirk Ottakring
- Bezirk Gemeindebezirk Penzing
- Bezirk Gemeindebezirk Penzing
- Bezirk Gemeindebezirk Penzing
- Bezirk Gemeindebezirk Hernals
- Bezirk Gemeindebezirk Hernals
- Bezirk Gemeindebezirk Hernals
- Bezirk Gemeindebezirk Währing
Wohnungen zum Kaufen in Österreich
Wohnungen zum Kaufen in Österreich
Andere Besucher suchen nach...
- Grundstücke kaufen in 3400 Weidlingbach
- Wohnungen kaufen in 4663 Laakirchen
- Häuser in 7471 Rechnitz
- Wohnungen in 2410 Hainburg an der Donau
- Häuser kaufen in 2432 Schwadorf
- Wohnungen kaufen in 3002 Purkersdorf
- Häuser in 3150 Wilhelmsburg
- Wohnungen kaufen in 3470 Engelmannsbrunn
- Grundstücke kaufen im Bezirk Mattersburg
- Grundstücke kaufen im Bezirk Gmunden