Mehrfamilienhaus mit großem Garten
Beschreibung
Drei getrennte Wohneinheiten mit großem Garten
In Reutte gelangt dieses tolle Mehrfamilienhaus mit großem Garten, geräumigem Keller und zahlreichen AAPs in den Verkauf.
Das Bestandsgebäude wurde im Jahr 1999 durch einen Anbau erweitert. So wurden drei eigenständige Wohneinheiten geschaffen.
Das Gebäude wurde immer gut gepflegt und laufend instandgehalten. Das Dach wurde saniert und gedämmt. Die Holzfenster sind 2-fach verglast.
Im Erdgeschoß befinden sich eine 2-Zimmer-Wohnung und eine 4-Zimmer-Wohnung. Das gesamte Obergeschoß ist eine 7-Zimmer-Wohnung. Jede Wohnung verfügt über einen Zugang zum Garten.
Der Zustand der Wohnungen bzw. des gesamten Mehrfamilienhauses ist gut.
Aktuell sind alle drei Wohnungen noch...
Drei getrennte Wohneinheiten mit großem Garten
In Reutte gelangt dieses tolle Mehrfamilienhaus mit großem Garten, geräumigem Keller und zahlreichen AAPs in den Verkauf.
Das Bestandsgebäude wurde im Jahr 1999 durch einen Anbau erweitert. So wurden drei eigenständige Wohneinheiten geschaffen.
Das Gebäude wurde immer gut gepflegt und laufend instandgehalten. Das Dach wurde saniert und gedämmt. Die Holzfenster sind 2-fach verglast.
Im Erdgeschoß befinden sich eine 2-Zimmer-Wohnung und eine 4-Zimmer-Wohnung. Das gesamte Obergeschoß ist eine 7-Zimmer-Wohnung. Jede Wohnung verfügt über einen Zugang zum Garten.
Der Zustand der Wohnungen bzw. des gesamten Mehrfamilienhauses ist gut.
Aktuell sind alle drei Wohnungen noch (befristet) vermietet. Die monatlichen Mieteinnahmen betragen insgesamt € 2.390,00 (davon entfallen € 650,00 auf Wohnung 1, € 790,00 auf Wohnung 2 und € 950,00 auf Wohnung 3).
3 Garagenplätze und 5 Abstellplätze im Freien gehören ebenfalls zum Kaufgegenstand.
ECKDATEN:
Objekttyp: Liegenschaft
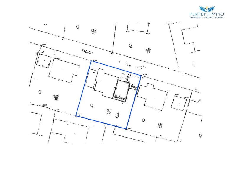
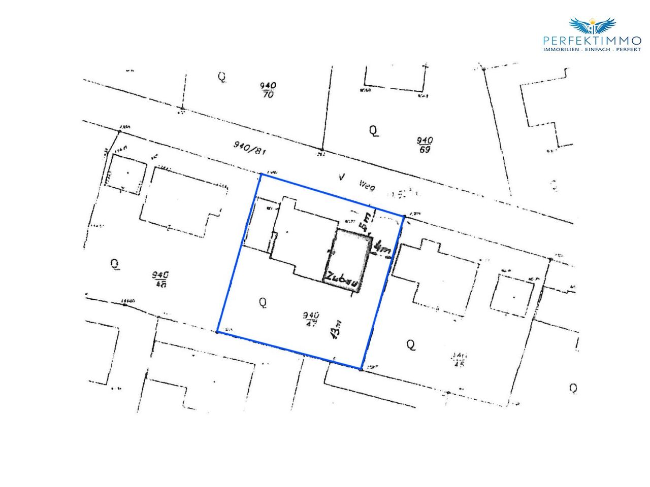
GSt-Nr.: 940/47
Grundstücksfläche: 710 m²
Bebauung: Mehrfamilienhaus
Baujahr (Zubau): 1999
Zustand: Gut
Wohnnutzfläche: ca. 251 m²
Wohneinheiten: 3
Garten: 481 m²
Garagen: 3
Abstellplätze: 5
Heizung: Radiatoren
Befeuerung: Gas
Heizwärmebedarf: in Arbeit
Verfügbarkeit: ab sofort
Kaufpreis: auf Anfrage
Dieses Objekt ist auf jeden Fall eine Besichtigung wert!
Haben wir Ihr Interesse geweckt? Dann melden und überzeugen Sie sich mittels eines Besichtigungstermins.
Wir sind gerne jederzeit für Sie da!
Ihre Ansprechpartnerin
FRAU BARBARA LECHLEITNER
NEBENKOSTEN
Maklerhonorar: 3,6 % inkl. USt
Vertragserrichtungskosten: ca. 1,5 % zzgl. USt und Barauslagen
Grunderwerbsteuer: 3,5 %
Grundbuchseintragung: 1,1 % Unter Umständen könnte hier ab dem 01.04.2024 eine Befreiung gemäß dem Beschluss der Österreichischen Bundesregierung für die Eintragung des Eigentumsrechts sowie die Eintragung einer eventuellen Pfandurkunde möglich sein.
Alle Angaben nach bestem Wissen. Irrtum und Zwischenverkauf vorbehalten. Dieses Exposé ist eine Vorinformation, als Rechtsgrundlage gilt alleine der abgeschlossene Kaufvertrag. §15 der Maklerverordnung gilt als vereinbart.
Weitere tolle Angebote finden Sie unter:
https://www.perfektimmo.at/angebote
Hinweis gemäß Energieausweisvorlagegesetz: Ein Energieausweis wurde vom Eigentümer bzw. Verkäufer, nach unserer Aufklärung über die generell geltende Vorlagepflicht, sowie Aufforderung zu seiner Erstellung noch nicht vorgelegt. Daher gilt zumindest eine dem Alter und der Art des Gebäudes entsprechende Gesamtenergieeffizienz als vereinbart. Wir übernehmen keinerlei Gewähr oder Haftung für die tatsächliche Energieeffizienz der angebotenen Immobilie.
Infrastruktur / Entfernungen
Gesundheit
Arzt <1.500m
Apotheke <2.000m
Krankenhaus <4.000m
Kinder & Schulen
Schule <500m
Kindergarten <1.000m
Höhere Schule <7.500m
Nahversorgung
Bäckerei <1.000m
Supermarkt <1.500m
Einkaufszentrum <8.000m
Sonstige
Bank <500m
Geldautomat <2.000m
Post <2.000m
Polizei <2.000m
Verkehr
Bus <500m
Bahnhof <1.500m
Autobahnanschluss <500m
Flughafen <5.000m
Angaben Entfernung Luftlinie / Quelle: OpenStreetMap
Objektdaten
Ausstattung
- Gartennutzung
- Befeuerung mit Gas
- Satteldach
- Massiv Bauweise
Zustand
- Zustand
- GEPFLEGT
Flächen
- Anzahl der Zimmer
- 13
- Anzahl der Balkone
- 1
- Anzahl der Terrassen
- 2
- Stellplätze
- 5
- Wohnfläche
- 251m²
- Grundstücksfläche
- 710m²
- Gartenfläche
- 481m²
- Kellerfläche
- 71m²
- Terrassenfläche
- 2m²
Kosten
Andere Besucher suchen nach...
- Grundstücke kaufen in 3400 Weidlingbach
- Wohnungen kaufen in 4663 Laakirchen
- Häuser in 7471 Rechnitz
- Wohnungen in 2410 Hainburg an der Donau
- Häuser kaufen in 2432 Schwadorf
- Wohnungen kaufen in 3002 Purkersdorf
- Häuser in 3150 Wilhelmsburg
- Wohnungen kaufen in 3470 Engelmannsbrunn
- Grundstücke kaufen im Bezirk Mattersburg
- Grundstücke kaufen im Bezirk Gmunden