provisionsfreie Erstbezugs Eigentumswohnungen von 61 - 107 qm Größen mit Balkon oder Eigengarten
-
Erstbezug
-
2026
-
Herbst 2026
Beschreibung
Top-Ausstattung und durchdachtes Wohnkonzept
Dieses Neubauprojekt bietet moderne Wohnungen mit Fokus auf Komfort, Nachhaltigkeit und Gemeinschaft:
- Es entstehen insgesamt 16 Eigentumswohnungen im Erstbezug mit Eigengarten oder Balkon bzw. Dachterrasse - schlüsselfertige Ausführung & provisionsfrei!
- Größen: ca. 61 m2 (1 Schlafzimmer) und ca. 107 m2 Wohnfläche (3 Schlafzimmer)
- in direkter Ortslage in Kematen/Ybbs - Top Lage
- geplanter Baustart: 2026, geplante Fertigstellung: 2027
- Massivbauweise in Baumeisterqualität
- schlüsselfertige Übergabe (inkl. Sanitäreinrichtungen) jedoch ohne Möblierung
- Niedrigenergiehaus - Ansuchen um NÖ-Wohnbauförderung möglich!
- Frühkäuferbonus von -5% bereits beim Kaufpreis berücksichtigt! Bereits jetzt Wunschwohnung sichern!
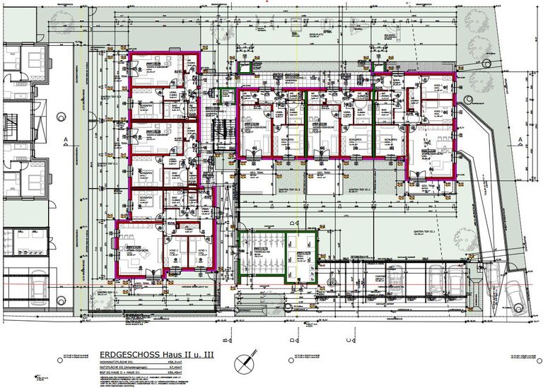
TOP 3 (BT III): komfortables Wohnen: kompakte Gartenwohnung mit ca....
Top-Ausstattung und durchdachtes Wohnkonzept
Dieses Neubauprojekt bietet moderne Wohnungen mit Fokus auf Komfort, Nachhaltigkeit und Gemeinschaft:
- Es entstehen insgesamt 16 Eigentumswohnungen im Erstbezug mit Eigengarten oder Balkon bzw. Dachterrasse - schlüsselfertige Ausführung & provisionsfrei!
- Größen: ca. 61 m2 (1 Schlafzimmer) und ca. 107 m2 Wohnfläche (3 Schlafzimmer)
- in direkter Ortslage in Kematen/Ybbs - Top Lage
- geplanter Baustart: 2026, geplante Fertigstellung: 2027
- Massivbauweise in Baumeisterqualität
- schlüsselfertige Übergabe (inkl. Sanitäreinrichtungen) jedoch ohne Möblierung
- Niedrigenergiehaus - Ansuchen um NÖ-Wohnbauförderung möglich!
- Frühkäuferbonus von -5% bereits beim Kaufpreis berücksichtigt! Bereits jetzt Wunschwohnung sichern!
TOP 3 (BT III): komfortables Wohnen: kompakte Gartenwohnung mit ca. 53 m² Eigengarten und ca. 19 m² gedeckter Terrasse!
Diese kompakte 61,5 m² große Wohnung bietet Ihnen die perfekte Kombination aus modernem Wohnkomfort und einem privaten Gartenfeeling als "Wohlfühloase".
Genießen Sie die folgenden Highlights:
- Kompakte Ausführung mit 1 Schlafzimmer: ideal für Singels & Paare
- ca. 53 m² Eigengarten mit ca. 19 m² gedeckter Terrasse: Ihr privater Outdoor-Bereich zum relaxen, sonnen & grillen
- Moderne Ausstattung: hochwertige Materialien und zeitgemäße Technik erfüllen höchste Ansprüche
- Fußbodenheizung: sorgt dabei für ein angenehmes Raumklima und wohlige Wärme auch in den Wintermonaten
- schlüsselfertige Übergabe
- Massivbauweise in Baumeisterqualität
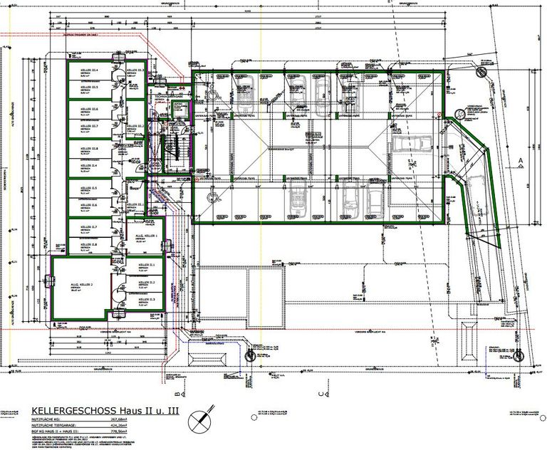
- inkludiert 1 eigenes Kellerabteil, 1 Tiefgaragenstellplatz
Zögern Sie nicht und sichern Sie sich bereits jetzt diese Wohneinheit zum Erstbezug & provisionsfrei!
Niedrigenergiehaus: Möglichkeit des Antrages zur NÖ-Wohnbauförderung; Gerne bieten wir Ihnen ebenfalls Finanzierungsmöglichkeiten an.
Detaillierte Infos im Exposé!
Frühkäuferbonus von -5% Abzug bereits beim Kaufpreis berücksichtigt. Bereits jetzt sichern!
Satz-und Druckfehler vorbehalten! Alle Angaben ohne Gewähr.
Der Vermittler ist als Doppelmakler tätig.
Infrastruktur / Entfernungen
Gesundheit
Arzt <5.000m
Apotheke <500m
Klinik <8.000m
Krankenhaus <8.000m
Kinder & Schulen
Schule <500m
Kindergarten <500m
Höhere Schule <8.000m
Nahversorgung
Supermarkt <500m
Bäckerei <500m
Einkaufszentrum <7.000m
Sonstige
Bank <500m
Geldautomat <500m
Post <500m
Polizei <500m
Verkehr
Bus <500m
Bahnhof <1.000m
Flughafen <8.500m
Angaben Entfernung Luftlinie / Quelle: OpenStreetMap
Objektdaten
Ausstattung
- Gartennutzung
- Fahrradraum
- Offene Küche
- Fußbodenheizung
- Personen Fahrstuhl
- Flachdach
- Massiv Bauweise
- Schlüsselfertig mit Keller
- Niedrigenergie
Zustand
- Zustand
- ERSTBEZUG
- Baujahr
- 2026
- Alter
- NEUBAU
- HWB
- 30.5 kWh/m² pro Jahr
- Klasse HWB
- B
- fGEE
- 0.58
- Klasse fGEE
- A+
Flächen
- Anzahl der Badezimmer
- 1
- Anzahl der sep. WCs
- 1
- Anzahl der Terrassen
- 1
- Stellplätze
- 1
- Wohnfläche
- 62m²
- Gartenfläche
- 53m²
- Kellerfläche
- 7m²
- Terrassenfläche
- 1m²
Kosten
- Kaufpreis Brutto
- € 258.495,00
- enth. Umsatzsteuer
- € 43.082,50
- Betriebskosten
- € 117,00
- Heizkosten
- € 27,00
- Sonstige Kosten
- € 29,00
Verwaltung
- Verfügbar ab
- Herbst 2026
Wohnungen zum Kaufen im Umkreis von Kematen an der Ybbs
Wohnungen zum Kaufen im Umkreis von Kematen an der Ybbs
Wohnungen zum Kaufen in Österreich
Andere Besucher suchen nach...
- Grundstücke kaufen in 3400 Weidlingbach
- Wohnungen kaufen in 4663 Laakirchen
- Häuser in 7471 Rechnitz
- Wohnungen in 2410 Hainburg an der Donau
- Häuser kaufen in 2432 Schwadorf
- Wohnungen kaufen in 3002 Purkersdorf
- Häuser in 3150 Wilhelmsburg
- Wohnungen kaufen in 3470 Engelmannsbrunn
- Grundstücke kaufen im Bezirk Mattersburg
- Grundstücke kaufen im Bezirk Gmunden