WELS Terminal +++OÖ.ZENTRALRAUM+++DIREKT AN DER A25
€ 3.527.277
4600 Wels
Beschreibung
WELS ERMÖGLICHT - BETRIEBLICHES WACHSTUM FÜR EXPANSIVE UNTERNEHMEN AM TOP-WIRTSCHAFTS-UND BILDUNGSSTANDORT WELS !!! Gewerbegrundstück - in WELS Terminal Top-Lagequalität für IHREN neuen STANDORT: direkt an A25 Knoten A25 Wels Ost und Knoten ÖBB-Terminal in unmittelbarer Nähe - Linz-Wels (A25) - Linz - Passau (A8) bzw. Anbindung an A1 via Knoten Voralpenkreuz (Wien-Salzburg-Graz-Passau) In der Nähe des Terminals Wels steht dieses ebene, gewidmete Gewerbegrundstück ab sofort für Ihr Unternehmen bereit! Widmung MB - Eingeschränktes gemischtes Baugebiet - Gesamtgröße 15.650 m² (bereinigtes Nettobauland) Widmung MBm - Gesamtgröße 316 m² Straßenbegleitgrün - Größe 1.915 m² Trenngrün - Größe 1.192 m² Grünland - Größe...
WELS ERMÖGLICHT - BETRIEBLICHES WACHSTUM FÜR EXPANSIVE UNTERNEHMEN AM TOP-WIRTSCHAFTS-UND BILDUNGSSTANDORT WELS !!!
Gewerbegrundstück - in WELS Terminal
Top-Lagequalität für IHREN neuen STANDORT:
direkt an A25
Knoten A25 Wels Ost und Knoten ÖBB-Terminal in unmittelbarer Nähe - Linz-Wels (A25) - Linz - Passau (A8) bzw. Anbindung an A1 via Knoten Voralpenkreuz (Wien-Salzburg-Graz-Passau)
In der Nähe des Terminals Wels steht dieses ebene, gewidmete Gewerbegrundstück ab sofort für Ihr Unternehmen bereit!
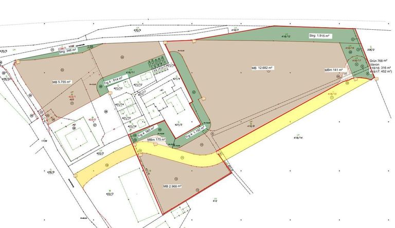
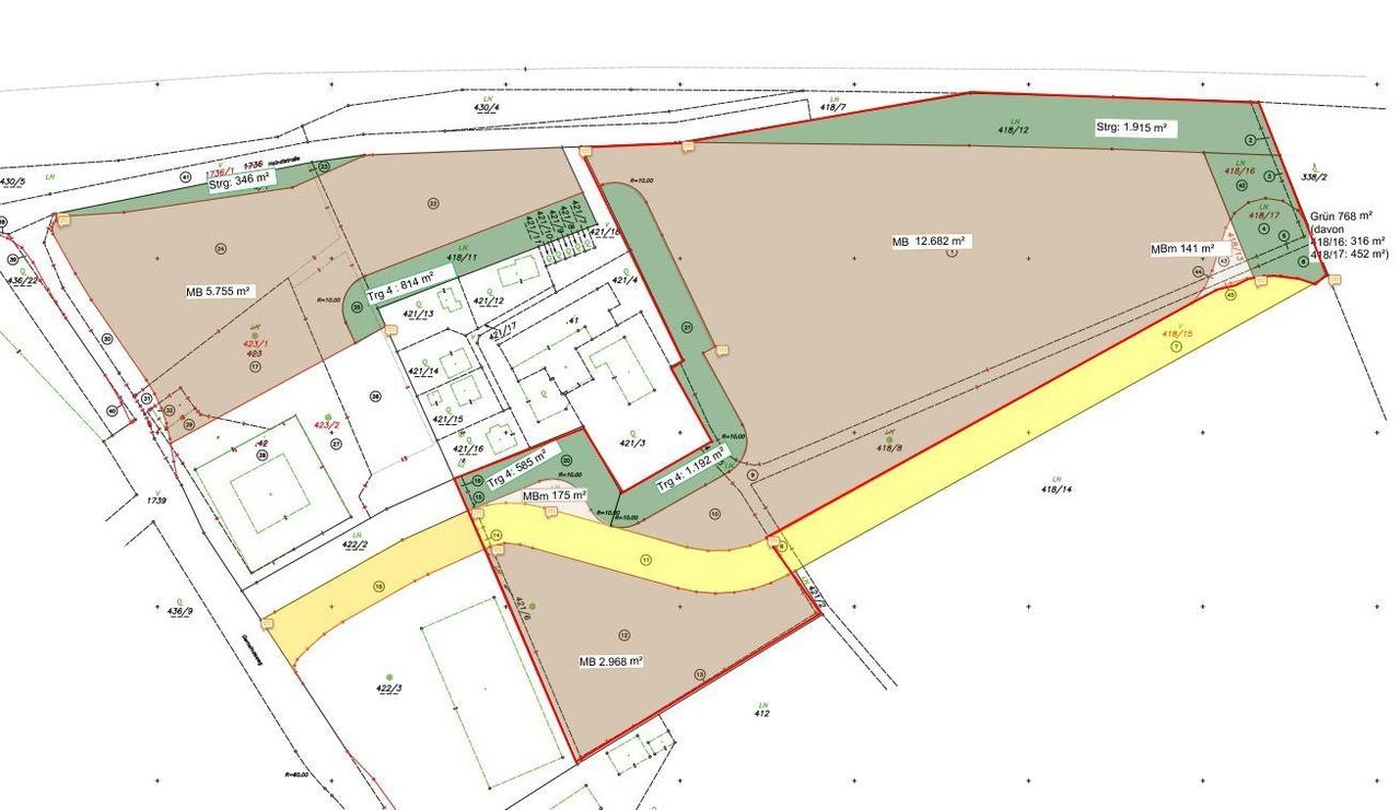
Widmung MB - Eingeschränktes gemischtes Baugebiet - Gesamtgröße 15.650 m² (bereinigtes Nettobauland)
Widmung MBm - Gesamtgröße 316 m²
Straßenbegleitgrün - Größe 1.915 m²
Trenngrün - Größe 1.192 m²
Grünland - Größe 768 m²
Das Straßenbegleitgrün, der Trenngrünstreifen und das Grünland sind Bestandteil der Immobilie und somit ebenfalls zu erwerben.
Attraktiver Mischpreis von € 172,69/m²
Zuzüglich Index (Dezember 25 bis Vertragsabschluss)
Direkt vom Eigentümer WBA (Wels Betriebsansiedelungs-GmbH)
Wir weisen darauf hin, dass die von der WBA bereits entrichteten Kanal- und Wasseraufschließungsbeiträge vom Käufer zu übernehmen sind. Bei Errichtung des Kanal- und Wasseranschlusses am Grundstück werden bisher geleistete Aufschließungsbeiträge abgezogen.
Für dieses Grundstück betragen diese Beiträge:
Wasseraufschließungsbeitrag: € 763,20/Jahr
Kanalaufschließungsbeitrag: € 1.547,60/Jahr
Direkt vom Eigentümer WBA (Wels Betriebsansiedelungs-GmbH)
Sonstiges:
Zu Ihrer Sicherheit sind die städtebaulichen Rahmenbedingungen für die Nutzung des Grundstückes in einem zu übernehmenden Raumordnungsvertrag definiert. Die technischen, sozialen und grünen Infrastrukturbeiträge der Stadt Wels sind bereits entrichtet und im Kaufpreis inkludiert.
Mitarbeiternachweis nach der Inbetriebnahme
Die Zufahrtsstraßen bereits hergestellt und befahrbar.
Bauvorhaben im Bereich von 40 m zur A25 sind mit der Asfinag noch abzustimmen.
Seitens Stadt Wels wurde kein Bebauungsplan verordnet, somit gilt die OÖ Bauordnung.
Wir freuen uns über Ihr Interesse und stehen für weitere Informationen, Auskünfte und Termine gerne jederzeit unter der Telefonnummer 07242/67722-0 bzw. per Email unter wba@wels.at zur Verfügung.
Gewerbegrundstück - in WELS Terminal
Top-Lagequalität für IHREN neuen STANDORT:
direkt an A25
Knoten A25 Wels Ost und Knoten ÖBB-Terminal in unmittelbarer Nähe - Linz-Wels (A25) - Linz - Passau (A8) bzw. Anbindung an A1 via Knoten Voralpenkreuz (Wien-Salzburg-Graz-Passau)
In der Nähe des Terminals Wels steht dieses ebene, gewidmete Gewerbegrundstück ab sofort für Ihr Unternehmen bereit!
Widmung MB - Eingeschränktes gemischtes Baugebiet - Gesamtgröße 15.650 m² (bereinigtes Nettobauland)
Widmung MBm - Gesamtgröße 316 m²
Straßenbegleitgrün - Größe 1.915 m²
Trenngrün - Größe 1.192 m²
Grünland - Größe 768 m²
Das Straßenbegleitgrün, der Trenngrünstreifen und das Grünland sind Bestandteil der Immobilie und somit ebenfalls zu erwerben.
Attraktiver Mischpreis von € 172,69/m²
Zuzüglich Index (Dezember 25 bis Vertragsabschluss)
Direkt vom Eigentümer WBA (Wels Betriebsansiedelungs-GmbH)
Wir weisen darauf hin, dass die von der WBA bereits entrichteten Kanal- und Wasseraufschließungsbeiträge vom Käufer zu übernehmen sind. Bei Errichtung des Kanal- und Wasseranschlusses am Grundstück werden bisher geleistete Aufschließungsbeiträge abgezogen.
Für dieses Grundstück betragen diese Beiträge:
Wasseraufschließungsbeitrag: € 763,20/Jahr
Kanalaufschließungsbeitrag: € 1.547,60/Jahr
Direkt vom Eigentümer WBA (Wels Betriebsansiedelungs-GmbH)
Sonstiges:
Zu Ihrer Sicherheit sind die städtebaulichen Rahmenbedingungen für die Nutzung des Grundstückes in einem zu übernehmenden Raumordnungsvertrag definiert. Die technischen, sozialen und grünen Infrastrukturbeiträge der Stadt Wels sind bereits entrichtet und im Kaufpreis inkludiert.
Mitarbeiternachweis nach der Inbetriebnahme
Die Zufahrtsstraßen bereits hergestellt und befahrbar.
Bauvorhaben im Bereich von 40 m zur A25 sind mit der Asfinag noch abzustimmen.
Seitens Stadt Wels wurde kein Bebauungsplan verordnet, somit gilt die OÖ Bauordnung.
Wir freuen uns über Ihr Interesse und stehen für weitere Informationen, Auskünfte und Termine gerne jederzeit unter der Telefonnummer 07242/67722-0 bzw. per Email unter wba@wels.at zur Verfügung.
Objektdaten
Ausstattung
- Bus
- Eisenbahn
- Stadtrand
Dokumente / Links
Flächen
- Grundstücksfläche
- 20.426m²
Kosten
- Kaufpreis
- € 3.527.277,00
Grundstücke zum Kaufen in Österreich
Grundstücke zum Kaufen in Österreich
Grundstücke zum Kaufen in Österreich
Andere Besucher suchen nach...
- Grundstücke kaufen in 3400 Weidlingbach
- Wohnungen kaufen in 4663 Laakirchen
- Häuser in 7471 Rechnitz
- Wohnungen in 2410 Hainburg an der Donau
- Häuser kaufen in 2432 Schwadorf
- Wohnungen kaufen in 3002 Purkersdorf
- Häuser in 3150 Wilhelmsburg
- Wohnungen kaufen in 3470 Engelmannsbrunn
- Grundstücke kaufen im Bezirk Mattersburg
- Grundstücke kaufen im Bezirk Gmunden