Anno 1691 - Gleichweit! Die gelungene Symbiose - Bestehendes zu Modernisieren!
-
Erstbezug
-
sofort
Beschreibung
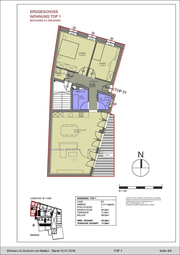
Nahe dem Zentrum wurde mit Bedacht auf "Altes" ein modernes Wohnhaus errichtet, in dem sich im Erdgeschoss diese Wohnung mit dem einzigartigen, 90m² messenden "Weinkeller" befindet.
Barrierefrei über den Hauseingang erreicht man die ca. 86m² große, perfekt aufgeteilte Wohnung, die im revitalisiertem Altbaubereich mit 2 Zimmer, einem Wohnraum mit offen gehaltener, komplett eingerichteter Küche, einem Bad mit Wanne, einem separaten WC mit Handwaschbecken und einen Abstellraum aufzuwarten hat. Vom Wohnraum aus ist die ca. 11m² messende Innenhofterrasse (wird noch fertig gestellt) zu betreten.
Über den Vorraum führt eine Stiege in das Kellergeschoss, das sowohl mit Licht als auch mit Lüftung...
Nahe dem Zentrum wurde mit Bedacht auf "Altes" ein modernes Wohnhaus errichtet, in dem sich im Erdgeschoss diese Wohnung mit dem einzigartigen, 90m² messenden "Weinkeller" befindet.
Barrierefrei über den Hauseingang erreicht man die ca. 86m² große, perfekt aufgeteilte Wohnung, die im revitalisiertem Altbaubereich mit 2 Zimmer, einem Wohnraum mit offen gehaltener, komplett eingerichteter Küche, einem Bad mit Wanne, einem separaten WC mit Handwaschbecken und einen Abstellraum aufzuwarten hat. Vom Wohnraum aus ist die ca. 11m² messende Innenhofterrasse (wird noch fertig gestellt) zu betreten.
Über den Vorraum führt eine Stiege in das Kellergeschoss, das sowohl mit Licht als auch mit Lüftung ausgestattet ist. Bietet sich hervorragend als Weinkeller an!
Die Ausstattung umfaßt hochwertige Laminatböden, Fliesen in den sanitären Anlagen, 3-fach-Isolierglasfenster mit elektrischen Außenrollos, Kabelanschluß, Gegensprechanlage. Die Beheizung und Warmwasseraufbereitung erfolgt über eine Gasetagenheizung, die Wärmeabgabe über Fußbodenheizung.
Ein Garagenplatz ist um 15.000,00 EUR dazu zu kaufen.
Dieses Objekt wird zur Zeit als Büro genutzt und kann sowohl als Praxis/Büro/Ordination Verwendung finden!
Die Kaiserstadt Baden hat eine Vielfalt an Kulturellem, Kulinarischem und Naturerlebnissen zu bieten, in der die Wohn- und Lebensqualität einem hohen Standard gerecht wird!
Instandhaltungsrücklage: 91,05 EUR
Betriebskosten (netto): 184,69 EUR
Umsatzsteuer (gesamt): 18,47 EUR
Betriebskosten (gesamt): 294,21 EUR
Kaufpreis: 355.000,00 EUR (inkl. Garagenplatz)
Provision: 12.780,00 EUR inkl. 20% USt.
Grunderwerbssteuer: 3,5%
Grundbuchseintragungsgebühr: 1,1%
Kosten der Vertragserrichtung und grundbücherlichen Durchführung nach Vereinbarung im Rahmen der Tarifordnung des jeweiligen Urkundenerrichters sowie Barauslagen für Beglaubigung und Stempelgebühren.
Der Vermittler ist als Doppelmakler tätig.
Objektdaten
Ausstattung
- Kabel/SAT-TV
- Barrierefrei
- Gäste-WC
- Bad mit Badewanne
- Offene Küche
- Fliesenboden
- Laminatboden
- Etage Heizung
- Befeuerung mit Gas
- Ausrichtung Balkon/Terrasse - Ost
Zustand
- Zustand
- ERSTBEZUG
- Baujahr
- 1691
- Alter
- ALTBAU
- HWB
- 47.88 kWh/m² pro Jahr
- Klasse HWB
- B
- fGEE
- 0.67
- Klasse fGEE
- B
Flächen
- Anzahl der Zimmer
- 3
- Anzahl der Badezimmer
- 1
- Anzahl der sep. WCs
- 1
- Anzahl der Terrassen
- 1
- Wohnfläche
- 86m²
- Nutzfläche
- 97m²
- Kellerfläche
- 90m²
- Terrassenfläche
- 1m²
Kosten
- Kaufpreis Brutto
- € 340.000,00
- Betriebskosten
- € 184,96
- Sonstige Kosten
- € 91,05
Verwaltung
- Verfügbar ab
- sofort
Wohnungen zum Kaufen im Umkreis von Baden
Wohnungen zum Kaufen im Umkreis von Baden
Wohnungen zum Kaufen in Österreich
Andere Besucher suchen nach...
- Grundstücke kaufen in 3400 Weidlingbach
- Wohnungen kaufen in 4663 Laakirchen
- Häuser in 7471 Rechnitz
- Wohnungen in 2410 Hainburg an der Donau
- Häuser kaufen in 2432 Schwadorf
- Wohnungen kaufen in 3002 Purkersdorf
- Häuser in 3150 Wilhelmsburg
- Wohnungen kaufen in 3470 Engelmannsbrunn
- Grundstücke kaufen im Bezirk Mattersburg
- Grundstücke kaufen im Bezirk Gmunden