Großzügige Dachgeschosswohnung mit Stil & Weitblick in Baden
Beschreibung
Willkommen über den Dächern von Baden! In einer der schönsten Wohnlagen Badens präsentiert sich diese außergewöhnliche Dachgeschosswohnung – ein Zuhause, das mit Weitläufigkeit, Helligkeit und einem beeindruckenden Fernblick begeistert.
Fakten im Überblick
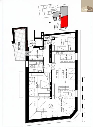
- Wohnfläche: ca. 175,93 m²
- Terrasse: ca. 17,22 m²
- Zimmer: derzeit 3, optional auf 4 erweiterbar
- Etage: 2. Liftstock (Dachgeschoss)
- Böden: Parkett & Fliesen
- Heizung: Gas-Etagenheizung / Fußbodenheizung
- Klimaanlage: 2x Wohnzimmer & 1x Schlafzimmer
- Außenrollläden: elektrisch, mit Regensensor
- Kellerabteil
- Garten: optional anmietbar
- Wohnhaus: 2016 generalsaniert
- Kfz-Stellplatz: im Kaufpreis enthalten
Raum, Licht und Atmosphäre
Schon beim Betreten dieser Wohnung fühlt man sich sofort wohl. Das...
Willkommen über den Dächern von Baden!
In einer der schönsten Wohnlagen Badens präsentiert sich diese außergewöhnliche Dachgeschosswohnung –
ein Zuhause, das mit Weitläufigkeit, Helligkeit und einem beeindruckenden Fernblick begeistert.
Fakten im Überblick
- Wohnfläche: ca. 175,93 m²
- Terrasse: ca. 17,22 m²
- Zimmer: derzeit 3, optional auf 4 erweiterbar
- Etage: 2. Liftstock (Dachgeschoss)
- Böden: Parkett & Fliesen
- Heizung: Gas-Etagenheizung / Fußbodenheizung
- Klimaanlage: 2x Wohnzimmer & 1x Schlafzimmer
- Außenrollläden: elektrisch, mit Regensensor
- Kellerabteil
- Garten: optional anmietbar
- Wohnhaus: 2016 generalsaniert
- Kfz-Stellplatz: im Kaufpreis enthalten
Raum, Licht und Atmosphäre
Schon beim Betreten dieser Wohnung fühlt man sich sofort wohl. Das einladende Vorzimmer bietet großzügig Platz für die Garderobe – ein stilvoller Empfangsbereich, der den ersten positiven Eindruck unterstreicht.
Das rund 100 m² große Wohn- und Esszimmer mit offener Küche bildet das Herzstück – ein Raum, der durch Licht, Offenheit und Atmosphäre besticht.
Die offene Küche lädt zum gemeinsamen Kochen, Genießen und Verweilen ein – und lässt das Herz jedes Hobbykochs höherschlagen.
Das Schlafzimmer überzeugt durch seine ruhige Atmosphäre und bietet Platz für ein großes Doppelbett sowie durchdachte Stauraumlösungen.
Ein weiteres Zimmer präsentiert sich hell, freundlich und vielseitig nutzbar.
Das Badezimmer vereint Design und Funktionalität auf elegante Weise. Eine großzügige Badewanne lädt zum Entspannen ein, während die separate Dusche modernen Komfort bietet.
Der integrierte Waschmaschinenanschluss sorgt zusätzlich für Alltagstauglichkeit.
Ein separates WC mit Handwaschbecken bietet weiteren Komfort.
Die Terrasse ist ein Ort des Rückzugs – ideal, um bei einem Glas Wein den Blick über die Dächer Badens zu genießen oder in geselliger Runde den Abend ausklingen zu lassen.
Der Fernblick verleiht diesem Platz eine besondere Leichtigkeit und macht ihn zum Highlight der Wohnung.
Zur Wohnung gehören ein großzügiges Kellerabteil sowie ein Kfz-Stellplatz, der im Kaufpreis bereits enthalten ist.
Zusätzlich besteht die Möglichkeit, einen Garten anzumieten – ideal für alle, die neben der Terrasse auch ein Stück Grün genießen möchten.
Das Gebäude wurde im Jahr 2016 generalsaniert und präsentiert sich in einem modernen Erscheinungsbild.
Lage & Infrastruktur
Die Friedrichstraße zählt zu den begehrtesten Wohnadressen Badens – zentral, ruhig und mit erstklassiger Infrastruktur.
In wenigen Minuten erreichen Sie die Innenstadt mit Boutiquen, Restaurants und Cafés, den Kurpark, das Casino, den Doblhoffpark, das Thermalstrandbad sowie diverse Schulen und Kindergärten.
Auch die Schnellbahnstation Baden mit direkter Verbindung nach Wien ist in kurzer Zeit erreichbar.
Überzeugen Sie sich selbst von dieser außergewöhnlichen Immobilie – ein Wohntraum über den Dächern von Baden wartet auf Sie.
Unser nachhaltiger Denkansatz sieht auch die Vermeidung unnötiger Ausdrucke in Papierform vor. Daher geben Sie uns bitte Bescheid, ob Sie die Unterlagen in gedruckter Form ausgehändigt haben möchten oder ob wir sie Ihnen einfach per E-Mail zusenden sollen. Wir richten uns gerne nach Ihren Wünschen!
Infrastruktur / Entfernungen
Gesundheit
Arzt <750m
Apotheke <1.500m
Klinik <1.250m
Krankenhaus <3.000m
Kinder & Schulen
Schule <250m
Kindergarten <750m
Höhere Schule <9.000m
Universität <9.000m
Nahversorgung
Supermarkt <1.000m
Bäckerei <750m
Einkaufszentrum <6.500m
Sonstige
Bank <250m
Geldautomat <250m
Post <250m
Polizei <2.000m
Verkehr
Bus <250m
Bahnhof <1.500m
Autobahnanschluss <3.750m
Straßenbahn <1.500m
Flughafen <5.000m
Angaben Entfernung Luftlinie / Quelle: OpenStreetMap
Objektdaten
Ausstattung
- Klimatisiert
- Kabel/SAT-TV
- Fahrradraum
- Rolladen
- Bad mit Dusche
- Bad mit Badewanne
- Bad mit Fenster
- Offene Küche
- Fliesenboden
- Parkettboden
- Etage Heizung
- Fußbodenheizung
- Befeuerung mit Gas
- Personen Fahrstuhl
Zustand
- HWB
- 68.6 kWh/m² pro Jahr
- Klasse HWB
- C
- fGEE
- 1.22
Flächen
- Anzahl der Zimmer
- 3
- Anzahl der Badezimmer
- 1
- Anzahl der sep. WCs
- 1
- Anzahl der Terrassen
- 1
- Stellplätze
- 1
- Wohnfläche
- 176m²
- Terrassenfläche
- 1m²
Kosten
- Kaufpreis Brutto
- € 869.900,00
- Betriebskosten
- € 411,76
- Sonstige Kosten
- € 211,65
Wohnungen zum Kaufen im Umkreis von Baden
Wohnungen zum Kaufen im Umkreis von Baden
Wohnungen zum Kaufen in Österreich
Andere Besucher suchen nach...
- Grundstücke kaufen in 3400 Weidlingbach
- Wohnungen kaufen in 4663 Laakirchen
- Häuser in 7471 Rechnitz
- Wohnungen in 2410 Hainburg an der Donau
- Häuser kaufen in 2432 Schwadorf
- Wohnungen kaufen in 3002 Purkersdorf
- Häuser in 3150 Wilhelmsburg
- Wohnungen kaufen in 3470 Engelmannsbrunn
- Grundstücke kaufen im Bezirk Mattersburg
- Grundstücke kaufen im Bezirk Gmunden