Lib.at Logo
Startseite Makler Liste Gespeicherte Immobilien
Einloggen oder Registrieren Für Makler

Sanierungsbedürftige 3-Zimmer-Wohnung in Baden – Ihr individuelles Wohnprojekt mit großem Potenzial!

€ 315.000
€ 4.462 / m²
2500 Baden

Beschreibung

Lassen Sie Sich von unserer 360°- 3D Besichtigung überzeugen - Von der Parkbank, vom Sofa oder auch vom Bett, gemütlich über Handy, Tablett, Computer oder Ihrem Internetfähigen Fernseher.

360°- 3D Besichtigung Link:

https://my.matterport.com/show/?m=KHVF1PCw4fr

Willkommen in Ihrem zukünftigen Zuhause im charmanten Baden, Niederösterreich! Diese sanierungsbedürftige Wohnung im Erdgeschoss besticht durch ihre ideale Lage und bietet Ihnen die Möglichkeit, Ihre eigenen Wohnträume zu verwirklichen.

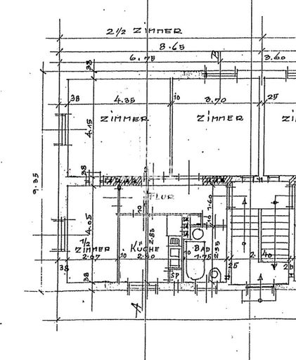
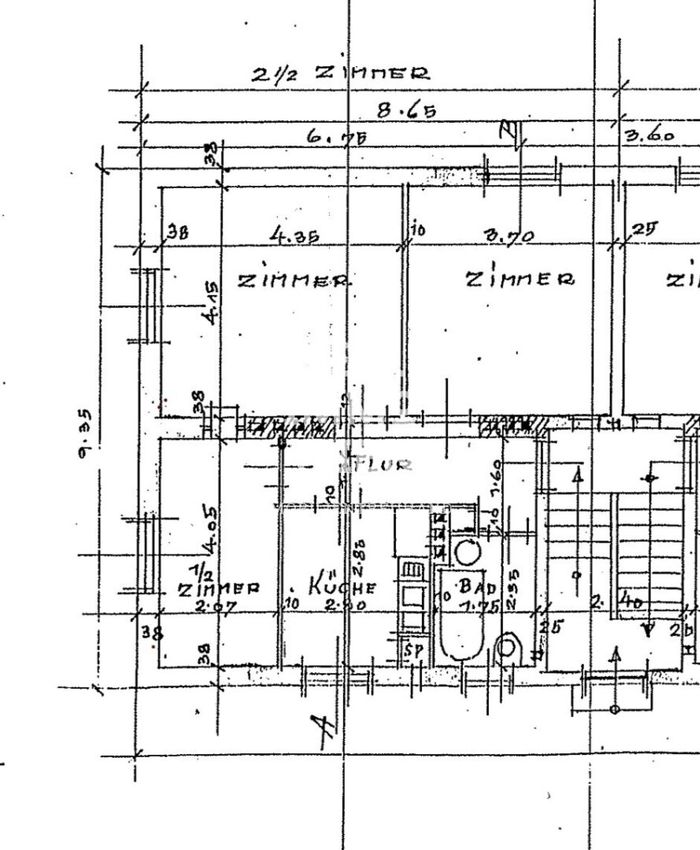
Mit einer großzügigen Fläche von 70,59 m² und drei hellen Zimmern bietet diese Immobilie ausreichend Platz für Paare, kleine Familien oder als Investitionsobjekt. Die offene Wohnküche ist der perfekte Ort, um kulinarische Köstlichkeiten zu kreieren und gesellige...

Lassen Sie Sich von unserer 360°- 3D Besichtigung überzeugen - Von der Parkbank, vom Sofa oder auch vom Bett, gemütlich über Handy, Tablett, Computer oder Ihrem Internetfähigen Fernseher.


360°- 3D Besichtigung Link:


https://my.matterport.com/show/?m=KHVF1PCw4fr


Willkommen in Ihrem zukünftigen Zuhause im charmanten Baden, Niederösterreich! Diese sanierungsbedürftige Wohnung im Erdgeschoss besticht durch ihre ideale Lage und bietet Ihnen die Möglichkeit, Ihre eigenen Wohnträume zu verwirklichen.


Mit einer großzügigen Fläche von 70,59 m² und drei hellen Zimmern bietet diese Immobilie ausreichend Platz für Paare, kleine Familien oder als Investitionsobjekt. Die offene Wohnküche ist der perfekte Ort, um kulinarische Köstlichkeiten zu kreieren und gesellige Abende mit Freunden und Familie zu verbringen.


Die Wohnung ist mit Fliesen und Parkett ausgestattet, die den Räumen eine warme und einladende Atmosphäre verleihen. Das Badezimmer mit Fenster verfügt über eine Badewanne sowie eine separate Toilette, was den Komfort für Sie und Ihre Gäste erhöht.


Ein besonderes Highlight ist die ausgezeichnete Verkehrsanbindung. Ob mit dem Bus, der Straßenbahn oder dem Zug – Sie erreichen die wichtigsten Punkte in Baden und Umgebung schnell und unkompliziert.


Die Lage dieser Wohnung könnte nicht besser sein: In unmittelbarer Nähe finden Sie alles, was Sie für den täglichen Bedarf benötigen. Ärzte, Apotheken, Schulen und Kindergärten sind fußläufig erreichbar. Auch Supermärkte und Bäckereien befinden sich in der Nähe, sodass Sie jederzeit bestens versorgt sind.


Zusätzlich bietet der Auftraggeber eine sanierungsbedürftige 2-Zimmer-Wohnung nur ein Haus weiter an – eine weitere Gelegenheit, individuellen Wohnraum nach eigenen Vorstellungen zu gestalten.


Vereinbaren Sie noch heute einen Besichtigungstermin und lassen Sie sich von diesem einzigartigen Angebot überzeugen!  


"BITTE BEACHTEN SIE, DASS WIR AUFGRUND DER NACHWEISPFLICHT GEGENÜBER DEM EIGENTÜMER NUR ANFRAGEN MIT VOLLSTÄNDIGER ANGABE DER ANSCHRIFT UND ANGABEN ZUR PERSON (NAME, TELEFON, E-MAIL) BEARBEITEN KÖNNEN."


Wir weisen darauf hin, dass zwischen dem Vermittler und dem zu vermittelnden Dritten ein familiäres oder wirtschaftliches Naheverhältnis besteht.


Der Vermittler ist als Doppelmakler tätig.


Infrastruktur / Entfernungen

Gesundheit
Arzt <500m
Apotheke <1.000m
Klinik <500m
Krankenhaus <2.500m
Kinder & Schulen
Schule <1.000m
Kindergarten <500m
Höhere Schule <9.500m
Universität <9.500m
Nahversorgung
Supermarkt <500m
Bäckerei <1.000m
Einkaufszentrum <6.000m
Sonstige
Bank <1.000m
Geldautomat <1.000m
Post <1.000m
Polizei <1.500m
Verkehr
Bus <500m
Bahnhof <1.000m
Autobahnanschluss <3.500m
Straßenbahn <1.000m
Flughafen <5.000m
Angaben Entfernung Luftlinie / Quelle: OpenStreetMap

Objektdaten

Ausstattung

  • Bad mit Badewanne
  • Bad mit Fenster
  • Offene Küche
  • Fliesenboden
  • Parkettboden
  • Etage Heizung
  • Befeuerung mit Gas

Dokumente / Links

Zustand

Zustand
SANIERUNGSBEDUERFTIG
Baujahr
1940
HWB
107.4 kWh/m² pro Jahr
Klasse HWB
D
fGEE
1.73
Klasse fGEE
D

Flächen

Anzahl der Zimmer
3
Anzahl der Badezimmer
1
Anzahl der sep. WCs
1
Wohnfläche
71m²

Kosten

Kaufpreis Brutto
€ 315.000,00