MEHRERE, SCHLÜSSELFERTIGE DACHGESCHOSS-WOHNUNGEN MIT EXZELLENTER ANBINDUNG IM TRADITIONSKURORT BAD VÖSLAU
€ 415.000
€ 4.967 / m²
2540 Bad Vöslau
-
ca. 2022
-
Frühjahr 2026
Beschreibung
MEHRERE, SCHLÜSSELFERTIGE DACHGESCHOSS-WOHNUNGEN IN UNTERSCHIEDLICHEN PREISKATEGORIEN Sehr individuell und modern gestaltete Dachwohnungen mit Lift und Terrassen, welche aktuell fertiggestellt werden und im Frühjahr 2026 bezugsfertig sein werden. Im Jahr 2022 wurden im Dachgeschoss eines Jahrhundertwende-Hauses (erbaut um 1900) insgesamt 5 großzügige Einheiten genehmigt, von denen derzeit noch 4 Varianten zum Verkauf stehen. Die Wohnungen reichen von einer praktikabel gestalteten Garconniere, bis hin zu großzügigen Maisonette Wohnungen, einladend durch großzügige offene Wohnbereiche mit hervorragendem Lichteinfall, die für ein extravagantes Wohnklima sorgen. Ein zusätzlicher Galeriebereich mit Terrassenzugang bietet sich als Ruhe- oder Homeoffice-Bereich erweiternd an. TECHNISCHE AUSSTATTUNG: *Deckenkühlung und Fußbodenheizung über eine...
MEHRERE, SCHLÜSSELFERTIGE DACHGESCHOSS-WOHNUNGEN IN UNTERSCHIEDLICHEN PREISKATEGORIEN
Sehr individuell und modern gestaltete Dachwohnungen mit Lift und Terrassen, welche aktuell fertiggestellt werden und im Frühjahr 2026 bezugsfertig sein werden. Im Jahr 2022 wurden im Dachgeschoss eines Jahrhundertwende-Hauses (erbaut um 1900) insgesamt 5 großzügige Einheiten genehmigt, von denen derzeit noch 4 Varianten zum Verkauf stehen. Die Wohnungen reichen von einer praktikabel gestalteten Garconniere, bis hin zu großzügigen Maisonette Wohnungen, einladend durch großzügige offene Wohnbereiche mit hervorragendem Lichteinfall, die für ein extravagantes Wohnklima sorgen. Ein zusätzlicher Galeriebereich mit Terrassenzugang bietet sich als Ruhe- oder Homeoffice-Bereich erweiternd an.
TECHNISCHE AUSSTATTUNG: *Deckenkühlung und Fußbodenheizung über eine effiziente Wärmepumpe betrieben. *Eingangstüre der Sicherheitsklasse WK3, mit einer komfortablen Durchgangshöhe von 210cm wie auch die Wohnraumtüren. *Österreichische Qualitätsfenster der Fa. Katzbeck in hochwertiger Holz-Alu Konstruktion mit elektrischer Außenbeschattung. Velux Dachflächenfenster ebenso elektrisch zu beschatten.
BELÄGE: (In der angebotenen schlüsselfertigen Variante) *Böden mit Klebeparkettdielen und Feinsteinzeug im gehobenen Standard *Sanitär- und Elektroausstattung durchwegs in Markenqualität. *Terrassen mit rutschfesten und frostsicheren Steinplatten belegt.
WOHNUNG 2 (Top 10; Maisonette) Wohnfläche: ca.115m²
Kaufpreis: EUR 555.000,-
UNTERE EBENE: Zugang vom Lift, Vorzimmer mit separatem WC, zentrale Diele, Abstellraum, ein 42m² Wohnbereich mit offener Küche (Anschlüsse vorbereitet), nahe dem Essbereich befindet sich ein großzügiger Außen-Pflanzentrog für Küchenkräuter, Bad mit Badewanne, Dusche, Doppelwaschbecken und WC, 3 weitere Schlafzimmer.
OBERE EBENE: Aufgang über eine Innentreppe zur geräumigen offenen Galerie mit einem kleinen Abstellraum und Zugang zur ca. 10,50m² Westterrasse, welche einem Bereich zur Begrünung bietet.
MONATLICHE KOSTEN:
BETRIEBSKOSTEN inklusive Mwst, Parkplatz und Lift: ca. EUR 212,56
REPARATUR-RÜCKLAGE: ca. EUR 122,44
GESAMT: ca. EUR 335,- (zuzüglich Energiekosten)
WOHNUNG 3 (Top 11) Wohnfläche: ca. 45,25m²
(Optionaler ca. 5,40m² Balkon mit Aufpreis möglich)
Kaufpreis: EUR 225.000,-
RAUMAUFTEILUNG: Zugang vom Lift, Vorzimmer, Badezimmer mit Dusche, Waschbecken und WC, Wohnzimmer mit integrierter Küchenzeile und vorbereiteten Anschlüssen, (optional mit Balkonzugang), 1 Schlafzimmer.
MONATLICHE KOSTEN:
BETRIEBSKOSTEN inklusive Mwst, Parkplatz und Lift: ca. EUR 83,70
REPARATUR-RÜCKLAGE: ca. EUR 48,42
GESAMT: ca. EUR 132,12
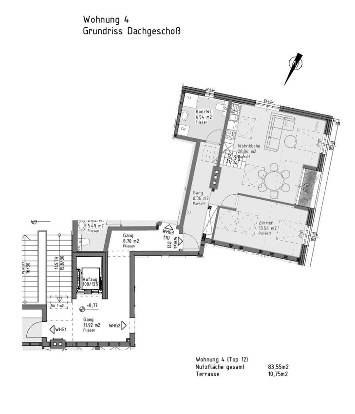
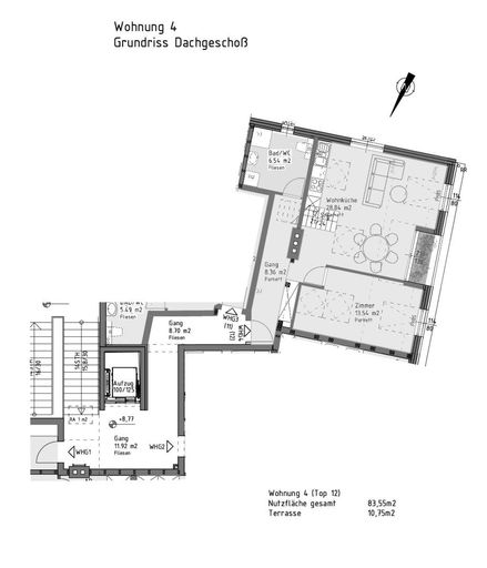
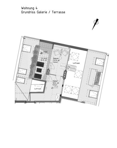
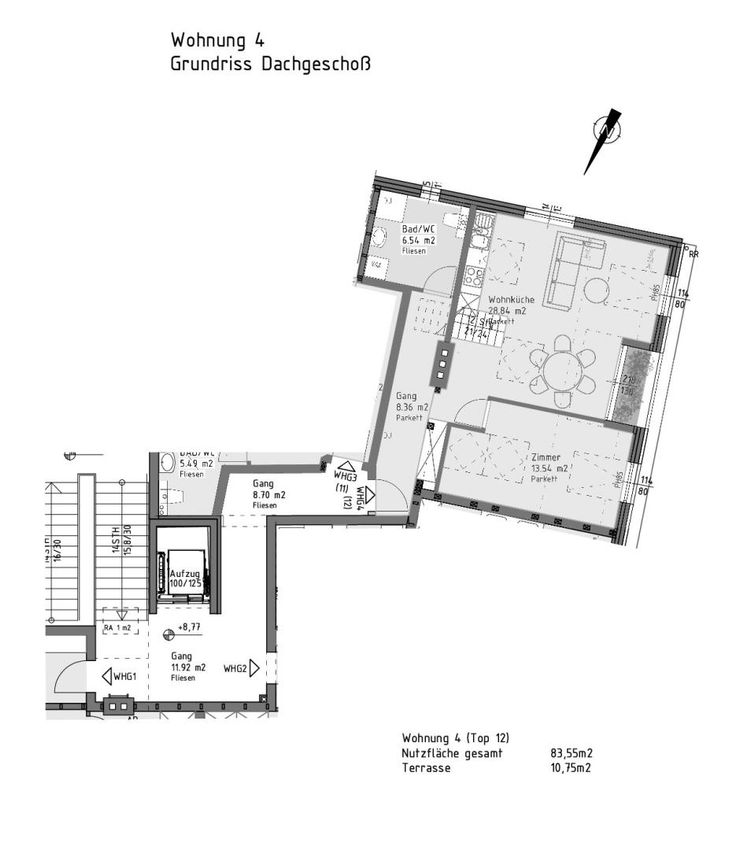
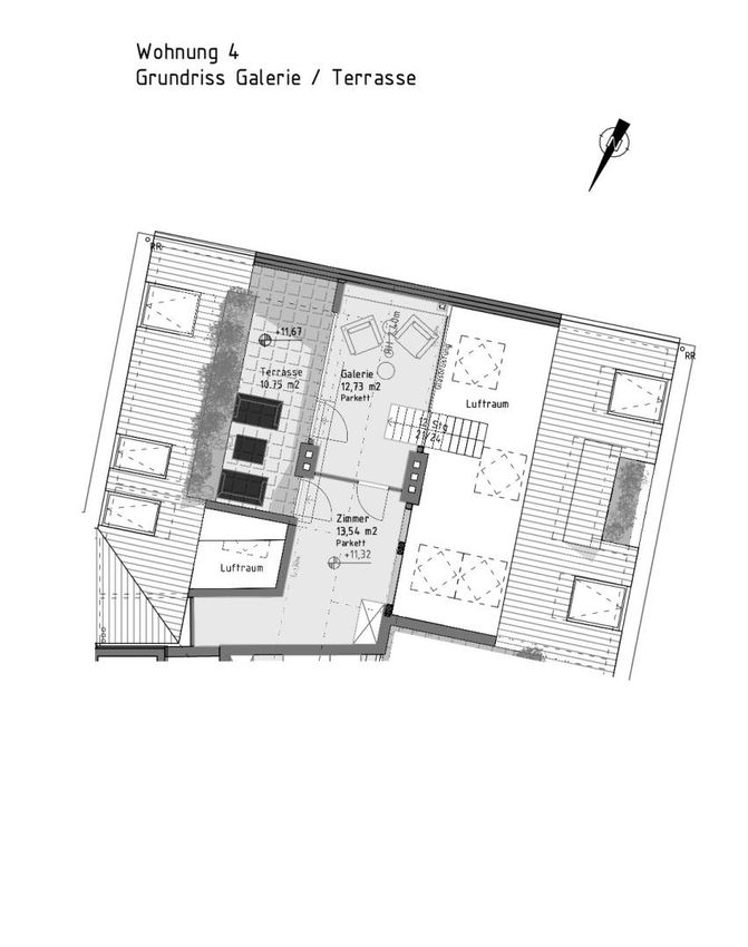
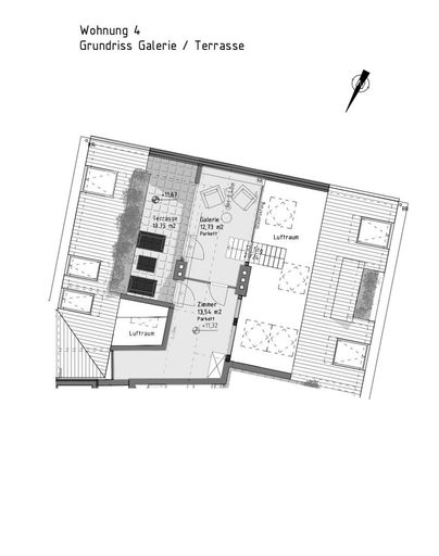
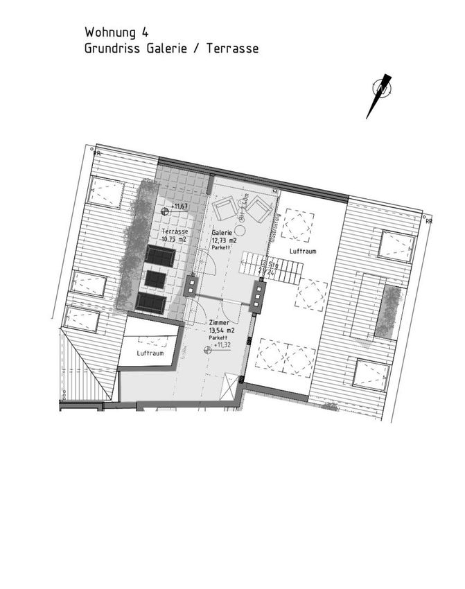
WOHNUNG 4 (Top 12; Maisonette) Wohnfläche: ca. 83,55m²
Kaufpreis: EUR 415.000,-
UNTERE EBENE: Zugang vom Lift, Vorzimmer, Badezimmer mit Dusche, Waschbecken und WC, geräumiger Wohnbereich mit offener Küche (Anschlüsse vorbereitet), nahe dem Essbereich befindet sich ein großzügiger Außen-Pflanzentrog für Küchenkräuter, 1 Schlafzimmer/ oder Office-Raum.
OBERE EBENE: Aufgang über eine Innentreppe zur offenen Galerie mit Zugang zur ca. 10,50m² Westterrasse, welche einem Bereich zur Begrünung bietet, 1 weiteres Schlafzimmer.
MONATLICHE KOSTEN:
BETRIEBSKOSTEN inklusive Mwst, Parkplatz und Lift: ca. EUR 154,50
REPARATUR-RÜCKLAGE: ca. EUR 89,50
GESAMT: ca. EUR 244,-,- (zuzüglich Energiekosten)
WOHNUNG 5 (Top 12a, Maisonette) Wohnfläche ca.136m²
Kaufpreis: EUR 660.000,-
UNTERE EBENE: Zugang vom Lift, Vorzimmer mit separatem WC, zentrale Diele, Abstellraum, ein 42m² Wohnbereich mit offener Küche (Anschlüsse vorbereitet), nahe dem Essbereich befindet sich ein großzügiger Außen-Pflanzentrog für Küchenkräuter, Bad mit Badewanne, Dusche, Doppelwaschbecken und WC, 3 weitere Schlafzimmer.
OBERE EBENE: Aufgang über eine Innentreppe zur geräumigen offenen Galerie mit einem kleinen Abstellraum und Zugang zur ca. 10,50m² Ostterrasse, welche einem Bereich zur Begrünung bietet.
MONATLICHE KOSTEN:
BETRIEBSKOSTEN inklusive Mwst, Parkplatz und Lift: ca. EUR 250,70
REPARATUR-RÜCKLAGE: ca. EUR 144,30
GESAMT: ca. EUR 395,- (zuzüglich Energiekosten)
ENERGIEKENNZAHLEN: HWB 44; fGEE 0,71
LAGE UND INFRASTRUKTUR: In hervorragender zentraler Lage mit allen gängigen infrastrukturellen Einrichtungen in der Kurstadt Bad Vöslau gelegen, welche durch seine Weinbauregion, die umliegenden erholsamen Wälder und dem historischen Thermalbad im Herzen der Stadt, sowie das breite Kultur- und Freizeitangebot sehr beliebt und bekannt ist.
INFOS ZUR REGION: www.badvoeslau-tourismus.at
PARKPLÄTZE: Jeweils 1 zugehöriger PKW-Stellplatz sowie ausreichend Stellflächen auf öffentlichem Gut, bzw. im kostenpflichtigen Park & Ride Bereich beim Bahnhof.
ANBINDUNGEN: Bahnhof- und Busverbindung befinden sich in unmittelbarer Nähe, Anschluss A2 Südautobahn ca. 5min
Fragen Sie unverbindlich Ihr Finanzierungsmodell an: https://www.immobilien-moertl.at/finanzierung
Für weitere Informationen und Besichtigungen steht Ihnen HARALD GABERSCIK unter 0664 / 5211167 gerne zur Verfügung.
Wünschen Sie die Zusendung detaillierter Unterlagen zu dieser Immobilie benötigen wir bitte Ihre vollständigen Kontaktdaten. Ihre Daten werden nicht an Dritte weitergegeben und nach den Bestimmungen des Datenschutzgesetzes streng vertraulich behandelt
Finden Sie weitere Objekte unter www.immobilien-moertl.at oder
folgen Sie uns auf https://www.facebook.com/ImmobilienMoertl/ und auf Instagram: immobilien.moertl
IMMOBILIEN MÖRTL - Wir verkaufen Ihre Immobilie in Wien und Niederösterreich!
https://www.immobilien-moertl.at/1182743/Immobilienverkauf
Sehr individuell und modern gestaltete Dachwohnungen mit Lift und Terrassen, welche aktuell fertiggestellt werden und im Frühjahr 2026 bezugsfertig sein werden. Im Jahr 2022 wurden im Dachgeschoss eines Jahrhundertwende-Hauses (erbaut um 1900) insgesamt 5 großzügige Einheiten genehmigt, von denen derzeit noch 4 Varianten zum Verkauf stehen. Die Wohnungen reichen von einer praktikabel gestalteten Garconniere, bis hin zu großzügigen Maisonette Wohnungen, einladend durch großzügige offene Wohnbereiche mit hervorragendem Lichteinfall, die für ein extravagantes Wohnklima sorgen. Ein zusätzlicher Galeriebereich mit Terrassenzugang bietet sich als Ruhe- oder Homeoffice-Bereich erweiternd an.
TECHNISCHE AUSSTATTUNG: *Deckenkühlung und Fußbodenheizung über eine effiziente Wärmepumpe betrieben. *Eingangstüre der Sicherheitsklasse WK3, mit einer komfortablen Durchgangshöhe von 210cm wie auch die Wohnraumtüren. *Österreichische Qualitätsfenster der Fa. Katzbeck in hochwertiger Holz-Alu Konstruktion mit elektrischer Außenbeschattung. Velux Dachflächenfenster ebenso elektrisch zu beschatten.
BELÄGE: (In der angebotenen schlüsselfertigen Variante) *Böden mit Klebeparkettdielen und Feinsteinzeug im gehobenen Standard *Sanitär- und Elektroausstattung durchwegs in Markenqualität. *Terrassen mit rutschfesten und frostsicheren Steinplatten belegt.
WOHNUNG 2 (Top 10; Maisonette) Wohnfläche: ca.115m²
Kaufpreis: EUR 555.000,-
UNTERE EBENE: Zugang vom Lift, Vorzimmer mit separatem WC, zentrale Diele, Abstellraum, ein 42m² Wohnbereich mit offener Küche (Anschlüsse vorbereitet), nahe dem Essbereich befindet sich ein großzügiger Außen-Pflanzentrog für Küchenkräuter, Bad mit Badewanne, Dusche, Doppelwaschbecken und WC, 3 weitere Schlafzimmer.
OBERE EBENE: Aufgang über eine Innentreppe zur geräumigen offenen Galerie mit einem kleinen Abstellraum und Zugang zur ca. 10,50m² Westterrasse, welche einem Bereich zur Begrünung bietet.
MONATLICHE KOSTEN:
BETRIEBSKOSTEN inklusive Mwst, Parkplatz und Lift: ca. EUR 212,56
REPARATUR-RÜCKLAGE: ca. EUR 122,44
GESAMT: ca. EUR 335,- (zuzüglich Energiekosten)
WOHNUNG 3 (Top 11) Wohnfläche: ca. 45,25m²
(Optionaler ca. 5,40m² Balkon mit Aufpreis möglich)
Kaufpreis: EUR 225.000,-
RAUMAUFTEILUNG: Zugang vom Lift, Vorzimmer, Badezimmer mit Dusche, Waschbecken und WC, Wohnzimmer mit integrierter Küchenzeile und vorbereiteten Anschlüssen, (optional mit Balkonzugang), 1 Schlafzimmer.
MONATLICHE KOSTEN:
BETRIEBSKOSTEN inklusive Mwst, Parkplatz und Lift: ca. EUR 83,70
REPARATUR-RÜCKLAGE: ca. EUR 48,42
GESAMT: ca. EUR 132,12
WOHNUNG 4 (Top 12; Maisonette) Wohnfläche: ca. 83,55m²
Kaufpreis: EUR 415.000,-
UNTERE EBENE: Zugang vom Lift, Vorzimmer, Badezimmer mit Dusche, Waschbecken und WC, geräumiger Wohnbereich mit offener Küche (Anschlüsse vorbereitet), nahe dem Essbereich befindet sich ein großzügiger Außen-Pflanzentrog für Küchenkräuter, 1 Schlafzimmer/ oder Office-Raum.
OBERE EBENE: Aufgang über eine Innentreppe zur offenen Galerie mit Zugang zur ca. 10,50m² Westterrasse, welche einem Bereich zur Begrünung bietet, 1 weiteres Schlafzimmer.
MONATLICHE KOSTEN:
BETRIEBSKOSTEN inklusive Mwst, Parkplatz und Lift: ca. EUR 154,50
REPARATUR-RÜCKLAGE: ca. EUR 89,50
GESAMT: ca. EUR 244,-,- (zuzüglich Energiekosten)
WOHNUNG 5 (Top 12a, Maisonette) Wohnfläche ca.136m²
Kaufpreis: EUR 660.000,-
UNTERE EBENE: Zugang vom Lift, Vorzimmer mit separatem WC, zentrale Diele, Abstellraum, ein 42m² Wohnbereich mit offener Küche (Anschlüsse vorbereitet), nahe dem Essbereich befindet sich ein großzügiger Außen-Pflanzentrog für Küchenkräuter, Bad mit Badewanne, Dusche, Doppelwaschbecken und WC, 3 weitere Schlafzimmer.
OBERE EBENE: Aufgang über eine Innentreppe zur geräumigen offenen Galerie mit einem kleinen Abstellraum und Zugang zur ca. 10,50m² Ostterrasse, welche einem Bereich zur Begrünung bietet.
MONATLICHE KOSTEN:
BETRIEBSKOSTEN inklusive Mwst, Parkplatz und Lift: ca. EUR 250,70
REPARATUR-RÜCKLAGE: ca. EUR 144,30
GESAMT: ca. EUR 395,- (zuzüglich Energiekosten)
ENERGIEKENNZAHLEN: HWB 44; fGEE 0,71
LAGE UND INFRASTRUKTUR: In hervorragender zentraler Lage mit allen gängigen infrastrukturellen Einrichtungen in der Kurstadt Bad Vöslau gelegen, welche durch seine Weinbauregion, die umliegenden erholsamen Wälder und dem historischen Thermalbad im Herzen der Stadt, sowie das breite Kultur- und Freizeitangebot sehr beliebt und bekannt ist.
INFOS ZUR REGION: www.badvoeslau-tourismus.at
PARKPLÄTZE: Jeweils 1 zugehöriger PKW-Stellplatz sowie ausreichend Stellflächen auf öffentlichem Gut, bzw. im kostenpflichtigen Park & Ride Bereich beim Bahnhof.
ANBINDUNGEN: Bahnhof- und Busverbindung befinden sich in unmittelbarer Nähe, Anschluss A2 Südautobahn ca. 5min
Fragen Sie unverbindlich Ihr Finanzierungsmodell an: https://www.immobilien-moertl.at/finanzierung
Für weitere Informationen und Besichtigungen steht Ihnen HARALD GABERSCIK unter 0664 / 5211167 gerne zur Verfügung.
Wünschen Sie die Zusendung detaillierter Unterlagen zu dieser Immobilie benötigen wir bitte Ihre vollständigen Kontaktdaten. Ihre Daten werden nicht an Dritte weitergegeben und nach den Bestimmungen des Datenschutzgesetzes streng vertraulich behandelt
Finden Sie weitere Objekte unter www.immobilien-moertl.at oder
folgen Sie uns auf https://www.facebook.com/ImmobilienMoertl/ und auf Instagram: immobilien.moertl
IMMOBILIEN MÖRTL - Wir verkaufen Ihre Immobilie in Wien und Niederösterreich!
https://www.immobilien-moertl.at/1182743/Immobilienverkauf
| Angaben gemäß gesetzlichem Erfordernis: | |||
| Heizwärmebedarf: | 38.7 kWh/(m²a) | ||
| Klasse Heizwärmebedarf: | B | ||
| Faktor Gesamtenergieeffizienz: | 0.71 | ||
| Klasse Faktor Gesamtenergieeffizienz: | A+ | ||
Objektdaten
Ausstattung
- WG geeignet
- Räume veränderbar
- Klimatisiert
- Fußbodenheizung
- Personen Fahrstuhl
- Holz Bauweise
- Neubaustandard
- Aussichtslage
- Aussichtslage Unverbaubar
- Holz Bauweise
- Bus
- Eisenbahn
- Fußbodenheizung
- Gegensprechanlage
- Räume veränderbar
- Sonnige Lage
- Stadtzentrum
- Villengegend
- Holz Bauweise
- Fußbodenheizung
- Räume veränderbar
Zustand
- Zustand
- GEPFLEGT
- Baujahr
- ca. 2022
Flächen
- Anzahl der Zimmer
- 5
- Anzahl der Badezimmer
- 1
- Anzahl der sep. WCs
- 2
- Stellplätze
- 2
- Wohnfläche
- 84m²
Kosten
- Kaufpreis
- € 415.000,00
Verwaltung
- Verfügbar ab
- Frühjahr 2026
Wohnungen zum Kaufen in Österreich
Wohnungen zum Kaufen in Österreich
Wohnungen zum Kaufen in Österreich
Andere Besucher suchen nach...
- Grundstücke kaufen in 3400 Weidlingbach
- Wohnungen kaufen in 4663 Laakirchen
- Häuser in 7471 Rechnitz
- Wohnungen in 2410 Hainburg an der Donau
- Häuser kaufen in 2432 Schwadorf
- Wohnungen kaufen in 3002 Purkersdorf
- Häuser in 3150 Wilhelmsburg
- Wohnungen kaufen in 3470 Engelmannsbrunn
- Grundstücke kaufen im Bezirk Mattersburg
- Grundstücke kaufen im Bezirk Gmunden