Sonnige Wohnung mit Balkon!
€ 179.000
€ 2.717 / m²
4663 Laakirchen
Beschreibung
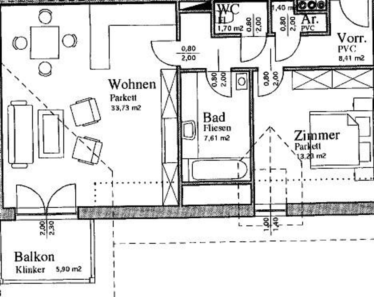
Sie sind auf der Suche nach einer gemütlichen und ruhigen Wohnung? Dann könnten Sie hier genau richtig sein! Diese sehr ruhige, freundliche und helle 2-Zimmer-Wohnung befindet sich im 2. Stock eines Mehrparteienhauses und verfügt über eine Wohnfläche von ca. 63,59 m² und ist wie folgt aufgeteilt: - Vorraum - Abstellraum - WC - Bad inkl. Badewanne - Wohn-/Essbereich mit Küche - Schlafzimmer Ebenso verfügt die Wohnung über einen tollen Balkon, auf den Sie Zeit im Freien verbringen können. Zugehörig zur Wohnung sind außerdem noch ein Kellerabteil und ein eigener Parkplatz. Zögern Sie nicht lange und machen Sie sich selbst ein...
Sie sind auf der Suche nach einer gemütlichen und ruhigen Wohnung? Dann könnten Sie hier genau richtig sein!
Diese sehr ruhige, freundliche und helle 2-Zimmer-Wohnung befindet sich im 2. Stock eines Mehrparteienhauses und verfügt über eine Wohnfläche von ca. 63,59 m² und ist wie folgt aufgeteilt:
- Vorraum
- Abstellraum
- WC
- Bad inkl. Badewanne
- Wohn-/Essbereich mit Küche
- Schlafzimmer
Ebenso verfügt die Wohnung über einen tollen Balkon, auf den Sie Zeit im Freien verbringen können.
Zugehörig zur Wohnung sind außerdem noch ein Kellerabteil und ein eigener Parkplatz.
Zögern Sie nicht lange und machen Sie sich selbst ein Bild vor Ort von dieser tollen Gelegenheit!
Bitte beachten Sie, dass wir aufgrund der Nachweispflicht gegenüber dem Eigentümer nur Anfragen mit vollständiger Angabe der Anschrift und Telefonnummer bearbeiten können.
Wir weisen darauf hin, dass alle Angaben nach bestem Wissen und Gewissen erstellt wurden.
Irrtümer, Druckfehler und Änderungen vorbehalten.
Für Auskünfte und Angaben die uns von Seiten der Eigentümer und Dritten zur Verfügung gestellt wurden, übernehmen wir keine Haftung.
Für Fragen steht Ihnen Herr Gattringer gerne unter der Nummer 0664 / 41 29 950 zur Verfügung! Gerne können Sie auch unverbindlich einen Besichtigungstermin vereinbaren.
Diese sehr ruhige, freundliche und helle 2-Zimmer-Wohnung befindet sich im 2. Stock eines Mehrparteienhauses und verfügt über eine Wohnfläche von ca. 63,59 m² und ist wie folgt aufgeteilt:
- Vorraum
- Abstellraum
- WC
- Bad inkl. Badewanne
- Wohn-/Essbereich mit Küche
- Schlafzimmer
Ebenso verfügt die Wohnung über einen tollen Balkon, auf den Sie Zeit im Freien verbringen können.
Zugehörig zur Wohnung sind außerdem noch ein Kellerabteil und ein eigener Parkplatz.
Zögern Sie nicht lange und machen Sie sich selbst ein Bild vor Ort von dieser tollen Gelegenheit!
Bitte beachten Sie, dass wir aufgrund der Nachweispflicht gegenüber dem Eigentümer nur Anfragen mit vollständiger Angabe der Anschrift und Telefonnummer bearbeiten können.
Wir weisen darauf hin, dass alle Angaben nach bestem Wissen und Gewissen erstellt wurden.
Irrtümer, Druckfehler und Änderungen vorbehalten.
Für Auskünfte und Angaben die uns von Seiten der Eigentümer und Dritten zur Verfügung gestellt wurden, übernehmen wir keine Haftung.
| Angaben gemäß gesetzlichem Erfordernis: | |||
| Heizwärmebedarf: | 100.0 kWh/(m²a) | ||
| Klasse Heizwärmebedarf: | C | ||
| Faktor Gesamtenergieeffizienz: | 2.12 | ||
| Klasse Faktor Gesamtenergieeffizienz: | D | ||
Für Fragen steht Ihnen Herr Gattringer gerne unter der Nummer 0664 / 41 29 950 zur Verfügung! Gerne können Sie auch unverbindlich einen Besichtigungstermin vereinbaren.
Objektdaten
Ausstattung
- Teilmöbliert
- Unterkellert
- Zentralheizung
- Befeuerung mit Gas
- Teilmöbliert
- Zentralheizung mit Gas
Zustand
- Baujahr
- ca. 1998
Flächen
- Anzahl der Zimmer
- 2
- Anzahl der Badezimmer
- 1
- Anzahl der sep. WCs
- 1
- Anzahl der Balkone
- 1
- Stellplätze
- 1
- Wohnfläche
- 66m²
Kosten
- Kaufpreis
- € 179.000,00
- Nebenkosten
- € 246,01
- Betriebskosten Brutto
- € 94,13
- Warmwasser Brutto
- € 44,91
- Sonstige Kosten Brutto
- € 32,84
Verwaltung
- Verfügbar ab
- nach Vereinbarung
Wohnungen zum Kaufen im Umkreis von Laakirchen
Wohnungen zum Kaufen im Umkreis von Laakirchen
Wohnungen zum Kaufen in Österreich
Andere Besucher suchen nach...
- Grundstücke kaufen in 3400 Weidlingbach
- Wohnungen kaufen in 4663 Laakirchen
- Häuser in 7471 Rechnitz
- Wohnungen in 2410 Hainburg an der Donau
- Häuser kaufen in 2432 Schwadorf
- Wohnungen kaufen in 3002 Purkersdorf
- Häuser in 3150 Wilhelmsburg
- Wohnungen kaufen in 3470 Engelmannsbrunn
- Grundstücke kaufen im Bezirk Mattersburg
- Grundstücke kaufen im Bezirk Gmunden