Traunsee Residence – Exklusive Designwohnung mit Panorama-Seeblick in Gmunden - Provisionsfrei!
-
Erstbezug
-
2025
-
01.09.2025
Beschreibung
HIGH END LIVING mit der neuesten Ausstattung in der Schmideggstraße, Gmunden - Luxuriös, Stilvoll und Elegant - das Projekt "LIVING FRAMES"
Sorgfältig in den Hang gebaut, bietet es Ihnen einen ruhigen Rückzugsort in Ihrer neuen Wohlfühloase.
Das Objekt umfasst 6 Wohneinheiten, aufgeteilt auf 4 Geschosse. Ihre neue Traumwohnung befindet sich im 3. Stock, welche Sie ganz bequem, barrierefrei und mit nur einer Schlüsselumdrehung direkt vom Aufzug aus betreten können.
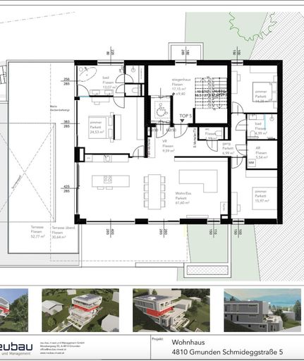
Die 3 Schlafzimmer, 2 Bäder, eine Gäste Toilette und eine großzügige Wohnküche erstrecken sich über das gesamte Stockwerk.
Das Kronjuwel der Immobilie ist die Terrasse, die Ihnen mit 83m2 nicht...
HIGH END LIVING mit der neuesten Ausstattung in der Schmideggstraße, Gmunden - Luxuriös, Stilvoll und Elegant - das Projekt "LIVING FRAMES"
Sorgfältig in den Hang gebaut, bietet es Ihnen einen ruhigen Rückzugsort in Ihrer neuen Wohlfühloase.
Das Objekt umfasst 6 Wohneinheiten, aufgeteilt auf 4 Geschosse. Ihre neue Traumwohnung befindet sich im 3. Stock, welche Sie ganz bequem, barrierefrei und mit nur einer Schlüsselumdrehung direkt vom Aufzug aus betreten können.
Die 3 Schlafzimmer, 2 Bäder, eine Gäste Toilette und eine großzügige Wohnküche erstrecken sich über das gesamte Stockwerk.
Das Kronjuwel der Immobilie ist die Terrasse, die Ihnen mit 83m2 nicht nur einen weitreichenden Seeblick verschafft, sondern auch mit einem Designer Sonnensegel ausgestattet ist, welches durch einen Windwächter eine bequeme Bedienung ermöglicht.
Die raumhohen Holz-Alu-Fenster mit Dreifachverglasung sorgen für optimale Wärmedämmung. Durch das minimale Gewicht lassen sich die Türen mit nur einer Hand bedienen. Entlang der gesamten Fenster des Wohnbereichs, Master Bedrooms und Schlafzimmers befinden sich deckenintegrierte Vorhangschienen, welche von inderektem Mood Lighting beleuchtet werden.
Die Bäder sind in zwei verschiedenen Farbkonzepten ausgeführt. Das On-Suite Badezimmer des Master Bedrooms ist Teil der Gold Brushed Reihe. Das zweite Badezimmer sowie die Gästetoilette sind Teil der Natural Reihe. Jedes Badezimmer sowie die Toiletten sind mit feinsten Designer Armaturen und nobelster Ausstattung des italienischen Herstellers "Vallone" ausgestattet.
AUSTATTUNGSMERKMALE WOHNUNG:
- Franzöisches Parkett Eiche
- Gegensprechanlage
- Wohnungstüre mit MAX-Oberflächen-Sicherheitsbeschlag
- Gesamte Badezimmerausstattung von Vallone
- Direkter Liftzugang in den Wohnbereich (barrierefrei)
- Fußbodenheizung mit Einzelraumregelung
- Decken intigrierte Klimatisierung
- Kontrollierte Wohnraumlüftung (Entlüftung und Belüftung durch Filtersystem)
- Außenliegender Sonnenschutz
- Designer Sonnensegel mit Windwächter
- Alu-Fenster mit Wärmeschutzverglasung (barrierefrei)
- 2 Tiefgaragenstellplätze
AUSTATTUNGSMERKMALE GEBÄUDE:
- Photovoltaik Anlage
- Paketempfangsbox
- Garagenrolltor mit Handsender
- Fahrradabstellraum
- E-Ladestationen vorgesehen
- Spielplatz vorgesehen
- 4 Besucherparkplätze
- Kellerabteil jeder Wohnung zugeordnet
WEITERE HINWEISE:
Mit dieser Wohnung können 1 - 2 Tiefgaragenstellplätze um einen Preis von je 29.900€ pro Stellplatz erworben werden.
Bei der Firma Neubau Invest und Management GmbH handelt es sich um kein Maklerunternehmen. Sie ist Eigentümerin der gesamten Wohnhausanlage und direkte Verkäuferin; daher gibt es KEINE PROVISIONSGEBÜHR.
Infrastruktur / Entfernungen
Gesundheit
Arzt <1.000m
Apotheke <1.000m
Krankenhaus <2.500m
Klinik <2.500m
Kinder & Schulen
Schule <1.000m
Kindergarten <1.000m
Nahversorgung
Supermarkt <500m
Bäckerei <500m
Einkaufszentrum <2.000m
Sonstige
Bank <1.000m
Geldautomat <1.000m
Post <1.000m
Polizei <1.000m
Verkehr
Bus <500m
Straßenbahn <1.000m
Bahnhof <1.000m
Autobahnanschluss <7.000m
Flughafen <5.500m
Angaben Entfernung Luftlinie / Quelle: OpenStreetMap
Objektdaten
Ausstattung
- Klimatisiert
- Rollstuhlgerecht
- Kabel/SAT-TV
- Barrierefrei
- Fahrradraum
- Gäste-WC
- Seniorengerecht
- Bad mit Dusche
- Bad mit Badewanne
- Bad mit Fenster
- Einbauküche
- Offene Küche
- Parkettboden
- Fußbodenheizung
- Luftwärmepumpe
- Personen Fahrstuhl
- Ausrichtung Balkon/Terrasse - West
- Ausrichtung Balkon/Terrasse - Südwest
- Flachdach
Zustand
- Zustand
- ERSTBEZUG
- Baujahr
- 2025
- Alter
- NEUBAU
- HWB
- 40.3 kWh/m² pro Jahr
- Klasse HWB
- B
- fGEE
- 0.75
- Klasse fGEE
- A
Flächen
- Anzahl der Zimmer
- 4
- Anzahl der Badezimmer
- 2
- Anzahl der sep. WCs
- 3
- Anzahl der Terrassen
- 1
- Wohnfläche
- 159m²
- Kellerfläche
- 8m²
- Terrassenfläche
- 1m²
Kosten
- Kaufpreis Brutto
- € 1.713.960,00
- Betriebskosten
- € 454,32
- Heizkosten
- € 243,92
- Sonstige Kosten
- € 151,26
Verwaltung
- Verfügbar ab
- 01.09.2025
- Mietdauer
- bis 5,0 Jahre
- Ferienimmobilie
- Ja
Wohnungen zum Kaufen im Umkreis von Gmunden
Wohnungen zum Kaufen in Österreich
Andere Besucher suchen nach...
- Immobilien kaufen in 2601 Sollenau
- Immobilien in 4951 Polling im Innkreis, Oberösterreich
- Immobilien in 4742 Pram, Oberösterreich kaufen oder mieten
- Häuser kaufen in 2340 Mödling, Niederösterreich
- Häuser kaufen in 9421 Gemmersdorf, Kärnten
- Wohnungen / Eigentumswohnungen kaufen in 9431 St. Stefan, Kärnten
- Häuser kaufen in Bruck an der Leitha, Niederösterreich
- Immobilien mieten in Krems an der Donau, Niederösterreich
- Häuser zum Kaufen im Bezirk St. Pölten Land, Niederösterreich
- Büro / Praxen mieten in Rohrbach, Oberösterreich