NEUBAUPROJEKT: PRÖLLHOFSTRASSE | OBERALM - 4 Zimmer Penthouse mit großzügiger Terrasse & Balkon - PROVISIONSFREI!
-
Erstbezug
Beschreibung
Luftige Penthouse mit Balkon und Terrasse auf 2 Ebenen: „Haus im Haus mit allen Annehmlichkeiten“
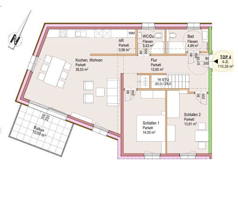
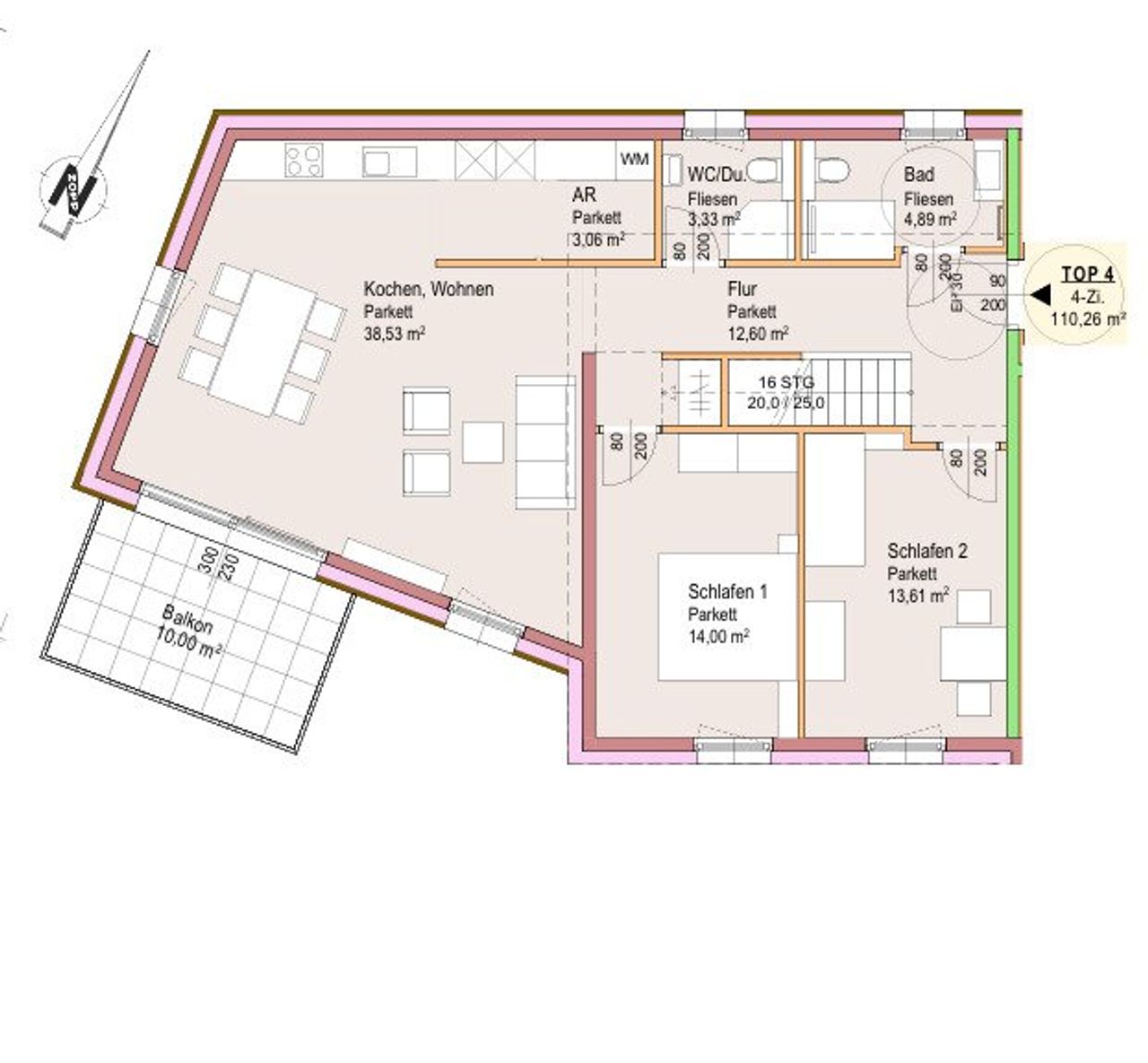
Man lebt nur einmal: 110 m² Wohnfläche auf zwei Ebenen aufgeteilt mit 2 Bädern – hier lebt es sich gut. Luxuriös auch die rund 20 m² große Galerie, von der es auf die 33 m² Dachterrasse hinaus geht. Oder man genießt Sonne und Weitblick auf dem großen Balkon vom Wohn/Essbereich aus, samt Blick auf das umliegende Bergpanorama. Herrlich. Der Lift von der Tiefgarage in den 2. Stock ist exklusiv. Die sonnige Ruhelage ist inklusive. Kein Zweifel: Hier oben ist man König!
Obwohl...
Luftige Penthouse mit Balkon und Terrasse auf 2 Ebenen: „Haus im Haus mit allen Annehmlichkeiten“
Man lebt nur einmal: 110 m² Wohnfläche auf zwei Ebenen aufgeteilt mit 2 Bädern – hier lebt es sich gut. Luxuriös auch die rund 20 m² große Galerie, von der es auf die 33 m² Dachterrasse hinaus geht. Oder man genießt Sonne und Weitblick auf dem großen Balkon vom Wohn/Essbereich aus, samt Blick auf das umliegende Bergpanorama. Herrlich. Der Lift von der Tiefgarage in den 2. Stock ist exklusiv. Die sonnige Ruhelage ist inklusive. Kein Zweifel: Hier oben ist man König!
Obwohl diese Maisonette-Wohnung das Gefühl vom „Haus im Haus“ vermittelt, kann man die 4-Zimmer-Wohnung schnell zusperren, verreisen, weg sein – ohne sich um das „Haus“ fürchten oder kümmern zu müssen. Ob Altersvorsorge, bequemes Wohnen oder Großeinkauf: Ein Lift vom Auto in der Tiefgarage in den 2. Stock ist hier jedenfalls ein weiteres Plus.
Elegant und großzügig zeigt sich dieses von Architektenhand geplante Refugium. Sorgfältig geplant ist auch die Nutzung der Wohnung, diese wurde flexibel für viele Lebenssituationen konzipiert. Ob Familie, ein Paar mit Pflegeperson, Übernachtung für Gäste, Wohnen und Arbeiten in der Wohnung oder einfach luxuriöses Single-Leben – diese und mehr Konstellationen wurden bereits in der Planung ein einem Wurf berücksichtigt.
Die Aufteilung ist wie folgt:
- Ebene 1: Kochen/Wohnen/Essen, Balkon, 2 Bäder, 2 Schlafzimmer, Abstellfläche
- Ebene 2: Galerie, Terrasse
Hinzu kommt ein Kellerabteil, welches der Wohnung zugeordnet ist. Platz für Fahrräder gibt es im Außenbereich und in der Tiefgarage und ein Kinderspielplatz zur allgemeinen Nutzung gehört ebenso zum Haus dazu.
Alles vor Ort
Das Bauprojekt „Pröllhofstrasse N6“ ist nur wenige Gehminuten vom Ortszentrum von Oberalm entfernt. Somit sind Einkaufsmöglichkeiten, kulturelle Aktivitäten und öffentliche Einrichtungen nur einen kurzen Fußweg entfernt.
Nah. Fern.
Ebenso rasch ist man bei der S-Bahn, um schnell in alle Richtungen zu gelangen oder man geht zur nächsten Bushaltestelle. Hier finden jedenfalls Naturliebhaber Ihren Ausgleich, ohne auf die Annehmlichkeiten des nahe gelegenen Ortszentrums verzichten zu müssen. Oberalm ist ein erstklassiger Standort, der auch über die Autobahn einfach zu erreichen ist.
Der Zukunft gewachsen
Photovoltaik und eine Luftwärmepumpe sorgen für einen minimalen CO2 -Fußabdruck.
Durchdacht geschnitten
Ob 2-, 3- oder 4-Zimmer Wohnung – kompakte Grundrisse bieten Wohnungen für jeden Bedarf. Zudem verfügen alle Wohnungen über eine Außenfläche. In der Tiefgarage ist nicht nur Platz für Autos, sondern auch für Fahrräder. Bei Bedarf kann auch das E-Auto in den TG-Plätzen geladen werden.
WOHNUNGEN
Wohnungen gesamt: 6
Wohnungsgrößen: ca. 60 m² bis 112 m²
Lichte Raumhöhe: ca. 2,50 m
AUSSTATTUNG
Boden: Parkett, Fliesen/Feinsteinzeug
Sonnenschutz: Rollläden
Heizung/Kühlung: Fußbodenheizung, Luftwärmepumpe
Lüftung: Abluftventilatoren in Bädern, WCs und Abstellflächen
Manuelle Lüftung: Fensterlüftung
MOBILITÄT
Pkw-Stellplätze: 12
E-Mobility: Jeder Stellplatz ist auf Kundenwunsch mit einer E-Ladestation aufrüstbar
Fahrradabstellplätze: Großer Fahrradraum in der Tiefgarage
Öffentlicher Verkehr: ca. 500 Meter zur S-Bahn, ca. 400 Meter zum Bus
Aufgrund wiederkehrender Geschäftsbeziehung weisen wir auf ein wirtschaftliches Naheverhältnis hin.
Objektdaten
Ausstattung
- Bad mit Fenster
- Personen Fahrstuhl
- Massiv Bauweise
Zustand
- Zustand
- ERSTBEZUG
- Alter
- NEUBAU
- HWB
- 31 kWh/m² pro Jahr
- Klasse HWB
- B
- fGEE
- 0.68
- Klasse fGEE
- A+
Flächen
- Anzahl der Zimmer
- 4
- Anzahl der Badezimmer
- 1
- Anzahl der sep. WCs
- 1
- Anzahl der Balkone
- 1
- Anzahl der Terrassen
- 1
- Wohnfläche
- 110m²
- Kellerfläche
- 8m²
- Terrassenfläche
- 1m²
Kosten
- Kaufpreis Brutto
- € 960.000,00
Wohnungen zum Kaufen im Umkreis von Oberalm
Wohnungen zum Kaufen im Umkreis von Oberalm
Wohnungen zum Kaufen in Österreich
Andere Besucher suchen nach...
- Grundstücke kaufen in 3400 Weidlingbach
- Wohnungen kaufen in 4663 Laakirchen
- Häuser in 7471 Rechnitz
- Wohnungen in 2410 Hainburg an der Donau
- Häuser kaufen in 2432 Schwadorf
- Wohnungen kaufen in 3002 Purkersdorf
- Häuser in 3150 Wilhelmsburg
- Wohnungen kaufen in 3470 Engelmannsbrunn
- Grundstücke kaufen im Bezirk Mattersburg
- Grundstücke kaufen im Bezirk Gmunden