Ruhige, helle Erstbezugswohnung mit Fernblick im Zentrum
-
Erstbezug
-
2022
Beschreibung
KEINE Grundbucheintragungsgebühr -> Ersparnis von 1,1% vom KP beim Erst-Kauf und Eigenbedarf von zumindest 5 Jahren!
Warum ausgerechnet diese Wohnung?
Hier sind die Vorteile:
- zentrale Lage des Hauses
- Ruhelage durch Ausrichtung zu Pfarrgasse - 2. Liftstock
- nur 1 direkter Nachbar auf der Etage
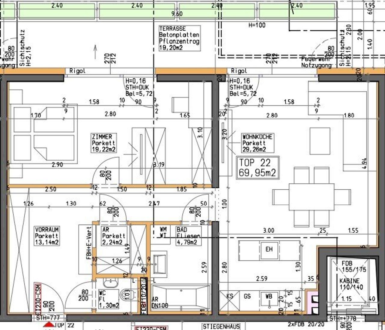
- große Wohnfläche - ca. 70 m2
- 2 zentral begehbare Zimmer
- Abstellraum + Kellerabteil
- Weitblick über die Dächer der Stadt
- West-Ausrichtung
- außergewöhnlich große Terrasse begehbar aus beiden Zimmern (mit Wasseranschluss, Steckdose, Beleuchtung und Blumentröge)
- getrennt begehbare Räume
- Duschbad (ideal für ältere...
KEINE Grundbucheintragungsgebühr -> Ersparnis von 1,1% vom KP beim Erst-Kauf und Eigenbedarf von zumindest 5 Jahren!
Warum ausgerechnet diese Wohnung?
Hier sind die Vorteile:
- zentrale Lage des Hauses
- Ruhelage durch Ausrichtung zu Pfarrgasse - 2. Liftstock
- nur 1 direkter Nachbar auf der Etage
- große Wohnfläche - ca. 70 m2
- 2 zentral begehbare Zimmer
- Abstellraum + Kellerabteil
- Weitblick über die Dächer der Stadt
- West-Ausrichtung
- außergewöhnlich große Terrasse begehbar aus beiden Zimmern (mit Wasseranschluss, Steckdose, Beleuchtung und Blumentröge)
- getrennt begehbare Räume
- Duschbad (ideal für ältere Menschen)
- Fußbodenheizung
- Erdwärme und -Kälte
- noch keine Küche, somit sind Ihren Gestaltungsmöglichkeiten keine Grenzen gesetzt
- Bodentiefe Fenster mit el. Jalousien
Im Haus vorhanden:
- Gemeinschaftsdachterrasse
- Tiefgarage
- Kellerabteile
- Fahrradabstellraum
Konditionen:
KP: € 290.000,00
Stellplatz in der Tiefgarage: € 18.000,00
BK-Wohnung: € 242,65 (inkl. USt und Rep.Fonds)
BK-Stellplatz: € 31,01 (inkl. USt und Rep. Fonds)
Kaufnebenkosten:
KEINE Grundbucheintragungsgebühr (Ersparnis von 1,1% vom KP)
3,5% vom KP Grunderwerbsteuer
3% zzgl. 20% USt - Maklerhonorar
Rechtsanwaltskosten für die Vertragserrichtung und Treuhandschaft nach den Tarifen der jeweiligen Rechtsberater
Kontakt:
Bitte beachten Sie, dass wir aufgrund der Nachweispflicht gegenüber dem Eigentümer nur Anfragen mit vollständiger Angabe der Anschrift bearbeiten können.
Wir senden Ihnen gerne weitere und detaillierte Beschreibungen, sowie Besichtigungstermine zu, sobald wir Ihre Anfrage erhalten haben.
Wir bitten Sie daher um eine E-Mail-Anfrage an: svetlana.piskorova@pr-immobilien.at
Noch nichts gefunden? Wir informieren Sie über geeignete Immobilienangebote noch vor allen anderen.
Legen Sie jetzt Ihren individuellen Suchagenten unter folgendem Link an. Wir schicken Ihnen passende Immobilien exklusiv vorab zu.
Suchagent anlegen - https://pr-immobilien-real-estate.service.immo/registrieren/de
Der Vermittler ist als Doppelmakler tätig.
Infrastruktur / Entfernungen
Gesundheit
Arzt <500m
Krankenhaus <1.000m
Apotheke <500m
Kinder & Schulen
Schule <500m
Kindergarten <1.000m
Nahversorgung
Supermarkt <500m
Bäckerei <500m
Sonstige
Bank <500m
Geldautomat <500m
Polizei <1.000m
Post <1.000m
Verkehr
Bus <500m
Autobahnanschluss <1.500m
Bahnhof <1.000m
Angaben Entfernung Luftlinie / Quelle: OpenStreetMap
Objektdaten
Ausstattung
- Räume veränderbar
- Kabel/SAT-TV
- DVBT
- Barrierefrei
- Fahrradraum
- Seniorengerecht
- Bad mit Dusche
- Offene Küche
- Parkettboden
- Personen Fahrstuhl
- Ausrichtung Balkon/Terrasse - West
- Neubaustandard
- Fußbodenheizung
- Erdwärme
Zustand
- Zustand
- ERSTBEZUG
- Baujahr
- 2022
- Alter
- NEUBAU
- HWB
- 28.5 kWh/m² pro Jahr
- Klasse HWB
- B
- fGEE
- 0.8
- Klasse fGEE
- A
Flächen
- Anzahl der Zimmer
- 2
- Anzahl der Badezimmer
- 1
- Anzahl der sep. WCs
- 1
- Anzahl der Terrassen
- 1
- Wohnfläche
- 70m²
- Freifläche
- 19m²
- Terrassenfläche
- 1m²
Kosten
- Kaufpreis Brutto
- € 290.000,00
- Betriebskosten
- € 174,13
- Sonstige Kosten
- € 80,32
Verwaltung
- Verfügbar ab
- nach Vereinbarung
Wohnungen zum Kaufen im Umkreis von Hollabrunn
Wohnungen zum Kaufen im Umkreis von Hollabrunn
Wohnungen zum Kaufen in Österreich
Andere Besucher suchen nach...
- Grundstücke kaufen in 3400 Weidlingbach
- Wohnungen kaufen in 4663 Laakirchen
- Häuser in 7471 Rechnitz
- Wohnungen in 2410 Hainburg an der Donau
- Häuser kaufen in 2432 Schwadorf
- Wohnungen kaufen in 3002 Purkersdorf
- Häuser in 3150 Wilhelmsburg
- Wohnungen kaufen in 3470 Engelmannsbrunn
- Grundstücke kaufen im Bezirk Mattersburg
- Grundstücke kaufen im Bezirk Gmunden