Neubau: 2-Zimmer-Wohnung mit Terrasse und Garten Top 1
-
Erstbezug
-
2025
Beschreibung
zeitgemäßer Wohnraum in zentraler Lage von Imst
In einer ruhigen und familienfreundlichen Wohngegend von Imst steht dieses hochwertige Neubauprojekt mit nur sechs Wohneinheiten – ideal für Paare und Familien, die Wert auf modernes, durchdachtes Wohnen in zentraler Lage legen. Hier verbinden sich klare Architektur, funktionale Planung und zeitlose Materialien zu einem harmonischen Gesamtkonzept, das modernes Leben mit Wohnqualität auf hohem Niveau vereint.
Das Wohnhaus erstreckt sich über vier Etagen – Untergeschoss, Erdgeschoss, Obergeschoss und Dachgeschoss – und überzeugt durch helle, gut geschnittene Wohnungen mit großzügigen Fensterflächen. Jede Einheit verfügt über einen privaten Außenbereich in Form von Balkon, Terrasse...
zeitgemäßer Wohnraum in zentraler Lage von Imst
In einer ruhigen und familienfreundlichen Wohngegend von Imst steht dieses hochwertige Neubauprojekt mit nur sechs Wohneinheiten – ideal für Paare und Familien, die Wert auf modernes, durchdachtes Wohnen in zentraler Lage legen. Hier verbinden sich klare Architektur, funktionale Planung und zeitlose Materialien zu einem harmonischen Gesamtkonzept, das modernes Leben mit Wohnqualität auf hohem Niveau vereint.
Das Wohnhaus erstreckt sich über vier Etagen – Untergeschoss, Erdgeschoss, Obergeschoss und Dachgeschoss – und überzeugt durch helle, gut geschnittene Wohnungen mit großzügigen Fensterflächen. Jede Einheit verfügt über einen privaten Außenbereich in Form von Balkon, Terrasse oder Garten, ideal, um Sonne, frische Luft und Ausblick zu genießen. Die Architektur fügt sich harmonisch in die bestehende Umgebung ein und vermittelt ein ruhiges, stimmiges Erscheinungsbild.
Die Grundrisse sind alltagsnah und flexibel gestaltet und bieten Platz für verschiedene Lebensphasen – vom ersten gemeinsamen Zuhause bis zum Rückzugsort für wachsende Familien. Großzügige Wohn- und Essbereiche, helle Schlafzimmer und praktische Nebenräume schaffen ein angenehmes Wohngefühl mit viel Freiraum. Hochwertige Materialien und eine moderne technische Ausstattung sorgen für langfristigen Komfort und Energieeffizienz.
Die Beheizung des Hauses erfolgt zentral über eine Luftwärmepumpe, die für ein angenehmes Raumklima und niedrige Betriebskosten sorgt. Die Wärmeübertragung erfolgt mittels Fußbodenheizung, wodurch gleichmäßige Wärme in allen Räumen gewährleistet ist. Alle innenliegenden Bäder und WCs verfügen über eine mechanische Abluftanlage, die für eine kontinuierliche Frischluftzufuhr sorgt. Die Ausführung des Gebäudes entspricht modernen energetischen Standards und steht für nachhaltige Bauweise und zukunftsorientierte Haustechnik.
Die Fenster und Balkontüren sind in hochwertiger Holz-Alu-Ausführung mit dreifacher Isolierverglasung ausgeführt. Innen sind die Fensterbänke weiß kunststoffbeschichtet, außen kommen farbbeschichtete oder Uginox-Blechvarianten zum Einsatz – robust, langlebig und pflegeleicht.
Die Wohneinheiten werden im Edelrohbau ausgeführt und bieten damit maximale Gestaltungsfreiheit. Böden, Fliesen und Innentüren werden nicht ausgeführt, sodass künftige Eigentümer die Materialien und Oberflächen ganz nach ihren Vorstellungen wählen können. Die Wohnungseingangstüren sind bereits mit Holzstöcken und Türblättern versehen, während die Innentüren später individuell ergänzt werden können – die Stahlzargen sind bauseits bereits vorhanden. Diese Ausführung bietet die Möglichkeit, den eigenen Stil konsequent umzusetzen und die Wohnung von Anfang an nach persönlichen Wünschen zu gestalten.
Auch die technische Ausstattung ist auf moderne Ansprüche abgestimmt. Es besteht die Möglichkeit, die Wohneinheiten an das Kabel-TV-Netz der Stadtwerke Imst anzuschließen. Darüber hinaus können über diesen Anschluss auch Internet- und Telefondienste genutzt werden. Die entsprechenden technischen Voraussetzungen werden vom Bauträger geschaffen, sodass einer zuverlässigen digitalen Anbindung nichts im Wege steht.
Für E-Mobilität ist ebenfalls vorgesorgt: Die überdachten Stellplätze sind mit einer Lehrverrohrung für E-Ladestationen ausgestattet. Damit sind die Voraussetzungen geschaffen, Elektrofahrzeuge bequem und zukunftssicher zu laden. Ausreichend Parkmöglichkeiten für die Bewohner stehen zur Verfügung, und für zusätzlichen Stauraum ist durch ein eigenes Kellerabteil für jede Einheit gesorgt.
Das Projekt zeichnet sich durch seine überschaubare Größe aus. Mit nur sechs Wohneinheiten entsteht ein angenehmes, persönliches Wohnumfeld, das Privatsphäre und Nachbarschaft in ausgewogenem Verhältnis bietet. Hier wohnt man ruhig, sicher und dennoch zentral – ein idealer Rückzugsort, der gleichzeitig die Vorzüge städtischer Infrastruktur bietet.
Dieses Neubauprojekt vereint moderne Architektur, energieeffiziente Technik und hochwertige Bauweise mit einem durchdachten Raumkonzept und einer ruhigen Lage. Die Edelrohbau-Ausführung bietet Ihnen die Möglichkeit, Ihre Wohnung individuell zu gestalten und ein Zuhause zu schaffen, das genau zu Ihrem Lebensstil passt.
LAGEBESCHREIBUNG:
Die Wohnlage in Imst bietet eine ruhige und sonnige Atmosphäre, eingebettet in eine überwiegend Wohn‑ und Waldrandzone, mit schönen Ausblicken auf die umliegende Bergwelt. Infrastruktur wie Geschäfte, Busverbindungen und Versorgungseinrichtungen sind in kurzer Fahr- oder Gehzeit erreichbar, Buslinien und Haltestellen werden aktuell weiter ausgebaut. Freizeitmöglichkeiten sind vielfältig: Das Sportzentrum Imst inklusive Freibad, das Schwimmbad, die Imster Bergbahnen und zahlreiche Wanderwege in der Umgebung bieten für Familien und sportlich Aktive gute Optionen. Zudem sind Spielplätze und grüne Erholungsflächen in der Nähe vorhanden, was besonders für Kinder und Erholungssuchende attraktiv ist.
ECKDATEN:
Objekttyp: Neubauprojekt mit 6 Wohnungen
Etagen: UG, EG, OG, DG
Personenaufzug: nicht vorhanden
Heizung | Befeuerung: Fußbodenheizung | Zentralheizung | Luftwärmepumpe
Energieausweis: gültig bis 28.09.2032
HWB Ref, SK: 42,8 kWh/m²a (Klasse B)
fGEE, SK: 0,57 (Klasse A+)
Grundbuch KG 80002 Imst | EZ 3695 | Gst.-Nr. 4461
Grundstücksfläche: 854 m²
Widmung: Wohngebiet
Verfügbarkeit: nach Vereinbarung
Haben wir Ihr Interesse geweckt? Dann kontaktieren Sie uns gerne für weitere Informationen oder vereinbaren Sie einen Besichtigungstermin. Überzeugen Sie sich selbst von der Qualität, der Lage und dem besonderen Wohngefühl dieses Projekts in Imst – ein Ort, an dem Sie sich langfristig wohlfühlen werden.
Modernes Neubauprojekt mit nur sechs Wohneinheiten in bester Wohnlage von Imst
In bester Wohnlage von Imst wurde kürzlich ein modernes Neubauprojekt mit nur sechs Wohneinheiten fertiggestellt – und die Gartenwohnung Top 1 könnte Ihr neues Zuhause werden. Die Wohnung überzeugt durch eine durchdachte Raumaufteilung, große Fensterflächen und helle Wohnräume, die ein angenehmes Wohngefühl schaffen. Ein privater Balkon, eine Terrasse oder ein Garten laden zum Entspannen und Genießen ein. Das Gebäude wurde in hochwertiger, energieeffizienter Bauweise errichtet. Die Beheizung erfolgt zentral über eine Luftwärmepumpe, die Wärmeverteilung über eine komfortable Fußbodenheizung. Fenster und Balkontüren in Holz-Alu-Ausführung mit dreifacher Isolierverglasung sorgen für hervorragende Dämmwerte und ein modernes Erscheinungsbild.
Die Wohnung wird im Edelrohbau übergeben – Böden, Fliesen und Innentüren können Sie ganz nach Ihrem Geschmack umsetzen. So gestalten Sie Ihr neues Zuhause individuell und persönlich. Eine bereits verbaute Eingangstür sowie vorbereitete Zargen erleichtern die spätere Fertigstellung. Zur Wohnung gehören ein eigenes Kellerabteil und ein überdachter Stellplatz, der bereits für eine E-Ladestation vorgerüstet ist. Internet, Telefon und Kabel-TV können über das Netz der Stadtwerke Imst bezogen werden. Die Lage im reinen Wohngebiet bietet Ruhe und Sicherheit, während Schulen, Einkaufsmöglichkeiten und Freizeitangebote schnell erreichbar sind. Hier wohnen Sie modern, zentral und dennoch ruhig – ein Zuhause mit Zukunft in bester Imster Lage.
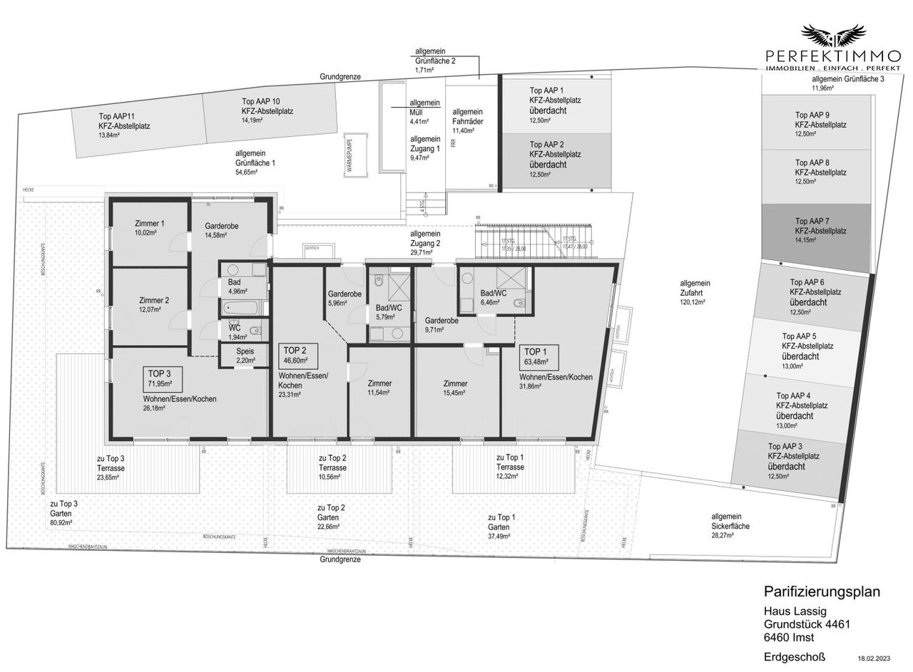
WOHNUNG:
Wohnungstyp: Gartenwohnung
Stockwerk: Erdgeschoß
Zimmer: 2
RAUMAUFTEILUNG:
Garderobe: 9,71 m²
Bad/WC: 6,46 m²
Zimmer: 15,45 m²
Wohnen/Essen/Kochen: 31,86 m²
Wohnfläche: 63,48 m²
ZUBEHÖR:
Terrasse: 12,32 m²
Garten: 37,49 m²
Keller: 4,25 m²
KAUFPREIS:
Wohnung: € 420.000,00
Abstellplatz überdacht: € 25.000,00
Haben wir Ihr Interesse geweckt? Wir freuen uns auf Ihre Kontaktaufnahme und zeigen Ihnen dieses exklusive Neubauprojekt gerne persönlich!
IHRE ANSPRECHPARTNERIN:
Frau Barbara Lechleitner
geprüfte Immobilienmaklerin
Mobil: +43 650 9805332
E-Mail: b.lechleitner@perfektimmo.at
www.perfektimmo.at
NEBENKOSTEN:
Maklerhonorar: 3,6 % inkl. USt
Vertragserrichtungskosten: ca. 2 % netto zzgl. USt zzgl. Barauslagen
Grunderwerbsteuer: 3,5 %
Grundbuchseintragung: 1,1 %
Alle Angaben nach bestem Wissen. Irrtum und Zwischenverkauf vorbehalten. Dieses Exposé ist eine Vorinformation, als Rechtsgrundlage gilt alleine der abgeschlossene Kaufvertrag. §15 der Maklerverordnung gilt als vereinbart.
Weitere tolle Angebote finden Sie unter: https://www.perfektimmo.at/angebote
Der Vermittler ist als Doppelmakler tätig.
Infrastruktur / Entfernungen
Gesundheit
Arzt <1.000m
Apotheke <1.500m
Klinik <5.500m
Kinder & Schulen
Schule <1.500m
Kindergarten <1.500m
Nahversorgung
Supermarkt <1.500m
Bäckerei <1.500m
Einkaufszentrum <4.000m
Sonstige
Bank <1.500m
Geldautomat <2.000m
Post <2.000m
Polizei <2.000m
Verkehr
Bus <500m
Autobahnanschluss <1.000m
Bahnhof <4.500m
Angaben Entfernung Luftlinie / Quelle: OpenStreetMap
Objektdaten
Ausstattung
- Fahrradraum
- Fußbodenheizung
- Luftwärmepumpe
- Ausrichtung Balkon/Terrasse - Süd
- Flachdach
- Massiv Bauweise
Zustand
- Zustand
- ERSTBEZUG
- Baujahr
- 2025
- Alter
- NEUBAU
- HWB
- 42.8 kWh/m² pro Jahr
- Klasse HWB
- B
- fGEE
- 0.57
- Klasse fGEE
- A+
Flächen
- Anzahl der Zimmer
- 2
- Anzahl der Badezimmer
- 1
- Anzahl der sep. WCs
- 1
- Anzahl der Terrassen
- 1
- Stellplätze
- 1
- Wohnfläche
- 63m²
- Gartenfläche
- 37m²
- Kellerfläche
- 4m²
- Terrassenfläche
- 1m²
Kosten
- Kaufpreis Brutto
- € 420.000,00
Verwaltung
- Verfügbar ab
- nach Vereinbarung
Wohnungen zum Kaufen im Umkreis von Imst
Wohnungen zum Kaufen im Umkreis von Imst
Wohnungen zum Kaufen in Österreich
Andere Besucher suchen nach...
- Grundstücke kaufen in 3400 Weidlingbach
- Wohnungen kaufen in 4663 Laakirchen
- Häuser in 7471 Rechnitz
- Wohnungen in 2410 Hainburg an der Donau
- Häuser kaufen in 2432 Schwadorf
- Wohnungen kaufen in 3002 Purkersdorf
- Häuser in 3150 Wilhelmsburg
- Wohnungen kaufen in 3470 Engelmannsbrunn
- Grundstücke kaufen im Bezirk Mattersburg
- Grundstücke kaufen im Bezirk Gmunden