| DREI ZIMMER | NÄHE ERHOLUNGSGEBIET "SEESCHLACHT" | 5 MINUTEN ZUM BAHNHOF | BALKON
Beschreibung
Highlights
-
Großer Balkon mit Südausrichtung
-
Personenaufzug im Haus
-
Eigener Auto-Stellplatz
-
Sanierung des Hauses im Gange – Fertigstellung Mitte des Jahres
-
Separates Küchenzimmer mit Essbereich
-
Kellerabteil & Waschküche
Ein Darlehen von ca. 50.000 € wird monatlich getilgt, der Hauptwohnsitz muss gemeldet sein, oder Darlehen vorzeitig zurückzahlen.
Informationen zum Objekt & Ausstattung
Diese gut geschnittene 3-Zimmer-Wohnung befindet sich in einem gepflegten Mehrparteienhaus, das aktuell umfassend saniert wird. Die Fertigstellung der Sanierung ist für Mitte dieses Jahres geplant, was die Immobilie langfristig aufwertet.
Die Wohnung liegt im 2. Geschoss...
Highlights
Großer Balkon mit Südausrichtung
Personenaufzug im Haus
Eigener Auto-Stellplatz
Sanierung des Hauses im Gange – Fertigstellung Mitte des Jahres
Separates Küchenzimmer mit Essbereich
Kellerabteil & Waschküche
Ein Darlehen von ca. 50.000 € wird monatlich getilgt, der Hauptwohnsitz muss gemeldet sein, oder Darlehen vorzeitig zurückzahlen.
Informationen zum Objekt & Ausstattung
Diese gut geschnittene 3-Zimmer-Wohnung befindet sich in einem gepflegten Mehrparteienhaus, das aktuell umfassend saniert wird. Die Fertigstellung der Sanierung ist für Mitte dieses Jahres geplant, was die Immobilie langfristig aufwertet.
Die Wohnung liegt im 2. Geschoss und ist bequem über einen Personenaufzug erreichbar. Sie verfügt über ein modernisiertes Heizsystem (Buderus-Therme) sowie einen großzügigen Balkon, der für viel Tageslicht sorgt.
Die Ausstattung ist gepflegt, jedoch teilweise im Retro-Stil der 70er/80er Jahre, was bei einer Renovierung kreativen Spielraum bietet. Badezimmer und Küche sind funktional, die Bodenbeläge und Wandverkleidungen in gutem Zustand.
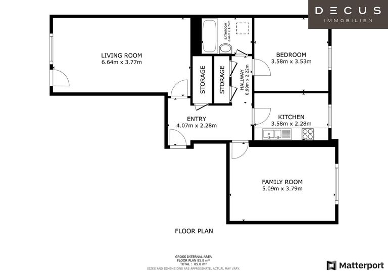
Raumaufteilung
Wohnzimmer mit Zugang zum Balkon
Schlafzimmer
Weiteres Zimmer (z. B. Büro, Kinderzimmer)
Separate Küche mit gemütlicher Essecke
Badezimmer mit Badewanne und Duschabtrennung
Flur mit Stauraummöglichkeiten
- Kellerabteil zur zusätzlichen Lagerung
- WC getrennt
Lagebeschreibung
Die Wohnung befindet sich in einer ruhigen Wohngegend mit guter Infrastruktur. Einkaufsmöglichkeiten, öffentliche Verkehrsmittel sowie Schulen und Ärzte sind schnell erreichbar. Zum Bahnhof sind es ca. 5 Gehminuten, wo alle 15 Minuten meistens ein Zug nach Wien fährt.
Den Hauptplatz erreicht man in 15 Gehminuten mit Bäcker, Post, Gemeindeamt, Apotheke, Billa, uvm.
Wir weisen darauf hin, dass zwischen dem Vermittler und dem zu vermittelnden Dritten ein familiäres oder wirtschaftliches Naheverhältnis besteht.
Der Vermittler ist als Doppelmakler tätig.
DECUS Immobilien GmbH – Wir beleben Räume
Für weitere Informationen und Besichtigungen steht Ihnen gerne Herr Matthias Lippert-Primus unter der Mobilnummer +43 660 71 662 05 und per E-Mail unter lippert@decus.at persönlich zur Verfügung.
www.decus.at | office@decus.at
Wichtige Informationen
Bitte beachten Sie, dass per 13.06.2014 eine neue Richtlinie für Fernabsatz- und Auswärtsgeschäfte in Kraft getreten ist.
Ab 1.4.2024 entfallen die Grundbuchs- und Pfandrechtseintragungsgebühren vorübergehend für Eigenheime bis zu einer Bemessungsgrundlage von EUR 500.000,-. Voraussetzung ist das dringende Wohnbedürfnis, ausgenommen davon sind vererbte oder geschenkte Immobilien. Die Befreiung ist jedoch für den Einzelfall zu prüfen, DECUS Immobilien übernimmt hierzu keine Haftung.
Ab 01.07.2023 gilt das Erstauftraggeber-Prinzip bei Wohnungsmietverträgen, ausgenommen davon sind Dienst-/Natural-/Werkswohnungen. Wir dürfen gem. § 17 Maklergesetz darauf hinweisen, dass wir auf die Doppelmaklertätigkeit gem. § 5 Maklergesetz bei Wohnungsmietverträgen verzichten und nur noch einseitig tätig sind (bei den restlichen Vermittlungsarten nicht) und ein wirtschaftliches Naheverhältnis zu unseren Auftraggebern besteht.
Im Falle eines Abschlusses mit Ihnen oder einem von Ihnen namhaft gemachten Dritten bzw. bei beidseitiger Willensübereinstimmung beträgt unser Honorar (lt. Honorarverordnung für Immobilienmakler) 2 Bruttomonatsmieten (BMM) bei Dienst-/Natural-/Werkwohnungen sowie Suchaufträgen, 3 BMM bei Gewerbe-, PKW-, Keller- und Lagermietverträgen sowie bei Kaufobjekten 3 % des Kaufpreises, zuzüglich der gesetzlichen Umsatzsteuer.
Dieses Objekt wird Ihnen unverbindlich und freibleibend angeboten. Oben angeführte Angaben basieren auf Informationen und Unterlagen des Eigentümers und sind unsererseits ohne Gewähr.
Nähere Informationen sowie unsere AGBs und die Nebenkostenübersichtsblatt finden Sie auf unserer Homepage www.decus.at unter "Service" - "Rechtliches zum FAGG" sowie im Anhang der zugesendeten Objekt-Exposés!
Infrastruktur / Entfernungen
Gesundheit
Arzt <750m
Apotheke <750m
Klinik <5.250m
Krankenhaus <3.000m
Kinder & Schulen
Schule <500m
Kindergarten <500m
Universität <1.750m
Höhere Schule <5.250m
Nahversorgung
Supermarkt <500m
Bäckerei <750m
Einkaufszentrum <1.500m
Sonstige
Bank <750m
Geldautomat <750m
Post <750m
Polizei <500m
Verkehr
Bus <250m
Straßenbahn <2.500m
U-Bahn <6.000m
Bahnhof <750m
Autobahnanschluss <2.500m
Angaben Entfernung Luftlinie / Quelle: OpenStreetMap
Objektdaten
Ausstattung
- Bad mit Badewanne
- Einbauküche
- Etage Heizung
- Befeuerung mit Gas
- Personen Fahrstuhl
Dokumente / Links
Zustand
- HWB
- 64.02 kWh/m² pro Jahr
- Klasse HWB
- B
- fGEE
- 1.32
Flächen
- Anzahl der Zimmer
- 3
- Anzahl der Badezimmer
- 1
- Anzahl der sep. WCs
- 1
- Anzahl der Balkone
- 1
- Wohnfläche
- 79m²
- Nutzfläche
- 79m²
Kosten
- Kaufpreis Brutto
- € 260.000,00
Wohnungen zum Kaufen im Umkreis von Langenzersdorf
- Bezirk Gemeindebezirk Döbling
- Bezirk Gemeindebezirk Döbling
- Bezirk Gemeindebezirk Döbling
- Bezirk Gemeindebezirk Floridsdorf
- Bezirk Gemeindebezirk Floridsdorf
- Bezirk Gemeindebezirk Floridsdorf
- Bezirk Gemeindebezirk Brigittenau
- Bezirk Gemeindebezirk Brigittenau
- Bezirk Gemeindebezirk Brigittenau
- Bezirk Gemeindebezirk Währing
Wohnungen zum Kaufen im Umkreis von Langenzersdorf
Wohnungen zum Kaufen in Österreich
Andere Besucher suchen nach...
- Grundstücke kaufen in 3400 Weidlingbach
- Wohnungen kaufen in 4663 Laakirchen
- Häuser in 7471 Rechnitz
- Wohnungen in 2410 Hainburg an der Donau
- Häuser kaufen in 2432 Schwadorf
- Wohnungen kaufen in 3002 Purkersdorf
- Häuser in 3150 Wilhelmsburg
- Wohnungen kaufen in 3470 Engelmannsbrunn
- Grundstücke kaufen im Bezirk Mattersburg
- Grundstücke kaufen im Bezirk Gmunden