FERTIGSTELLUNG 12/2026 - Exklusive Wohnung INKLUSIVE HOCHWERTIGER SAUNA!!!
€ 425.000
€ 4.830 / m²
8962 Gröbming
-
Erstbezug
-
2026
-
Herbst/Winter 2026
Beschreibung
Von RE/MAX Nature zum Kauf angeboten wird eine tolle und sehr großzügige Neubauwohnung in Gröbming im Ortsteil Winkl. Die Lage etwas außerhalb von Gröbming (vier Autominuten vom Zentrum entfernt), in Richtung Stoderzinken, ist eine Ruheoase und bietet eine wundervolle Basis zum Wohlfühlen. Das Haus umfasst gesamt nur 5 Einheiten - alle mit durchdachten Grundrissen geplant - und wird in massiver Holzbauweise errichtet. Unzählige Sonnenstunden und eine angenehme Umgebung, verbunden mit den Gröbminger Bergen - das garantiert absolute Lebensqualität! Heimische Firmen und Professionisten werden dafür Sorge tragen, dass alles in feinster Manier ausgeführt wird und Sie als künftiger Eigentümer dauerhaft eine...
Von RE/MAX Nature zum Kauf angeboten wird eine tolle und sehr großzügige Neubauwohnung in Gröbming im Ortsteil Winkl.
Die Lage etwas außerhalb von Gröbming (vier Autominuten vom Zentrum entfernt), in Richtung Stoderzinken, ist eine Ruheoase und bietet eine wundervolle Basis zum Wohlfühlen.
Das Haus umfasst gesamt nur 5 Einheiten - alle mit durchdachten Grundrissen geplant - und wird in massiver Holzbauweise errichtet.
Unzählige Sonnenstunden und eine angenehme Umgebung, verbunden mit den Gröbminger Bergen - das garantiert absolute Lebensqualität!
Heimische Firmen und Professionisten werden dafür Sorge tragen, dass alles in feinster Manier ausgeführt wird und Sie als künftiger Eigentümer dauerhaft eine Freude mit der Immobilie haben werden.
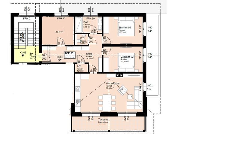
Die gegenständliche Wohnung TOP 5/2 ist im OG angesiedelt und hat bei einer Gesamtfläche von ca. 88,00m² folgende Raumaufteilung vorzuweisen:
Diele ca. 14,63m²
Sauna/Wellness ca. 10,47m²
WC ca. 1,64m²
Bad ca. 5,06m²
Abstellraum ca. 1,26m²
Zimmer 1 ca. 12,73m²
Zimmer 2 ca. 11,70m²
Wohnküche ca. 30,51m²
Terrasse ca. 10,00m²
Keller ca. 6,85m²
Zur tatsächlichen Ausführung vom Raum mit 10,47m² (Sauna/Wellness) können derzeit auch noch Alternativen zur Sauna überlegt werden:
Variante 1: als 3. Schlafzimmer
Variante 2: als großzügiges Badezimmer (und vielleicht das kleine Badezimmer als Sauna), je nach Größen und Inventar mit entsprechendem Aufpreis
Generell sind Anpassungen des Grundrisses derzeit grundsätzlich noch möglich und können mit dem Bauträger bezüglich Machbarkeit und Kosten besprochen werden.
HINWEIS: Das Angebot ist ein NETTOPREIS-Angebot für Anleger (Vermietung, touristische Vermietung)!
Für den Fall der touristischen Vermietung steht eine erfahrene einheimische Agentur zur Beauftragung bereit, beste Umsätze sind garantiert!
Für Käufer ohne Anlegerabsichten würde ein Kaufpreis in Höhe von € 449.000.- zur Verrechnung gelangen, statt der Sauna jedoch mit einem zusätzlichen Zimmer.
Ein Carport-Stellplatz muss gegen den Aufpreis von € 15.000.- bzw. € 16.000.- dazu gekauft werden; ein Freiparker ist im Aufpreis mit inkludiert
Ein Kaminanschluss ist gegen den Aufpreis von € 4.000.- bzw. € 4.500.- möglich.
Erfüllen Sie sich Ihren Traum von einer tollen Wohnung im wunderschönen Gröbming!
Ein Zweit-, Neben- oder Ferienwohnsitz wird vonseiten der Gemeinde ausdrücklich nicht gestattet!
Auf ein wirtschaftliches Naheverhältnis von RE/MAX Nature zum Abgeber wird ausdrücklich hingewiesen!
Die Marktgemeinde Gröbming ist nicht umsonst der Ort mit einem der größten Bevölkerungszuwächse im Ennstal: eine ausgezeichnete Infrastruktur, ein umfangreiches Vereins- und Freizeitangebot, aber nicht zuletzt die zentrale Lage im Tal machen es zu einem besonders lebenswerten Fleckchen.
Folgende Einrichtungen/ Angebote sind geboten:
katholische und evangelische Kirche
Einkaufszentrum (Pizzeria, Frisör, Bäckerei, Post, Florist, Supermarkt etc.)
Kindergarten, Volksschule, Mittelschule, Fachschule für Land- und Ernährungswirtschaft
ausgezeichnete Speiserestaurants
hauseigener Abenteuerberg (Stoderzinken) mit Zipline
im Winter Langlaufloipe
im Sommer unzählige Wander- und Radwege
Wenn Sie Fragen haben oder eine Besichtigung machen möchten, rufen Sie bitte einfach an oder schreiben uns eine E-Mail.
PS BITTE BEACHTEN SIE, DASS WIR AUFGRUND DER NACHWEISPFLICHT GEGENÜBER DEM EIGENTÜMER NUR ANFRAGEN UNTER ANGABE DER VOLLSTÄNDIGEN ANSCHRIFT SAMT TELEFONNUMMER BEARBEITEN KÖNNEN, DIESEN ANFORDERUNGEN NICHT GERECHT WERDENDE ANFRAGEN MÜSSEN LEIDER UNBEANTWORTET BLEIBEN!
Wir weisen darauf hin, dass zwischen dem Vermittler und dem zu vermittelnden Dritten ein familiäres oder wirtschaftliches Naheverhältnis besteht.
Der Vermittler ist als Doppelmakler tätig.
Die Lage etwas außerhalb von Gröbming (vier Autominuten vom Zentrum entfernt), in Richtung Stoderzinken, ist eine Ruheoase und bietet eine wundervolle Basis zum Wohlfühlen.
Das Haus umfasst gesamt nur 5 Einheiten - alle mit durchdachten Grundrissen geplant - und wird in massiver Holzbauweise errichtet.
Unzählige Sonnenstunden und eine angenehme Umgebung, verbunden mit den Gröbminger Bergen - das garantiert absolute Lebensqualität!
Heimische Firmen und Professionisten werden dafür Sorge tragen, dass alles in feinster Manier ausgeführt wird und Sie als künftiger Eigentümer dauerhaft eine Freude mit der Immobilie haben werden.
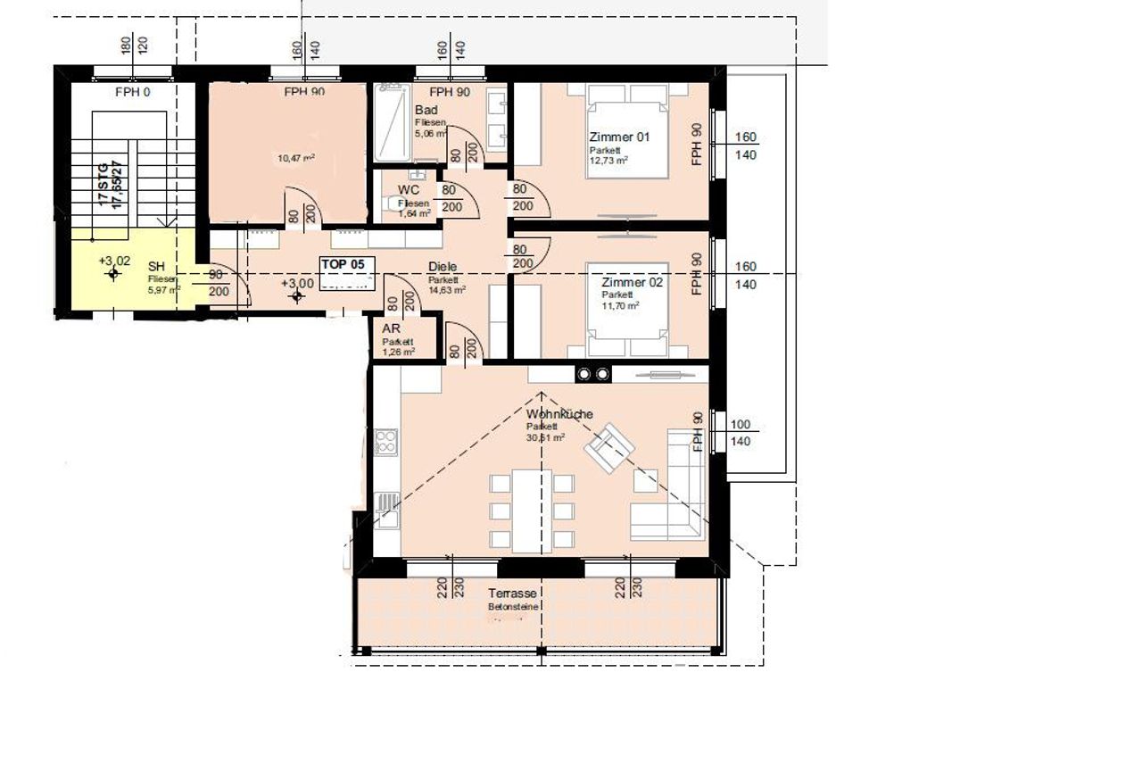
Die gegenständliche Wohnung TOP 5/2 ist im OG angesiedelt und hat bei einer Gesamtfläche von ca. 88,00m² folgende Raumaufteilung vorzuweisen:
Diele ca. 14,63m²
Sauna/Wellness ca. 10,47m²
WC ca. 1,64m²
Bad ca. 5,06m²
Abstellraum ca. 1,26m²
Zimmer 1 ca. 12,73m²
Zimmer 2 ca. 11,70m²
Wohnküche ca. 30,51m²
Terrasse ca. 10,00m²
Keller ca. 6,85m²
Zur tatsächlichen Ausführung vom Raum mit 10,47m² (Sauna/Wellness) können derzeit auch noch Alternativen zur Sauna überlegt werden:
Variante 1: als 3. Schlafzimmer
Variante 2: als großzügiges Badezimmer (und vielleicht das kleine Badezimmer als Sauna), je nach Größen und Inventar mit entsprechendem Aufpreis
Generell sind Anpassungen des Grundrisses derzeit grundsätzlich noch möglich und können mit dem Bauträger bezüglich Machbarkeit und Kosten besprochen werden.
HINWEIS: Das Angebot ist ein NETTOPREIS-Angebot für Anleger (Vermietung, touristische Vermietung)!
Für den Fall der touristischen Vermietung steht eine erfahrene einheimische Agentur zur Beauftragung bereit, beste Umsätze sind garantiert!
Für Käufer ohne Anlegerabsichten würde ein Kaufpreis in Höhe von € 449.000.- zur Verrechnung gelangen, statt der Sauna jedoch mit einem zusätzlichen Zimmer.
Ein Carport-Stellplatz muss gegen den Aufpreis von € 15.000.- bzw. € 16.000.- dazu gekauft werden; ein Freiparker ist im Aufpreis mit inkludiert
Ein Kaminanschluss ist gegen den Aufpreis von € 4.000.- bzw. € 4.500.- möglich.
Erfüllen Sie sich Ihren Traum von einer tollen Wohnung im wunderschönen Gröbming!
Ein Zweit-, Neben- oder Ferienwohnsitz wird vonseiten der Gemeinde ausdrücklich nicht gestattet!
Auf ein wirtschaftliches Naheverhältnis von RE/MAX Nature zum Abgeber wird ausdrücklich hingewiesen!
Die Marktgemeinde Gröbming ist nicht umsonst der Ort mit einem der größten Bevölkerungszuwächse im Ennstal: eine ausgezeichnete Infrastruktur, ein umfangreiches Vereins- und Freizeitangebot, aber nicht zuletzt die zentrale Lage im Tal machen es zu einem besonders lebenswerten Fleckchen.
Folgende Einrichtungen/ Angebote sind geboten:
katholische und evangelische Kirche
Einkaufszentrum (Pizzeria, Frisör, Bäckerei, Post, Florist, Supermarkt etc.)
Kindergarten, Volksschule, Mittelschule, Fachschule für Land- und Ernährungswirtschaft
ausgezeichnete Speiserestaurants
hauseigener Abenteuerberg (Stoderzinken) mit Zipline
im Winter Langlaufloipe
im Sommer unzählige Wander- und Radwege
Wenn Sie Fragen haben oder eine Besichtigung machen möchten, rufen Sie bitte einfach an oder schreiben uns eine E-Mail.
PS BITTE BEACHTEN SIE, DASS WIR AUFGRUND DER NACHWEISPFLICHT GEGENÜBER DEM EIGENTÜMER NUR ANFRAGEN UNTER ANGABE DER VOLLSTÄNDIGEN ANSCHRIFT SAMT TELEFONNUMMER BEARBEITEN KÖNNEN, DIESEN ANFORDERUNGEN NICHT GERECHT WERDENDE ANFRAGEN MÜSSEN LEIDER UNBEANTWORTET BLEIBEN!
Wir weisen darauf hin, dass zwischen dem Vermittler und dem zu vermittelnden Dritten ein familiäres oder wirtschaftliches Naheverhältnis besteht.
Der Vermittler ist als Doppelmakler tätig.
| Angaben gemäß gesetzlichem Erfordernis: | |||
| Heizwärmebedarf: | 55.9 kWh/(m²a) | ||
| Klasse Heizwärmebedarf: | C | ||
| Faktor Gesamtenergieeffizienz: | 0.58 | ||
| Klasse Faktor Gesamtenergieeffizienz: | A+ | ||
Objektdaten
Ausstattung
- Unterkellert
- Zentralheizung
- Erdwärme
- Aussichtslage
- Aussichtslage Unverbaubar
- Dorfrand
- Grüne Lage
- Ländliche Lage
- Sonstiges
- Sonnige Lage
- Villengegend
- Zentralheizung mit Wärmepumpe
Zustand
- Zustand
- ERSTBEZUG
- Baujahr
- 2026
- Alter
- NEUBAU
Flächen
- Anzahl der Zimmer
- 3
- Anzahl der Schlafzimmer
- 2
- Anzahl der Badezimmer
- 1
- Anzahl der sep. WCs
- 2
- Anzahl der Terrassen
- 1
- Stellplätze
- 1
- Wohnfläche
- 88m²
- Kellerfläche
- 7m²
- Terrassenfläche
- 1m²
Kosten
- Kaufpreis
- € 425.000,00
Verwaltung
- Verfügbar ab
- Herbst/Winter 2026
Wohnungen zum Kaufen im Umkreis von Gröbming
Wohnungen zum Kaufen im Umkreis von Gröbming
Wohnungen zum Kaufen in Österreich
Andere Besucher suchen nach...
- Grundstücke kaufen in 3400 Weidlingbach
- Wohnungen kaufen in 4663 Laakirchen
- Häuser in 7471 Rechnitz
- Wohnungen in 2410 Hainburg an der Donau
- Häuser kaufen in 2432 Schwadorf
- Wohnungen kaufen in 3002 Purkersdorf
- Häuser in 3150 Wilhelmsburg
- Wohnungen kaufen in 3470 Engelmannsbrunn
- Grundstücke kaufen im Bezirk Mattersburg
- Grundstücke kaufen im Bezirk Gmunden