TOP 3 IST VERGEBEN: NEUBAUPROJEKT IN TRAUMLAGE
€ 499.000
€ 4.586 / m²
8962 Gröbming
-
Erstbezug
-
ca. 2026
Beschreibung
Hiermit dürfen wir Ihnen ein wirklich tolles Neubauprojekt vorstellen, für welches wir geeignete Käufer suchen : Gelegen etwas außerhalb von Gröbming (vier Autominuten vom Zentrum entfernt), in Richtung Stoderzinken und im Ortsteil Winkl, werden hier fünf durchdachte und klug ausgerichete Neubauwohnungen in massiver Holzbauweise entstehen. Die Lage des Grundstücks kann sich sehen lassen: unzählige Sonnenstunden und eine angenehme Umgebung, verbunden mit den Gröbminger Bergen - das garantiert Lebensqualität! Heimische Firmen und Professionisten werden dafür Sorge tragen, dass alles in feinster Manier ausgeführt wird und Sie sich als künftiger Bewohner entsprechend wohlfühlen werden. Erfüllen Sie sich Ihren Traum von einem Heim...
Hiermit dürfen wir Ihnen ein wirklich tolles Neubauprojekt vorstellen, für welches wir geeignete Käufer suchen :
Gelegen etwas außerhalb von Gröbming (vier Autominuten vom Zentrum entfernt), in Richtung Stoderzinken und im Ortsteil Winkl, werden hier fünf durchdachte und
klug ausgerichete Neubauwohnungen in massiver Holzbauweise entstehen.
Die Lage des Grundstücks kann sich sehen lassen: unzählige Sonnenstunden und eine angenehme Umgebung, verbunden mit
den Gröbminger Bergen - das garantiert Lebensqualität!
Heimische Firmen und Professionisten werden dafür Sorge tragen, dass alles in feinster Manier ausgeführt wird und Sie sich als
künftiger Bewohner entsprechend wohlfühlen werden.
Erfüllen Sie sich Ihren Traum von einem Heim im wunderschönen Gröbming! Ein Zweit-, Neben- oder Ferienwohnsitz wird
vonseiten der Gemeinde Gröbming ausdrücklich nicht gestattet!
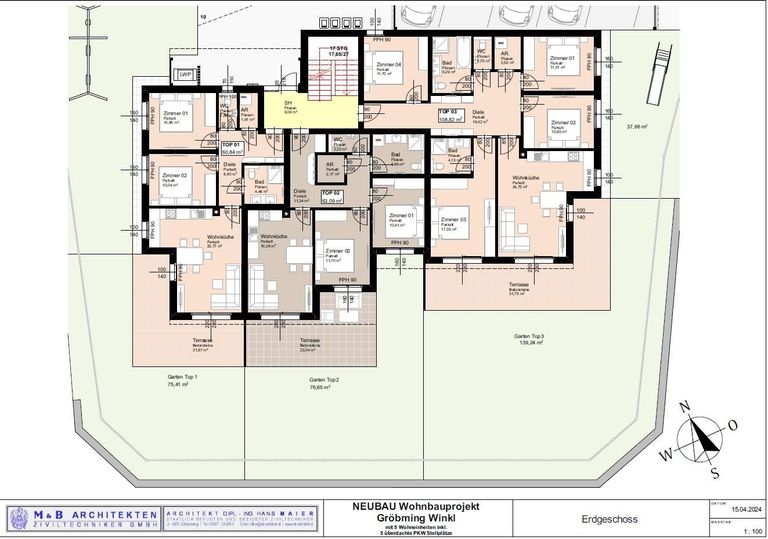
Die gegenständliche Wohnung TOP 3 ist im EG angesiedelt und hat bei einer Gesamtfläche von ca. 108,44m² folgende Raumaufteilung
vorzuweisen:
Diele ca. 18,10m²
WC ca. 1,80m²
Bad 1 ca. 6,29m²
Abstellraum ca. 2,42m²
Zimmer 1 ca. 11,01m²
Zimmer 2 ca. 10,85m²
Zimmer 3 ca. 17,39m²
Zimmer 4 ca. 11,7m²
Bad 2 ca. 4,13m²
Wohnküche ca. 24,75m²
Terrasse ca. 31,75m²
Garten ca. 139,24m²
Keller ca. 6,85m²
Ein Carport-Stellplatz muss gegen den Aufpreis von €16.000,- dazugekauft werden; ein Freiparker ist im Aufpreis inkludiert.
Ein Kaminanschluss ist gegen den Aufpreis von €4.500,- brutto möglich.
Grundrissänderungen sind, wenn sie früh genug angefragt werden, im Rahmen der Möglichkeiten noch ausführbar.
ALS BESONDERES ZUCKERL GEWÄHRT DER BAUTRÄGER JUNGFAMILIEN, DIE IHR ERSTES EIGENHEIM FINANZIEREN MÖCHTEN, BEI EINEM KAUF VOR DEM BAUSTART EINEN SONDERRABATT - GENAUE INFOS AUF ANFRAGE.
Auf ein wirtschaftliches Naheverhältnis von RE/MAX Nature zum Abgeber wird ausdrücklich hingewiesen!
Die Marktgemeinde Gröbming ist nicht umsonst der Ort mit einem der größten Bevölkerungszuwächse im Ennstal: eine ausgezeichnete Infrastruktur, ein umfangreiches Vereins- und Freizeitangebot, aber nicht zuletzt die zentrale Lage im Tal machen es zu einem besonders lebenswerten Fleckchen.
Folgende Einrichtungen/ Angebote sind geboten:
katholische und evangelische Kirche
Einkaufszentrum (Pizzeria, Frisör, Bäckerei, Post, Florist, Supermarkt etc.)
Kindergarten, Volksschule, Mittelschule, Fachschule für Land- und Ernährungswirtschaft
ausgezeichnete Speiserestaurants
hauseigener Abenteuerberg (Stoderzinken) mit Zipline
im Winter Langlaufloipe
im Sommer unzählige Wander- und Radwege
Wenn Sie Fragen haben oder eine Besichtigung machen möchten, rufen Sie bitte einfach an oder schreiben uns eine E-Mail.
PS BITTE BEACHTEN SIE, DASS WIR AUFGRUND DER NACHWEISPFLICHT GEGENÜBER DEM EIGENTÜMER NUR ANFRAGEN UNTER ANGABE DER VOLLSTÄNDIGEN ANSCHRIFT SAMT TELEFONNUMMER BEARBEITEN KÖNNEN, DIESEN ANFORDERUNGEN NICHT GERECHT WERDENDE ANFRAGEN MÜSSEN LEIDER UNBEANTWORTET BLEIBEN!
Wir weisen darauf hin, dass zwischen dem Vermittler und dem zu vermittelnden Dritten ein familiäres oder wirtschaftliches Naheverhältnis besteht.
Der Vermittler ist als Doppelmakler tätig.
Gelegen etwas außerhalb von Gröbming (vier Autominuten vom Zentrum entfernt), in Richtung Stoderzinken und im Ortsteil Winkl, werden hier fünf durchdachte und
klug ausgerichete Neubauwohnungen in massiver Holzbauweise entstehen.
Die Lage des Grundstücks kann sich sehen lassen: unzählige Sonnenstunden und eine angenehme Umgebung, verbunden mit
den Gröbminger Bergen - das garantiert Lebensqualität!
Heimische Firmen und Professionisten werden dafür Sorge tragen, dass alles in feinster Manier ausgeführt wird und Sie sich als
künftiger Bewohner entsprechend wohlfühlen werden.
Erfüllen Sie sich Ihren Traum von einem Heim im wunderschönen Gröbming! Ein Zweit-, Neben- oder Ferienwohnsitz wird
vonseiten der Gemeinde Gröbming ausdrücklich nicht gestattet!
Die gegenständliche Wohnung TOP 3 ist im EG angesiedelt und hat bei einer Gesamtfläche von ca. 108,44m² folgende Raumaufteilung
vorzuweisen:
Diele ca. 18,10m²
WC ca. 1,80m²
Bad 1 ca. 6,29m²
Abstellraum ca. 2,42m²
Zimmer 1 ca. 11,01m²
Zimmer 2 ca. 10,85m²
Zimmer 3 ca. 17,39m²
Zimmer 4 ca. 11,7m²
Bad 2 ca. 4,13m²
Wohnküche ca. 24,75m²
Terrasse ca. 31,75m²
Garten ca. 139,24m²
Keller ca. 6,85m²
Ein Carport-Stellplatz muss gegen den Aufpreis von €16.000,- dazugekauft werden; ein Freiparker ist im Aufpreis inkludiert.
Ein Kaminanschluss ist gegen den Aufpreis von €4.500,- brutto möglich.
Grundrissänderungen sind, wenn sie früh genug angefragt werden, im Rahmen der Möglichkeiten noch ausführbar.
ALS BESONDERES ZUCKERL GEWÄHRT DER BAUTRÄGER JUNGFAMILIEN, DIE IHR ERSTES EIGENHEIM FINANZIEREN MÖCHTEN, BEI EINEM KAUF VOR DEM BAUSTART EINEN SONDERRABATT - GENAUE INFOS AUF ANFRAGE.
Auf ein wirtschaftliches Naheverhältnis von RE/MAX Nature zum Abgeber wird ausdrücklich hingewiesen!
Die Marktgemeinde Gröbming ist nicht umsonst der Ort mit einem der größten Bevölkerungszuwächse im Ennstal: eine ausgezeichnete Infrastruktur, ein umfangreiches Vereins- und Freizeitangebot, aber nicht zuletzt die zentrale Lage im Tal machen es zu einem besonders lebenswerten Fleckchen.
Folgende Einrichtungen/ Angebote sind geboten:
katholische und evangelische Kirche
Einkaufszentrum (Pizzeria, Frisör, Bäckerei, Post, Florist, Supermarkt etc.)
Kindergarten, Volksschule, Mittelschule, Fachschule für Land- und Ernährungswirtschaft
ausgezeichnete Speiserestaurants
hauseigener Abenteuerberg (Stoderzinken) mit Zipline
im Winter Langlaufloipe
im Sommer unzählige Wander- und Radwege
Wenn Sie Fragen haben oder eine Besichtigung machen möchten, rufen Sie bitte einfach an oder schreiben uns eine E-Mail.
PS BITTE BEACHTEN SIE, DASS WIR AUFGRUND DER NACHWEISPFLICHT GEGENÜBER DEM EIGENTÜMER NUR ANFRAGEN UNTER ANGABE DER VOLLSTÄNDIGEN ANSCHRIFT SAMT TELEFONNUMMER BEARBEITEN KÖNNEN, DIESEN ANFORDERUNGEN NICHT GERECHT WERDENDE ANFRAGEN MÜSSEN LEIDER UNBEANTWORTET BLEIBEN!
Wir weisen darauf hin, dass zwischen dem Vermittler und dem zu vermittelnden Dritten ein familiäres oder wirtschaftliches Naheverhältnis besteht.
Der Vermittler ist als Doppelmakler tätig.
| Angaben gemäß gesetzlichem Erfordernis: | |||
| Heizwärmebedarf: | 55.9 kWh/(m²a) | ||
| Klasse Heizwärmebedarf: | C | ||
| Faktor Gesamtenergieeffizienz: | 0.58 | ||
| Klasse Faktor Gesamtenergieeffizienz: | A+ | ||
Objektdaten
Ausstattung
- Unterkellert
- Zentralheizung
- Erdwärme
- Holz Bauweise
- Holz Bauweise
- Dorfrand
- Ländliche Lage
- Sonstiges
- Sonnige Lage
- Zentralheizung mit Wärmepumpe
- Holz Bauweise
- Gartennutzung
- Holz Bauweise
Zustand
- Zustand
- ERSTBEZUG
- Baujahr
- ca. 2026
- Alter
- NEUBAU
Flächen
- Anzahl der Zimmer
- 5
- Anzahl der Schlafzimmer
- 4
- Anzahl der Badezimmer
- 2
- Anzahl der sep. WCs
- 3
- Anzahl der Terrassen
- 1
- Stellplätze
- 1
- Wohnfläche
- 109m²
- Kellerfläche
- 9m²
- Terrassenfläche
- 1m²
Kosten
- Kaufpreis
- € 499.000,00
Wohnungen zum Kaufen im Umkreis von Gröbming
Wohnungen zum Kaufen im Umkreis von Gröbming
Wohnungen zum Kaufen in Österreich
Andere Besucher suchen nach...
- Grundstücke kaufen in 3400 Weidlingbach
- Wohnungen kaufen in 4663 Laakirchen
- Häuser in 7471 Rechnitz
- Wohnungen in 2410 Hainburg an der Donau
- Häuser kaufen in 2432 Schwadorf
- Wohnungen kaufen in 3002 Purkersdorf
- Häuser in 3150 Wilhelmsburg
- Wohnungen kaufen in 3470 Engelmannsbrunn
- Grundstücke kaufen im Bezirk Mattersburg
- Grundstücke kaufen im Bezirk Gmunden