Wunderschönes Penthouse in sonniger und ruhiger Lage
€ 885.000
€ 8.447 / m²
8967 Haus
-
Erstbezug
-
ca. 2023
-
nach Absprache
Beschreibung
Dieser Neubau mit 4 wunderschönen, großzügigen Appartements wurde in Weißenbach/Haus errichtet. Bei der Architektur wurde ein spezielles Augenmerk auf die Kombination von alpenländischem Baustil und möglichst offenen, hellen Räumlichkeiten gelegt. Die Wohnungsgrößen sind nicht nur den heutigen Standards angepasst, vielmehr sind diese bereits zukunftsweisend geplant. Der Kaufpreis inkludiert 1 Carportplatz, 1 Aussenstellplatz, ein kleines Kellerabteil und ein allgemeiner Schiraum Die Top 4 im 1.OG hat folgende Raumaufteilung: Vorraum, 3 Schlafzimmer mit je 1 Badezimmer/Du/WC en suit, Technikraum/Abstellraum, Wohn- Ess- Küchenbereich mit Kamin, Infrarotkabine Großzügige überdachte Balkone mit Lärchendielen Zur Verfügung steht auch noch Top 3: Top 3 1.OG mit 104,77m²...
Dieser Neubau mit 4 wunderschönen, großzügigen Appartements wurde in Weißenbach/Haus errichtet.
Bei der Architektur wurde ein spezielles Augenmerk auf die Kombination von alpenländischem Baustil und möglichst offenen, hellen Räumlichkeiten gelegt.
Die Wohnungsgrößen sind nicht nur den heutigen Standards angepasst, vielmehr sind diese bereits zukunftsweisend geplant.
Der Kaufpreis inkludiert 1 Carportplatz, 1 Aussenstellplatz, ein kleines Kellerabteil und ein allgemeiner Schiraum
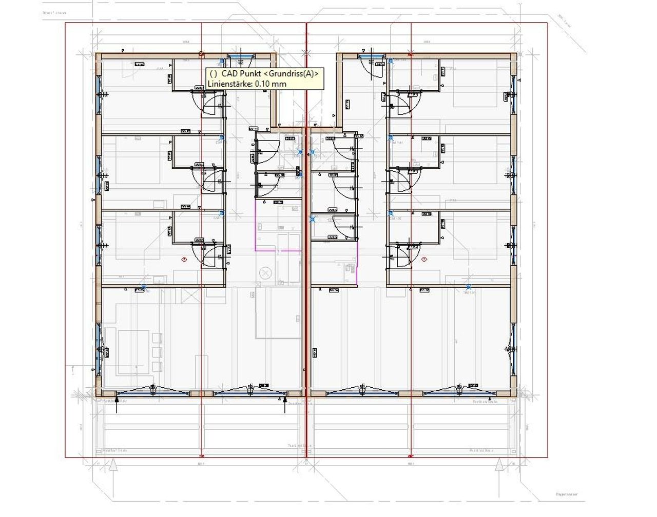
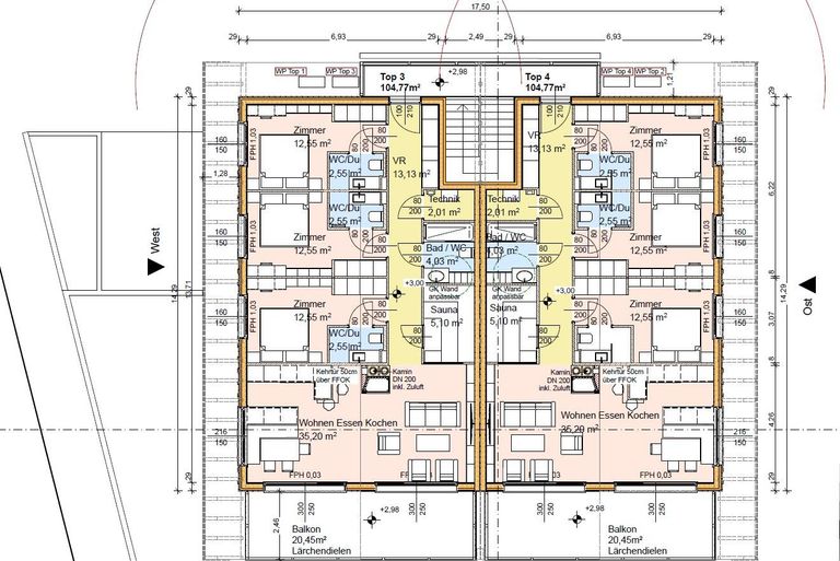
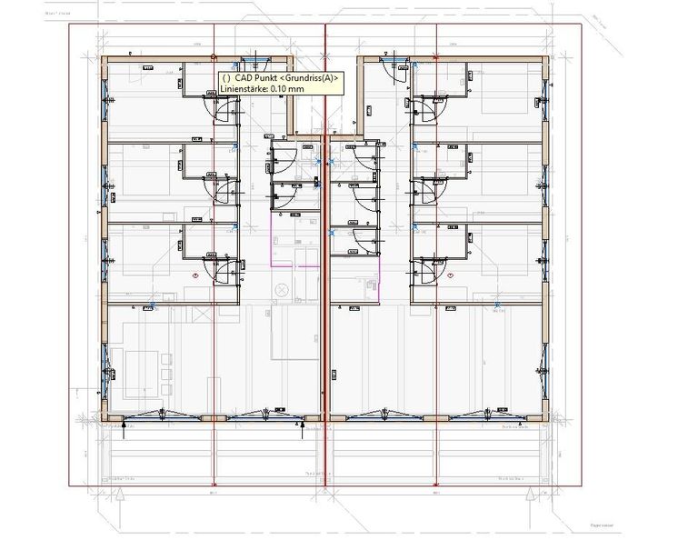
Die Top 4 im 1.OG hat folgende Raumaufteilung:
Vorraum, 3 Schlafzimmer mit je 1 Badezimmer/Du/WC en suit, Technikraum/Abstellraum, Wohn- Ess- Küchenbereich mit Kamin, Infrarotkabine
Großzügige überdachte Balkone mit Lärchendielen
Zur Verfügung steht auch noch Top 3:
Top 3 1.OG mit 104,77m² € 885.000,-
Mit dem Kauf eines Apartments werden Sie Eigentümer in einer der besten und schönsten Lagen des Alpenraums.
- Sie kaufen die Immobilie und werden dadurch grundbücherlicher Eigentümer
- Sie können die Wohnung jederzeit VERKAUFEN oder VERERBEN.
- Sämtliche Aufgaben wie Instandhaltung, Reinigung, Wartung etc. werden von einer Hausverwaltung ausgeführt.
Der solide Holzriegelbau spart langfristig Kosten und erhält somit den Wert der Immobilie.
Um unsere Umwelt zu schonen, wie auch zur Minimierung Ihrer Betriebskosten, wurde eine Photovoltaikanlage für jede der 4 Wohnungen installiert.
Alle Wohnräume wurden mit edlen Parkettböden ausgestattet.
Die Beheizung der Räume mit einer energiesparenden Fußbodenheizung ist selbstverständlich.
Eine Haltestelle für Shuttlebus oder Linienbus der Sie in die umliegenden Gemeinden fährt, befindet sich in unmittelbarer Nähe.
Nach dem Motto „wohnen, wo andere Urlaub machen“ leben Sie inmitten der grandiosen Südwände des Dachsteins und der Schladminger Tauern.
Der atemberaubende Blick auf das Bergpanorama des Hauser Kaibling und auf dem überdachten Südbalkon auf unberührte Wiesen lässt keine Wünsche offen.
Ob Familien, Sportler oder Erholungssuchende – in den Feriendörfern Haus, Weißenbach und Aich fühlen sich alle wohl. Nicht umsonst ist Haus im Ennstal seit 2014 offiziell das schönste Dorf Europas. Sommer-Erlebnis am Hauser Kaibling: E-Trial, Disc Golf, Kinderspielplätze und Erlebniswege sowie 800 Schafe, die für eine optimale ökologische Pistenpflege sorgen. Daneben zahlreiche Wander- und MTB-Touren in ganz Haus-Aich-Gössenberg. Im Winter starten Sie auf den schönsten Pisten in die 4-Berge-Skischaukel. Uriges Ambiente und Hüttengaudi am Berg - gemütliche Pferdeschlittenfahrten, Winterwanderungen, Eislaufen und Eisstockschießen im Tal - langweilig wird Ihnen bei uns ganz bestimmt nicht.
Wenn Sie Fragen haben oder eine Besichtigung wünschen rufen Sie uns bitte an oder schreiben eine E-Mail!
PS: BITTE BEACHTEN SIE, DASS WIR AUFGRUND DER NACHWEISPFLICHT GEGENÜBER DEM EIGENTÜMER NUR ANFRAGEN UNTER ANGABE DER VOLLSTÄNDIGEN ANSCHRIFT SAMT TELEFONNUMMER BEARBEITEN KÖNNEN
Bei der Architektur wurde ein spezielles Augenmerk auf die Kombination von alpenländischem Baustil und möglichst offenen, hellen Räumlichkeiten gelegt.
Die Wohnungsgrößen sind nicht nur den heutigen Standards angepasst, vielmehr sind diese bereits zukunftsweisend geplant.
Der Kaufpreis inkludiert 1 Carportplatz, 1 Aussenstellplatz, ein kleines Kellerabteil und ein allgemeiner Schiraum
Die Top 4 im 1.OG hat folgende Raumaufteilung:
Vorraum, 3 Schlafzimmer mit je 1 Badezimmer/Du/WC en suit, Technikraum/Abstellraum, Wohn- Ess- Küchenbereich mit Kamin, Infrarotkabine
Großzügige überdachte Balkone mit Lärchendielen
Zur Verfügung steht auch noch Top 3:
Top 3 1.OG mit 104,77m² € 885.000,-
Mit dem Kauf eines Apartments werden Sie Eigentümer in einer der besten und schönsten Lagen des Alpenraums.
- Sie kaufen die Immobilie und werden dadurch grundbücherlicher Eigentümer
- Sie können die Wohnung jederzeit VERKAUFEN oder VERERBEN.
- Sämtliche Aufgaben wie Instandhaltung, Reinigung, Wartung etc. werden von einer Hausverwaltung ausgeführt.
Der solide Holzriegelbau spart langfristig Kosten und erhält somit den Wert der Immobilie.
Um unsere Umwelt zu schonen, wie auch zur Minimierung Ihrer Betriebskosten, wurde eine Photovoltaikanlage für jede der 4 Wohnungen installiert.
Alle Wohnräume wurden mit edlen Parkettböden ausgestattet.
Die Beheizung der Räume mit einer energiesparenden Fußbodenheizung ist selbstverständlich.
Eine Haltestelle für Shuttlebus oder Linienbus der Sie in die umliegenden Gemeinden fährt, befindet sich in unmittelbarer Nähe.
Nach dem Motto „wohnen, wo andere Urlaub machen“ leben Sie inmitten der grandiosen Südwände des Dachsteins und der Schladminger Tauern.
Der atemberaubende Blick auf das Bergpanorama des Hauser Kaibling und auf dem überdachten Südbalkon auf unberührte Wiesen lässt keine Wünsche offen.
Ob Familien, Sportler oder Erholungssuchende – in den Feriendörfern Haus, Weißenbach und Aich fühlen sich alle wohl. Nicht umsonst ist Haus im Ennstal seit 2014 offiziell das schönste Dorf Europas. Sommer-Erlebnis am Hauser Kaibling: E-Trial, Disc Golf, Kinderspielplätze und Erlebniswege sowie 800 Schafe, die für eine optimale ökologische Pistenpflege sorgen. Daneben zahlreiche Wander- und MTB-Touren in ganz Haus-Aich-Gössenberg. Im Winter starten Sie auf den schönsten Pisten in die 4-Berge-Skischaukel. Uriges Ambiente und Hüttengaudi am Berg - gemütliche Pferdeschlittenfahrten, Winterwanderungen, Eislaufen und Eisstockschießen im Tal - langweilig wird Ihnen bei uns ganz bestimmt nicht.
Wenn Sie Fragen haben oder eine Besichtigung wünschen rufen Sie uns bitte an oder schreiben eine E-Mail!
PS: BITTE BEACHTEN SIE, DASS WIR AUFGRUND DER NACHWEISPFLICHT GEGENÜBER DEM EIGENTÜMER NUR ANFRAGEN UNTER ANGABE DER VOLLSTÄNDIGEN ANSCHRIFT SAMT TELEFONNUMMER BEARBEITEN KÖNNEN
| Angaben gemäß gesetzlichem Erfordernis: | |||
| Heizwärmebedarf: | 61.0 kWh/(m²a) | ||
| Faktor Gesamtenergieeffizienz: | 0.73 | ||
| Klasse Faktor Gesamtenergieeffizienz: | A+ | ||
Objektdaten
Ausstattung
- Vollmöbliert
- Unterkellert
- Zentralheizung
- Erdwärme
- Aussichtslage
- Aussichtslage Unverbaubar
- Vollmöbliert
- Ländliche Lage
- Sonnige Lage
- Zentralheizung mit Wärmepumpe
- Vollmöbliert
Dokumente / Links
Zustand
- Zustand
- ERSTBEZUG
- Baujahr
- ca. 2023
Flächen
- Anzahl der Zimmer
- 4
- Anzahl der Schlafzimmer
- 3
- Anzahl der Badezimmer
- 3
- Anzahl der sep. WCs
- 3
- Anzahl der Balkone
- 2
- Stellplätze
- 2
- Wohnfläche
- 105m²
- Kellerfläche
- 3m²
Kosten
- Kaufpreis
- € 885.000,00
Verwaltung
- Verfügbar ab
- nach Absprache
Wohnungen zum Kaufen in Österreich
Wohnungen zum Kaufen in Österreich
Wohnungen zum Kaufen in Österreich
Andere Besucher suchen nach...
- Grundstücke kaufen in 3400 Weidlingbach
- Wohnungen kaufen in 4663 Laakirchen
- Häuser in 7471 Rechnitz
- Wohnungen in 2410 Hainburg an der Donau
- Häuser kaufen in 2432 Schwadorf
- Wohnungen kaufen in 3002 Purkersdorf
- Häuser in 3150 Wilhelmsburg
- Wohnungen kaufen in 3470 Engelmannsbrunn
- Grundstücke kaufen im Bezirk Mattersburg
- Grundstücke kaufen im Bezirk Gmunden