Lib.at Logo
Startseite Makler Liste Gespeicherte Immobilien
Einloggen oder Registrieren Für Makler

PROVISIONSFREI!!! Große Wohneinheit in einem schönen Mehrparteienhaus!

€ 679.000
€ 3.690 / m²
8970 Schladming
  • nach Absprache

Beschreibung

Großzügig geschnittene Wohnung in Massivbauweise im Westen der Skistadt Schladming - Unmittelbare Nähe zur Planai und den Reiteralm Bergbahnen! Diese Liegenschaft bietet eine ideale Lage und Anbindung und äußerst gute Vermietungsmöglichkeit! Seit 2019 wurde die Wohneinheit an ein Vorzeigeunternehmen in unserer Region vermietet und entsprechend als Mitarbeiterunterkunft genutzt! Weitere Nutzungsmöglichkeiten sind die touristische Vermietung oder aber auch gerne Hauptwohnsitz. Die gesamte Wohneinheit erstreckt sich über grundsätzlich zwei Ebenen, bestehend aus kleiner Küche, Keller/Lagerraum, die Wohnung Top 4 im Obergeschoss und zwei weiteren Zimmer mit Bad im Halbstock und bietet insgesamt eine Wohn-/ und Nutzfläche von ca. 202m². Zusätzlich besteht die...

Großzügig geschnittene Wohnung in Massivbauweise im Westen der Skistadt Schladming - Unmittelbare Nähe zur Planai und den Reiteralm Bergbahnen!
Diese Liegenschaft bietet eine ideale Lage und Anbindung und äußerst gute Vermietungsmöglichkeit!
Seit 2019 wurde die Wohneinheit an ein Vorzeigeunternehmen in unserer Region vermietet und entsprechend als Mitarbeiterunterkunft genutzt!
Weitere Nutzungsmöglichkeiten sind die touristische Vermietung oder aber auch gerne Hauptwohnsitz.
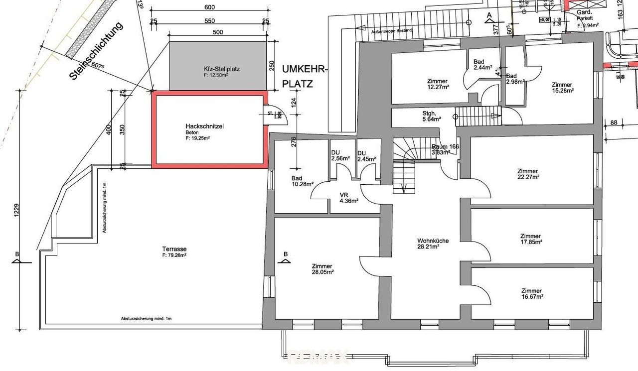
Die gesamte Wohneinheit erstreckt sich über grundsätzlich zwei Ebenen, bestehend aus kleiner Küche, Keller/Lagerraum, die Wohnung Top 4 im Obergeschoss und zwei weiteren Zimmer mit Bad im Halbstock und bietet insgesamt eine Wohn-/ und Nutzfläche von ca. 202m².
Zusätzlich besteht die Möglichkeit, eine ca. 80 m² große Westterrasse zu errichten. Die Einreichung hierfür samt positivem Baubescheid gibt es bereits.
Die Betriebskosten im Haus fallen aufgrund sehr guter Eigenverwaltung äußerst gering aus! Die letzten Jahre und auch gegenwärtig, fallen ca. 2-2,50,- Euro/m² Wohnfläche - inkl. STROM an.
Bei diesem Angebot entfallen die Maklerkosten, womit die PROVISIONSFREIHEIT gegeben ist.
Raumaufteilung:
Erdgeschoss/Halbstock:
- WC
- WC + Pissoir
- Küche
- beheizter Keller/Lagerraum
1.Obergeschoss / Wohnung Top 4:
- Vorraum
- Wohnraum ca. 28,21m²
- Zimmer 1 ca. 22,27m²
- Zimmer 2 ca. 17,85m²
- Zimmer 3 ca. 16,67m²
- Zimmer 4 ca. 28,05m²
- Vorraum 2
- Dusche
- Dusche
- Badezimmer/WC
+ Balkon südseitig
+ Option zur Errichtung Westterrasse (ca. 80m²)
1.Obergeschoss / Halbstock:
- Zimmer 5 + Bad ca. 18,26m²
- Zimmer 6 + Bad ca. 14,71m²
Nur wenige Autominuten trennen Sie vom Stadtzentrum Schladming, der Planai und der Reiteralm.
Dieses Objekt bietet ein enormes Potenzial für individuelle Gestaltung und Entwicklung.
Bushaltestelle Postbus bzw. City Bus in Fußnähe und auch der "Enns-Radweg" geht vor dem Haus vorbei.
Insgesamt und der Wohneinheit vertraglich zugehörig gibt es 6 KFZ-Abstellplätze im Freien, welche in weiterer Folge aber noch final hergestellt werden müssen.
Die berühmte Bergstadt Schladming - Austragungsort der Schi-WM 2013 - ist eine Wintersportmetropole mit Weltruf und im Feriendorf Rohrmoos heißt die Devise "vom Bett aufs Brett", denn hier befinden sich die zentralen Skiberge Planai und Hochwurzen direkt vor der Haustüre, ein riesiges Wintersport Eldorado erwartet Sie.
Abseits der Piste gibt es ein wunderschönes Langlauf Loipennetz, eine Rodelbahn, die Tag und Nacht in Betrieb ist, ein Erlebnisschwimmbad, Winterwanderwege, einen Eislaufplatz, die Indoor Sportangebote, Museen, Pferdeschlittenfahrten, Fackelwanderungen und vieles mehr. Im Sommer findet man ein riesiges Wanderwegenetz mit traumhaften Wasserlandschaften, Mountainbike Routen, Radwege, Klettern, Erlebnisbad, Golf und Minigolf, Rafting, Kulturangebote, Aktionsportarten etc. vor.
Für weitere Fragen bzw. Terminvereinbarungen rufen Sie bitte einfach an oder schreiben uns eine E-Mail.
PS: BITTE BEACHTEN SIE, DASS WIR AUFGRUND DER NACHWEISPFLICHT GEGENÜBER DEM EIGENTÜMER NUR ANFRAGEN UNTER ANGABE DER VOLLSTÄNDIGEN ANSCHRIFT SAMT TELEFONNUMMER BEARBEITEN KÖNNEN, DIESEN ANFORDERUNGEN NICHT GERECHT WERDENDE ANFRAGEN MÜSSEN LEIDER UNBEANTWORTET BLEIBEN!

Noch nichts gefunden? Wir informieren Sie über geeignete Immobilienangebote noch vor allen anderen.
Legen Sie jetzt Ihren individuellen Suchagenten unter folgendem Link an. Wir schicken Ihnen passende Immobilien exklusiv vorab zu.
Suchagent anlegen - https://remax-nature-1-zechmann-immobilien.service.immo/registrieren/de


Wir weisen darauf hin, dass zwischen dem Vermittler und dem zu vermittelnden Dritten ein familiäres oder wirtschaftliches Naheverhältnis besteht.


Der Vermittler ist als Doppelmakler tätig.


Infrastruktur / Entfernungen

Gesundheit
Arzt <3.000m
Apotheke <3.000m
Krankenhaus <3.000m
Kinder & Schulen
Schule <3.000m
Kindergarten <2.500m
Nahversorgung
Supermarkt <1.500m
Bäckerei <4.000m
Einkaufszentrum <4.000m
Sonstige
Bank <4.000m
Geldautomat <4.000m
Polizei <4.000m
Post <4.000m
Verkehr
Bus <500m
Bahnhof <2.000m
Angaben Entfernung Luftlinie / Quelle: OpenStreetMap

Objektdaten

Ausstattung

  • Kabel/SAT-TV
  • Zentralheizung
  • Fern Befeuerung

Zustand

Zustand
GEPFLEGT
Baujahr
1600
HWB
97 kWh/m² pro Jahr
Klasse HWB
D
fGEE
1.54
Klasse fGEE
C

Flächen

Anzahl der Zimmer
7
Anzahl der Badezimmer
4
Anzahl der sep. WCs
5
Anzahl der Balkone
1
Anzahl der Terrassen
1
Stellplätze
6
Wohnfläche
184m²
Kellerfläche
19m²
Terrassenfläche
1m²

Kosten

Kaufpreis Brutto
€ 679.000,00

Verwaltung

Verfügbar ab
nach Absprache