Ihr neues Zuhause, direkt beim Golfclub: stilvolle 3 Zimmerwohnung
-
Erstbezug
-
2026
Beschreibung
28 exklusive & hochwertige Eigentumswohnungen zwischen Linz, Wels & Steyr
Mit Nobile Greenville entsteht ein modernes Wohnprojekt mit insgesamt 28 stilvollen Eigentumswohnungen, die Design, Wohnkomfort und Umweltbewusstsein perfekt vereinen. In bester Lage zwischen Wels, Linz und Steyr im Herzen von Kematen an der Krems, mit optimaler Anbindung an den oberösterreichischen Zentralraum, bietet das Projekt sowohl Eigennutzern als auch Kapitalanlegern ein hochwertiges Zuhause – oder eine zukunftssichere Investition.
Wohnen mit Stil & Qualität
Die Wohnungen bieten 2 bis 4 Zimmer mit durchdachten Grundrissen und Wohnflächen zwischen ca. 48 m² und 121 m². Jede Einheit verfügt über großzügige Freiflächen – wie...
28 exklusive & hochwertige Eigentumswohnungen zwischen Linz, Wels & Steyr
Mit Nobile Greenville entsteht ein modernes Wohnprojekt mit insgesamt 28 stilvollen Eigentumswohnungen, die Design, Wohnkomfort und Umweltbewusstsein perfekt vereinen. In bester Lage zwischen Wels, Linz und Steyr im Herzen von Kematen an der Krems, mit optimaler Anbindung an den oberösterreichischen Zentralraum, bietet das Projekt sowohl Eigennutzern als auch Kapitalanlegern ein hochwertiges Zuhause – oder eine zukunftssichere Investition.
Wohnen mit Stil & Qualität
Die Wohnungen bieten 2 bis 4 Zimmer mit durchdachten Grundrissen und Wohnflächen zwischen ca. 48 m² und 121 m².
Jede Einheit verfügt über großzügige Freiflächen – wie Loggien, Balkone, Terrassen oder Eigengärten – und schafft so ein offenes Wohngefühl mit direktem Bezug zur Natur.
Die Ausstattung der Wohnungen erfüllt höchste Ansprüche:
- Fußbodenheizung mittels effizienter Fernwärme
- Photovoltaikanlage zur umweltschonenden Energiegewinnung
- Elektrische Außenbeschattung für sommerlichen Wärmeschutz
- Edler Echtholzparkett in den Wohnräumen
- Großformatige Feinsteinzeugfliesen in Bad & WC
- Moderne Badausstattung u.a. mit Keramik von Villeroy & Boch
- Schiebetüren zu Terrassen & Gärten für ein offenes Raumgefühl
Mehrwert für Gesundheit & Freitzeit
Umgeben von Natur bietet Nobile Greenville ideale Bedingungen für Freizeit & Erholung: Wandern, Radfahren, Spazierengehen – direkt vor der Haustür.
Um auch bei Schlechtwetter fit und aktiv zu bleiben, steht allen Bewohnern ein hauseigener Fitnessraum exklusiv zur Verfügung.
Nachhaltig & zukunftsfit
Das gesamte Projekt wird nach modernsten ökologischen Standards errichtet:
- Photovoltaikanlage
- Niedrigenergiebauweise
- E-Mobilität: Tiefgaragen- und Freistellplätze mit E-Lade-Vorbereitung
- Geringe Betriebskosten durch energieeffiziente Technik
Auch für Investoren erhältlich – zum attraktiven Anlegerpreis mit Steuervorteilen und Frühkäuferbonus.
Wir weisen darauf hin, dass zwischen dem Vermittler und dem zu vermittelnden Dritten ein familiäres oder wirtschaftliches Naheverhältnis besteht.
Der Vermittler ist als Doppelmakler tätig.
Infrastruktur / Entfernungen
Gesundheit
Arzt <1.000m
Apotheke <4.500m
Klinik <5.000m
Kinder & Schulen
Schule <500m
Kindergarten <500m
Nahversorgung
Supermarkt <500m
Bäckerei <500m
Sonstige
Bank <500m
Geldautomat <500m
Post <4.500m
Polizei <4.500m
Verkehr
Bus <500m
Autobahnanschluss <6.000m
Bahnhof <1.500m
Flughafen <10.000m
Angaben Entfernung Luftlinie / Quelle: OpenStreetMap
Objektdaten
Ausstattung
- Barrierefrei
- Fliesenboden
- Dielenboden
- Fußbodenheizung
- Solar
- Fern Befeuerung
- Personen Fahrstuhl
Dokumente / Links
Zustand
- Zustand
- ERSTBEZUG
- Baujahr
- 2026
- Alter
- NEUBAU
- HWB
- 30.2 kWh/m² pro Jahr
- Klasse HWB
- B
- fGEE
- 0.66
- Klasse fGEE
- A+
Flächen
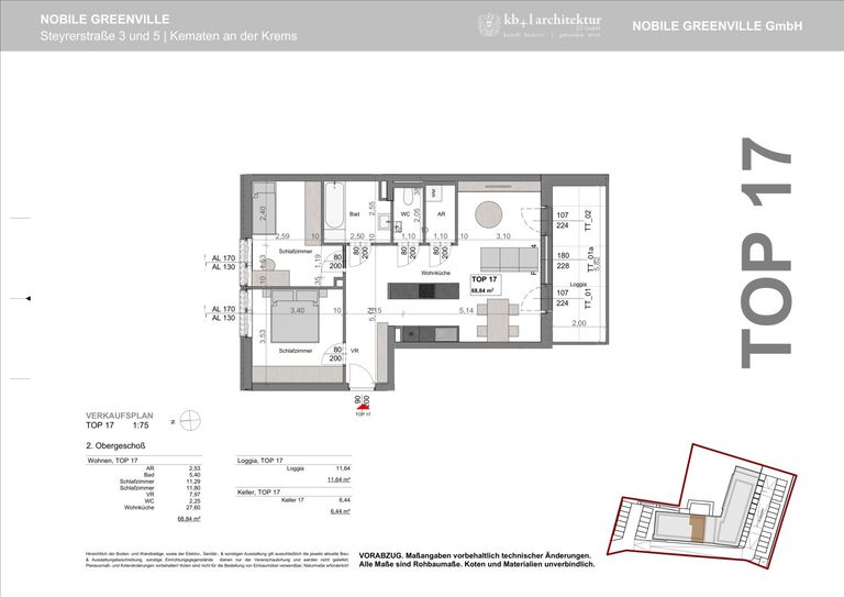
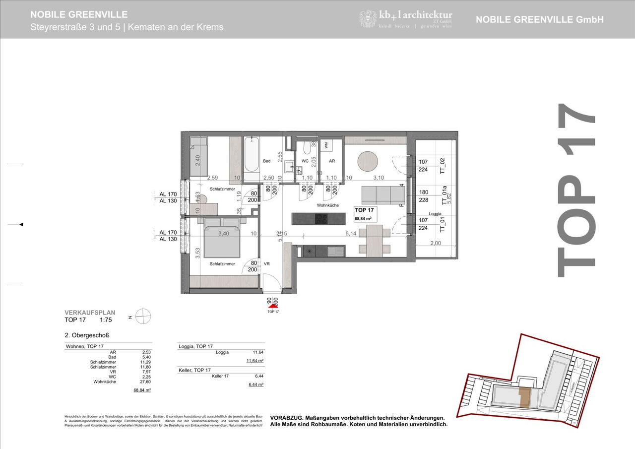
- Anzahl der Zimmer
- 3
- Anzahl der Logia
- 1
- Wohnfläche
- 69m²
- Nutzfläche
- 80m²
- Kellerfläche
- 6m²
Kosten
- Kaufpreis Brutto
- € 296.000,00
Wohnungen zum Kaufen im Umkreis von Kematen an der Krems
Wohnungen zum Kaufen im Umkreis von Kematen an der Krems
Wohnungen zum Kaufen in Österreich
Andere Besucher suchen nach...
- Grundstücke kaufen in 3400 Weidlingbach
- Wohnungen kaufen in 4663 Laakirchen
- Häuser in 7471 Rechnitz
- Wohnungen in 2410 Hainburg an der Donau
- Häuser kaufen in 2432 Schwadorf
- Wohnungen kaufen in 3002 Purkersdorf
- Häuser in 3150 Wilhelmsburg
- Wohnungen kaufen in 3470 Engelmannsbrunn
- Grundstücke kaufen im Bezirk Mattersburg
- Grundstücke kaufen im Bezirk Gmunden