Investieren nahe dem Golfplatz – 2-Zimmer-Anlegerwohnung im 3. OG mit Lift!
-
Erstbezug
-
2026
Beschreibung
Kapitalanlage mit Perspektive – 28 hochwertige Anlegerwohnungen in Top-Lage zwischen Linz, Wels & Steyr
Jetzt noch exklusive Anlegerangebote für 5 Wohnungen verfügbar! Für kurze Zeit bieten wir bei ausgewählten Einheiten attraktive Sonderkonditionen – ideal für Kapitalanleger, die gezielt in nachhaltige Immobilienwerte investieren möchten. Mit Nobile Greenville entsteht ein modernes Wohnprojekt in Kematen an der Krems, einer aufstrebenden Gemeinde im oberösterreichischen Zentralraum. Die 28 exklusiven Eigentumswohnungen verbinden stilvolle Architektur mit energieeffizienter Bauweise – und bieten somit eine attraktive Gelegenheit für Anleger, die auf nachhaltige Immobilienwerte mit Entwicklungspotenzial setzen.
Investieren in Qualität & Lage
Das Projekt punktet durch seine strategische Lage zwischen...
Kapitalanlage mit Perspektive – 28 hochwertige Anlegerwohnungen in Top-Lage zwischen Linz, Wels & Steyr
Jetzt noch exklusive Anlegerangebote für 5 Wohnungen verfügbar!
Für kurze Zeit bieten wir bei ausgewählten Einheiten attraktive Sonderkonditionen – ideal für Kapitalanleger, die gezielt in nachhaltige Immobilienwerte investieren möchten. Mit Nobile Greenville entsteht ein modernes Wohnprojekt in Kematen an der Krems, einer aufstrebenden Gemeinde im oberösterreichischen Zentralraum. Die 28 exklusiven Eigentumswohnungen verbinden stilvolle Architektur mit energieeffizienter Bauweise – und bieten somit eine attraktive Gelegenheit für Anleger, die auf nachhaltige Immobilienwerte mit Entwicklungspotenzial setzen.
Investieren in Qualität & Lage
Das Projekt punktet durch seine strategische Lage zwischen den Städten Linz, Wels und Steyr – Regionen mit stabiler Bevölkerungsentwicklung, hoher Lebensqualität und kontinuierlicher Nachfrage nach Mietwohnungen.
Die 2- bis 4-Zimmer-Wohnungen bieten Wohnflächen zwischen ca. 48 m² und 121 m² und überzeugen durch:
- durchdachte Grundrisse mit hoher Vermietbarkeit
- großzügige Freiflächen (Loggien, Balkone, Terrassen, Eigengärten)
- hochwertige Ausstattungsdetails, u.a.:
- Fußbodenheizung mittels Fernwärme
- Photovoltaikanlage
- E-Ladestationen
- Elektrische Außenbeschattung
- Echtholzparkett & großformatige Feinsteinzeugfliesen
- Sanitärausstattung u.a. von Villeroy & Boch
- und vieles mehr
Neben den modernen Wohnstandards bietet das Projekt zahlreiche Zusatznutzen, die für zukünftige Mieter besonders attraktiv sind:
- hauseigener Fitnessraum zur kostenlosen Nutzung
- naturnahe Umgebung mit Rad- und Wanderwegen
- renommierter 27-Loch-Golfplatz in unmittelbarer Nähe
- hervorragende Verkehrsanbindung in alle Richtungen
Zukunftssichere Bauweise – nachhaltiger Investmentfaktor
- Energieeffiziente Niedrigenergiebauweise
- Geringe Betriebskosten durch moderne Haustechnik
- E-Mobilität: TG- & Freiplätze mit E-Lade-Vorbereitung
- Ökologisch orientiertes Gesamtkonzept
Jetzt informieren & die letzten Anlegerangebote sichern!
Wir weisen darauf hin, dass zwischen dem Vermittler und dem zu vermittelnden Dritten ein familiäres oder wirtschaftliches Naheverhältnis besteht.
Der Vermittler ist als Doppelmakler tätig.
Infrastruktur / Entfernungen
Gesundheit
Arzt <1.000m
Apotheke <4.500m
Klinik <5.000m
Kinder & Schulen
Schule <500m
Kindergarten <500m
Nahversorgung
Supermarkt <500m
Bäckerei <500m
Sonstige
Bank <500m
Geldautomat <500m
Post <4.500m
Polizei <4.500m
Verkehr
Bus <500m
Autobahnanschluss <6.000m
Bahnhof <1.500m
Flughafen <10.000m
Angaben Entfernung Luftlinie / Quelle: OpenStreetMap
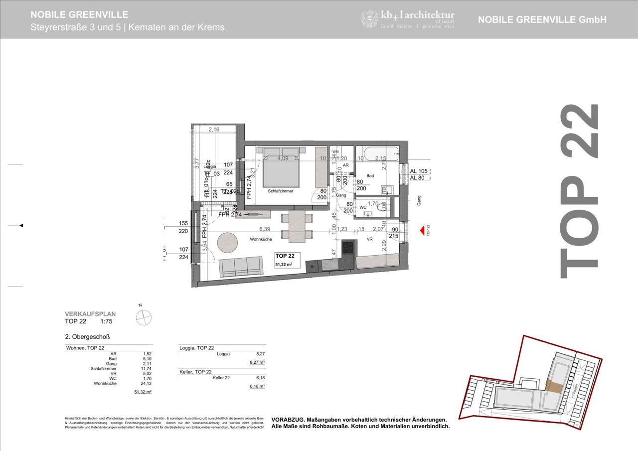
Objektdaten
Ausstattung
- WG geeignet
- Räume veränderbar
- Gartennutzung
- Rollstuhlgerecht
- Kabel/SAT-TV
- Barrierefrei
- Wasch-/Trockenraum
- Sporteinrichtungen
- Fahrradraum
- Kabelkanäle
- Seniorengerecht
- Bad mit Badewanne
- Fliesenboden
- Parkettboden
- Fertigparkettboden
- Dielenboden
- Estrichboden
- Fern Befeuerung
- Personen Fahrstuhl
- Flachdach
- Massiv Bauweise
- Schlüsselfertig mit Keller
- Niedrigenergie
- Neubaustandard
Dokumente / Links
Zustand
- Zustand
- ERSTBEZUG
- Baujahr
- 2026
- Alter
- NEUBAU
- HWB
- 30.2 kWh/m² pro Jahr
- Klasse HWB
- B
- fGEE
- 0.66
- Klasse fGEE
- A+
Flächen
- Anzahl der Zimmer
- 2
- Anzahl der Logia
- 1
- Wohnfläche
- 51m²
- Nutzfläche
- 60m²
- Kellerfläche
- 6m²
Kosten
- Kaufpreis Brutto
- € 219.000,00
Wohnungen zum Kaufen im Umkreis von Kematen an der Krems
Wohnungen zum Kaufen im Umkreis von Kematen an der Krems
Wohnungen zum Kaufen in Österreich
Andere Besucher suchen nach...
- Grundstücke kaufen in 3400 Weidlingbach
- Wohnungen kaufen in 4663 Laakirchen
- Häuser in 7471 Rechnitz
- Wohnungen in 2410 Hainburg an der Donau
- Häuser kaufen in 2432 Schwadorf
- Wohnungen kaufen in 3002 Purkersdorf
- Häuser in 3150 Wilhelmsburg
- Wohnungen kaufen in 3470 Engelmannsbrunn
- Grundstücke kaufen im Bezirk Mattersburg
- Grundstücke kaufen im Bezirk Gmunden