Charmante 3,5-Zimmer-Wohnung in zentraler Lage mit Loggia/Balkon
Beschreibung
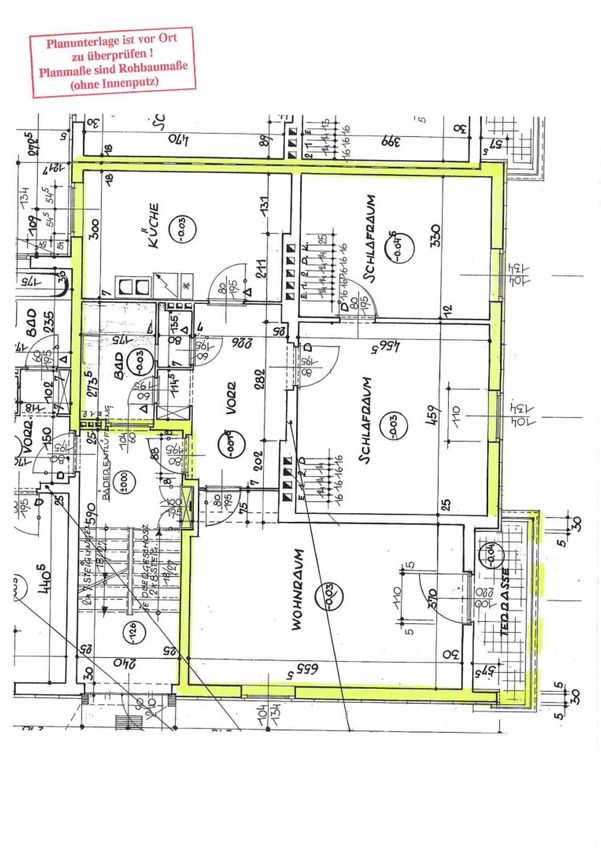
Diese ca. 92 m² große Wohnung liegt im 1. Obergeschoss eines gepflegten Wohnhauses und überzeugt durch ihre großzügige Raumaufteilung sowie durch zusätzliche Freiflächen in Form eines Balkons/Loggia.
Die Wohnung wurde bereits einmal saniert und befindet sich grundsätzlich in gutem Zustand, weist jedoch einen alters- und nutzungsbedingten Pflegebedarf auf, da sie zuletzt vermietet war. Sie bietet damit eine solide Basis für individuelle Adaptierungen oder eine Auffrischung nach eigenen Vorstellungen.
Die Raumaufteilung umfasst ein großzügiges Wohnzimmer mit Zugang zur Loggia, zwei Schlafzimmer, ein zusätzliches "halbes" Zimmer samt Küche mit Essbereich, ein Badezimmer mit Badewanne, ein getrenntes WC sowie...
Diese ca. 92 m² große Wohnung liegt im 1. Obergeschoss eines gepflegten Wohnhauses und überzeugt durch ihre großzügige Raumaufteilung sowie durch zusätzliche Freiflächen in Form eines Balkons/Loggia.
Die Wohnung wurde bereits einmal saniert und befindet sich grundsätzlich in gutem Zustand, weist jedoch einen alters- und nutzungsbedingten Pflegebedarf auf, da sie zuletzt vermietet war. Sie bietet damit eine solide Basis für individuelle Adaptierungen oder eine Auffrischung nach eigenen Vorstellungen.
Die Raumaufteilung umfasst ein großzügiges Wohnzimmer mit Zugang zur Loggia, zwei Schlafzimmer, ein zusätzliches "halbes" Zimmer samt Küche mit Essbereich, ein Badezimmer mit Badewanne, ein getrenntes WC sowie einen zentralen Vorraum. Der Balkon bietet zusätzlichen Freiraum im Außenbereich.
Die Beheizung erfolgt aktuell über eine Elektroheizung. Eine Gasleitung befindet sich direkt vor der Wohnungstür.
Die Wohnung eignet sich ideal für Paare oder Familien, die eine gut gelegene Wohnung mit Entwicklungspotenzial suchen.
Wir weisen darauf hin, dass zwischen dem Vermittler und dem zu vermittelnden Dritten ein familiäres oder wirtschaftliches Naheverhältnis besteht.
Der Vermittler ist als Doppelmakler tätig.
Infrastruktur / Entfernungen
Gesundheit
Arzt <500m
Apotheke <1.000m
Klinik <1.000m
Kinder & Schulen
Schule <1.000m
Kindergarten <1.000m
Nahversorgung
Supermarkt <500m
Bäckerei <1.000m
Einkaufszentrum <500m
Sonstige
Bank <500m
Geldautomat <500m
Post <500m
Polizei <1.000m
Verkehr
Bus <500m
Bahnhof <500m
Autobahnanschluss <10.000m
Angaben Entfernung Luftlinie / Quelle: OpenStreetMap
Objektdaten
Ausstattung
- Gäste-WC
- Bad mit Badewanne
- Einbauküche
- Befeuerung mit Gas
- Elektrische Befeuerung
- Ausrichtung Balkon/Terrasse - Süd
- Massiv Bauweise
Zustand
- Baujahr
- 1960
- Alter
- NEUBAU
- HWB
- 91.2 kWh/m² pro Jahr
- Klasse HWB
- C
- fGEE
- 1.68
- Klasse fGEE
- C
Flächen
- Anzahl der Zimmer
- 3.5
- Anzahl der Badezimmer
- 1
- Anzahl der sep. WCs
- 1
- Anzahl der Balkone
- 1
- Wohnfläche
- 92m²
Kosten
- Kaufpreis Brutto
- € 145.000,00
- Betriebskosten
- € 172,65
- Sonstige Kosten
- € 110,80
Verwaltung
- Verfügbar ab
- nach Vereinbarung
Wohnungen zum Kaufen im Umkreis von Perg
Wohnungen zum Kaufen im Umkreis von Perg
Wohnungen zum Kaufen in Österreich
Andere Besucher suchen nach...
- Grundstücke kaufen in 3400 Weidlingbach
- Wohnungen kaufen in 4663 Laakirchen
- Häuser in 7471 Rechnitz
- Wohnungen in 2410 Hainburg an der Donau
- Häuser kaufen in 2432 Schwadorf
- Wohnungen kaufen in 3002 Purkersdorf
- Häuser in 3150 Wilhelmsburg
- Wohnungen kaufen in 3470 Engelmannsbrunn
- Grundstücke kaufen im Bezirk Mattersburg
- Grundstücke kaufen im Bezirk Gmunden