Familientraum in Rieder Bestlage - direkt am Stadtpark Ried - Provisionsfrei
-
15.12.2024
Beschreibung
Der „Franz-von-Sales-Hof“ wurde durch Innviertler Baufirmen errichtet und 2001 fertiggestellt. Die Wohnanlage punktet mit hoher Wohnqualität und Ruhe, natürlich auch mit freundlichen Bewohner/innen.
Insgesamt gibt es vier Haupthäuser, sowie zwei Eck-Verbindungshäuser. Ein liebevoll angelegter Innenhof, mit verspielten Details, viel Grünfläche und Sitzgelegenheiten, lädt zum Verweilen im Freien ein.
Alle Gebäude sind unterkellert. Der Keller beinhaltet jeweils zugeordnete Kellerabteile, Trocknungs- und Technikräume sowie Fahrrad- und Kinderwagen-Abstellplätze und eine Tiefgarage.
Die hervorragende und Raumaufteilung bietet genug Platz für Pärchen und Familien. Durch ihre vielfältigen Nutzungsmöglichkeiten sind die Wohnungen sowohl für die Eigennutzung aber genauso auch als Anlage-Wohnung attraktiv.
Die Wohnungen sind...
Der „Franz-von-Sales-Hof“ wurde durch Innviertler Baufirmen errichtet und 2001 fertiggestellt. Die Wohnanlage punktet mit hoher Wohnqualität und Ruhe, natürlich auch mit freundlichen Bewohner/innen.
Insgesamt gibt es vier Haupthäuser, sowie zwei Eck-Verbindungshäuser. Ein liebevoll angelegter Innenhof, mit verspielten Details, viel Grünfläche und Sitzgelegenheiten, lädt zum Verweilen im Freien ein.
Alle Gebäude sind unterkellert. Der Keller beinhaltet jeweils zugeordnete Kellerabteile, Trocknungs- und Technikräume sowie Fahrrad- und Kinderwagen-Abstellplätze und eine Tiefgarage.
Die hervorragende und Raumaufteilung bietet genug Platz für Pärchen und Familien. Durch ihre vielfältigen Nutzungsmöglichkeiten sind die Wohnungen sowohl für die Eigennutzung aber genauso auch als Anlage-Wohnung attraktiv.
Die Wohnungen sind sehr zentral gelegen, innerhalb von wenigen Gehminuten erreichen Sie den Stadtplatz Ried, den Bahnhof sowie den Stadtpark.
Alle Infos und Unterlagen zu den noch verfügbaren Wohnungen finden Sie auf unserer Projekthomepage:
Projekthomepage Schwimmbadstraße Ried im Innkreis
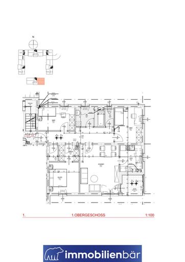
TOP 38:
- 93,75 m² Wohnfläche
- 5,59 m² Loggia
- 4 Zimmer (3 Schlafzimmer)
- Gemeinschaftsgarten
- Gemütlicher Innenhof
- Ruhige Lage
- Zentrumsnähe
- Helle und freundliche Zimmer
- Parkettboden
- sehr großes Kellerabteil ca. 10m²
- Tiefgaragenplatz optional (16.000€)
- Fahrradabstellraum
Jetzt den Traum vom Eigenheim realisieren - diese großzügige 4 Zimmerwohnung in tollen Rieder Lage ist ab sofort frei und verfügbar.
Wir weisen darauf hin, dass zwischen dem Vermittler und dem zu vermittelnden Dritten ein familiäres oder wirtschaftliches Naheverhältnis besteht.
Der Vermittler ist als Doppelmakler tätig.
Infrastruktur / Entfernungen
Gesundheit
Arzt <775m
Apotheke <900m
Klinik <950m
Krankenhaus <1.050m
Kinder & Schulen
Schule <375m
Kindergarten <950m
Höhere Schule <825m
Nahversorgung
Supermarkt <850m
Bäckerei <850m
Einkaufszentrum <900m
Sonstige
Bank <900m
Geldautomat <975m
Polizei <625m
Post <1.075m
Verkehr
Bus <200m
Bahnhof <450m
Autobahnanschluss <5.525m
Angaben Entfernung Luftlinie / Quelle: OpenStreetMap
Objektdaten
Ausstattung
- Gartennutzung
- Wasch-/Trockenraum
- Fahrradraum
- Gäste-WC
- Bad mit Badewanne
- Bad mit Fenster
- Fliesenboden
- Parkettboden
- Befeuerung mit Gas
- Personen Fahrstuhl
- Ausrichtung Balkon/Terrasse - Süd
- Massiv Bauweise
Dokumente / Links
Zustand
- Baujahr
- 2001
- HWB
- 44 kWh/m² pro Jahr
- Klasse HWB
- B
- fGEE
- 0.85
- Klasse fGEE
- A
Flächen
- Anzahl der Zimmer
- 4
- Anzahl der Badezimmer
- 1
- Anzahl der sep. WCs
- 1
- Anzahl der Logia
- 1
- Wohnfläche
- 94m²
Kosten
- Kaufpreis Brutto
- € 279.000,00
Verwaltung
- Verfügbar ab
- 15.12.2024
Wohnungen zum Kaufen im Umkreis von Ried im Innkreis
Wohnungen zum Kaufen im Umkreis von Ried im Innkreis
Wohnungen zum Kaufen in Österreich
Andere Besucher suchen nach...
- Grundstücke kaufen in 3400 Weidlingbach
- Wohnungen kaufen in 4663 Laakirchen
- Häuser in 7471 Rechnitz
- Wohnungen in 2410 Hainburg an der Donau
- Häuser kaufen in 2432 Schwadorf
- Wohnungen kaufen in 3002 Purkersdorf
- Häuser in 3150 Wilhelmsburg
- Wohnungen kaufen in 3470 Engelmannsbrunn
- Grundstücke kaufen im Bezirk Mattersburg
- Grundstücke kaufen im Bezirk Gmunden