DUETT: Wohnung mit 2 getrennten Einheiten, Nähe Salzach / Mayburger Kai, Salzburg - Itzling
Beschreibung
Im Auftrag des Eigentümers bieten wir eine großzügige Wohnungs-Eigentumseinheit bestehend aus getrennten 2 Wohnungen in einem kleinen privaten Wohnhaus in der Austraßensiedlung, Salzburg-Itzling - nahe dem Mayburger Kai zum Verkauf an.
Die Wohneinheit Top 2 besteht aus 2 Wohnungen welche sich vom Erd-, Ober- bis ins Dachgeschoss erstreckt und getrennt voneinander begehbar sind. Mit einer beeindruckenden Gesamt-Wohnnutzfläche von ca. 259,64 m² ist diese Immobilie der ideale Ort für Familien oder all jene, die viel Platz und Freiraum schätzen. Die durchdachte Raumaufteilung ermöglicht es Ihnen, Ihre Wohnträume individuell zu gestalten.
Im Erdgeschoss befindet sich eine schön...
Im Auftrag des Eigentümers bieten wir eine großzügige Wohnungs-Eigentumseinheit bestehend aus getrennten 2 Wohnungen in einem kleinen privaten Wohnhaus in der Austraßensiedlung, Salzburg-Itzling - nahe dem Mayburger Kai zum Verkauf an.
Die Wohneinheit Top 2 besteht aus 2 Wohnungen welche sich vom Erd-, Ober- bis ins Dachgeschoss erstreckt und getrennt voneinander begehbar sind. Mit einer beeindruckenden Gesamt-Wohnnutzfläche von ca. 259,64 m² ist diese Immobilie der ideale Ort für Familien oder all jene, die viel Platz und Freiraum schätzen. Die durchdachte Raumaufteilung ermöglicht es Ihnen, Ihre Wohnträume individuell zu gestalten.
Im Erdgeschoss befindet sich eine schön modernisierte Gartenwohnung (kl. 2-Zimmer-Wohnung) mit ca. 43,82 m² und vorgelagerter Terrasse mit ca. 35,46 m² sowie dazugehörigen Garten mit ca. 80 m². Vom Eingangsbereich gelangt man in den Wohnraum mit eingerichteter Küchenzeile. Von hier aus ist auch das Badezimmer (mit barrierefreier Dusche, WC und Waschtisch) und das kleine Schlafzimmer begehbar. Für Stauraum sorgt ein Abstellraum bzw. ein separater Waschraum mit WM-Anschluss. Die Wohnung ist im gesamten Bereich mit keramischen Bodenbelägen versehen und vermittelt einen modernen Eindruck.
Besonderes Highlight ist die sonnige Terrasse und der nach Süden ausgerichtete schöne Garten. Hier können Sie die Sonne in vollen Zügen genießen und entspannte Stunden im Freien verbringen - ein privater Rückzugsort, der zum Verweilen, Spielen oder Gärtnern einlädt.
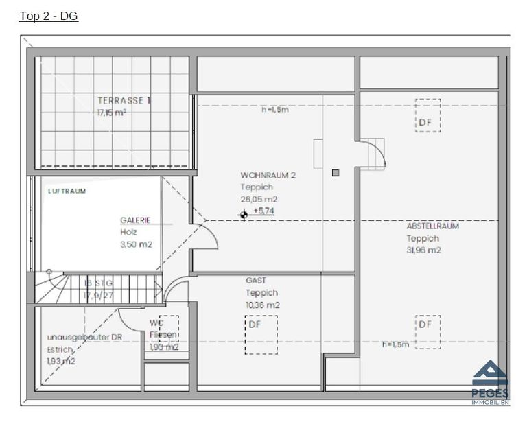
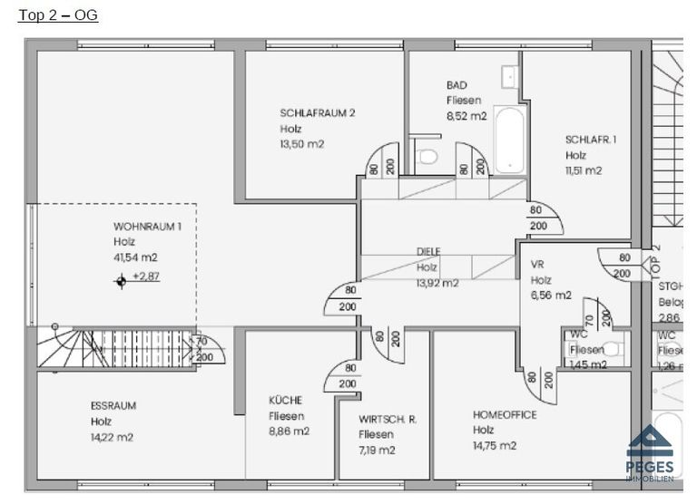
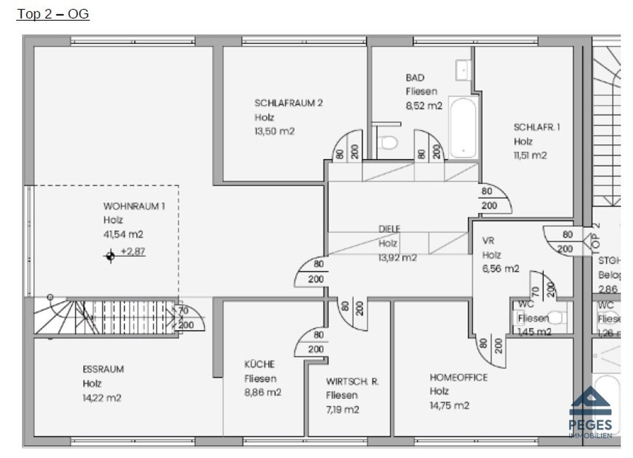
Im oberen Bereich erstreckt sich die Maisonette-Wohnung (7-Zimmer-Wohnung) über das Ober- bzw. Dachgeschoss und besticht durch eine Gesamt-Fläche von ca. 215,82 m² und großzügiger Raumeinteilung. Der untere Wohnbereich (1. Obergeschoss) der Maisonette-Wohnung verfügt über eine Größe von 142,02 m². Hier befinden sich die 3 Wohn-Schlafräume, das Badezimmer, Küche samt Wirtschaftraum en suite und ein großer Wohnraum mit Treppenaufgang ins Dachgeschoss. Das Badezimmer ist mit zeitgemäßen Fliesen versehen und verfügt über eine große ebenerdige Dusche sowie eine Badewanne und eine Toilette. Weiters gibt es noch eine Gäste-Toilette. Die zeitlos, moderne Einbauküche ist nicht nur funktional, sondern auch das Herzstück jeder geselligen Zusammenkunft und ist sowohl an den Essbereich bzw. direkt an den abgetrennten Wirtschaftsraum (mit WM-Anschluss) angeschlossen. Die Böden sind mit Holz-/Parkett- sowie Vinyl- bzw. Fliesenbelägen versehen. Über die Treppe gelangt man ins ausgebaute Dachgeschoss mit ca. 73,80 m². Hier befindet sich ein zusätzlicher Wohnraum mit Ausgang auf die sonnige Terrasse mit ca. 17,15 m² und ein Schlafzimmer/ Büro. Individuell nutzbar ist der große Dachraum/ Studio (mit ca. 31 m²). Der obere Wohnbereich ist mit Holzdecken und Teppichböden ausgestattet.
Raumaufteilung:
EG: Vorraum, Abstellraum mit WM-Anschluss, Wohnzimmer mit Küchenzeile (eingerichtet), Schlafzimmer, Bad (mit Dusche)/WC, Abstellraum; Terrasse, Garten
OG/DG: Vorraum, WC, Diele, 3 Zimmer, Bad (mit Dusche, Wanne)/ WC, Wirtschaftsraum mit WM-Anschluss, Küche eingerichtet mit Essbereich, Wohnraum, Treppenaufgang ins DG, Galerie, Wohnraum mit Ausgang auf Terrasse, Dachstudio, Zimmer mit Waschbecken, WC
Weiters gehört ein großer Lagerraum mit ca. 19,35 m² im Keller zur Wohneinheit, sowie ein fixer PKW-Stellplatz. Zudem besteht die Möglichkeit zur Anmietung einer Garage.
(Weitere Parkmöglichkeiten sind vor Ort sowie auch im öffentlichen Bereich vorhanden.)
Die Beheizung sowie auch die Warmwasserbereitung erfolgen mittels Zentralheizung (Fernwärme). TV-Versorgung ist über SAT-TV möglich.
Aktuell besteht für die obere Wohung (Maisonette OG/DG) ein befristetes Mietverhältnis (Mietvertrag bis 15.02.2027) zu einem Mietzins von € 2492,60 (inkl. 10% USt.) zzgl. BK-Akonto € 625,-.
Die Wohnung im Erdgeschoss wird aktuell selbst genutzt (bestandsfrei). Das mtl. BK-Akonto beläuft sich hier auf € 150,-.
Vereinbaren Sie jetzt Ihren Besichtigungstermin und überzeugen Sie sich von den Vorzügen dieser Immobilie.
Für weitere Informationen und Details stehen wir Ihnen gerne zur Verfügung und freuen uns auf Ihre Kontaktaufnahme.
Infrastruktur / Entfernungen
Gesundheit
Arzt <1.000m
Apotheke <1.000m
Klinik <2.000m
Krankenhaus <2.000m
Kinder & Schulen
Schule <500m
Kindergarten <500m
Universität <500m
Höhere Schule <2.000m
Nahversorgung
Supermarkt <500m
Bäckerei <500m
Einkaufszentrum <500m
Sonstige
Bank <1.000m
Geldautomat <1.000m
Post <1.000m
Polizei <500m
Verkehr
Bus <500m
Bahnhof <500m
Autobahnanschluss <1.000m
Flughafen <4.500m
Angaben Entfernung Luftlinie / Quelle: OpenStreetMap
Objektdaten
Ausstattung
- Bad mit Dusche
- Bad mit Badewanne
- Bad mit Fenster
- Einbauküche
- Fliesenboden
- Teppichboden
- Parkettboden
- Kunststoffboden
- Fernwärme Heizung
- Fern Befeuerung
- Ausrichtung Balkon/Terrasse - Süd
- Massiv Bauweise
Dokumente / Links
Zustand
- Baujahr
- 1971
- HWB
- 109 kWh/m² pro Jahr
- Klasse HWB
- D
- fGEE
- 1.48
- Klasse fGEE
- C
Flächen
- Anzahl der Zimmer
- 9
- Anzahl der Badezimmer
- 2
- Anzahl der sep. WCs
- 4
- Anzahl der Terrassen
- 2
- Nutzfläche
- 260m²
- Gartenfläche
- 80m²
- Kellerfläche
- 19m²
- Terrassenfläche
- 2m²
Kosten
- Kaufpreis Brutto
- € 990.000,00
- Betriebskosten
- € 775,00
Verwaltung
- Verfügbar ab
- nach Vereinbarung
Wohnungen zum Kaufen in Österreich
Wohnungen zum Kaufen in Österreich
Andere Besucher suchen nach...
- Immobilien kaufen in 2601 Sollenau
- Immobilien in 4951 Polling im Innkreis, Oberösterreich
- Immobilien in 4742 Pram, Oberösterreich kaufen oder mieten
- Häuser kaufen in 2340 Mödling, Niederösterreich
- Häuser kaufen in 9421 Gemmersdorf, Kärnten
- Wohnungen / Eigentumswohnungen kaufen in 9431 St. Stefan, Kärnten
- Häuser kaufen in Bruck an der Leitha, Niederösterreich
- Immobilien mieten in Krems an der Donau, Niederösterreich
- Häuser zum Kaufen im Bezirk St. Pölten Land, Niederösterreich
- Büro / Praxen mieten in Rohrbach, Oberösterreich