Eigentumswohnungen in Hintersee im Salzkammergut: ein Zuhause fürs Leben, eine Gelegenheit zum Investieren.
-
Erstbezug
-
2025
-
2026
Beschreibung
Ruhiges Wohnen im Grünen in Hintersee entsteht etwas Besonderes
Das Objekt ist baugenehmigt.
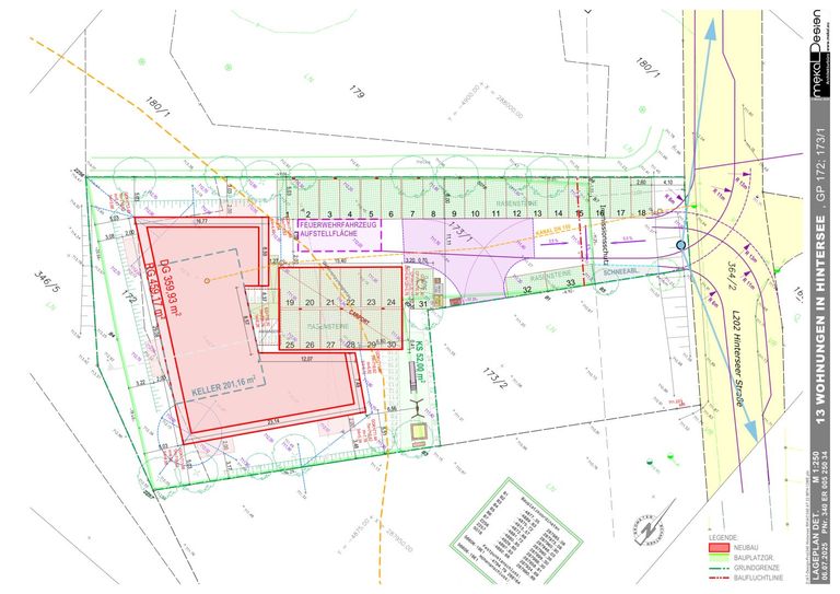
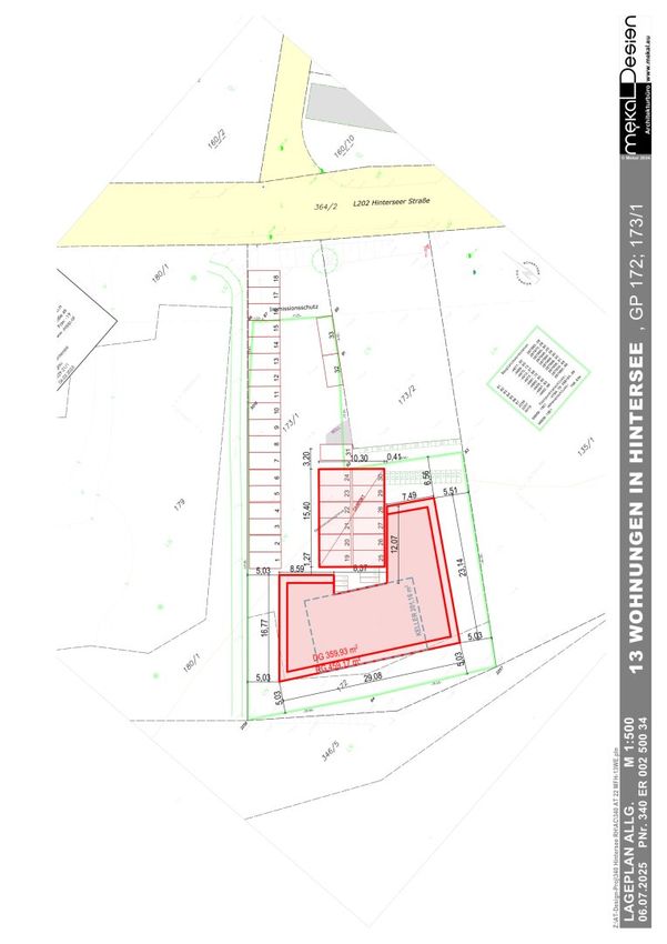
Inmitten der Salzburger Bergwelt, im idyllischen Ortsteil Oberasch nahe dem Hintersee, entsteht ein modernes Wohnprojekt mit 13 Einheiten in ökologischer Holzriegelbauweise und durchdacht geplant für Menschen, die naturnah und zukunftsorientiert wohnen möchten.
Die Anlage wurde in Form eines traditionellen 3-Seit-Hofs konzipiert und überzeugt mit intelligenten Grundrissen, großzügigen Freibereichen und einem nachhaltigen Energiekonzept. Luftwärmepumpe und Photovoltaik garantieren niedrige Betriebskosten und einen umweltschonenden Lebensstil – ideal für alle, die auf Dauer sparen und dabei auf Komfort nicht verzichten wollen.
Gestaltungsfreiheit statt Standardlösung: Jede Wohnung wird im Edelrohbau übergeben –...
Ruhiges Wohnen im Grünen in Hintersee entsteht etwas Besonderes
Das Objekt ist baugenehmigt.
Inmitten der Salzburger Bergwelt, im idyllischen Ortsteil Oberasch nahe dem Hintersee, entsteht ein modernes Wohnprojekt mit 13 Einheiten in ökologischer Holzriegelbauweise und durchdacht geplant für Menschen, die naturnah und zukunftsorientiert wohnen möchten.
Die Anlage wurde in Form eines traditionellen 3-Seit-Hofs konzipiert und überzeugt mit intelligenten Grundrissen, großzügigen Freibereichen und einem nachhaltigen Energiekonzept. Luftwärmepumpe und Photovoltaik garantieren niedrige Betriebskosten und einen umweltschonenden Lebensstil – ideal für alle, die auf Dauer sparen und dabei auf Komfort nicht verzichten wollen.
Gestaltungsfreiheit statt Standardlösung:
Jede Wohnung wird im Edelrohbau übergeben – das bedeutet: Alle Anschlüsse, Feininstallationen, Lichtschalter sowie außenliegender Sonnenschutz sind bereits umgesetzt. Innen haben Sie freie Hand: Ob Böden, Fliesen, Türen oder Wandgestaltung – alles darf nach den eigenen Wünschen ausgewählt und umgesetzt werden. Maler- und Spachtelarbeiten sind ebenfalls in Eigenregie möglich. Wer lieber alles aus einer Hand fertiggestellt haben möchte, kann optional eine Standardausführung dazubuchen – samt weißen Innentüren, Parkett, klassischer Sanitärausstattung und Fliesen – gegen einen Aufpreis von ca. € 22.000,00 bis € 25.000,00 inkl. USt.
Die Fakten auf einen Blick:
13 Wohnungen auf drei Ebenen:
Erdgeschoss: Vier 3-Zimmer-Wohnungen mit Garten (Wohnfläche ca. 72,50m²) + (Gartenfläche ca. 100m²)
Obergeschoss: Vier 3-Zimmer-Wohnungen mit Balkon (Wohnfläche ca. 72,50 m²) + ( Balkon ca. 9 m² )
Dachgeschoss: Drei großzügige 4-Zimmer-Wohnungen, jeweils mit ca. 93 m² Wohnfläche und einer Terrasse von ca. 11 m².
Wohnflächen: ca. 72,5 m² bis ca. 93 m²
Jede Einheit mit eigenem Kellerabteil (ca. 8–10 m²)
Zwei PKW-Stellplätze pro Wohnung vorgesehen – Aufpreis je. € 12.500,- inkl. Ust.
Alternativ Carport-Stellplatz: € 15.000,- inkl. Ust - je nach Verfügbarkeit.
Personenlift im Haus
Eigene Fahrradabstellplätze direkt beim Gebäude
Wohnen mit Aussicht:
Von Ihrem sonnigen Balkon oder Ihrer Terrasse genießen Sie einen unverbaubaren Blick in die umliegende Naturlandschaft. Ob Bergblick beim Frühstück oder laue Sommerabende im eigenen Garten, hier wird der Alltag zur Auszeit.
Lebensqualität, die bleibt:
Die ruhige Lage mitten im Grünen garantiert Erholung, während die Nähe zum Hintersee (fußläufig erreichbar) sowie die Freizeitangebote der Osterhorngruppe ein aktives Leben zu jeder Jahreszeit ermöglichen: Wandern, Skifahren, Rodeln, Tourengehen oder einfach nur die Natur genießenalles liegt direkt vor Ihrer Haustür.
Infrastruktur & Anbindung:
Kindergarten in Hintersee, Sport-Mittelschule und Nahversorger in Faistenau, ärztliche Versorgung und Gastronomie in Hof, alles schnell erreichbar. Eine Bushaltestelle mit Direktverbindung nach Salzburg liegt wenige Gehminuten entfernt (Linien 155 und 157, ca. 50 Min. bis Salzburg Hbf).
Förderung & Energieausweis:
Die Wohnbauförderung 2025 kann beantragt werden. Zusätzlich ist eine nicht rückzahlbare Einmalförderung von bis zu ca. € 70.000,00 möglich, ein echter finanzieller Vorteil für Eigennutzer. Der Energieausweis wird nach Fertigstellung ausgestellt.
Fazit:
Wer naturnah, energieeffizient und individuell wohnen möchte, findet hier die perfekte Kombination. Jetzt informieren, besichtigen und rechtzeitig Ihre Wunschwohnung sichern!
Der Vermittler ist als Doppelmakler tätig.
Infrastruktur / Entfernungen
Gesundheit
Arzt <2.000m
Apotheke <2.000m
Klinik <7.000m
Kinder & Schulen
Schule <2.000m
Kindergarten <2.000m
Nahversorgung
Supermarkt <2.000m
Bäckerei <1.500m
Sonstige
Bank <2.000m
Geldautomat <2.000m
Post <6.500m
Polizei <7.000m
Verkehr
Bus <500m
Angaben Entfernung Luftlinie / Quelle: OpenStreetMap
Objektdaten
Ausstattung
- Barrierefrei
- Bad mit Dusche
- Zentralheizung
- Solar
- Ausrichtung Balkon/Terrasse - Südost
- Walmdach
- Massiv Bauweise
- Holz Bauweise
Zustand
- Zustand
- ERSTBEZUG
- Baujahr
- 2025
- HWB
- 26.5 kWh/m² pro Jahr
- Klasse HWB
- B
- fGEE
- 0.52
- Klasse fGEE
- A++
Flächen
- Anzahl der Zimmer
- 3
- Grundstücksfläche
- 72m²
- Gartenfläche
- 105m²
- Kellerfläche
- 8m²
Kosten
- Kaufpreis Brutto
- € 314.000,00
Verwaltung
- Verfügbar ab
- 2026
Wohnungen zum Kaufen im Umkreis von Faistenau
Wohnungen zum Kaufen im Umkreis von Faistenau
Wohnungen zum Kaufen in Österreich
Andere Besucher suchen nach...
- Grundstücke kaufen in 3400 Weidlingbach
- Wohnungen kaufen in 4663 Laakirchen
- Häuser in 7471 Rechnitz
- Wohnungen in 2410 Hainburg an der Donau
- Häuser kaufen in 2432 Schwadorf
- Wohnungen kaufen in 3002 Purkersdorf
- Häuser in 3150 Wilhelmsburg
- Wohnungen kaufen in 3470 Engelmannsbrunn
- Grundstücke kaufen im Bezirk Mattersburg
- Grundstücke kaufen im Bezirk Gmunden