2-Zimmer Gartenwohnung Neubau und Provisionsfrei!!
-
Erstbezug
-
2024
-
Frühjahr 2026
Beschreibung
Nachhaltig Wohnen. Dieses Projekt ist klimaaktiv GOLD zertifiziert und ausgezeichnet mit dem Energy Globe Award. Alle noch freie Wohnungen finden Sie auf unserer Projekt Seite. https://www.immocontract.at/projekt/wohnpark-ober-grafendorf/ Die Wohnungen überzeugen mit modernen, zentral begehbaren Grundrissen und hochwertiger Ausstattung. Jede der Wohnungen verfügt über einen Außenbereich. Durch die versetzte Anordnung entstehen zwischen den Baukörpern weitläufige, begrünte Freiflächen, die als Erholungsraum dienen und ein nachbarschaftliches Miteinander begünstigen. Dank der Holzbauweise sind die Gebäude besonders stabil, energieeffizient und bieten ein behagliches Raumklima. Der Wohnpark Ober-Grafendorf ist klimaaktiv Gold zertifiziert und mit dem Energy Globe Award ausgezeichnet. Die 2- bis 4-Zimmer-Wohnungen sind mit Parkettböden, Fußbodenheizung,...
Nachhaltig Wohnen. Dieses Projekt ist klimaaktiv GOLD zertifiziert und ausgezeichnet mit dem Energy Globe Award.
Alle noch freie Wohnungen finden Sie auf unserer Projekt Seite.
https://www.immocontract.at/projekt/wohnpark-ober-grafendorf/
Die Wohnungen überzeugen mit modernen, zentral begehbaren Grundrissen und hochwertiger Ausstattung. Jede der Wohnungen verfügt über einen Außenbereich. Durch die versetzte Anordnung entstehen zwischen den Baukörpern weitläufige, begrünte Freiflächen, die als Erholungsraum dienen und ein nachbarschaftliches Miteinander begünstigen. Dank der Holzbauweise sind die Gebäude besonders stabil, energieeffizient und bieten ein behagliches Raumklima. Der Wohnpark Ober-Grafendorf ist klimaaktiv Gold zertifiziert und mit dem Energy Globe Award ausgezeichnet.
Die 2- bis 4-Zimmer-Wohnungen sind mit Parkettböden, Fußbodenheizung, Rollläden, sowie Eigengarten oder Balkon ausgestattet. Große Fensterflächen sorgen für lichtdurchflutete Räume.
Die Gebäude überzeugen mit architektonischen Raffinessen und einem naturnahen Wohngefühl. Lamellen aus Lärchenholz sorgen für eine optische Gliederung der Balkone und einen sonnengeschützten Bereich im Freien. Durch die versetzte Anordnung entstehen zwischen den Baukörpern weitläufige, begrünte Freiflächen, die als Erholungsraum dienen und ein nachbarschaftliches Miteinander begünstigen. Direkt neben der Wohnanlage entsteht ein rund 1.500 m² großer Spielplatz.
Fertigstellung des Bauteils C ist geplant im Frühjahr 2026.
Sie brauchen eine Finanzierung? Gerne. Bei uns sind Sie richtig. Mit unserem Partnerinstitut, der Volksbank finden wir eine maßgeschneiderte Lösung für Sie.
Infrastruktur / Entfernungen
Gesundheit
Arzt <5.500m
Apotheke <1.000m
Klinik <7.000m
Krankenhaus <9.000m
Kinder & Schulen
Schule <1.000m
Kindergarten <1.000m
Universität <9.000m
Höhere Schule <6.500m
Nahversorgung
Supermarkt <500m
Bäckerei <1.000m
Einkaufszentrum <2.500m
Sonstige
Bank <1.000m
Geldautomat <1.000m
Post <1.000m
Polizei <1.000m
Verkehr
Bus <1.000m
Bahnhof <1.000m
Autobahnanschluss <2.500m
Flughafen <3.000m
Angaben Entfernung Luftlinie / Quelle: OpenStreetMap
Objektdaten
Ausstattung
- Gartennutzung
- Fußbodenheizung
- Fern Befeuerung
- Personen Fahrstuhl
- Holz Bauweise
Zustand
- Zustand
- ERSTBEZUG
- Baujahr
- 2024
- HWB
- 23.8 kWh/m² pro Jahr
- Klasse HWB
- A
- fGEE
- 0.67
- Klasse fGEE
- A+
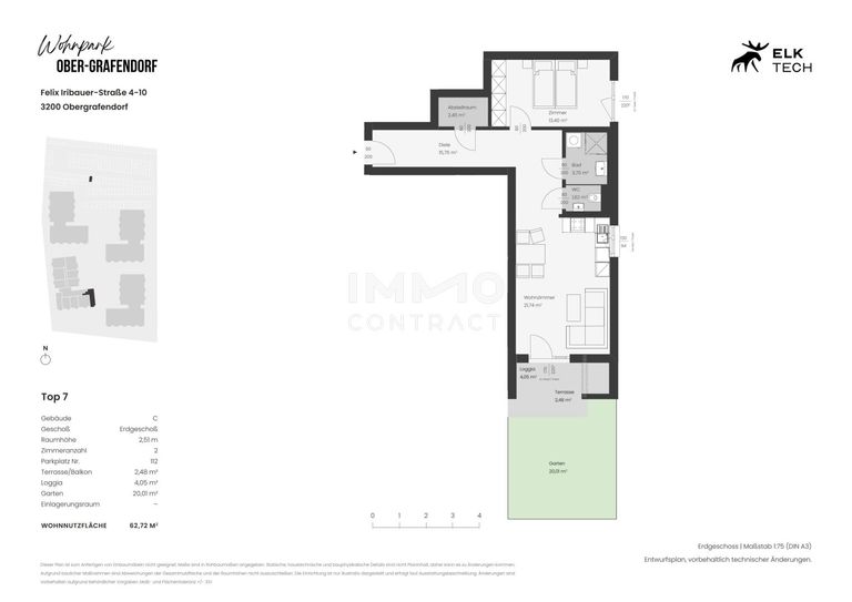
Flächen
- Anzahl der Zimmer
- 2
- Anzahl der Badezimmer
- 1
- Anzahl der sep. WCs
- 1
- Anzahl der Terrassen
- 1
- Anzahl der Logia
- 1
- Wohnfläche
- 63m²
- Gartenfläche
- 20m²
- Terrassenfläche
- 1m²
Kosten
- Kaufpreis Brutto
- € 207.000,00
Verwaltung
- Verfügbar ab
- Frühjahr 2026
Wohnungen zum Kaufen im Umkreis von Ober-Grafendorf
Wohnungen zum Kaufen im Umkreis von Ober-Grafendorf
Wohnungen zum Kaufen in Österreich
Andere Besucher suchen nach...
- Grundstücke kaufen in 3400 Weidlingbach
- Wohnungen kaufen in 4663 Laakirchen
- Häuser in 7471 Rechnitz
- Wohnungen in 2410 Hainburg an der Donau
- Häuser kaufen in 2432 Schwadorf
- Wohnungen kaufen in 3002 Purkersdorf
- Häuser in 3150 Wilhelmsburg
- Wohnungen kaufen in 3470 Engelmannsbrunn
- Grundstücke kaufen im Bezirk Mattersburg
- Grundstücke kaufen im Bezirk Gmunden