Ältere, günstige Eigentumswohnung in zentraler Lage
-
Juli 2026
Beschreibung
Diese Kaufgelegenheit ist eine helle 3-Zimmer-Wohnung in ruhiger, zentraler Lage.
Auf Grund der idealen Größe ist sie zusätzlich auch für die Vermietung bestens geeignet.
. Hervorgehobene Merkmale:
- Licht & Zustand: Die Räume sind hell, die Sanitärräume bedürfen einer Renovierung.
- Wohnklima: Diese Einheit bietet eine gute Privatsphäre und Ruhe.
- Balkon: Ein überdachter Südbalkon ermöglicht die Nutzung auch bei weniger gutem Wetter.
- Aussicht: Die unverbaubare Aussicht ist ein besonderes Highlight.
- Zugang: Wichtig: Kein Lift vorhanden, was bedeutet, dass die Wohnung über das Treppenhaus erreicht wird.
- Leistbar: Günstiger Kaufpreis mit Kapazität für eine eventuelle Modernisierung.
Bilder sagen viel aus, aber das...
Diese Kaufgelegenheit ist eine helle 3-Zimmer-Wohnung in ruhiger, zentraler Lage.
Auf Grund der idealen Größe ist sie zusätzlich auch für die Vermietung bestens geeignet.
. Hervorgehobene Merkmale:
- Licht & Zustand: Die Räume sind hell, die Sanitärräume bedürfen einer Renovierung.
- Wohnklima: Diese Einheit bietet eine gute Privatsphäre und Ruhe.
- Balkon: Ein überdachter Südbalkon ermöglicht die Nutzung auch bei weniger gutem Wetter.
- Aussicht: Die unverbaubare Aussicht ist ein besonderes Highlight.
- Zugang: Wichtig: Kein Lift vorhanden, was bedeutet, dass die Wohnung über das Treppenhaus erreicht wird.
- Leistbar: Günstiger Kaufpreis mit Kapazität für eine eventuelle Modernisierung.
Bilder sagen viel aus, aber das richtige Gefühl bekommt man erst vor Ort.
Wir laden Sie herzlich ein, diese Immobilien bei einem gemeinsamen Besichtigungstermin in aller Ruhe auf sich wirken zu lassen.
Der Vermittler ist als Doppelmakler tätig.
Infrastruktur / Entfernungen
Gesundheit
Arzt <5.325m
Apotheke <450m
Kinder & Schulen
Schule <4.675m
Kindergarten <600m
Nahversorgung
Supermarkt <400m
Bäckerei <325m
Einkaufszentrum <9.425m
Sonstige
Bank <350m
Geldautomat <350m
Post <4.450m
Polizei <5.850m
Verkehr
Bus <450m
Bahnhof <4.550m
Flughafen <6.900m
Angaben Entfernung Luftlinie / Quelle: OpenStreetMap
Objektdaten
Ausstattung
- Einbauküche
- Zentralheizung
- Ausrichtung Balkon/Terrasse - Süd
- Massiv Bauweise
Zustand
- Baujahr
- 1976
- HWB
- 82.3 kWh/m² pro Jahr
- Klasse HWB
- C
- fGEE
- 4.08
- Klasse fGEE
- G
Flächen
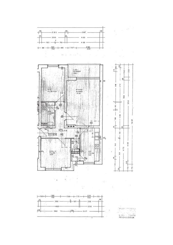
- Wohnfläche
- 71m²
Kosten
- Kaufpreis Brutto
- € 140.000,00
- Betriebskosten
- € 103,61
- Heizkosten
- € 52,52
- Sonstige Kosten
- € 122,79
Verwaltung
- Verfügbar ab
- Juli 2026
Wohnungen zum Kaufen im Umkreis von Raab
Wohnungen zum Kaufen im Umkreis von Raab
Wohnungen zum Kaufen in Österreich
Andere Besucher suchen nach...
- Grundstücke kaufen in 3400 Weidlingbach
- Wohnungen kaufen in 4663 Laakirchen
- Häuser in 7471 Rechnitz
- Wohnungen in 2410 Hainburg an der Donau
- Häuser kaufen in 2432 Schwadorf
- Wohnungen kaufen in 3002 Purkersdorf
- Häuser in 3150 Wilhelmsburg
- Wohnungen kaufen in 3470 Engelmannsbrunn
- Grundstücke kaufen im Bezirk Mattersburg
- Grundstücke kaufen im Bezirk Gmunden