Leistbare, perfekt aufgeteilte 2-Zimmer-Eigentumswohnung
-
01.04.2026
Beschreibung
Diese Kaufgelegenheit ist eine gemütliche 2-Zimmer-Wohnung, die besonders durch ihre Lichtverhältnisse und guten Raumaufteilung gefällt.
Auf Grund der idealen Größe ist sie zusätzlich auch für die Vermietung bestens geeignet.
. Hervorgehobene Merkmale:
- Licht & Zustand: Die Wohnung ist hell und gepflegt.
- Wohnklima: Diese Einheit bietet eine gute Privatsphäre und Ruhe.
- Balkon: Ein überdachter Südbalkon ermöglicht die Nutzung auch bei weniger gutem Wetter.
- Aussicht: Die unverbaubare Aussicht ist ein besonderes Highlight.
- Zugang: Wichtig: Kein Lift vorhanden, was bedeutet, dass die Wohnung über das Treppenhaus erreicht wird.
- Leistbar: Günstige monatliche Bewirtschaftungskosten
Bilder sagen viel aus, aber das richtige Gefühl bekommt...
Diese Kaufgelegenheit ist eine gemütliche 2-Zimmer-Wohnung, die besonders durch ihre Lichtverhältnisse und guten Raumaufteilung gefällt.
Auf Grund der idealen Größe ist sie zusätzlich auch für die Vermietung bestens geeignet.
. Hervorgehobene Merkmale:
- Licht & Zustand: Die Wohnung ist hell und gepflegt.
- Wohnklima: Diese Einheit bietet eine gute Privatsphäre und Ruhe.
- Balkon: Ein überdachter Südbalkon ermöglicht die Nutzung auch bei weniger gutem Wetter.
- Aussicht: Die unverbaubare Aussicht ist ein besonderes Highlight.
- Zugang: Wichtig: Kein Lift vorhanden, was bedeutet, dass die Wohnung über das Treppenhaus erreicht wird.
- Leistbar: Günstige monatliche Bewirtschaftungskosten
Bilder sagen viel aus, aber das richtige Gefühl bekommt man erst vor Ort.
Wir laden Sie herzlich ein, diese Immobilien bei einem gemeinsamen Besichtigungstermin in aller Ruhe auf sich wirken zu lassen.
Der Vermittler ist als Doppelmakler tätig.
Infrastruktur / Entfernungen
Gesundheit
Arzt <5.300m
Apotheke <425m
Kinder & Schulen
Schule <4.675m
Kindergarten <550m
Nahversorgung
Supermarkt <375m
Bäckerei <325m
Einkaufszentrum <9.450m
Sonstige
Bank <325m
Geldautomat <325m
Post <4.450m
Polizei <5.850m
Verkehr
Bus <425m
Bahnhof <4.525m
Flughafen <6.925m
Angaben Entfernung Luftlinie / Quelle: OpenStreetMap
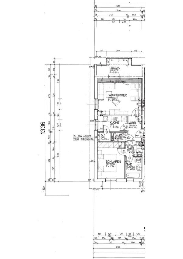
Objektdaten
Ausstattung
- Einbauküche
- Zentralheizung
- Ausrichtung Balkon/Terrasse - Süd
- Massiv Bauweise
Zustand
- Zustand
- GEPFLEGT
- Baujahr
- 1992
- HWB
- 35 kWh/m² pro Jahr
- fGEE
- 0.86
Flächen
- Wohnfläche
- 55m²
Kosten
- Kaufpreis Brutto
- € 125.000,00
- Betriebskosten
- € 83,15
- Heizkosten
- € 24,44
- Sonstige Kosten
- € 68,08
Verwaltung
- Verfügbar ab
- 01.04.2026
Wohnungen zum Kaufen im Umkreis von Raab
Wohnungen zum Kaufen im Umkreis von Raab
Wohnungen zum Kaufen in Österreich
Andere Besucher suchen nach...
- Grundstücke kaufen in 3400 Weidlingbach
- Wohnungen kaufen in 4663 Laakirchen
- Häuser in 7471 Rechnitz
- Wohnungen in 2410 Hainburg an der Donau
- Häuser kaufen in 2432 Schwadorf
- Wohnungen kaufen in 3002 Purkersdorf
- Häuser in 3150 Wilhelmsburg
- Wohnungen kaufen in 3470 Engelmannsbrunn
- Grundstücke kaufen im Bezirk Mattersburg
- Grundstücke kaufen im Bezirk Gmunden