Attraktive und helle 3-Zimmer-Eigentumswohnung mit großem Balkon & Parkplatz!
-
sofort
Beschreibung
In einem gepflegten, im Jahr 2012 errichteten Wohnhaus präsentiert sich diese hochwertige Eigentumswohnung im 1. Obergeschoss als ideale Kombination aus modernem Wohnkomfort, durchdachter Raumaufteilung und naturnahem Lebensgefühl.
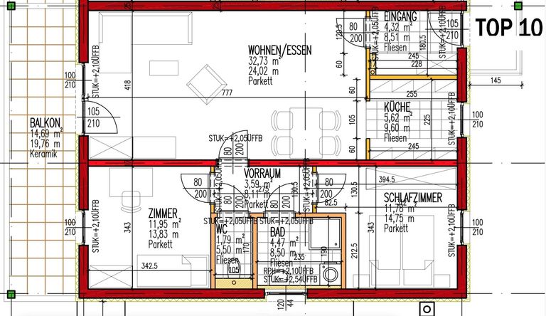
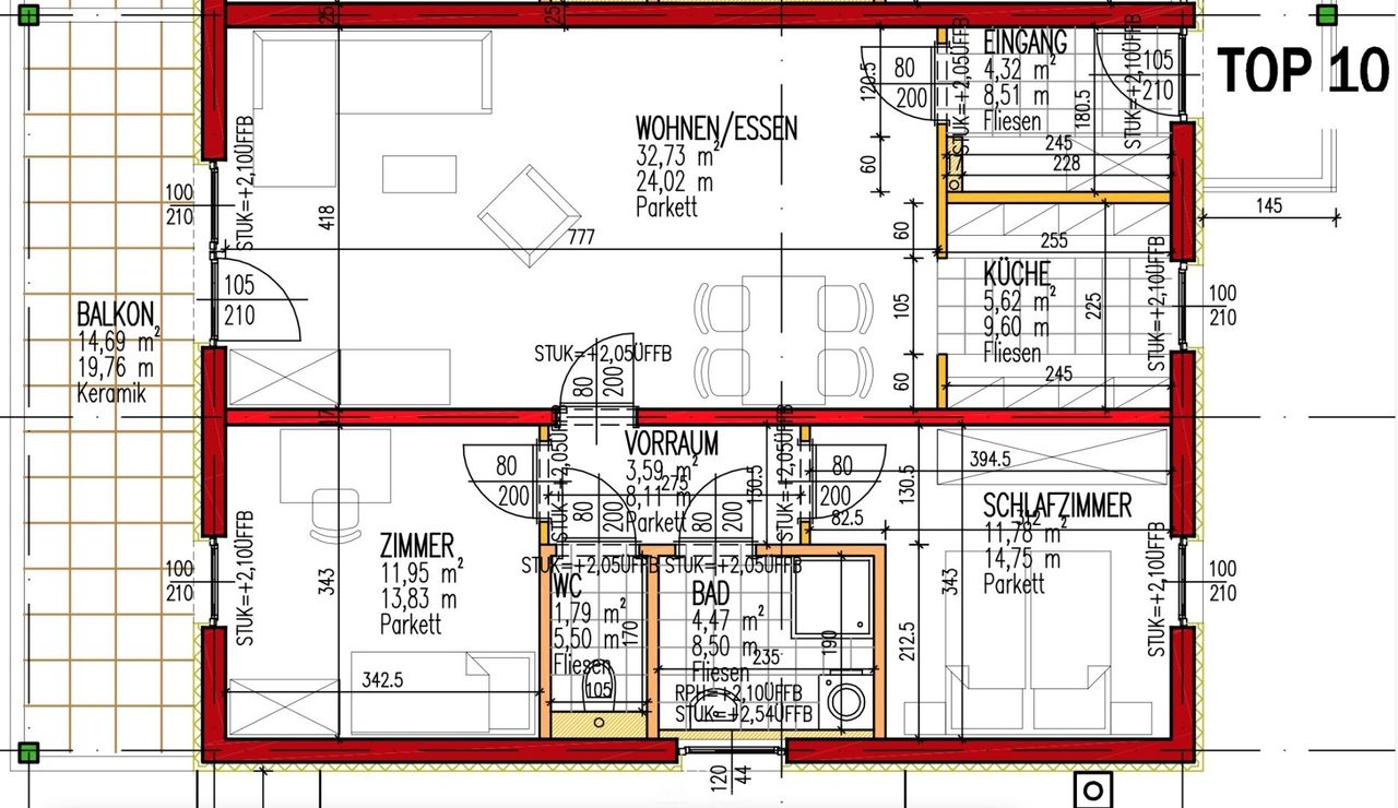
Aufteilung:
- Vorraum
- Heller und geräumiger Wohn-/Essbereich
- 2 Schlafzimmer
- Bad mit Dusche
- Separates WC
- Großer Balkon
Schon beim Eintreten vermittelt der großzügige Vorraum ein Gefühl von Ankommen und Wohnqualität. Klare Strukturen und ein durchdachtes Raumkonzept schaffen eine angenehme Atmosphäre, die sich durch die gesamte Wohnung zieht.
Der offen gestaltete Wohn- und Essbereich überzeugt durch seine Helligkeit und Großzügigkeit. Große Fensterflächen lassen viel Tageslicht herein und schaffen eine freundliche, einladende Wohnatmosphäre. Hier entsteht...
In einem gepflegten, im Jahr 2012 errichteten Wohnhaus präsentiert sich diese hochwertige Eigentumswohnung im 1. Obergeschoss als ideale Kombination aus modernem Wohnkomfort, durchdachter Raumaufteilung und naturnahem Lebensgefühl.
Aufteilung:
- Vorraum
- Heller und geräumiger Wohn-/Essbereich
- 2 Schlafzimmer
- Bad mit Dusche
- Separates WC
- Großer Balkon
Schon beim Eintreten vermittelt der großzügige Vorraum ein Gefühl von Ankommen und Wohnqualität. Klare Strukturen und ein durchdachtes Raumkonzept schaffen eine angenehme Atmosphäre, die sich durch die gesamte Wohnung zieht.
Der offen gestaltete Wohn- und Essbereich überzeugt durch seine Helligkeit und Großzügigkeit. Große Fensterflächen lassen viel Tageslicht herein und schaffen eine freundliche, einladende Wohnatmosphäre. Hier entsteht ein Ort, an dem Wohnen, Entspannen und Genießen harmonisch ineinander übergehen.
Die modern ausgestattete Küche fügt sich nahtlos an den Wohnbereich an und begeistert mit großzügigen Arbeitsflächen und viel Stauraum. Sie ist mit allen zeitgemäßen Elektrogeräten ausgestattet – ideal für anspruchsvolle Genießer.
Zwei ruhig gelegene Schlafzimmer bieten vielseitige Nutzungsmöglichkeiten und ausreichend Platz für individuelle Wohnbedürfnisse – ob als klassisches Schlafzimmer, Gästezimmer oder Homeoffice.
Das geschmackvoll gestaltete Badezimmer mit Dusche sowie das separate WC unterstreichen den funktionalen und zugleich komfortablen Charakter dieser Immobilie.
Ein besonderes Highlight stellt der großzügige Balkon dar, der direkt vom Wohnbereich aus zugänglich ist. Genießen Sie hier entspannte Stunden mit Blick in die umliegende Natur – ein perfekter Rückzugsort für sonnige Tage und laue Abende.
Abgerundet wird dieses attraktive Angebot durch ein Kellerabteil sowie einen PKW-Stellplatz direkt vor dem Haus, die zusätzlichen Komfort und praktische Vorteile bieten.
Die Lage überzeugt durch ihre ruhige, naturnahe Umgebung bei gleichzeitig guter Anbindung und Nähe zu allen wichtigen Einrichtungen des täglichen Bedarfs – eine ideale Kombination aus Lebensqualität und Infrastruktur.
Diese Immobilie eignet sich sowohl für Eigennutzer als auch für Anleger und stellt eine nachhaltige Investition in Wohnkomfort und Wertbeständigkeit dar.
Erleben Sie diese besondere Wohnung persönlich – wir freuen uns auf Ihre Anfrage!
Wir weisen darauf hin, dass zwischen dem Vermittler und dem zu vermittelnden Dritten ein familiäres oder wirtschaftliches Naheverhältnis besteht.
Der Vermittler ist als Doppelmakler tätig.
Infrastruktur / Entfernungen
Gesundheit
Arzt <1.000m
Apotheke <1.000m
Klinik <8.500m
Krankenhaus <2.500m
Kinder & Schulen
Schule <1.500m
Kindergarten <1.500m
Universität <8.500m
Höhere Schule <8.500m
Nahversorgung
Supermarkt <500m
Bäckerei <1.000m
Einkaufszentrum <1.500m
Sonstige
Bank <500m
Geldautomat <500m
Post <2.000m
Polizei <2.000m
Verkehr
Bus <500m
Bahnhof <1.000m
Flughafen <9.500m
Angaben Entfernung Luftlinie / Quelle: OpenStreetMap
Objektdaten
Ausstattung
- Kabel/SAT-TV
- Bad mit Dusche
- Bad mit Fenster
- Einbauküche
- Fliesenboden
- Parkettboden
- Zentralheizung
- Befeuerung mit Gas
- Ausrichtung Balkon/Terrasse - West
- Massiv Bauweise
Zustand
- Zustand
- GEPFLEGT
- Baujahr
- 2012
- Alter
- NEUBAU
- HWB
- 53.7 kWh/m² pro Jahr
- Klasse HWB
- C
- fGEE
- 0.87
- Klasse fGEE
- B
Flächen
- Anzahl der Zimmer
- 3
- Anzahl der Badezimmer
- 1
- Anzahl der sep. WCs
- 1
- Anzahl der Balkone
- 1
- Stellplätze
- 1
- Wohnfläche
- 76m²
- Kellerfläche
- 4m²
Kosten
- Kaufpreis Brutto
- € 175.000,00
- Betriebskosten
- € 97,20
- Heizkosten
- € 56,52
- Sonstige Kosten
- € 119,64
Verwaltung
- Verfügbar ab
- sofort
Wohnungen zum Kaufen im Umkreis von Feldbach
Wohnungen zum Kaufen in Österreich
Andere Besucher suchen nach...
- Immobilien kaufen in 2601 Sollenau
- Immobilien in 4951 Polling im Innkreis, Oberösterreich
- Immobilien in 4742 Pram, Oberösterreich kaufen oder mieten
- Häuser kaufen in 2340 Mödling, Niederösterreich
- Häuser kaufen in 9421 Gemmersdorf, Kärnten
- Wohnungen / Eigentumswohnungen kaufen in 9431 St. Stefan, Kärnten
- Häuser kaufen in Bruck an der Leitha, Niederösterreich
- Immobilien mieten in Krems an der Donau, Niederösterreich
- Häuser zum Kaufen im Bezirk St. Pölten Land, Niederösterreich
- Büro / Praxen mieten in Rohrbach, Oberösterreich