WOHNENSEMBLE BAD RADKERSBURG! 8_WOHNUNGEN. 8_GÄRTEN.
-
Erstbezug
-
2026
-
Dezember 2026
Beschreibung
PROJEKT „Hofgärten Neuhummersdorf“ – Modern wohnen mit Lebensqualität!
In attraktiver Lage entsteht ein kleines, feines Wohnprojekt mit nur 8 hochwertig ausgeführten Wohneinheiten. Die moderne Architektur, durchdachte Grundrisse und private Freiflächen schaffen ein ideales Zuhause für alle, die Ruhe, Komfort und Qualität schätzen.
Großzügige Wohnbereiche, helle Räume und funktionale Raumaufteilungen sorgen für ein angenehmes Wohngefühl. Jede Einheit verfügt über einen eigenen Außenbereich sowie ein Carport – perfekt abgestimmt auf die Anforderungen des modernen Wohnens.
ECKDATEN
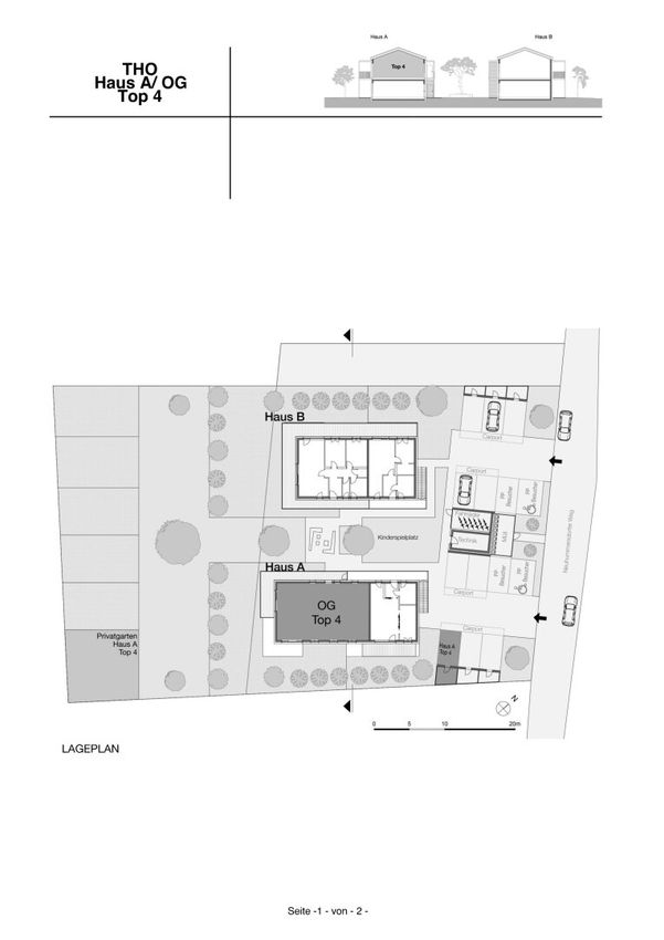
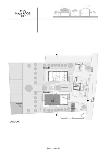
Obergeschosswohnung Haus A TOP 4: 4-Zimmer-Wohnung mit Terrasse, Privatgarten und Carport mit Abstellbox
KOSTEN:
- Verkaufspreis Wohnung: 484.000,00 €
- Verkaufspreis Carport: 20.000,00 €
- Verkaufspreis Privatgarten: 8.400,00...
PROJEKT „Hofgärten Neuhummersdorf“ – Modern wohnen mit Lebensqualität!
In attraktiver Lage entsteht ein kleines, feines Wohnprojekt mit nur 8 hochwertig ausgeführten Wohneinheiten. Die moderne Architektur, durchdachte Grundrisse und private Freiflächen schaffen ein ideales Zuhause für alle, die Ruhe, Komfort und Qualität schätzen.
Großzügige Wohnbereiche, helle Räume und funktionale Raumaufteilungen sorgen für ein angenehmes Wohngefühl. Jede Einheit verfügt über einen eigenen Außenbereich sowie ein Carport – perfekt abgestimmt auf die Anforderungen des modernen Wohnens.
ECKDATEN
Obergeschosswohnung Haus A TOP 4: 4-Zimmer-Wohnung mit Terrasse, Privatgarten und Carport mit Abstellbox
KOSTEN:
- Verkaufspreis Wohnung: 484.000,00 €
- Verkaufspreis Carport: 20.000,00 €
- Verkaufspreis Privatgarten: 8.400,00 €
HIGHLIGHTS:
- Kleine, exklusive Wohnanlage mit nur 8 Einheiten
- Moderne, zeitlose Architektur
- Durchdachte Grundrisse & optimale Raumaufteilung
- Helle Wohnräume durch große Fensterflächen
- Terrasse und zusätzlicher eigener Privatgarten
- Überdachter Außenbereich
- Carport inklusive zusätzlichem Stauraum
- Ruhige Wohnlage mit hoher Lebensqualität
Voraussichtlicher Baustart: 2026
VERKAUF & BERATUNG:
Sehr gerne stehe ich Ihnen für Rückfragen zur Verfügung!
Ich freue mich auf Ihre Anfrage!
Gertrud Sablatnig, MBA
Staatlich konzessionierte Immobilienmaklerin
Tel: +43/664 88 14 04 85
E-Mail: gertrud@immobilien-sablatnig.at
Alle Informationen beruhen auf Angaben des Abgebers und sind ohne Gewähr. Wir dürfen darauf hinweisen, dass wir als Doppelmakler tätig sind und ein wirtschaftliches Nahverhältnis zu unserem Auftraggeber besteht. Dieses ergibt sich aus regelmäßiger geschäftlicher Verbindung. Weiters möchten wir Sie informieren, dass ein Provisionsanspruch erst nach Unterzeichnung eines Kaufanbots besteht. Eine Besichtigung dieser schönen Liegenschaft ist selbstverständlich für Sie unverbindlich und kostenlos.
WICHTIGER gesetzlicher HINWEIS:
Wir bitten um Ihr Verständnis, dass wir aufgrund einer neuen EU-Richtlinie (§11FAGG) Unterlagen und Besichtigungstermine für unsere Immobilien erst dann zusenden und vereinbaren können, wenn Sie uns bestätigen, dass Sie über Ihre Rücktrittsrechte aufgeklärt wurden und unser sofortiges Tätigwerden wünschen.
Des weiteren ersuchen wir um Verständnis, dass wir gemäß österreichischer Gewerbeordnung, sowie unserer Nachweispflicht gegenüber dem Auftraggeber nur Anfragen mit vollständigem Namen, Anschrift, Telefonnummer und Mail Adresse bearbeiten bzw. detaillierte Unterlagen weiterleiten können.
Wir bitten um Ihr Verständnis, vielen Dank!
Wir weisen darauf hin, dass zwischen dem Vermittler und dem zu vermittelnden Dritten ein familiäres oder wirtschaftliches Naheverhältnis besteht.
Der Vermittler ist als Doppelmakler tätig.
Infrastruktur / Entfernungen
Gesundheit
Arzt <1.300m
Apotheke <1.775m
Klinik <1.600m
Krankenhaus <1.325m
Kinder & Schulen
Schule <1.700m
Kindergarten <1.925m
Nahversorgung
Supermarkt <1.350m
Bäckerei <3.075m
Einkaufszentrum <1.500m
Sonstige
Geldautomat <1.350m
Bank <1.350m
Post <1.800m
Polizei <1.550m
Verkehr
Bus <400m
Bahnhof <625m
Angaben Entfernung Luftlinie / Quelle: OpenStreetMap
Objektdaten
Ausstattung
- Barrierefrei
- Bad mit Dusche
- Bad mit Fenster
- Fliesenboden
- Parkettboden
- Fußbodenheizung
- Flachdach
- Massiv Bauweise
- Schlüsselfertig mit Bodenplatte
Zustand
- Zustand
- ERSTBEZUG
- Baujahr
- 2026
- Alter
- NEUBAU
Flächen
- Anzahl der Zimmer
- 4
- Anzahl der Badezimmer
- 1
- Anzahl der sep. WCs
- 1
- Anzahl der Terrassen
- 1
- Stellplätze
- 1
- Wohnfläche
- 98m²
- Nutzfläche
- 98m²
- Gartenfläche
- 103m²
- Terrassenfläche
- 1m²
Kosten
- Kaufpreis Brutto
- € 512.400,00
Verwaltung
- Verfügbar ab
- Dezember 2026
Wohnungen zum Kaufen im Umkreis von Bad Radkersburg
Wohnungen zum Kaufen im Umkreis von Bad Radkersburg
Wohnungen zum Kaufen in Österreich
Andere Besucher suchen nach...
- Grundstücke kaufen in 3400 Weidlingbach
- Wohnungen kaufen in 4663 Laakirchen
- Häuser in 7471 Rechnitz
- Wohnungen in 2410 Hainburg an der Donau
- Häuser kaufen in 2432 Schwadorf
- Wohnungen kaufen in 3002 Purkersdorf
- Häuser in 3150 Wilhelmsburg
- Wohnungen kaufen in 3470 Engelmannsbrunn
- Grundstücke kaufen im Bezirk Mattersburg
- Grundstücke kaufen im Bezirk Gmunden