Erstbezug - moderne, sehr sonnige Neubauwohnung mit großzügiger Freifläche in Klosterneuburg
€ 785.000
€ 7.621 / m²
3400 Klosterneuburg
-
Erstbezug
-
ca. 2025
-
sofort
Beschreibung
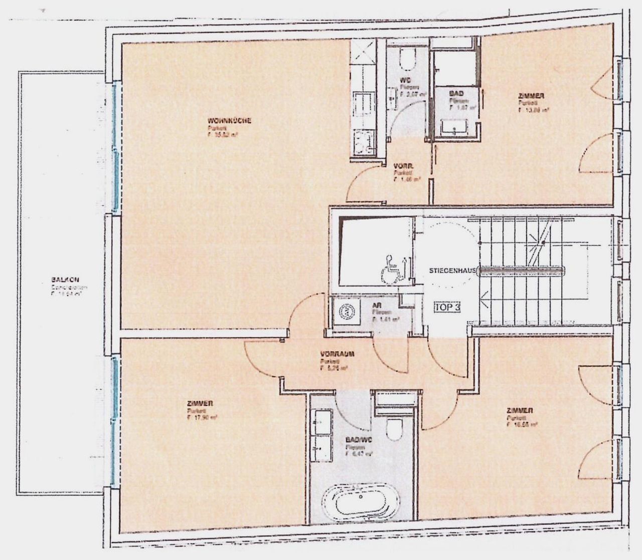
Erstbezug - moderne, sehr sonnige 4-Zimmer Neubauwohnung mit großzügiger Freifläche in Klosterneuburg In bester und sonniger Lage Klosterneuburgs wurde ein exklusiver und lichtdurchfluteter Wohnbau mit 2 Häusern errichtet, in dem 6 traumhafte Wohnungen mit großzügigen Außenflächen entstanden. Es gibt einen Gemeinschaftsgarten und zu allen Wohnungen Balkone, Terrassen oder Eigengarten. Diese Wohnung besteht aus: - einem sonnendurchfluteten, großen Wohnbereich mit direktem Ausgang auf den Balkon - offener Küche - 3 Schlafzimmern ( davon 1 Schlafzimmer mit Ausgang auf den Balkon) - Bad mit WC - Duschbad - separatem WC - Abstellraum - Vorraum - einem herrlichen 19 m² Balkon Sie ist...
Erstbezug - moderne, sehr sonnige 4-Zimmer Neubauwohnung mit großzügiger Freifläche in Klosterneuburg
In bester und sonniger Lage Klosterneuburgs wurde ein exklusiver und lichtdurchfluteter Wohnbau mit 2 Häusern errichtet, in dem 6 traumhafte Wohnungen mit großzügigen Außenflächen entstanden. Es gibt einen Gemeinschaftsgarten und zu allen Wohnungen Balkone, Terrassen oder Eigengarten.
Diese Wohnung besteht aus:
- einem sonnendurchfluteten, großen Wohnbereich mit direktem Ausgang auf den Balkon
- offener Küche
- 3 Schlafzimmern ( davon 1 Schlafzimmer mit Ausgang auf den Balkon)
- Bad mit WC
- Duschbad
- separatem WC
- Abstellraum
- Vorraum
- einem herrlichen 19 m² Balkon
Sie ist ausgestattet mit:
- einer gemütlichen Fußbodenheizung,
- Vollholz -Parkettböden,
- hochwertigen Bädern
- großzügigen Fensterflächen
- Rollläden
- Klimaanlage
Die Wohnung ist barrierefrei und auch barrierefrei erreichbar.
Zur Wohnung gehört auch ein Garagenplatz, dieser ist um zusätzliche € 25.000,- zu erwerben.
Die nachhaltige Bauweise, der durchdachte Grundriss, das eigene Kellerabteil, der allgemeine Fahrrad- und Kinderwagenabstellraum, der Garagenplatz und Barrierefreiheit sind weitere Vorzüge des modernen Gebäudes und ermöglichen ein unkompliziertes Wohnen und leichtes Leben.
Klosterneuburg ist ein Ort mit hoher Lebens- und Wohnqualität, mit viel Natur in der Nähe mit Wienerwald, Weinberge, Aulandschaft und Donau, eine historische Stadt mit Kloster, Kirchen und Heurigen. Sie hat sich auch als moderne Wissenschaftsstadt und Zentrum führender Forschungs- sowie Bildungsstätten etablieren und bietet die Freiheit für sämtliche Sportmöglichkeiten zu jeder Jahreszeit z.B. Wandern, Laufen, Rad-und Mountainbike, Tennis, Wasser- und Rudersport, mit Kuchelauer Hafen und dem Strandbad Kritzendorf nebenan.
Lage: Nähe Ölberg
ca. 15 min. mit dem Auto nach Wien
ca. 20 min. ins Zentrum von Wien
Bushaltestelle in unmittelbarer Nähe
Zentrum von Klosterneuburg - ca. 20 min. zu Fuß
ca. 12 min. zu Fuß zum Bahnhof Unterkritzendorf
und dann mit der S 40 in ca. 15 min. Wien - Spittelau - U4
Supermarkt fußläufig erreichbar
Sehr gerne steht Ihnen Herr Martin Wicho für weitere Informationen und einer Besichtigung unter 0660/160 60 00 oder unter wicho@dimagimmobilien.at zu Verfügung.
Wir freuen uns auf Ihre Anfrage, um Ihnen diese herausragende Terrassenwohnung näherbringen zu können.
Vielen Dank.
Dieses Projekt befindet sich derzeit noch in der Baufertigstellung. Eine Komplettierung ist bis Mitte 2026 geplant. Besichtigungen sowie ein Aufklärungsgespräch sind aber bereits jetzt schon sehr gerne möglich.
In bester und sonniger Lage Klosterneuburgs wurde ein exklusiver und lichtdurchfluteter Wohnbau mit 2 Häusern errichtet, in dem 6 traumhafte Wohnungen mit großzügigen Außenflächen entstanden. Es gibt einen Gemeinschaftsgarten und zu allen Wohnungen Balkone, Terrassen oder Eigengarten.
Diese Wohnung besteht aus:
- einem sonnendurchfluteten, großen Wohnbereich mit direktem Ausgang auf den Balkon
- offener Küche
- 3 Schlafzimmern ( davon 1 Schlafzimmer mit Ausgang auf den Balkon)
- Bad mit WC
- Duschbad
- separatem WC
- Abstellraum
- Vorraum
- einem herrlichen 19 m² Balkon
Sie ist ausgestattet mit:
- einer gemütlichen Fußbodenheizung,
- Vollholz -Parkettböden,
- hochwertigen Bädern
- großzügigen Fensterflächen
- Rollläden
- Klimaanlage
Die Wohnung ist barrierefrei und auch barrierefrei erreichbar.
Zur Wohnung gehört auch ein Garagenplatz, dieser ist um zusätzliche € 25.000,- zu erwerben.
Die nachhaltige Bauweise, der durchdachte Grundriss, das eigene Kellerabteil, der allgemeine Fahrrad- und Kinderwagenabstellraum, der Garagenplatz und Barrierefreiheit sind weitere Vorzüge des modernen Gebäudes und ermöglichen ein unkompliziertes Wohnen und leichtes Leben.
Klosterneuburg ist ein Ort mit hoher Lebens- und Wohnqualität, mit viel Natur in der Nähe mit Wienerwald, Weinberge, Aulandschaft und Donau, eine historische Stadt mit Kloster, Kirchen und Heurigen. Sie hat sich auch als moderne Wissenschaftsstadt und Zentrum führender Forschungs- sowie Bildungsstätten etablieren und bietet die Freiheit für sämtliche Sportmöglichkeiten zu jeder Jahreszeit z.B. Wandern, Laufen, Rad-und Mountainbike, Tennis, Wasser- und Rudersport, mit Kuchelauer Hafen und dem Strandbad Kritzendorf nebenan.
Lage: Nähe Ölberg
ca. 15 min. mit dem Auto nach Wien
ca. 20 min. ins Zentrum von Wien
Bushaltestelle in unmittelbarer Nähe
Zentrum von Klosterneuburg - ca. 20 min. zu Fuß
ca. 12 min. zu Fuß zum Bahnhof Unterkritzendorf
und dann mit der S 40 in ca. 15 min. Wien - Spittelau - U4
Supermarkt fußläufig erreichbar
Sehr gerne steht Ihnen Herr Martin Wicho für weitere Informationen und einer Besichtigung unter 0660/160 60 00 oder unter wicho@dimagimmobilien.at zu Verfügung.
Wir freuen uns auf Ihre Anfrage, um Ihnen diese herausragende Terrassenwohnung näherbringen zu können.
Vielen Dank.
Dieses Projekt befindet sich derzeit noch in der Baufertigstellung. Eine Komplettierung ist bis Mitte 2026 geplant. Besichtigungen sowie ein Aufklärungsgespräch sind aber bereits jetzt schon sehr gerne möglich.
| Angaben gemäß gesetzlichem Erfordernis: | |||
| Heizwärmebedarf: | 54.2 kWh/(m²a) | ||
| Klasse Heizwärmebedarf: | B | ||
Objektdaten
Ausstattung
- WG geeignet
- Räume veränderbar
- Klimatisiert
- Gartennutzung
- Rollstuhlgerecht
- Kabel/SAT-TV
- Barrierefrei
- Unterkellert
- Fußbodenheizung
- Personen Fahrstuhl
- Massiv Bauweise
- Neubaustandard
- Barrierefrei
- Zeigelmassiv
- Bus
- Eisenbahn
- Fußbodenheizung
- Gegensprechanlage
- Grüne Lage
- Kabel/SAT-TV
- Sonstiges
- Rollstuhlgerecht
- Räume veränderbar
- Schnellbahn
- Sicherheitsdienst
- Sonnenschutz
- Sonnige Lage
- Stadtrand
- Villengegend
Zustand
- Zustand
- ERSTBEZUG
- Baujahr
- ca. 2025
- Alter
- NEUBAU
Flächen
- Anzahl der Zimmer
- 4
- Anzahl der Schlafzimmer
- 3
- Anzahl der Badezimmer
- 2
- Anzahl der sep. WCs
- 2
- Anzahl der Balkone
- 1
- Stellplätze
- 2
- Wohnfläche
- 103m²
- Gartenfläche
- 30m²
- Kellerfläche
- 3m²
Kosten
- Kaufpreis
- € 785.000,00
- Nebenkosten
- € 247,50
- Betriebskosten Brutto
- € 247,50
Verwaltung
- Verfügbar ab
- sofort
Wohnungen zum Kaufen in Österreich
Wohnungen zum Kaufen in Österreich
Andere Besucher suchen nach...
- Immobilien kaufen in 2601 Sollenau
- Immobilien in 4951 Polling im Innkreis, Oberösterreich
- Immobilien in 4742 Pram, Oberösterreich kaufen oder mieten
- Häuser kaufen in 2340 Mödling, Niederösterreich
- Häuser kaufen in 9421 Gemmersdorf, Kärnten
- Wohnungen / Eigentumswohnungen kaufen in 9431 St. Stefan, Kärnten
- Häuser kaufen in Bruck an der Leitha, Niederösterreich
- Immobilien mieten in Krems an der Donau, Niederösterreich
- Häuser zum Kaufen im Bezirk St. Pölten Land, Niederösterreich
- Büro / Praxen mieten in Rohrbach, Oberösterreich