Wo Bäume rauschen und Vögel singen, dort findet die Seele ihren Frieden
-
ab sofort
Beschreibung
Ihr neues Zuhause wartet auf Sie und Ihre Liebsten!
Sie brauchen viel Platz für Ihre Familie? Sie benötigen eine gute Verkehrsanbindung, möchten aber trotzdem im Grünen wohnen? Sie schätzen Ruhe und nette Nachbarschaft?
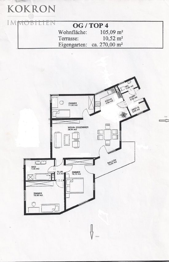
Dann ist diese moderne 4-Zimmer-Eigentumswohnung genau das richtige für Sie und Ihre Familie. In herrlicher Grün-Ruhelage in einer Villengegend am Rande des Wienerwaldes steht dieses kleine Wohnhaus mit insgesamt nur 6 Wohneinheiten. Jeder dieser Wohnungen ist ein Garten zur Eigennutzung zugeteilt, "Ihr" Garten bietet Ihnen 270m², eine südseitige Terrasse und ein geräumiges Gartenhaus mit Sommerküche und überdachter Terrasse.
Die Wohnung selbst überzeugt mit einem großen Wohnbereich...
Ihr neues Zuhause wartet auf Sie und Ihre Liebsten!
Sie brauchen viel Platz für Ihre Familie? Sie benötigen eine gute Verkehrsanbindung, möchten aber trotzdem im Grünen wohnen? Sie schätzen Ruhe und nette Nachbarschaft?
Dann ist diese moderne 4-Zimmer-Eigentumswohnung genau das richtige für Sie und Ihre Familie. In herrlicher Grün-Ruhelage in einer Villengegend am Rande des Wienerwaldes steht dieses kleine Wohnhaus mit insgesamt nur 6 Wohneinheiten. Jeder dieser Wohnungen ist ein Garten zur Eigennutzung zugeteilt, "Ihr" Garten bietet Ihnen 270m², eine südseitige Terrasse und ein geräumiges Gartenhaus mit Sommerküche und überdachter Terrasse.
Die Wohnung selbst überzeugt mit einem großen Wohnbereich mit direktem Ausgang auf den Süd-West-Balkon, einer offenen Küche, 3 (Schlaf)zimmern davon 1 Master-Bedroom mit Ausgang auf den Balkon. Ein großzügiges Tageslichtbad mit Badewanne, Dusche, WC ist zentral bei den Schlafräumen platziert, ein Gäste-WC befindet sich direkt beim Eingang. Jeder Wohnung ist ein eigenes Kellerabteil zugeteilt, außerdem gibt es noch einen Gemeinschaftskeller und einen Fahrradraum.
Hat diese Immobilie Ihr Interesse geweckt?
Dann Klicken Sie auf den "Anfrage-Button" in dieser Anzeige und ich schicke Ihnen anschließend das detaillierte Exposé. Lediglich Anfragen mit vollständigem Namen, einer Telefonnummer sowie einer E-Mail-Adresse können unsererseits bearbeitet werden.
Besichtigungen
Ich stehe Ihnen auch zu Tagesrandzeiten oder am Wochenende zur Verfügung. Die von uns bereitgestellten Informationen beruhen auf Angaben des Abgebers. Für die Richtigkeit und Vollständigkeit der Angaben kann keine Gewähr bzw. Haftung übernommen werden. Änderungen vorbehalten! Fotos: © Felix Killmeyer (www.photographiekillmeyer.com)
Wir weisen darauf hin, dass zwischen dem Vermittler und dem zu vermittelnden Dritten ein familiäres oder wirtschaftliches Naheverhältnis besteht.
Der Vermittler ist als Doppelmakler tätig.
Infrastruktur / Entfernungen
Gesundheit
Arzt <3.000m
Apotheke <3.000m
Krankenhaus <4.500m
Klinik <1.000m
Kinder & Schulen
Schule <2.000m
Kindergarten <2.000m
Universität <3.000m
Nahversorgung
Supermarkt <1.500m
Bäckerei <3.500m
Einkaufszentrum <8.500m
Sonstige
Bank <1.500m
Geldautomat <4.000m
Post <3.000m
Polizei <3.500m
Verkehr
Bus <1.000m
Autobahnanschluss <3.500m
Bahnhof <1.500m
Straßenbahn <9.500m
Angaben Entfernung Luftlinie / Quelle: OpenStreetMap
Objektdaten
Ausstattung
- Fahrradraum
- Rolladen
- Gäste-WC
- Bad mit Dusche
- Bad mit Badewanne
- Bad mit Fenster
- Einbauküche
- Offene Küche
- Fliesenboden
- Parkettboden
- Zentralheizung
- Befeuerung mit Öl
- Ausrichtung Balkon/Terrasse - Südwest
Dokumente / Links
Zustand
- Baujahr
- 2001
- Alter
- NEUBAU
- HWB
- 62.3 kWh/m² pro Jahr
- Klasse HWB
- C
- fGEE
- 1.23
- Klasse fGEE
- C
Flächen
- Anzahl der Zimmer
- 4
- Anzahl der sep. WCs
- 2
- Anzahl der Balkone
- 1
- Stellplätze
- 2
- Wohnfläche
- 105m²
- Grundstücksfläche
- 2.695m²
- Gartenfläche
- 270m²
- Kellerfläche
- 6m²
Kosten
- Kaufpreis Brutto
- € 599.999,00
- Betriebskosten
- € 155,23
- Heizkosten
- € 124,64
- Sonstige Kosten
- € 178,13
Verwaltung
- Verfügbar ab
- ab sofort
Wohnungen zum Kaufen im Umkreis von Klosterneuburg
- Bezirk Gemeindebezirk Döbling
- Bezirk Gemeindebezirk Döbling
- Bezirk Gemeindebezirk Döbling
- Bezirk Gemeindebezirk Währing
- Bezirk Gemeindebezirk Währing
- Bezirk Gemeindebezirk Währing
- Bezirk Gemeindebezirk Floridsdorf
- Bezirk Gemeindebezirk Floridsdorf
- Bezirk Gemeindebezirk Floridsdorf
- Bezirk Gemeindebezirk Hernals
Wohnungen zum Kaufen in Österreich
Andere Besucher suchen nach...
- Immobilien kaufen in 2601 Sollenau
- Immobilien in 4951 Polling im Innkreis, Oberösterreich
- Immobilien in 4742 Pram, Oberösterreich kaufen oder mieten
- Häuser kaufen in 2340 Mödling, Niederösterreich
- Häuser kaufen in 9421 Gemmersdorf, Kärnten
- Wohnungen / Eigentumswohnungen kaufen in 9431 St. Stefan, Kärnten
- Häuser kaufen in Bruck an der Leitha, Niederösterreich
- Immobilien mieten in Krems an der Donau, Niederösterreich
- Häuser zum Kaufen im Bezirk St. Pölten Land, Niederösterreich
- Büro / Praxen mieten in Rohrbach, Oberösterreich