Geheimtipp im Weinviertel - Top 2
-
Erstbezug
-
2025
-
Herbst/Winter 2025
Beschreibung
Modernes Wohnprojekt mit Freiflächen, Top-Ausstattung und attraktiven Kaufkonditionen
In der begehrten Weinbaugemeinde Kirchberg am Wagram entstehen aktuell 52 hochwertige Eigentumswohnungen in Ziegelmassiv-Niedrigenergiebauweise. Zwei moderne Baukörper, verbunden durch ein zentrales Stiegenhaus mit Lift, bieten lichtdurchflutete, durchdacht geschnittene Wohneinheiten für höchste Ansprüche – alle mit Balkon oder Eigengarten.
Diese Wohnanlage wurde mit Fokus auf Nachhaltigkeit, Komfort und Alltagstauglichkeit geplant. Ein ansprechendes Architekturkonzept, gepaart mit effizienter Haustechnik und liebevoll gestalteten Außenflächen, sorgt für dauerhafte Lebensqualität – für Eigennutzer:innen wie auch für Anleger:innen.
Ausstattungshighlights
- Fußbodenheizung mit Fernwärme
- Kontrollierte Wohnraumlüftung mit Wärmerückgewinnung
- Große, bodentiefe Fenster für viel Tageslicht
- Ziegelmassivbau mit Vollwärmeschutz –...
Modernes Wohnprojekt mit Freiflächen, Top-Ausstattung und attraktiven Kaufkonditionen
In der begehrten Weinbaugemeinde Kirchberg am Wagram entstehen aktuell 52 hochwertige Eigentumswohnungen in Ziegelmassiv-Niedrigenergiebauweise. Zwei moderne Baukörper, verbunden durch ein zentrales Stiegenhaus mit Lift, bieten lichtdurchflutete, durchdacht geschnittene Wohneinheiten für höchste Ansprüche – alle mit Balkon oder Eigengarten.
Diese Wohnanlage wurde mit Fokus auf Nachhaltigkeit, Komfort und Alltagstauglichkeit geplant. Ein ansprechendes Architekturkonzept, gepaart mit effizienter Haustechnik und liebevoll gestalteten Außenflächen, sorgt für dauerhafte Lebensqualität – für Eigennutzer:innen wie auch für Anleger:innen.
Ausstattungshighlights
- Fußbodenheizung mit Fernwärme
- Kontrollierte Wohnraumlüftung mit Wärmerückgewinnung
- Große, bodentiefe Fenster für viel Tageslicht
- Ziegelmassivbau mit Vollwärmeschutz – Top-Dämmwerte
- Vorbereitungen für außenliegenden Sonnenschutz
- Glasfaser (A1) & Kabelplus-Anschlüsse in jeder Einheit
- Lift in alle Etagen
- Kellerabteile, Fahrradstellplätze & Spielplatz
- Wohnungen werden grundsätzlich belagsfertig übergeben
Wahlweise mit Eigengarten oder Balkon
- Erdgeschosswohnungen verfügen über einen privaten Eigengarten
- Alle Wohnungen im 1. & 2. Obergeschoss bieten einen eigenen Balkon
- Außenanlagen inkl. Spielplätze und Müllplatz sind hochwertig gestaltet
- Kaufpreis für Kfz-Stellplatz: € 6.600,-
Kaufabwicklung ohne BTVG – einfach & sicher
Die Abwicklung erfolgt außerhalb des Bauträgervertragsgesetzes (BTVG).
Das bedeutet für Sie:
🔹 Nur 25 % Anzahlung auf ein sicheres Treuhandkonto (oder Bankgarantie möglich)
🔹 Der Restkaufpreis wird erst 2 Wochen vor Übergabe fällig
🔹 Keine Baufortschrittszahlungen – volle Kontrolle und Sicherheit
Jetzt investieren & Vorsprung sichern!
Dieses Projekt kombiniert niedrige Betriebskosten, exzellente Bauqualität und eine Lage mit langfristigem Wertzuwachs. Ob zur Eigennutzung oder als Anlage – profitieren Sie von einem Wohnprojekt, das mitgedacht wurde.
📞 Kontaktieren Sie uns jetzt für Verfügbarkeiten, Preise & Grundrisse – wir beraten Sie gerne persönlich!
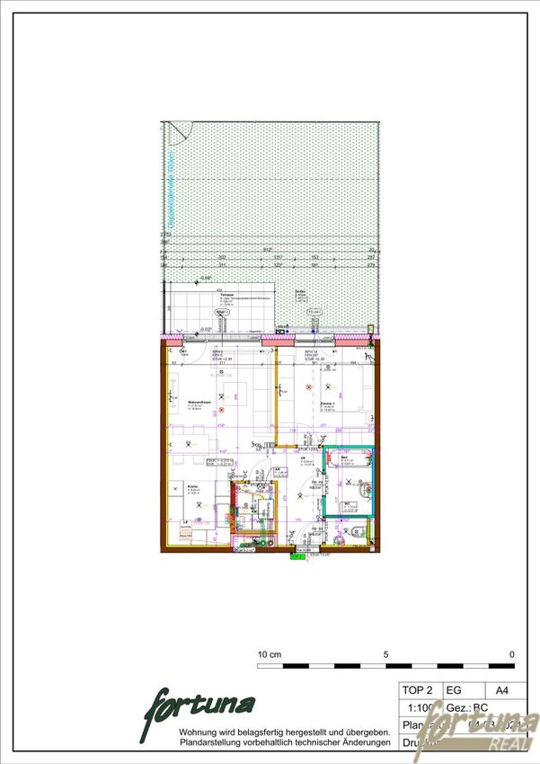
2-Zimmer-Wohntraum mit Eigengarten & Terrasse – ruhig, modern & bestens angebunden
Diese exklusive Gartenwohnung im Erdgeschoss bietet Ihnen auf rund 58,4m² Wohnfläche alles, was modernes Wohnen heute ausmacht: intelligente Raumaufteilung, lichtdurchflutete Räume, hochwertige Bauweise – kombiniert mit dem besonderen Plus eines privaten Gartens mit Terrasse.
Highlights auf einen Blick:
- 2 helle Zimmer – ideal für Paare, oder Singles
- 58,41 m² Wohnfläche
- Private Gartenfläche + Terrasse für entspannte Stunden im Freien
- Westliche Ausrichtung – genießen Sie die Abendsonne
- Bodentiefe Fenster für viel Licht und ein großzügiges Raumgefühl
- Kontrollierte Wohnraumlüftung mit Wärmerückgewinnung
- Ziegelmassiv-Niedrigenergiebauweise für niedrige Betriebskosten
Wir freuen uns über Ihre Anfrage über die jeweilige Immobilienplattform. Kein Exposé ersetzt das persönliche Erleben – überzeugen Sie sich vor Ort von der Qualität und der traumhaften Lage!
Zusatzinformationen für Anleger:innen & Investor:innen
- Kaufpreis Kfz-Stellplatz: € 5.940,– zzgl. 20 % USt
- Der angegebene Kaufpreis versteht sich für Privatkäufer:innen.
- Für Anleger & Investoren gilt ein Nettokaufpreis von: € 213.610,96 zzgl. 20 % USt
- Auf Wunsch vermitteln wir Ihnen gerne erfahrene Handwerkspartner für die Ausstattung und den Innenausbau.
Infrastruktur / Entfernungen
Gesundheit
Arzt <75m
Apotheke <575m
Kinder & Schulen
Kindergarten <650m
Schule <600m
Nahversorgung
Supermarkt <150m
Bäckerei <450m
Sonstige
Bank <450m
Geldautomat <550m
Post <475m
Polizei <500m
Verkehr
Bus <500m
Autobahnanschluss <3.000m
Bahnhof <550m
Angaben Entfernung Luftlinie / Quelle: OpenStreetMap
Objektdaten
Ausstattung
- Barrierefrei
Dokumente / Links
Zustand
- Zustand
- ERSTBEZUG
- Baujahr
- 2025
- Alter
- NEUBAU
- HWB
- 27.1 kWh/m² pro Jahr
- Klasse HWB
- B
- fGEE
- 0.65
- Klasse fGEE
- A+
Flächen
- Anzahl der Zimmer
- 2
- Wohnfläche
- 58m²
- Gartenfläche
- 60m²
Kosten
- Kaufpreis Brutto
- € 237.345,51
Verwaltung
- Verfügbar ab
- Herbst/Winter 2025
Wohnungen zum Kaufen im Umkreis von Kirchberg am Wagram
Wohnungen zum Kaufen im Umkreis von Kirchberg am Wagram
Wohnungen zum Kaufen in Österreich
Andere Besucher suchen nach...
- Grundstücke kaufen in 3400 Weidlingbach
- Wohnungen kaufen in 4663 Laakirchen
- Häuser in 7471 Rechnitz
- Wohnungen in 2410 Hainburg an der Donau
- Häuser kaufen in 2432 Schwadorf
- Wohnungen kaufen in 3002 Purkersdorf
- Häuser in 3150 Wilhelmsburg
- Wohnungen kaufen in 3470 Engelmannsbrunn
- Grundstücke kaufen im Bezirk Mattersburg
- Grundstücke kaufen im Bezirk Gmunden