FAMILIENFREUNDLICHE DG-MAISONETTE + 2 TERRASSEN NAHE STADTPARK/ROCHUSMARKT (U4,U3)
-
Erstbezug
-
2023
-
nach Absprache
Beschreibung
Diese top-moderne DG-Maisonette-Wohnung liegt im 1.DG und 2.DG eines herrschaftlichen und 2023 komplett generalsanierten Gründerzeithauses aus der Jahrhundertwende. Auf den den bestehenden Altbaubestand wurden vier barrierefreie DG-Maisonette-Wohnungen gebaut und 2023 fertiggestellt.
Das Objekt besticht durch seine Nähe zum 1. Bezirk, die perfekte Raumaufteilung, die hochwertige Ausstattung sowie die hervorragende öffentliche Verkehrsanbindung samt Nahversorgung. In unmittelbarer Nähe befindet sich der Stadtpark, der Rochusmarkt sowie die Landstraße Wien Mitte "The Mall". In Fußweite fahren die Ubahn-Linien U3 (Rochusgasse, Landstraße) und U4 (Landstraße, Stadtpark), diverse Schnellbahnen der City Airport Train (CAT) sowie die Straßenbahnlinien O, 1 und die Autobuslinien 4A und 74A.
Die...
Diese top-moderne DG-Maisonette-Wohnung liegt im 1.DG und 2.DG eines herrschaftlichen und 2023 komplett generalsanierten Gründerzeithauses aus der Jahrhundertwende. Auf den den bestehenden Altbaubestand wurden vier barrierefreie DG-Maisonette-Wohnungen gebaut und 2023 fertiggestellt.
Das Objekt besticht durch seine Nähe zum 1. Bezirk, die perfekte Raumaufteilung, die hochwertige Ausstattung sowie die hervorragende öffentliche Verkehrsanbindung samt Nahversorgung. In unmittelbarer Nähe befindet sich der Stadtpark, der Rochusmarkt sowie die Landstraße Wien Mitte "The Mall".
In Fußweite fahren die Ubahn-Linien U3 (Rochusgasse, Landstraße) und U4 (Landstraße, Stadtpark), diverse Schnellbahnen der City Airport Train (CAT) sowie die Straßenbahnlinien O, 1 und die Autobuslinien 4A und 74A.
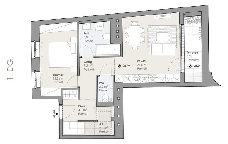
Die 4-Zimmer-Wohnung erstreckt sich auf ca. 93m² + ca. 22m² Terrassenfläche und gliedert sich wie folgt:
1.Dachgeschoß:
- Vorzimmer
- 1x Zimmer
- 1x großes Wohn-/Esszimmer mit Zugang zur Terrasse (ca. 6m²)
- Badezimmer mit Wanne, Waschbecken, WC und WM-Anschluss
- separates WC
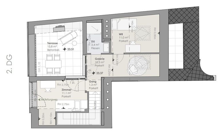
2. Dachgeschoß:
- Vorzimmer mit Zugang zur Terrasse (ca. 16m²)
- 1x Zimmer mit Zugang zur Terrasse
- 1x Zimmer
- Badezimmer mit Dusche und Waschbecken
Die Ausstattung der Wohnung lässt auch keine Wünsche offen:
- hochwertige Eichenparkettböden
- moderne mehrfachverglaste Fenster
- elektrische außenliegende Rollläden
- moderne Fliesen in Bad und WC
- Handtuchheizkörper
- nagelneues Klimagerät
- einbruchshemmende Holz-Sicherheitstür mit Mehrfachverriegelung
- Video-Gegensprechanlage
Der Wohnung ist ein eigenes ca. 8m² großes Kellerabteil zugeordnet.
Im Keller des Hauses befindet sich ein Fahrrad- und Kinderwagenabstellraum
Weitere Wohnungen im Haus:
Top 18:
4 Zimmer - 117m² - 30,5m² Terrasse - KP: EUR 1.460.000,-
Kosten:
- KP: EUR 1.210.000,-
- monatliche BK inkl. USt.: EUR 204,74
- monatliche Lift-BK inkl. USt.: EUR 25,47
- Akonto Heizkosten inkl. USt.: EUR 105,56
- Akonto Warmwasser inkl. USt.: EUR 47,87
- monatliche Rücklage: EUR 103,71
- GESAMT: EUR 487,35
- Provision: 3% vom KP zzgl. gesetzl. USt.
Kontakt:
Bei Fragen und Besichtigungen kontaktieren Sie bitte Herrn Gamlich unter 0664 54 361 53 oder unter clemens.gamlich@iconia.at.
Haftungsausschluss:
Alle Angaben sind ohne Gewähr und basieren ausschließlich auf Informationen, die uns von unserem Auftraggeber übermittelt wurden. Eine Weitergabe der übermittelten Daten an Dritte ist nicht gestattet. Wir übernehmen keine Gewähr für die Vollständigkeit, Richtigkeit und Aktualität dieser Angaben. Irrtum und Zwischenverkauf vorbehalten.
____________________________________
ENGLISH VERSION:
This ultra-modern top floor maisonette-apartment comprises of two floors and is located in a beautiful Viennese Wilhelminian style house with stucco façade which was completely renovated in will be finished in 2024.The project offers four top floor maisonette-apartments with big terraces and great views overlooking the city of Vienna. It was built on top of the existing old buildings and had been completed in 2023.
Additionally, two apartments in the older part of the building are available. These are in need of renovations and can be acquired as is or, upon request, fully renovated.
The property impresses with its proximity to the 1st district, its view over Vienna's city center, its perfect layout, high-quality finishes and excellent public transport connections including local amenities. In the immediate vicinity you will find the Stadtpark, Rochusmarkt and Landstraße Wien Mitte "The Mall".
Within walking distance you will reach the subway lines U3 (Rochusgasse, Landstraße) and U4 (Landstraße, Stadtpark), various rapid transit lines of the City Airport Train (CAT), as well as the tram lines O, 1 and the bus lines 4A and 74A.
The 3-bedroom apartment extends to approx. 93m² + approx. 22m² terrace and is divided as follows:
Basic-floor:
- Foyer
- 1x living/dining room with access to the terrace (approx. 6m²)
- 1x bedroom
- Bathroom with bathtub, sink and connection for washing machine
- separate toilet
Upper floor:
- Gallery area
- Bathroom with walk-in shower
- 2x bedrooms
- Big terrace with a view over Vienna (approx. 16m²)
The finishes of the apartment satisfies all desires:
- High quality oak parquet floors
- Underfloor heating
- modern multi-glazed windows
- electric external roller shutters
- modern tiles in the bathroom and toilet
- towel radiator
- brand new air conditioning
- security-entrance door with multiple locking
- video intercom
The house is heated using district heating.
The apartment has its own approximately 6m² cellar compartment.
In the basement of the house you will find a bicycle and stroller storage room which can be reached with the elevator.
Contact:
If you have any questions feel free to contact Mr. Gamlich 0664 54 361 53 or clemens.gamlich@iconia.at.
Wir weisen darauf hin, dass zwischen dem Vermittler und dem zu vermittelnden Dritten ein familiäres oder wirtschaftliches Naheverhältnis besteht.
Der Vermittler ist als Doppelmakler tätig.
Infrastruktur / Entfernungen
Gesundheit
Arzt <500m
Apotheke <500m
Klinik <500m
Krankenhaus <500m
Kinder & Schulen
Schule <500m
Kindergarten <500m
Universität <500m
Höhere Schule <1.000m
Nahversorgung
Supermarkt <500m
Bäckerei <500m
Einkaufszentrum <500m
Sonstige
Geldautomat <500m
Bank <500m
Post <500m
Polizei <500m
Verkehr
Bus <500m
U-Bahn <500m
Straßenbahn <500m
Bahnhof <500m
Autobahnanschluss <2.500m
Angaben Entfernung Luftlinie / Quelle: OpenStreetMap
Objektdaten
Ausstattung
- WG geeignet
- Klimatisiert
- Rollstuhlgerecht
- Barrierefrei
- Fahrradraum
- Rolladen
- Gäste-WC
- Bad mit Dusche
- Bad mit Badewanne
- Fliesenboden
- Parkettboden
- Fußbodenheizung
- Fern Befeuerung
- Personen Fahrstuhl
- Ausrichtung Balkon/Terrasse - Nordost
- Ausrichtung Balkon/Terrasse - Südwest
Zustand
- Zustand
- ERSTBEZUG
- Baujahr
- 2023
- Alter
- ALTBAU
- HWB
- 47.2 kWh/m² pro Jahr
- Klasse HWB
- B
- fGEE
- 0.75
- Klasse fGEE
- A
Flächen
- Anzahl der Zimmer
- 4
- Anzahl der Badezimmer
- 2
- Anzahl der sep. WCs
- 2
- Anzahl der Terrassen
- 2
- Wohnfläche
- 93m²
- Nutzfläche
- 93m²
- Freifläche
- 22m²
- Kellerfläche
- 6m²
- Terrassenfläche
- 2m²
Kosten
- Kaufpreis Brutto
- € 1.210.000,00
- Betriebskosten
- € 186,13
- Heizkosten
- € 131,49
- Sonstige Kosten
- € 126,86
Verwaltung
- Verfügbar ab
- nach Absprache
Wohnungen zum Kaufen in Österreich
- Bezirk Gemeindebezirk Landstrasse
- Bezirk Gemeindebezirk Landstrasse
- Bezirk Gemeindebezirk Landstrasse
- Bezirk Gemeindebezirk Wieden
- Bezirk Gemeindebezirk Wieden
- Bezirk Gemeindebezirk Wieden
- Bezirk Gemeindebezirk Innere Stadt
- Bezirk Gemeindebezirk Innere Stadt
- Bezirk Gemeindebezirk Innere Stadt
- Bezirk Gemeindebezirk Leopoldstadt
Wohnungen zum Kaufen in Österreich
Wohnungen zum Kaufen in Österreich
Andere Besucher suchen nach...
- Grundstücke kaufen in 3400 Weidlingbach
- Wohnungen kaufen in 4663 Laakirchen
- Häuser in 7471 Rechnitz
- Wohnungen in 2410 Hainburg an der Donau
- Häuser kaufen in 2432 Schwadorf
- Wohnungen kaufen in 3002 Purkersdorf
- Häuser in 3150 Wilhelmsburg
- Wohnungen kaufen in 3470 Engelmannsbrunn
- Grundstücke kaufen im Bezirk Mattersburg
- Grundstücke kaufen im Bezirk Gmunden