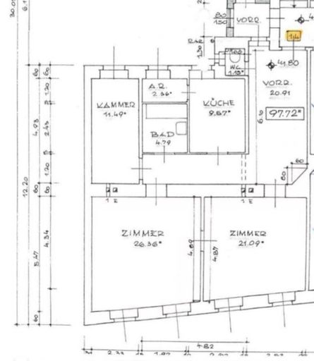
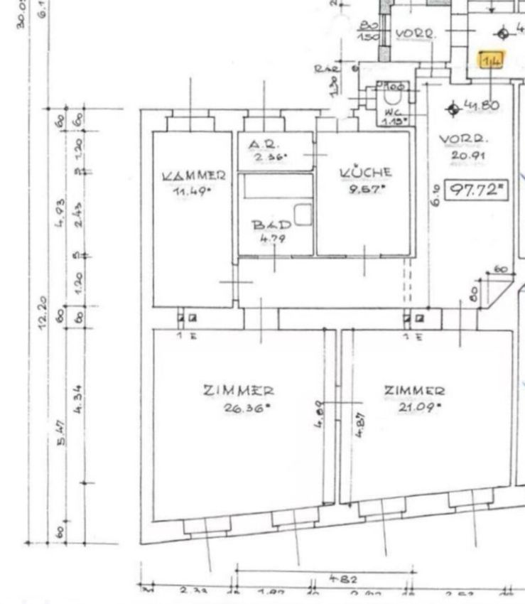
97,72 m2 große, 3 Zimmer Altbauwohnung auf der Wiedner Hauptstraße!
Beschreibung
Zum Verkauf steht eine drei Zimmer Wohnung mit 97,72 m2 Wohnfläche im 5. Wiener Gemeindebezirk. Die Wohnung befindet sich im 1. Liftstock in unmittelbarer Gehdistanz zur S-Bahn Matzleinsdorfer Platz.
Die Wohnung teilt sich wie folgt auf:
- ein großzügiger Eingangsbereich - ein 26,36 m2 großen Wohnzimmer - ein 21,09 m2 großen Schlafzimmer - ein weiteres hofseitiges zirka 11,49 m2 großen Zimmer - einer 9,57 m2 großen hofseitigen Küche - einem sehr großen Badezimmer mit Badewanne, Dusche und WC - ein separates WC
An der Wohnung besteht Sanierungsbedarf. Alle Zimmer sind separat begehbar. Altbauelemente wie Holzkastenfenster, Parkettböden und hohe...
Zum Verkauf steht eine drei Zimmer Wohnung mit 97,72 m2 Wohnfläche im 5. Wiener Gemeindebezirk. Die Wohnung befindet sich im 1. Liftstock in unmittelbarer Gehdistanz zur S-Bahn Matzleinsdorfer Platz.
Die Wohnung teilt sich wie folgt auf:
- ein großzügiger Eingangsbereich
- ein 26,36 m2 großen Wohnzimmer
- ein 21,09 m2 großen Schlafzimmer
- ein weiteres hofseitiges zirka 11,49 m2 großen Zimmer
- einer 9,57 m2 großen hofseitigen Küche
- einem sehr großen Badezimmer mit Badewanne, Dusche und WC
- ein separates WC
An der Wohnung besteht Sanierungsbedarf. Alle Zimmer sind separat begehbar. Altbauelemente wie Holzkastenfenster, Parkettböden und hohe Räume sind gegeben. Beheizt wird die Wohnung mittels Gasetagenheizung der Marke Junkers, die vor 3 Jahren neu installiert wurde. Zur Wohnung gehört ein Kellerabteil.
Öffentliche Verkehrsmittel: 1, 18, S-Bahn, 12 A, 14 A, N62
Infrastruktur:
Die Infrastruktur rund um die Wohnung ist als hervorragend zu bezeichnen. Die Wohnung besticht durch die Nähe zur Innenstadt und bietet neben allen Geschäften für den täglichen Bedarf, ebenso zahlreiche Kindergärten und Schulen, die zu Fuß gut erreichbar sind. Eine hohe Dichte an Ärzten, Krankenhäusern, sowie Bildungs- und Kultureinrichtungen und vor allem die günstige Verkehrsanbindung sowohl öffentlich als auch privat steigern die Attraktivität des Objekts enorm!
Kaufpreis und Nebenkosten:
Kaufpreis: 449.000,- Euro
Betriebskosten inkl. Reparaturrücklage (110,45 Euro) und Ust: 395,92 Euro
Provision: 3 % vom Kaufpreis zzgl. 20 % UST
SEIT 1. APRIL 2024:
Förderung der Bundesregierung zur Ersparnis der Grundbuch- (1,1%) und die Pfandrechtseintragungsgebühr (1,2%) in Höhe von gesamt 2,3% des Kaufpreises bei Anmeldung des Hauptwohnsitzes.
Nähere Informationen und Besichtigungstermine:
Für nähere Fragen bzw. für einen unverbindlichen Besichtigungstermin steht Ihnen Herr Uyar unter 0699/17105918 oder per Email uyar@immobilienquartier.at zur Verfügung.
Wir bitten um schriftliche Anfragen mit vollständiger Angabe Ihrer Kontaktdaten ( Name, Adresse, Telefonnummer).
Infrastruktur / Entfernungen
Gesundheit
Arzt <500m
Apotheke <500m
Klinik <1.000m
Krankenhaus <500m
Kinder & Schulen
Schule <500m
Kindergarten <500m
Universität <500m
Höhere Schule <1.000m
Nahversorgung
Supermarkt <500m
Bäckerei <500m
Einkaufszentrum <1.000m
Sonstige
Geldautomat <500m
Bank <500m
Post <500m
Polizei <1.000m
Verkehr
Bus <500m
U-Bahn <500m
Straßenbahn <500m
Bahnhof <500m
Autobahnanschluss <3.000m
Angaben Entfernung Luftlinie / Quelle: OpenStreetMap
Objektdaten
Ausstattung
- WG geeignet
- Kabel/SAT-TV
- Bad mit Badewanne
- Bad mit Fenster
- Einbauküche
- Fliesenboden
- Parkettboden
- Laminatboden
- Etage Heizung
- Befeuerung mit Gas
Zustand
- Zustand
- GEPFLEGT
- Baujahr
- 1900
- Alter
- ALTBAU
- HWB
- 65.1 kWh/m² pro Jahr
- Klasse HWB
- C
- fGEE
- 1.67
- Klasse fGEE
- C
Flächen
- Anzahl der Zimmer
- 3
- Anzahl der Badezimmer
- 1
- Anzahl der sep. WCs
- 1
- Wohnfläche
- 98m²
- Kellerfläche
- 4m²
Kosten
- Kaufpreis Brutto
- € 449.000,00
- Betriebskosten
- € 185,51
- Sonstige Kosten
- € 184,46
Wohnungen zum Kaufen in Österreich
- Bezirk Gemeindebezirk Margareten
- Bezirk Gemeindebezirk Margareten
- Bezirk Gemeindebezirk Margareten
- Bezirk Gemeindebezirk Mariahilf
- Bezirk Gemeindebezirk Mariahilf
- Bezirk Gemeindebezirk Mariahilf
- Bezirk Gemeindebezirk Wieden
- Bezirk Gemeindebezirk Wieden
- Bezirk Gemeindebezirk Wieden
- Bezirk Gemeindebezirk Neubau
Wohnungen zum Kaufen in Österreich
Wohnungen zum Kaufen in Österreich
Andere Besucher suchen nach...
- Grundstücke kaufen in 3400 Weidlingbach
- Wohnungen kaufen in 4663 Laakirchen
- Häuser in 7471 Rechnitz
- Wohnungen in 2410 Hainburg an der Donau
- Häuser kaufen in 2432 Schwadorf
- Wohnungen kaufen in 3002 Purkersdorf
- Häuser in 3150 Wilhelmsburg
- Wohnungen kaufen in 3470 Engelmannsbrunn
- Grundstücke kaufen im Bezirk Mattersburg
- Grundstücke kaufen im Bezirk Gmunden