++ Nur wenige Schritte vom Haus des Meeres und Mariahilfer Straße entfernt + Moderne Terrassenwohnung 62m², 1060 Wien – Top Ausstattung, Fußbodenheizung/Klima/Lift ++
Beschreibung
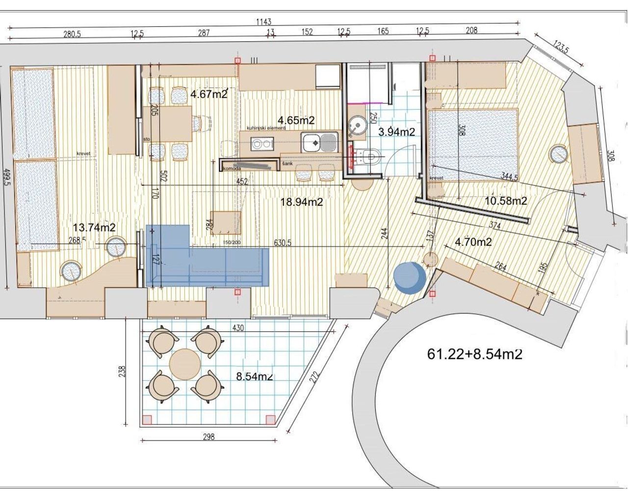
Diese 2018 generalsanierte Eigentumswohnung im 2. Liftstock vereint modernsten Wohnkomfort mit einer der begehrtesten Lagen Wiens. Auf ca. 62 m² Wohnfläche erwartet Sie eine perfekte 3-Zimmer-Aufteilung, die durch hochwertige Materialien und exklusives Design besticht. Ein besonderes Highlight ist die ca. 8,5 m² große Südwest-Terrasse, die sonnige Stunden im Freien garantiert.
Besonderheiten auf einen Blick:
- Zustand: Generalsaniert 2018 (Top-Zustand).
- Klima & Wärme: Fußbodenheizung (Gas) sowie eine Klimaanlage in jedem Zimmer für optimales Raumklima das ganze Jahr über.
- Ausstattung: Edle Parkettböden, hochwertige Design-Möbel und eine moderne Einbauküche.
- Barrierefreiheit: Das Badezimmer ist barrierefrei gestaltet.
- Sicherheit: Installierte Alarmanlage für Ihr sicheres Gefühl. ...
Diese 2018 generalsanierte Eigentumswohnung im 2. Liftstock vereint modernsten Wohnkomfort mit einer der begehrtesten Lagen Wiens. Auf ca. 62 m² Wohnfläche erwartet Sie eine perfekte 3-Zimmer-Aufteilung, die durch hochwertige Materialien und exklusives Design besticht. Ein besonderes Highlight ist die ca. 8,5 m² große Südwest-Terrasse, die sonnige Stunden im Freien garantiert.
Besonderheiten auf einen Blick:
- Zustand: Generalsaniert 2018 (Top-Zustand).
- Klima & Wärme: Fußbodenheizung (Gas) sowie eine Klimaanlage in jedem Zimmer für optimales Raumklima das ganze Jahr über.
- Ausstattung: Edle Parkettböden, hochwertige Design-Möbel und eine moderne Einbauküche.
- Barrierefreiheit: Das Badezimmer ist barrierefrei gestaltet.
- Sicherheit: Installierte Alarmanlage für Ihr sicheres Gefühl.
- Außenbereich: Ruhige 8,5 m² Terrasse mit idealer Südwest-Ausrichtung.
Raumaufteilung
- Großzügiger Wohn-Essbereich mit integrierter Design-Küche - 28,62m²
- Zwei separat begehbare Zimmer - 13,74m² und 10,58m² (ideal als Schlaf-, Arbeits- oder Kinderzimmer).
- Modernes, barrierefreies Badezimmer - 3,94m²
- Direkter Zugang zur Terrasse ( 8,54m²) vom Wohnbereich.
- Vorraum 4,70m²
Lage & Infrastruktur
Die Wohnung befindet sich in absoluter Bestlage des 6. Bezirks (Mariahilf) in der Gumpendorfer Straße 46,nur wenige Schritte vom Haus des Meeres und Mariahilfer Straße entfernt
- Freizeit: Das Haus des Meeres und der Esterházypark liegen praktisch vor der Haustür.
- Shopping: Die Mariahilfer Straße, Wiens größte Einkaufsstraße, ist in wenigen Gehminuten erreichbar.
- Anbindung: Der 1. Bezirk (Innere Stadt) ist fußläufig oder schnell mit den öffentlichen Verkehrsmitteln erreichbar.
- Nahversorgung: Erstklassige Restaurants, Cafés und alle Geschäfte des täglichen Bedarfs befinden sich in unmittelbarer Umgebung.
Eckdaten:
- Wohnfläche: ca. 62 m²
- Zimmer: 3
- Terrasse: ca. 8,5 m² (S/W)
- Stockwerk: 2. Stock (mit Lift)
Kaufpreis: 599.000- Lasten und Bestandsfrei
Gesetzliche Nebenkosten:
3,5% Grunderwerbsteuer
1,1% Grundbucheintragungsgebühr
3,0% Maklerhonorar + 20 % MwSt.
%Vertragserrichtungskosten + 20 % MwSt.
Detaillierte Unterlagen (Exposé) senden wir gerne auf Anfrage zu.
BITTE BEACHTEN SIE, DASS WIR NUR ANFRAGEN MIT VOLLSTÄNDIGER ANGABE DER ANSCHRIFT UND ANGABEN ZUR PERSON
(NAME,TELEFON, EMAIL) BEARBEITEN KÖNNEN.
Anbieter: gb-direkt Finanzberatung & Immobilienhandel GmbH
Ansprechpartner: Frau Benes
Mobil: +43 (0)699 116 08 706
E-mail: office@direktfinanzimmo.at
Wir weisen darauf hin, dass alle Angaben, auf die sich das vorliegende Exposé/Inserat beziehen, sich ausschließlich auf Daten und Angaben von Verkäufern/Vermietern bzw. sachkundigen Dritten stützen und wir für diese keine, wie auch immer geartete, Haftung übernehmen. Des Weiteren geben wir bekannt, dass zwischen den Verkäufern/Vermietern und gb-direkt Finanzberatung & Immobilienhandel GmbH, kein familiäres oder wirtschaftliches Naheverhältnis oder gesellschaftliche Verflechtung besteht. Irrtümer und Änderungen sowie Zwischenverkauf vorbehalten.
Der Vermittler ist als Doppelmakler tätig.
Infrastruktur / Entfernungen
Gesundheit
Arzt <500m
Apotheke <500m
Klinik <500m
Krankenhaus <1.500m
Kinder & Schulen
Schule <500m
Kindergarten <500m
Universität <500m
Höhere Schule <1.000m
Nahversorgung
Supermarkt <500m
Bäckerei <500m
Einkaufszentrum <500m
Sonstige
Geldautomat <500m
Bank <500m
Post <500m
Polizei <500m
Verkehr
Bus <500m
U-Bahn <500m
Straßenbahn <500m
Bahnhof <500m
Autobahnanschluss <4.000m
Angaben Entfernung Luftlinie / Quelle: OpenStreetMap
Objektdaten
Ausstattung
- Klimatisiert
- Rolladen
- Einbauküche
- Fliesenboden
- Parkettboden
- Fußbodenheizung
- Befeuerung mit Gas
- Lasten Fahrstuhl
- Ausrichtung Balkon/Terrasse - Südwest
- Alarmanlage
Zustand
- Zustand
- GEPFLEGT
- Alter
- ALTBAU
- HWB
- 149 kWh/m² pro Jahr
- Klasse HWB
- D
- fGEE
- 1.49
- Klasse fGEE
- C
Flächen
- Anzahl der Terrassen
- 1
- Wohnfläche
- 62m²
- Nutzfläche
- 70m²
- Terrassenfläche
- 1m²
Kosten
- Kaufpreis Brutto
- € 599.000,00
Verwaltung
- Verfügbar ab
- nach Vereinbarung
Wohnungen zum Kaufen im Umkreis von Gemeindebezirk Mariahilf
- Bezirk Gemeindebezirk Mariahilf
- Bezirk Gemeindebezirk Mariahilf
- Bezirk Gemeindebezirk Mariahilf
- Bezirk Gemeindebezirk Neubau
- Bezirk Gemeindebezirk Neubau
- Bezirk Gemeindebezirk Neubau
- Bezirk Gemeindebezirk Margareten
- Bezirk Gemeindebezirk Margareten
- Bezirk Gemeindebezirk Margareten
- Bezirk Gemeindebezirk Wieden
Wohnungen zum Kaufen in Österreich
Andere Besucher suchen nach...
- Immobilien kaufen in 2601 Sollenau
- Immobilien in 4951 Polling im Innkreis, Oberösterreich
- Immobilien in 4742 Pram, Oberösterreich kaufen oder mieten
- Häuser kaufen in 2340 Mödling, Niederösterreich
- Häuser kaufen in 9421 Gemmersdorf, Kärnten
- Wohnungen / Eigentumswohnungen kaufen in 9431 St. Stefan, Kärnten
- Häuser kaufen in Bruck an der Leitha, Niederösterreich
- Immobilien mieten in Krems an der Donau, Niederösterreich
- Häuser zum Kaufen im Bezirk St. Pölten Land, Niederösterreich
- Büro / Praxen mieten in Rohrbach, Oberösterreich