87 m2 Dachgeschoss Maisonette mit 8,74 m2 Terrasse, 4,19 m2 Loggia und Garagenplatz! Nähe Westbahnhof / Burggasse Stadthalle U6
Beschreibung
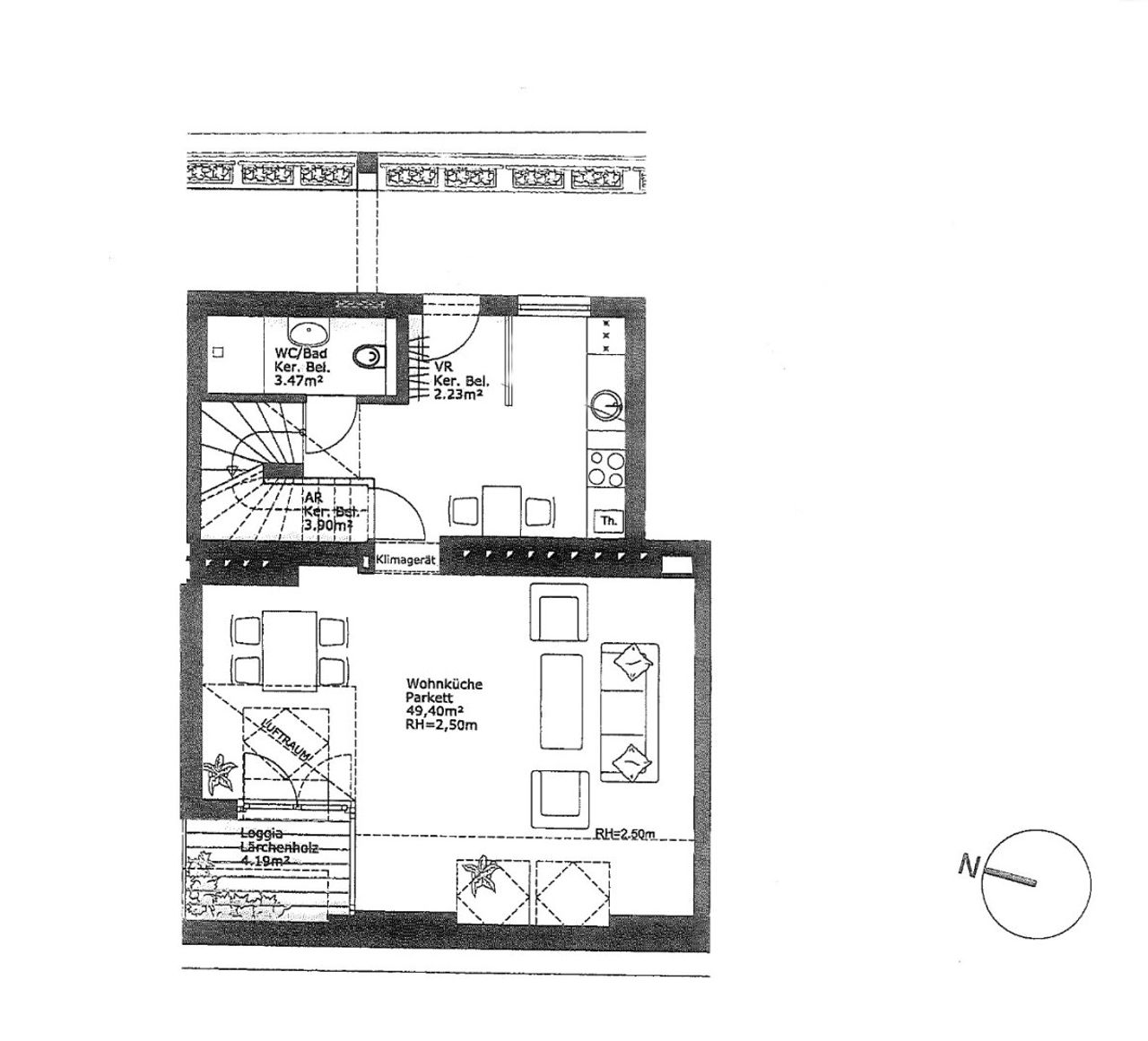
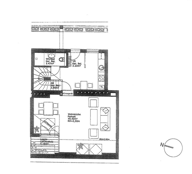
Zu Verkaufen steht eine 86,89 m2 große 2 Zimmer (teilbar in 3 Zimmer) Maisonnette Wohnung mit 4,19 m2 großer Loggia in der unteren Etage sowie einer 8,74 m2 großen Terrasse in der oberen Etage und einem Autoabstellplatz. Die Wohnung befindet sich im Dachgeschoss eines 2015 ausgebauten Altbauwohnhauses in der Seidengasse. Das Objekt ist um monatlich 1.774,12 Euro inklusive Betriebskosten befristet bis zum 30.05.2027 vermietet! Besichtigungen müssen mit dem Mieter abgestimmt werden.
Die Maisonnette Wohnung ist wie folgt aufgeteilt:
Im ersten Geschoss:
- ein Eingangsbereich - eine möblierte, ausgestattete Küche - ein großzügiger zirka 48 m2 großer Wohnbereich mit Essplatz und...
Zu Verkaufen steht eine 86,89 m2 große 2 Zimmer (teilbar in 3 Zimmer) Maisonnette Wohnung mit 4,19 m2 großer Loggia in der unteren Etage sowie einer 8,74 m2 großen Terrasse in der oberen Etage und einem Autoabstellplatz. Die Wohnung befindet sich im Dachgeschoss eines 2015 ausgebauten Altbauwohnhauses in der Seidengasse. Das Objekt ist um monatlich 1.774,12 Euro inklusive Betriebskosten befristet bis zum 30.05.2027 vermietet! Besichtigungen müssen mit dem Mieter abgestimmt werden.
Die Maisonnette Wohnung ist wie folgt aufgeteilt:
Im ersten Geschoss:
- ein Eingangsbereich
- eine möblierte, ausgestattete Küche
- ein großzügiger zirka 48 m2 großer Wohnbereich mit Essplatz und Zugang zur 4,19 m2 Loggia ( es besteht die Möglichkeit den Wohnbereich zu teilen und somit ein drittes Zimmer herzustellen)
- ein Badezimmer mit Dusche, Toilette und Fenster
- ein geräumiger Abstellraum unter der Stiege
Im Obergeschoß:
- ein geräumiges, helles Schlafzimmer mit Galerie
- ein Badezimmer mit Eckbadewanne und WC
- eine hofseitige 8,74 m2 große Terrasse
Beheizt wird das Objekt mittels Fussbodenheizung in sämtlichen Räumen. In den Wohnräumen sind Parkettböden verlegt, die Badezimmer sind verfließt. Eine Klimaanlage sorgt im Sommer für ein angenehmes Raumklima.
Der Wohnung ist ein Autoabstellplatz und ein Kellerabteil zugeteilt. Die Seidengasse bietet eine optimale Lage, zahlreiche Annehmlichkeiten sind in unmittelbarer Nähe. Ärzte, Apotheken, Schulen und Kindergärten sind bequem erreichbar. Supermärkte, Bäckereien und ein Einkaufszentrum sorgen für eine optimale Nahversorgung. Die exzellente Verkehrsanbindung an öffentliche Verkehrsmittel wie U-Bahn, Straßenbahn und Bus ist ideal – hier wohnen Sie zentral und dennoch ruhig!
Kaufpreis Wohnung: 719.000 Euro
Kaufpreis Garagenplatz: 39.000 Euro
Betriebskosten Wohnung: 333,56 Euro inkl. 94,16 Euro Reparaturrücklage
Betriebskosten Garage: 46,60 inkl. 7 Euro Reparaturrücklage
Provision: 3% zzgl. Ust
Befristet vermietet bis 30.05.2027, Besichtigungen müssen mit dem Mieter abgestimmt werden.
Ein Energieausweis liegt vor / HWB-ref = 36,9 kWh/m²a
Für Besichtigungstermine bzw. weitere Informationen kontaktieren Sie bitte Herrn Bigus unter 0699 / 12 47 15 92 oder per Email bigus@immobilienquartier.at.
Infrastruktur / Entfernungen
Gesundheit
Arzt <500m
Apotheke <500m
Klinik <500m
Krankenhaus <1.000m
Kinder & Schulen
Schule <500m
Kindergarten <500m
Universität <500m
Höhere Schule <500m
Nahversorgung
Supermarkt <500m
Bäckerei <500m
Einkaufszentrum <500m
Sonstige
Geldautomat <500m
Bank <500m
Post <500m
Polizei <500m
Verkehr
Bus <500m
U-Bahn <500m
Straßenbahn <500m
Bahnhof <500m
Autobahnanschluss <5.000m
Angaben Entfernung Luftlinie / Quelle: OpenStreetMap
Objektdaten
Ausstattung
- Klimatisiert
- Rollstuhlgerecht
- Kabel/SAT-TV
- Barrierefrei
- Rolladen
- Bad mit Dusche
- Bad mit Badewanne
- Bad mit Fenster
- Einbauküche
- Fliesenboden
- Parkettboden
- Etage Heizung
- Fußbodenheizung
- Befeuerung mit Gas
- Personen Fahrstuhl
- Ausrichtung Balkon/Terrasse - West
Zustand
- Zustand
- NEUWERTIG
- Baujahr
- 2015
- Alter
- NEUBAU
- HWB
- 39.4 kWh/m² pro Jahr
- Klasse HWB
- B
Flächen
- Anzahl der Zimmer
- 2
- Anzahl der Badezimmer
- 2
- Anzahl der sep. WCs
- 2
- Anzahl der Terrassen
- 1
- Anzahl der Logia
- 1
- Stellplätze
- 1
- Wohnfläche
- 87m²
- Kellerfläche
- 3m²
- Terrassenfläche
- 1m²
Kosten
- Kaufpreis Brutto
- € 719.000,00
- Betriebskosten
- € 195,43
- Sonstige Kosten
- € 116,37
Verwaltung
- Mietdauer
- bis 5,0 Jahre
Wohnungen zum Kaufen in Österreich
- Bezirk Gemeindebezirk Neubau
- Bezirk Gemeindebezirk Neubau
- Bezirk Gemeindebezirk Neubau
- Bezirk Gemeindebezirk Mariahilf
- Bezirk Gemeindebezirk Mariahilf
- Bezirk Gemeindebezirk Mariahilf
- Bezirk Gemeindebezirk Josefstadt
- Bezirk Gemeindebezirk Josefstadt
- Bezirk Gemeindebezirk Josefstadt
- Bezirk Gemeindebezirk Rudolfsheim-Fünfhaus
Wohnungen zum Kaufen in Österreich
Andere Besucher suchen nach...
- Immobilien kaufen in 2601 Sollenau
- Immobilien in 4951 Polling im Innkreis, Oberösterreich
- Immobilien in 4742 Pram, Oberösterreich kaufen oder mieten
- Häuser kaufen in 2340 Mödling, Niederösterreich
- Häuser kaufen in 9421 Gemmersdorf, Kärnten
- Wohnungen / Eigentumswohnungen kaufen in 9431 St. Stefan, Kärnten
- Häuser kaufen in Bruck an der Leitha, Niederösterreich
- Immobilien mieten in Krems an der Donau, Niederösterreich
- Häuser zum Kaufen im Bezirk St. Pölten Land, Niederösterreich
- Büro / Praxen mieten in Rohrbach, Oberösterreich