SERVITENVIERTEL - LOFTARTIGE 3 ZIMMER HOFWOHNUNG NAHE U4
Beschreibung
Diese loftartige 3-Zimmer-Wohnung befindet sich im Erdgeschoß (zum ruhigen begrünten Innenhof gerichtet) eines sehr schön verzierten Gründerzeithauses aus dem Jahr 1902. Die Wohnung besticht durch die Nähe zur Ubahn (U4), den modernen Grundriss sowie die ruhige Innenhoflage.
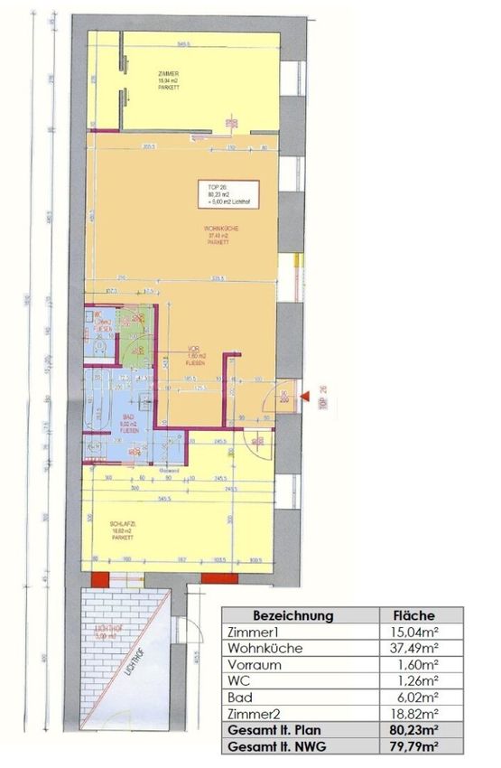
Die zentral begehbare 3-Zimmer-Wohnung erstreckt sich auf ca. 80m² und gliedert sich wie folgt:
- kleines Vorzimmer mit Garderobe
- ein großes Wohn-/Esszimmer mit offener Küche
- ein Schlafzimmer mit Ausgang zur kleinen Lichthof-Terrasse (Allgemeinfläche)
- ein Zimmer (Kinder-, Arbeits-, Gästezimmer)
- ein Abstellraum
- ein Bad mit Wanne, Dusche, Waschbecken und WM-Anschluss
- ein separates WC
Die Ausstattung der Wohnung lässt auch keine Wünsche...
Diese loftartige 3-Zimmer-Wohnung befindet sich im Erdgeschoß (zum ruhigen begrünten Innenhof gerichtet) eines sehr schön verzierten Gründerzeithauses aus dem Jahr 1902. Die Wohnung besticht durch die Nähe zur Ubahn (U4), den modernen Grundriss sowie die ruhige Innenhoflage.
Die zentral begehbare 3-Zimmer-Wohnung erstreckt sich auf ca. 80m² und gliedert sich wie folgt:
- kleines Vorzimmer mit Garderobe
- ein großes Wohn-/Esszimmer mit offener Küche
- ein Schlafzimmer mit Ausgang zur kleinen Lichthof-Terrasse (Allgemeinfläche)
- ein Zimmer (Kinder-, Arbeits-, Gästezimmer)
- ein Abstellraum
- ein Bad mit Wanne, Dusche, Waschbecken und WM-Anschluss
- ein separates WC
Die Ausstattung der Wohnung lässt auch keine Wünsche offen:
- moderne Küche mit Geräten
- Echtholz-Parkettböden
- mehrfachverglaste Fenster
- moderne Fliesen in Bad und WC
- Gegensprechanlage
Info:
Die Wohnung wird UNMÖBLIERT verkauft.
Kosten:
- KP: EUR 560.000,-
- monatliche Betriebskosten: EUR 171,15 inkl. USt.
- monatlicher Anteil Reparaturrücklage: EUR 84,58
- GESAMT: EUR 255,73
- Provision: 3% vom KP zzgl. gesetzl. USt.
Kontakt:
Bei Fragen und Besichtigungen kontaktieren Sie bitte Herrn Gamlich unter 0664 54 361 53 oder unter clemens.gamlich@iconia.at.
Weitere Objekte auf: www.iconia.at
Haftungsausschluss:
Alle Angaben sind ohne Gewähr und basieren ausschließlich auf Informationen, die uns von unserem Auftraggeber übermittelt wurden. Eine Weitergabe der übermittelten Daten an Dritte ist nicht gestattet. Wir übernehmen keine Gewähr für die Vollständigkeit, Richtigkeit und Aktualität dieser Angaben. Irrtum und Zwischenverkauf vorbehalten.
Der Vermittler ist als Doppelmakler tätig.
Infrastruktur / Entfernungen
Gesundheit
Arzt <500m
Apotheke <500m
Klinik <500m
Krankenhaus <1.500m
Kinder & Schulen
Schule <500m
Kindergarten <500m
Universität <500m
Höhere Schule <1.000m
Nahversorgung
Supermarkt <500m
Bäckerei <500m
Einkaufszentrum <2.500m
Sonstige
Geldautomat <500m
Bank <500m
Post <500m
Polizei <1.000m
Verkehr
Bus <500m
U-Bahn <500m
Straßenbahn <500m
Bahnhof <500m
Autobahnanschluss <2.000m
Angaben Entfernung Luftlinie / Quelle: OpenStreetMap
Objektdaten
Ausstattung
- WG geeignet
- Bad mit Dusche
- Bad mit Badewanne
- Offene Küche
- Fliesenboden
- Parkettboden
- Etage Heizung
- Befeuerung mit Gas
Zustand
- Zustand
- NEUWERTIG
- Baujahr
- 1902
- Alter
- ALTBAU
- HWB
- 94.3 kWh/m² pro Jahr
- Klasse HWB
- C
- fGEE
- 2.04
- Klasse fGEE
- D
Flächen
- Anzahl der Zimmer
- 3
- Anzahl der Badezimmer
- 1
- Anzahl der sep. WCs
- 1
- Wohnfläche
- 80m²
Kosten
- Kaufpreis Brutto
- € 560.000,00
- Betriebskosten
- € 155,59
- Sonstige Kosten
- € 84,58
Verwaltung
- Verfügbar ab
- nach Vereinbarung
Wohnungen zum Kaufen in Österreich
- Bezirk Gemeindebezirk Alsergrund
- Bezirk Gemeindebezirk Alsergrund
- Bezirk Gemeindebezirk Alsergrund
- Bezirk Gemeindebezirk Brigittenau
- Bezirk Gemeindebezirk Brigittenau
- Bezirk Gemeindebezirk Brigittenau
- Bezirk Gemeindebezirk Josefstadt
- Bezirk Gemeindebezirk Josefstadt
- Bezirk Gemeindebezirk Josefstadt
- Bezirk Gemeindebezirk Innere Stadt
Wohnungen zum Kaufen in Österreich
Wohnungen zum Kaufen in Österreich
Andere Besucher suchen nach...
- Grundstücke kaufen in 3400 Weidlingbach
- Wohnungen kaufen in 4663 Laakirchen
- Häuser in 7471 Rechnitz
- Wohnungen in 2410 Hainburg an der Donau
- Häuser kaufen in 2432 Schwadorf
- Wohnungen kaufen in 3002 Purkersdorf
- Häuser in 3150 Wilhelmsburg
- Wohnungen kaufen in 3470 Engelmannsbrunn
- Grundstücke kaufen im Bezirk Mattersburg
- Grundstücke kaufen im Bezirk Gmunden