Ruhig gelegene, moderne 3-Zimmer-Maisonettewohnung mit Loggia & Terrasse in Favoriten
Beschreibung
Ruhig gelegene, moderne 3-Zimmer-Maisonettewohnung mit Loggia & Terrasse in Favoriten
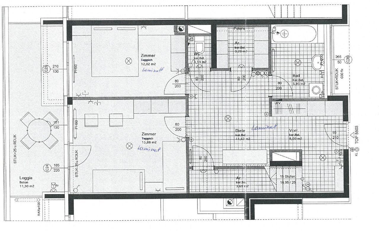
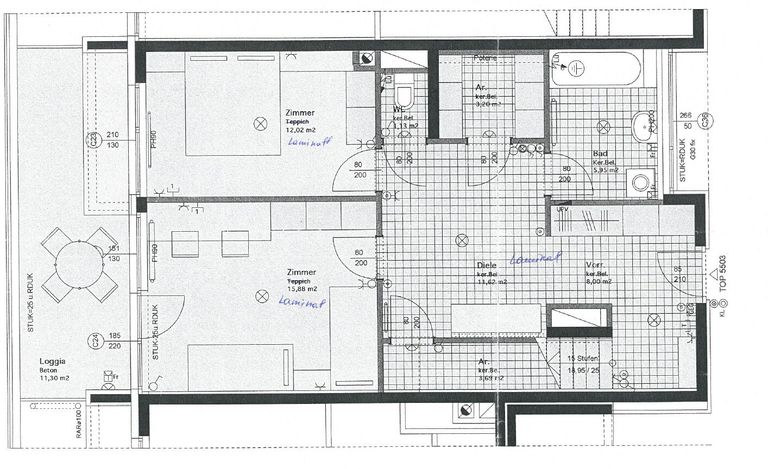
Zum Verkauf gelangt eine helle und großzügige 3-Zimmer-Maisonettewohnung, die sich über zwei Ebenen erstreckt und eine Gesamtnutzfläche von ca. 130 m² aufweist. Der Wohnungseingang befindet sich im 5. Liftstock eines im Jahr 2002 errichteten Wohnhauses in der Graffgasse, nahe Neilreichgasse und Troststraße.
Raumaufteilung Ebene 1:
-
Großzügiges Vorzimmer (ca. 20 m²)
-
Schlafzimmer (15,88 m²) mit Zugang zur 11,30 m² großen Loggia
-
Kinder- oder Arbeitszimmer (12,02 m²)
-
Badezimmer mit Dusche und Waschmaschinenanschluss
-
Separate Toilette
-
Abstellraum
Ebene 2:
- ...
Ruhig gelegene, moderne 3-Zimmer-Maisonettewohnung mit Loggia & Terrasse in Favoriten
Zum Verkauf gelangt eine helle und großzügige 3-Zimmer-Maisonettewohnung, die sich über zwei Ebenen erstreckt und eine Gesamtnutzfläche von ca. 130 m² aufweist.
Der Wohnungseingang befindet sich im 5. Liftstock eines im Jahr 2002 errichteten Wohnhauses in der Graffgasse, nahe Neilreichgasse und Troststraße.
Raumaufteilung
Ebene 1:
Großzügiges Vorzimmer (ca. 20 m²)
Schlafzimmer (15,88 m²) mit Zugang zur 11,30 m² großen Loggia
Kinder- oder Arbeitszimmer (12,02 m²)
Badezimmer mit Dusche und Waschmaschinenanschluss
Separate Toilette
Abstellraum
Ebene 2:
Wohnküche (ca. … m²) mit direktem Zugang zur 12,90 m² großen Terrasse
🔧 Die Errichtung eines dritten Schlafzimmers ist möglich.
Ausstattung & Highlights
Sehr helle und großzügige Raumgestaltung
Beheizung mittels Fernwärme
Hochwertige Parkettböden in den Wohnräumen
Maßgefertigte Einbauschränke verbleiben in der Wohnung
Loggia und Terrasse mit angenehmer Ruhelage
Kaufpreis & laufende Kosten
💰 Kaufpreis: € 559.000,–
💶 Betriebskosten inkl. Reparaturrücklage und USt: € 398,18
📄 Provision: 3 % des Kaufpreises zzgl. 20 % USt
Lage & Infrastruktur
Die Lage überzeugt durch eine sehr gute Infrastruktur. Geschäfte des täglichen Bedarfs, Ärzte, Schulen und Kindergärten befinden sich in fußläufiger Entfernung.
Eine ausgezeichnete öffentliche Verkehrsanbindung ist ebenfalls gegeben.
Öffentliche Verkehrsmittel:
🚋 11, O
🚌 15A, 65A
Förderung bis 30. Juni 2026
📌 Bei Anmeldung des Hauptwohnsitzes besteht eine Förderung der Bundesregierung in Form der Ersparnis der Grundbuchseintragungsgebühr (1,1 %) sowie der Pfandrechtseintragungsgebühr (1,2 %) – insgesamt 2,3 % des Kaufpreises.
Interesse geweckt?
Für weitere Informationen oder einen unverbindlichen Besichtigungstermin freuen wir uns über Ihre Kontaktaufnahme!
📞 0699 / 17 1059 18
📧 uyar@immobilienquartier.at
Infrastruktur / Entfernungen
Gesundheit
Arzt <500m
Apotheke <500m
Klinik <1.000m
Krankenhaus <1.000m
Kinder & Schulen
Schule <500m
Kindergarten <500m
Universität <1.000m
Höhere Schule <2.000m
Nahversorgung
Supermarkt <500m
Bäckerei <500m
Einkaufszentrum <2.000m
Sonstige
Geldautomat <500m
Bank <500m
Post <500m
Polizei <500m
Verkehr
Bus <500m
U-Bahn <1.500m
Straßenbahn <500m
Bahnhof <1.500m
Autobahnanschluss <2.000m
Angaben Entfernung Luftlinie / Quelle: OpenStreetMap
Objektdaten
Ausstattung
- WG geeignet
- Räume veränderbar
- Teilmöbliert
- Wasch-/Trockenraum
- Bad mit Dusche
- Bad mit Fenster
- Einbauküche
- Offene Küche
- Fliesenboden
- Parkettboden
- Fernwärme Heizung
- Personen Fahrstuhl
- Ausrichtung Balkon/Terrasse - Ost
- Ausrichtung Balkon/Terrasse - West
Zustand
- Zustand
- TEIL_VOLLRENOVIERT
- Baujahr
- 2002
- Alter
- NEUBAU
- HWB
- 45.1 kWh/m² pro Jahr
- Klasse HWB
- B
- fGEE
- 1.15
- Klasse fGEE
- C
Flächen
- Anzahl der Zimmer
- 3
- Anzahl der Badezimmer
- 1
- Anzahl der sep. WCs
- 1
- Anzahl der Terrassen
- 1
- Anzahl der Logia
- 1
- Wohnfläche
- 120m²
- Nutzfläche
- 140m²
- Kellerfläche
- 5m²
- Terrassenfläche
- 1m²
Kosten
- Kaufpreis Brutto
- € 559.000,00
- Betriebskosten
- € 211,94
- Sonstige Kosten
- € 163,03
Verwaltung
- Verfügbar ab
- nach Vereinbarung
Wohnungen zum Kaufen in Österreich
- Bezirk Gemeindebezirk Favoriten
- Bezirk Gemeindebezirk Favoriten
- Bezirk Gemeindebezirk Favoriten
- Bezirk Gemeindebezirk Simmering
- Bezirk Gemeindebezirk Simmering
- Bezirk Gemeindebezirk Simmering
- Bezirk Gemeindebezirk Margareten
- Bezirk Gemeindebezirk Margareten
- Bezirk Gemeindebezirk Margareten
- Bezirk Gemeindebezirk Wieden
Wohnungen zum Kaufen in Österreich
Andere Besucher suchen nach...
- Immobilien kaufen in 2601 Sollenau
- Immobilien in 4951 Polling im Innkreis, Oberösterreich
- Immobilien in 4742 Pram, Oberösterreich kaufen oder mieten
- Häuser kaufen in 2340 Mödling, Niederösterreich
- Häuser kaufen in 9421 Gemmersdorf, Kärnten
- Wohnungen / Eigentumswohnungen kaufen in 9431 St. Stefan, Kärnten
- Häuser kaufen in Bruck an der Leitha, Niederösterreich
- Immobilien mieten in Krems an der Donau, Niederösterreich
- Häuser zum Kaufen im Bezirk St. Pölten Land, Niederösterreich
- Büro / Praxen mieten in Rohrbach, Oberösterreich