BESTPREIS + DREI ZIMMER + KÜCHE + AUFZUG + 85m²
-
sofort
Beschreibung
Herzlich willkommen in Ihrem neuen Zuhause im 10. Wiener Gemeindebezirk!
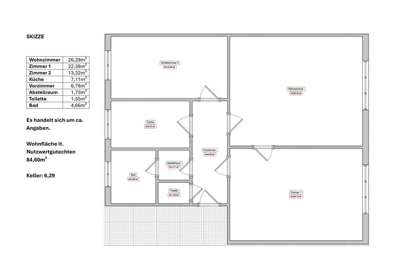
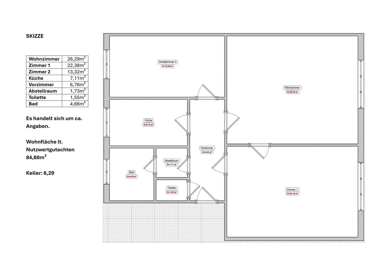
Diese attraktive Wohnung in der 5. Etage bietet Ihnen auf großzügigen 84,6 m² Wohnfläche viel Platz zum Wohlfühlen und Entspannen. Mit insgesamt 3 Zimmern und separater Küche ist die Wohnung ideal für Paare, kleine Familien oder auch als stilvolle Single-Wohnung mit großzügigem Raumangebot geeignet.
Den Halbstock oberhalb der 5 Etage sowie auch das Kellergeschoß erreicht man bequem mit dem Aufzug. So sind Getränke und der Einkauf schnell in der Wohnung und die Ski oder das Fahrrad schnell im großzügigen Keller verstaut.
Die gepflegte Immobilie besticht durch eine gute Raumaufteilung und...
Herzlich willkommen in Ihrem neuen Zuhause im 10. Wiener Gemeindebezirk!
Diese attraktive Wohnung in der 5. Etage bietet Ihnen auf großzügigen 84,6 m² Wohnfläche viel Platz zum Wohlfühlen und Entspannen. Mit insgesamt 3 Zimmern und separater Küche ist die Wohnung ideal für Paare, kleine Familien oder auch als stilvolle Single-Wohnung mit großzügigem Raumangebot geeignet.
Den Halbstock oberhalb der 5 Etage sowie auch das Kellergeschoß erreicht man bequem mit dem Aufzug. So sind Getränke und der Einkauf schnell in der Wohnung und die Ski oder das Fahrrad schnell im großzügigen Keller verstaut.
Die gepflegte Immobilie besticht durch eine gute Raumaufteilung und zentral begehbare Zimmer. Parkettböden verleihen den Wohnräumen ein behagliches Ambiente. Die zentrale Gas-Zentralheizung sorgt für wohlige Wärme auch an kalten Tagen. Der im Wohnzimmer platzierte Ofen dient nur noch dekorativen Zwecken, wäre aber voraussichtlich auch zu reaktivieren.
Die Einbauküche lädt dazu ein, kulinarische Köstlichkeiten zu zaubern und durch die separate Lage den Gästen den Blick auf Teller und Co zu ersparen .
Das Tageslichtbad mit Fenster in den weitläufigen Innenhof bietet Ihnen täglich einen hellen und freundlichen Ort der Erholung.
Ein weiterer Pluspunkt sind die hervorragenden Verkehrsanbindungen: Bus, U-Bahn und Straßenbahn befinden sich in unmittelbarer Nähe, sodass Sie schnell und unkompliziert in ganz Wien unterwegs sind. Auch der Bahnhof und der Autobahnanschluss sind gut erreichbar, was die Mobilität zusätzlich erhöht. Die U-Bahn erreichen sie in 3 Gehminuten!
Nutzen Sie die derzeit noch gültige Gebührenbefreiung bei Hauptwohnsitzbegründung und sparen Sie sich die Eintragungsgebühren sowie die Pfandrechtseintragung bei Finanzierung.
Der Kaufpreis von 297.000,00 € bietet Ihnen eine hervorragende Gelegenheit, in eine gut gelegene und gepflegte Wohnung in einem dynamischen und lebendigen Stadtteil Wiens zu investieren. Lassen Sie sich diese Chance nicht entgehen und vereinbaren Sie noch heute einen Besichtigungstermin. Ihr neues Zuhause in 1100 Wien wartet auf Sie!
Highlights
- Personenlift vorhanden
- Zentral begehbare Zimmer
- 2 Schlafzimmer
- Separate Küche
- Querlüften möglich (1 Seite Innenhof, eine Seite Straßenseitig)
- Große Distanzflächen zu den Nachbarhäusern
- Tageslichtbad
- Bad und Wc getrennt
- Großes Kellerabteil von Rd. 6,3m²
- Top Verkehrsanbindung
- FÜR INVESTOREN: Freier Mietzins!
Mehr Fotos finden Sie im Expose, einfach anfragen wir senden Ihnen umgehend alle Informationen.
Der Vermittler ist als Doppelmakler tätig.
Infrastruktur / Entfernungen
Gesundheit
Arzt <500m
Apotheke <500m
Klinik <1.000m
Krankenhaus <2.500m
Kinder & Schulen
Schule <500m
Kindergarten <500m
Universität <1.000m
Höhere Schule <3.000m
Nahversorgung
Supermarkt <500m
Bäckerei <500m
Einkaufszentrum <1.500m
Sonstige
Geldautomat <500m
Bank <500m
Post <500m
Polizei <1.000m
Verkehr
Bus <500m
U-Bahn <500m
Straßenbahn <500m
Bahnhof <500m
Autobahnanschluss <1.000m
Angaben Entfernung Luftlinie / Quelle: OpenStreetMap
Objektdaten
Ausstattung
- Teilmöbliert
- Bad mit Dusche
- Bad mit Fenster
- Einbauküche
- Fliesenboden
- Parkettboden
- Fertigparkettboden
- Zentralheizung
- Befeuerung mit Gas
- Personen Fahrstuhl
- Massiv Bauweise
Zustand
- Zustand
- GEPFLEGT
- Baujahr
- 1958
- Alter
- NEUBAU
- HWB
- 176 kWh/m² pro Jahr
- Klasse HWB
- E
- fGEE
- 3.39
- Klasse fGEE
- F
Flächen
- Anzahl der Zimmer
- 3
- Anzahl der Badezimmer
- 1
- Anzahl der sep. WCs
- 1
- Wohnfläche
- 85m²
- Kellerfläche
- 6m²
Kosten
- Kaufpreis Brutto
- € 297.000,00
- Betriebskosten
- € 195,98
- Sonstige Kosten
- € 212,76
Verwaltung
- Verfügbar ab
- sofort
Wohnungen zum Kaufen in Österreich
- Bezirk Gemeindebezirk Favoriten
- Bezirk Gemeindebezirk Favoriten
- Bezirk Gemeindebezirk Favoriten
- Bezirk Gemeindebezirk Simmering
- Bezirk Gemeindebezirk Simmering
- Bezirk Gemeindebezirk Simmering
- Bezirk Gemeindebezirk Margareten
- Bezirk Gemeindebezirk Margareten
- Bezirk Gemeindebezirk Margareten
- Bezirk Gemeindebezirk Wieden
Wohnungen zum Kaufen in Österreich
Andere Besucher suchen nach...
- Immobilien kaufen in 2601 Sollenau
- Immobilien in 4951 Polling im Innkreis, Oberösterreich
- Immobilien in 4742 Pram, Oberösterreich kaufen oder mieten
- Häuser kaufen in 2340 Mödling, Niederösterreich
- Häuser kaufen in 9421 Gemmersdorf, Kärnten
- Wohnungen / Eigentumswohnungen kaufen in 9431 St. Stefan, Kärnten
- Häuser kaufen in Bruck an der Leitha, Niederösterreich
- Immobilien mieten in Krems an der Donau, Niederösterreich
- Häuser zum Kaufen im Bezirk St. Pölten Land, Niederösterreich
- Büro / Praxen mieten in Rohrbach, Oberösterreich