3-ZIMMER-GARTENWOHNUNG IN PENZING – MODERNER WOHNKOMFORT MIT GALERIE
Beschreibung
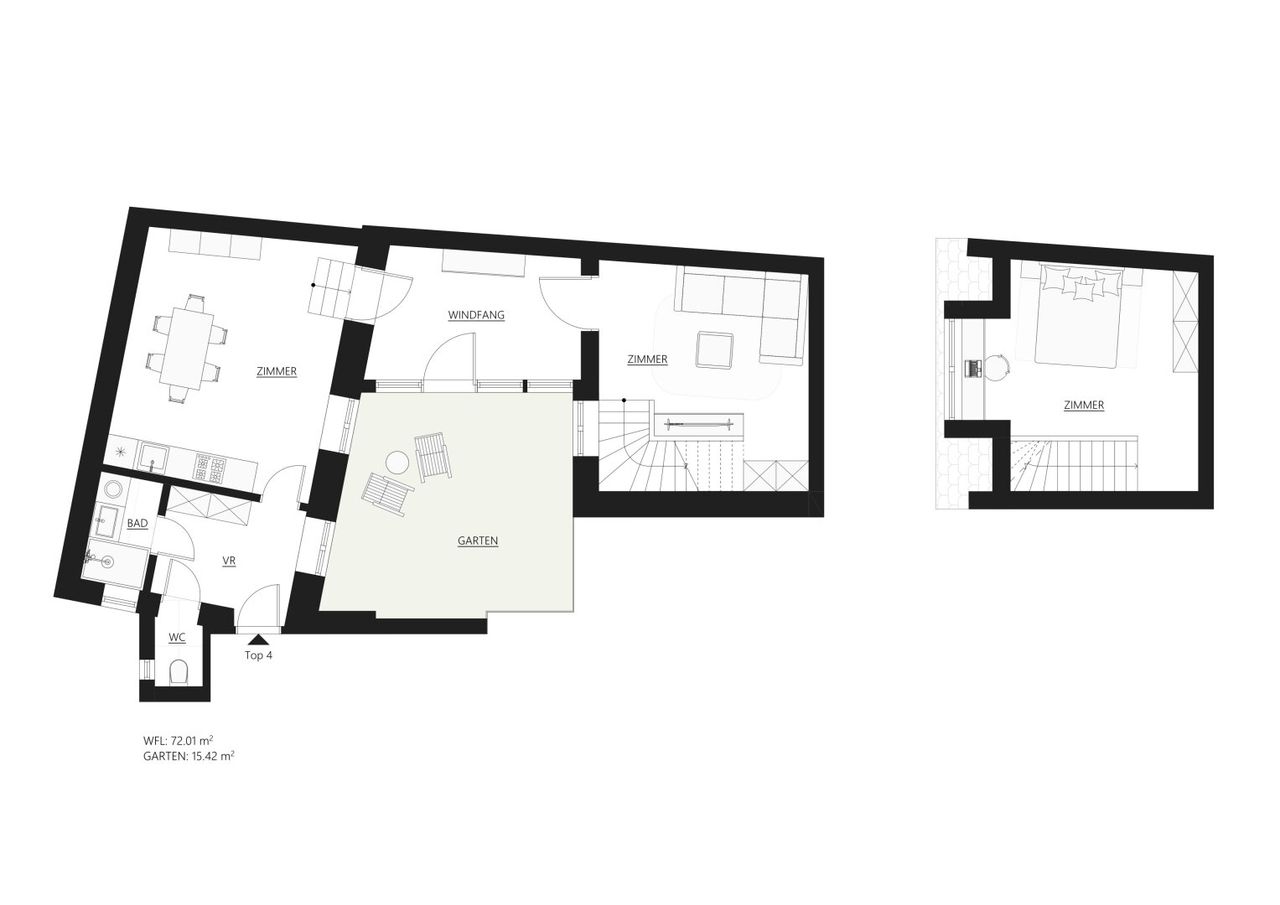
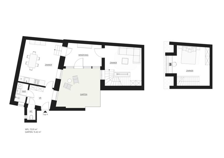
Beschreibung: Diese charmante 3-Zimmer-Gartenwohnung befindet sich in einem klassischen Altbau entlang der Linzer Straße im gefragten 14. Wiener Gemeindebezirk Penzing. Die Wohnung wurde modern ausgestattet und bietet ein stilvolles Wohnambiente mit zeitgemäßem Komfort.
Die Wohnküche bildet den zentralen Aufenthaltsbereich der Wohnung. Der ca.15 m² große Garten im ruhigen Innenhof bietet einen wertvollen privaten Außenraum, ideal für entspannte Stunden oder individuelle Gestaltungsmöglichkeiten. Das Schlafzimmer dient als ruhiger Rückzugsort, während die offene Galerieebene im Obergeschoss – aktuell ebenfalls als Schlafzimmer genutzt – vielseitige Möglichkeiten eröffnet, etwa als Arbeitsbereich, Gästezone oder Ankleide.
Stilvolle Parkett- und Fliesenböden, moderne Fenster mit Mehrfachverglasung, Fußbodenheizung sowie die...
Beschreibung:
Diese charmante 3-Zimmer-Gartenwohnung befindet sich in einem klassischen Altbau entlang der Linzer Straße im gefragten 14. Wiener Gemeindebezirk Penzing. Die Wohnung wurde modern ausgestattet und bietet ein stilvolles Wohnambiente mit zeitgemäßem Komfort.
Die Wohnküche bildet den zentralen Aufenthaltsbereich der Wohnung. Der ca.15 m² große Garten im ruhigen Innenhof bietet einen wertvollen privaten Außenraum, ideal für entspannte Stunden oder individuelle Gestaltungsmöglichkeiten.
Das Schlafzimmer dient als ruhiger Rückzugsort, während die offene Galerieebene im Obergeschoss – aktuell ebenfalls als Schlafzimmer genutzt – vielseitige Möglichkeiten eröffnet, etwa als Arbeitsbereich, Gästezone oder Ankleide.
Stilvolle Parkett- und Fliesenböden, moderne Fenster mit Mehrfachverglasung, Fußbodenheizung sowie die offene Küche schaffen ein harmonisches Wohngefühl und verbinden klassischen Altbaucharakter mit moderner Wohnqualität.
Die Lage überzeugt durch perfekte Infrastruktur: Straßenbahn vor der Tür, U-Bahn und Bahnhof in wenigen Gehminuten erreichbar, sämtliche Nahversorger im direkten Umfeld. Ein modernes, ruhiges und alltagstaugliches Wohngefühl im Herzen von Penzing.
Eckdaten auf einen Blick:
Wohnfläche: ca. 72,01 m²
Garten: ca. 15,42 m²
Zimmer: 3
Bad mit Dusche
WC separat
Fußbodenheizung
Mobiliar: optional erwerbbar
Kosten:
Kaufpreis: € 299.000,00
Provision: 3 % des Kaufpreises zzgl. 20 % USt.
Kontakt:
Für weitere Informationen oder eine Besichtigung steht Ihnen Herr Bence Bueer gerne zur Verfügung:
- Telefon: 0699 190 823 56
- E-Mail: bence.bueer@wisionhome.at
Weitere Objekte finden Sie unter: www.wisionhome.at
Infrastruktur / Entfernungen
Gesundheit
Arzt <500m
Apotheke <500m
Klinik <1.500m
Krankenhaus <1.000m
Kinder & Schulen
Schule <500m
Kindergarten <500m
Universität <2.000m
Höhere Schule <3.000m
Nahversorgung
Supermarkt <500m
Bäckerei <500m
Einkaufszentrum <2.500m
Sonstige
Geldautomat <500m
Bank <500m
Post <500m
Polizei <1.500m
Verkehr
Bus <500m
U-Bahn <500m
Straßenbahn <500m
Bahnhof <500m
Autobahnanschluss <5.000m
Angaben Entfernung Luftlinie / Quelle: OpenStreetMap
Objektdaten
Ausstattung
- Vollmöbliert
- Bad mit Dusche
- Offene Küche
- Fliesenboden
- Parkettboden
- Fußbodenheizung
- Befeuerung mit Gas
- Personen Fahrstuhl
Zustand
- Baujahr
- 1900
- Alter
- ALTBAU
- HWB
- 150.9 kWh/m² pro Jahr
- Klasse HWB
- E
- fGEE
- 1.83
- Klasse fGEE
- D
Flächen
- Anzahl der Zimmer
- 3
- Anzahl der Badezimmer
- 1
- Anzahl der sep. WCs
- 1
- Wohnfläche
- 72m²
- Gartenfläche
- 15m²
Kosten
- Kaufpreis Brutto
- € 299.000,00
- Betriebskosten
- € 220,28
- Sonstige Kosten
- € 88,40
Wohnungen zum Kaufen in Österreich
- Bezirk Gemeindebezirk Ottakring
- Bezirk Gemeindebezirk Ottakring
- Bezirk Gemeindebezirk Ottakring
- Bezirk Gemeindebezirk Penzing
- Bezirk Gemeindebezirk Penzing
- Bezirk Gemeindebezirk Penzing
- Bezirk Gemeindebezirk Hernals
- Bezirk Gemeindebezirk Hernals
- Bezirk Gemeindebezirk Hernals
- Bezirk Gemeindebezirk Währing
Wohnungen zum Kaufen in Österreich
Wohnungen zum Kaufen in Österreich
Andere Besucher suchen nach...
- Grundstücke kaufen in 3400 Weidlingbach
- Wohnungen kaufen in 4663 Laakirchen
- Häuser in 7471 Rechnitz
- Wohnungen in 2410 Hainburg an der Donau
- Häuser kaufen in 2432 Schwadorf
- Wohnungen kaufen in 3002 Purkersdorf
- Häuser in 3150 Wilhelmsburg
- Wohnungen kaufen in 3470 Engelmannsbrunn
- Grundstücke kaufen im Bezirk Mattersburg
- Grundstücke kaufen im Bezirk Gmunden