Top-gepflegte und ruhige Wohnung in historischem Vorstadthaus
€ 190.000
€ 4.369 / m²
1140 Wien
-
01.05.2026
Beschreibung
Objektbeschreibung Diese ca. 43,49 m² große Eigentumswohnung befindet sich im 2. Liftstock eines spätbiedermeierlichen Vorstadthauses. Das Gebäude besticht durch seinen historischen Charakter, der durch die Lage in einer offiziellen Schutzzone dauerhaft bewahrt wird. Während diverser Erhaltungs- und Erneuerungsmaßnahmen wurden im Innenhof Eigengärten angelegt. Im Zuge einer Generalsanierung wurde ein Lift eingebaut, sowie Wohnungen neu zusammengelegt und adaptiert worden. Diese Wohnung ist die ideale Single- oder Starterimmobilie, eignet sich aber gleichermaßen für ein Paar. Sie bietet ebenfalls als Zweitwohnsitz eine effiziente Raumaufteilung auf ca. 44 m² mit allem was zum Wohnen nötig ist und vereint dabei beste Infrastruktur in Kombination mit...
Objektbeschreibung
Diese ca. 43,49 m² große Eigentumswohnung befindet sich im 2. Liftstock eines spätbiedermeierlichen Vorstadthauses. Das Gebäude besticht durch seinen historischen Charakter, der durch die Lage in einer offiziellen Schutzzone dauerhaft bewahrt wird.
Während diverser Erhaltungs- und Erneuerungsmaßnahmen wurden im Innenhof Eigengärten angelegt. Im Zuge einer Generalsanierung wurde ein Lift eingebaut, sowie Wohnungen neu zusammengelegt und adaptiert worden.
Diese Wohnung ist die ideale Single- oder Starterimmobilie, eignet sich aber gleichermaßen für ein Paar. Sie bietet ebenfalls als Zweitwohnsitz eine effiziente Raumaufteilung auf ca. 44 m² mit allem was zum Wohnen nötig ist und vereint dabei beste Infrastruktur in Kombination mit Ruhe.
Hier ist der Link zur 360 Grad Tour: https://360.remax.at/player/jg2dk/de
Hat das Angebot Ihr Interesse geweckt? Ich freue mich auf eine Anfrage!
Lage & Infrastruktur
Die Lage am westlichen Stadtrand bietet eine exzellente Anbindung, ohne auf Ruhe verzichten zu müssen:
* Für Pendler: Die unmittelbare Nähe zur Westeinfahrt (A1) ermöglicht eine schnelle Anreise aus dem westlichen Umfeld Wiens
* Öffentliche Anbindung: Der Knotenpunkt Wien Hütteldorf ist schnell und zu Fuß erreichbar. Von dort bringen Sie die U4, S-Bahnen und Regionalzüge staufrei direkt in das Wiener Stadtzentrum und das Wiener Umland.
* Nahversorgung: Ein BILLA PLUS, PENNY, PAGRO oder BAUHAUS, sowie Cafés, Restaurants und Bäckereien befinden sich in direkter Umgebung und decken den täglichen Bedarf ab.
* Der nahe gelegene Wienflussweg bietet mit seinen 7 km Länge und der Anknüpfung an wichtige Verkehrsknotenpunkte und Radwege einen ausgezeichneten Ausgangspunkt für sportliche Betätigung oder entspannte Spaziergänge.
* Zum Nikolaitor des Lainzer Tiergarten gelangen Sie bequem in wenigen Gehminuten zu Fuß, wo Ihnen ein großes Areal für sportliche Betätigung oder Entspannung im Grünen zur Verfügung steht.
Hard Facts
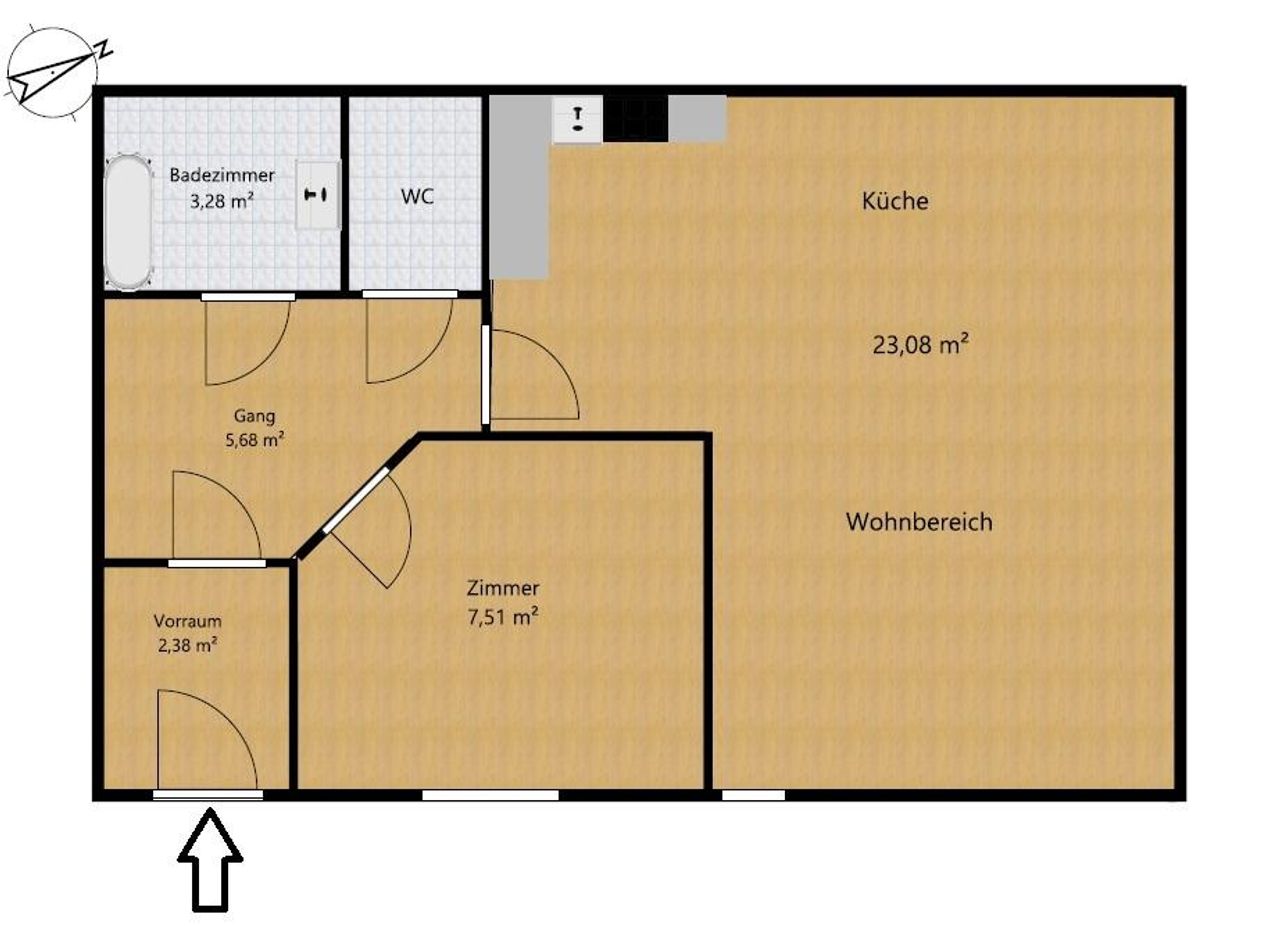
* Wohnfläche: 43,49 m² (2 Zimmer)
* Zustand: Sehr gepflegter Zustand der Wohnung
* Absolute Hofruhelage
* Ideal für Pendler und all jene die eine schnelle Verbindung ins Stadtzentrum suchen
* Naherholungsgebiet in unmittelbarer Nachbarschaft
Alle Angaben beruhen auf Informationen des Eigentümers sowie der Hausverwaltung und sind ohne Gewähr.
Doppelmaklertätigkeit:
Wir informieren Sie darüber, dass wir bei diesem Objekt eine Doppelmaklertätigkeit ausüben (§ 5 Abs. 3 MaklerG).
Haben Sie schon eine Finanzierung?
Wenn nicht, stellen wir gerne einen Kontakt zu einem Finanzierungsberater her. Wir arbeiten mit den beiden größten Anbietern am Markt zusammen, die durch Ihr breites Portfolio an Partnerbanken oftmals die besten Konditionen für Sie herausholen können!
Nebenkosten:
3,5% Grunderwerbsteuer; 1,1% Grundbucheintrag; ca. 1-3% Notar für Vertragserrichtung; 3% Vermittlungsprovision zzgl. USt.,
ggf. Finanzierungskosten und Gebühren der Bank oder des Kreditinstitutes.
Der Vermittler ist als Doppelmakler tätig.
Diese ca. 43,49 m² große Eigentumswohnung befindet sich im 2. Liftstock eines spätbiedermeierlichen Vorstadthauses. Das Gebäude besticht durch seinen historischen Charakter, der durch die Lage in einer offiziellen Schutzzone dauerhaft bewahrt wird.
Während diverser Erhaltungs- und Erneuerungsmaßnahmen wurden im Innenhof Eigengärten angelegt. Im Zuge einer Generalsanierung wurde ein Lift eingebaut, sowie Wohnungen neu zusammengelegt und adaptiert worden.
Diese Wohnung ist die ideale Single- oder Starterimmobilie, eignet sich aber gleichermaßen für ein Paar. Sie bietet ebenfalls als Zweitwohnsitz eine effiziente Raumaufteilung auf ca. 44 m² mit allem was zum Wohnen nötig ist und vereint dabei beste Infrastruktur in Kombination mit Ruhe.
Hier ist der Link zur 360 Grad Tour: https://360.remax.at/player/jg2dk/de
Hat das Angebot Ihr Interesse geweckt? Ich freue mich auf eine Anfrage!
Lage & Infrastruktur
Die Lage am westlichen Stadtrand bietet eine exzellente Anbindung, ohne auf Ruhe verzichten zu müssen:
* Für Pendler: Die unmittelbare Nähe zur Westeinfahrt (A1) ermöglicht eine schnelle Anreise aus dem westlichen Umfeld Wiens
* Öffentliche Anbindung: Der Knotenpunkt Wien Hütteldorf ist schnell und zu Fuß erreichbar. Von dort bringen Sie die U4, S-Bahnen und Regionalzüge staufrei direkt in das Wiener Stadtzentrum und das Wiener Umland.
* Nahversorgung: Ein BILLA PLUS, PENNY, PAGRO oder BAUHAUS, sowie Cafés, Restaurants und Bäckereien befinden sich in direkter Umgebung und decken den täglichen Bedarf ab.
* Der nahe gelegene Wienflussweg bietet mit seinen 7 km Länge und der Anknüpfung an wichtige Verkehrsknotenpunkte und Radwege einen ausgezeichneten Ausgangspunkt für sportliche Betätigung oder entspannte Spaziergänge.
* Zum Nikolaitor des Lainzer Tiergarten gelangen Sie bequem in wenigen Gehminuten zu Fuß, wo Ihnen ein großes Areal für sportliche Betätigung oder Entspannung im Grünen zur Verfügung steht.
Hard Facts
* Wohnfläche: 43,49 m² (2 Zimmer)
* Zustand: Sehr gepflegter Zustand der Wohnung
* Absolute Hofruhelage
* Ideal für Pendler und all jene die eine schnelle Verbindung ins Stadtzentrum suchen
* Naherholungsgebiet in unmittelbarer Nachbarschaft
Alle Angaben beruhen auf Informationen des Eigentümers sowie der Hausverwaltung und sind ohne Gewähr.
Doppelmaklertätigkeit:
Wir informieren Sie darüber, dass wir bei diesem Objekt eine Doppelmaklertätigkeit ausüben (§ 5 Abs. 3 MaklerG).
Haben Sie schon eine Finanzierung?
Wenn nicht, stellen wir gerne einen Kontakt zu einem Finanzierungsberater her. Wir arbeiten mit den beiden größten Anbietern am Markt zusammen, die durch Ihr breites Portfolio an Partnerbanken oftmals die besten Konditionen für Sie herausholen können!
Nebenkosten:
3,5% Grunderwerbsteuer; 1,1% Grundbucheintrag; ca. 1-3% Notar für Vertragserrichtung; 3% Vermittlungsprovision zzgl. USt.,
ggf. Finanzierungskosten und Gebühren der Bank oder des Kreditinstitutes.
Der Vermittler ist als Doppelmakler tätig.
| Angaben gemäß gesetzlichem Erfordernis: | |||
| Heizwärmebedarf: | 71.2 kWh/(m²a) | ||
| Klasse Heizwärmebedarf: | C | ||
| Faktor Gesamtenergieeffizienz: | 2.19 | ||
| Klasse Faktor Gesamtenergieeffizienz: | D | ||
Objektdaten
Ausstattung
- Etage Heizung
- Befeuerung mit Gas
- Gasetagenheizung
Zustand
- Zustand
- GEPFLEGT
- Baujahr
- 1870
Flächen
- Anzahl der Badezimmer
- 1
- Anzahl der sep. WCs
- 1
- Anzahl der Zimmer
- 2
- Wohnfläche
- 43m²
Kosten
- Kaufpreis
- € 190.000,00
- Nebenkosten
- € 234,48
- Betriebskosten Brutto
- € 134,43
- Sonstige Kosten Brutto
- € 34,38
Verwaltung
- Verfügbar ab
- 01.05.2026
Wohnungen zum Kaufen in Österreich
- Bezirk Gemeindebezirk Ottakring
- Bezirk Gemeindebezirk Ottakring
- Bezirk Gemeindebezirk Ottakring
- Bezirk Gemeindebezirk Penzing
- Bezirk Gemeindebezirk Penzing
- Bezirk Gemeindebezirk Penzing
- Bezirk Gemeindebezirk Hernals
- Bezirk Gemeindebezirk Hernals
- Bezirk Gemeindebezirk Hernals
- Bezirk Gemeindebezirk Währing
Wohnungen zum Kaufen in Österreich
Andere Besucher suchen nach...
- Immobilien kaufen in 2601 Sollenau
- Immobilien in 4951 Polling im Innkreis, Oberösterreich
- Immobilien in 4742 Pram, Oberösterreich kaufen oder mieten
- Häuser kaufen in 2340 Mödling, Niederösterreich
- Häuser kaufen in 9421 Gemmersdorf, Kärnten
- Wohnungen / Eigentumswohnungen kaufen in 9431 St. Stefan, Kärnten
- Häuser kaufen in Bruck an der Leitha, Niederösterreich
- Immobilien mieten in Krems an der Donau, Niederösterreich
- Häuser zum Kaufen im Bezirk St. Pölten Land, Niederösterreich
- Büro / Praxen mieten in Rohrbach, Oberösterreich