Moderne 2-Zimmer-Wohnung mit Loggia in 1160 Wien
-
Sofort
Beschreibung
Eigentumswohnungen in 1160 Wien – Haymerlegasse 5 & Hyrtlgasse 4
In einer gepflegten Wohnanlage aus 2008/2009, gelegen in einer ruhigen Seitengasse nahe der Gablenzgasse, stehen mehrere attraktive Neubauwohnungen zum Kauf. Die Anlage besteht aus zwei Stiegen, die über einen gemeinsamen Innenhof miteinander verbunden sind – ideal für alle, die Wert auf ein angenehmes Wohnumfeld legen.
Die Lage bietet eine ausgewogene Mischung aus urbanem Leben und erholsamen Rückzugsmöglichkeiten. Der beliebte 7. Bezirk und das Stadtzentrum sind rasch erreichbar, während Wilhelminenberg, Steinhofgründe und weitere Grünbereiche in der Nähe zu Spaziergängen und Freizeitaktivitäten einladen.
Die U3-Station „Burggasse/Stadthalle“ ist in rund 10 Minuten zu...
Eigentumswohnungen in 1160 Wien – Haymerlegasse 5 & Hyrtlgasse 4
In einer gepflegten Wohnanlage aus 2008/2009, gelegen in einer ruhigen Seitengasse nahe der Gablenzgasse, stehen mehrere attraktive Neubauwohnungen zum Kauf. Die Anlage besteht aus zwei Stiegen, die über einen gemeinsamen Innenhof miteinander verbunden sind – ideal für alle, die Wert auf ein angenehmes Wohnumfeld legen.
Die Lage bietet eine ausgewogene Mischung aus urbanem Leben und erholsamen Rückzugsmöglichkeiten. Der beliebte 7. Bezirk und das Stadtzentrum sind rasch erreichbar, während Wilhelminenberg, Steinhofgründe und weitere Grünbereiche in der Nähe zu Spaziergängen und Freizeitaktivitäten einladen.
Die U3-Station „Burggasse/Stadthalle“ ist in rund 10 Minuten zu Fuß erreichbar und sorgt für eine bequeme Anbindung in viele Teile Wiens.
Ausstattung
Moderne, komplett ausgestattete Küchen
Zu jeder Wohnung ein separates Kellerabteil
Tiefgarage mit Hebebühnenstellplätzen
Personenlift pro Stiege
Abstellräume für Kinderwägen und Fahrräder im Keller
Praktische Paket- und Postfächer im Eingangsbereich
Verkehrsanbindung
U-Bahn: U3 & U6
Straßenbahn: 9 und 46
Bus: 10A und 48A
Durch diese Kombination ist eine schnelle und unkomplizierte Mobilität innerhalb der Stadt gewährleistet.
Nahversorgung & Umgebung
Alles, was man im Alltag braucht, findet sich in unmittelbarer Nähe:
Lugner City mit Shopping, Gastronomie und Freizeitangeboten
Supermärkte wie Billa, Hofer und Spar in Gehweite
Brunnenmarkt und Yppenplatz – vielfältiges kulinarisches Angebot und lebendiges Marktgeschehen
Darüber hinaus stehen Schulen, Kindergärten, Apotheken und diverse ärztliche Einrichtungen in der Umgebung zur Verfügung.
Kaufpreis Tiefgaragenstellplatz: EUR 7.000,-
Weitere Informationen finden Sie in unserer Preisliste.
Noch nichts gefunden? Wir informieren Sie über geeignete Immobilienangebote noch vor allen anderen.
Legen Sie jetzt Ihren individuellen Suchagenten unter folgendem Link an. Wir schicken Ihnen passende Immobilien exklusiv vorab zu.
Suchagent anlegen - https://fabian-knauss.service.immo/registrieren/de
Wir weisen darauf hin, dass zwischen dem Vermittler und dem zu vermittelnden Dritten ein familiäres oder wirtschaftliches Naheverhältnis besteht.
Der Vermittler ist als Doppelmakler tätig.
Infrastruktur / Entfernungen
Gesundheit
Arzt <500m
Apotheke <500m
Klinik <1.000m
Krankenhaus <2.000m
Kinder & Schulen
Schule <500m
Kindergarten <500m
Universität <1.000m
Höhere Schule <1.000m
Nahversorgung
Supermarkt <500m
Bäckerei <500m
Einkaufszentrum <1.000m
Sonstige
Geldautomat <500m
Bank <1.000m
Post <1.000m
Polizei <1.000m
Verkehr
Bus <500m
U-Bahn <1.000m
Straßenbahn <500m
Bahnhof <1.000m
Autobahnanschluss <5.000m
Angaben Entfernung Luftlinie / Quelle: OpenStreetMap
Objektdaten
Ausstattung
- Barrierefrei
- Einbauküche
- Zentralheizung
- Befeuerung mit Gas
- Personen Fahrstuhl
Dokumente / Links
Zustand
- Baujahr
- 2008
- Alter
- NEUBAU
- HWB
- 53.6 kWh/m² pro Jahr
- Klasse HWB
- C
- fGEE
- 0.88
- Klasse fGEE
- B
Flächen
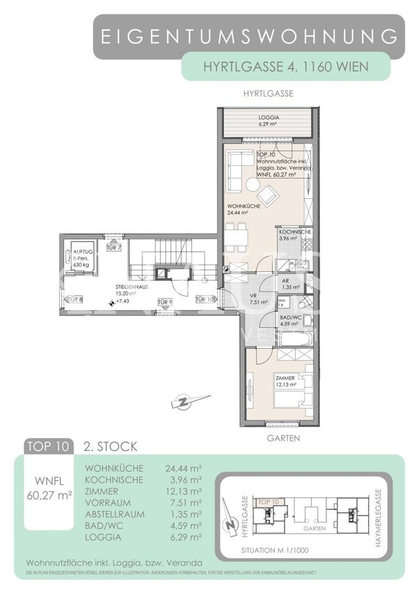
- Anzahl der Zimmer
- 2
- Anzahl der Badezimmer
- 1
- Anzahl der sep. WCs
- 1
- Anzahl der Logia
- 1
- Wohnfläche
- 60m²
Kosten
- Kaufpreis Brutto
- € 355.000,00
- Betriebskosten
- € 132,91
- Sonstige Kosten
- € 63,89
Verwaltung
- Verfügbar ab
- Sofort
Wohnungen zum Kaufen in Österreich
- Bezirk Gemeindebezirk Ottakring
- Bezirk Gemeindebezirk Ottakring
- Bezirk Gemeindebezirk Ottakring
- Bezirk Gemeindebezirk Hernals
- Bezirk Gemeindebezirk Hernals
- Bezirk Gemeindebezirk Hernals
- Bezirk Gemeindebezirk Penzing
- Bezirk Gemeindebezirk Penzing
- Bezirk Gemeindebezirk Penzing
- Bezirk Gemeindebezirk Währing
Wohnungen zum Kaufen in Österreich
Wohnungen zum Kaufen in Österreich
Andere Besucher suchen nach...
- Grundstücke kaufen in 3400 Weidlingbach
- Wohnungen kaufen in 4663 Laakirchen
- Häuser in 7471 Rechnitz
- Wohnungen in 2410 Hainburg an der Donau
- Häuser kaufen in 2432 Schwadorf
- Wohnungen kaufen in 3002 Purkersdorf
- Häuser in 3150 Wilhelmsburg
- Wohnungen kaufen in 3470 Engelmannsbrunn
- Grundstücke kaufen im Bezirk Mattersburg
- Grundstücke kaufen im Bezirk Gmunden