HOFSEITIGE 2 ZIMMER WOHNUNG IN TOP LAGE - UNBEFRISTET VERMIETET
Beschreibung
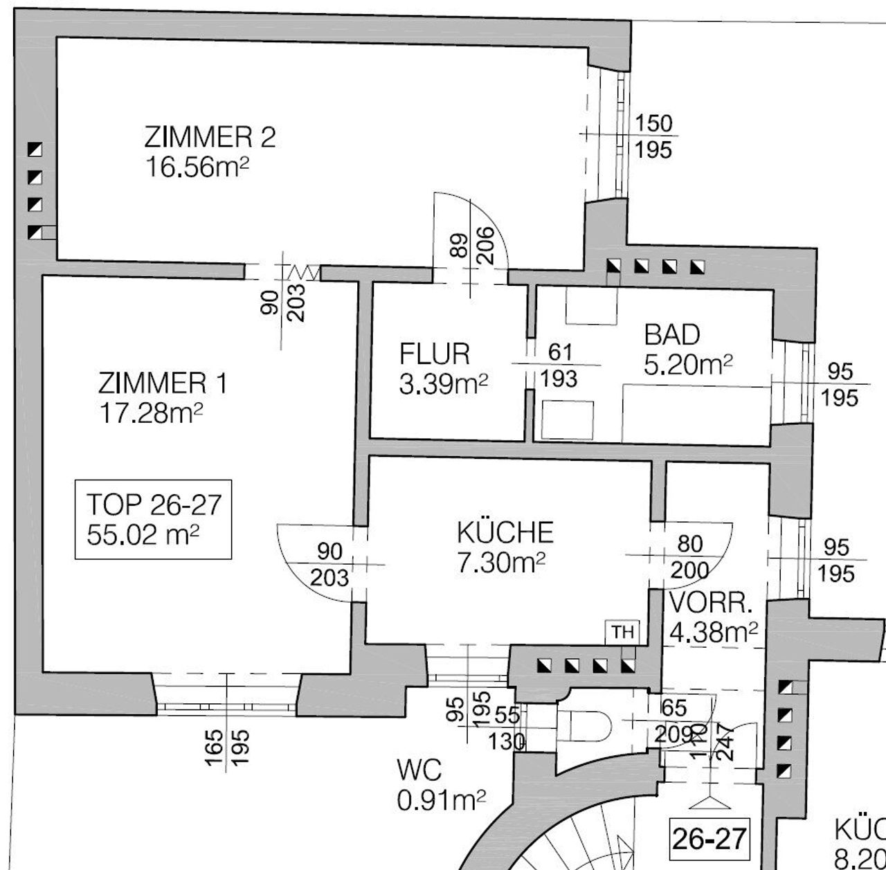
Zum Verkauf gelangt eine unbefristet vermietete 2-Zimmer-Wohnung in zentraler Lage des 16. Bezirks. Die Einheit befindet sich im 3.OG eines gepflegten Wohnhauses und überzeugt sowohl als solide Kapitalanlage mit stabilem Ertrag als auch durch ihr Potenzial zur zukünftigen Wertsteigerung. Die Wohnung präsentiert sich in gepflegtem Zustand – eine optimale Basis für langfristig zufriedene Mieter und nachhaltige Werterhaltung. Besonders hervorzuheben ist das Potenzial zur Errichtung eines Balkons mit rund 5,5 m². Eine behördliche Bewilligung liegt derzeit noch nicht vor, jedoch wurde laut Wohnungseigentumsvertrag bereits das Einverständnis sämtlicher Miteigentümer erteilt – ein wichtiger Vorteil, der die Realisierung eines Balkons erheblich erleichtert. Dieses...
Zum Verkauf gelangt eine unbefristet vermietete 2-Zimmer-Wohnung in zentraler Lage des 16. Bezirks. Die Einheit befindet sich im 3.OG eines gepflegten Wohnhauses und überzeugt sowohl als solide Kapitalanlage mit stabilem Ertrag als auch durch ihr Potenzial zur zukünftigen Wertsteigerung.
Die Wohnung präsentiert sich in gepflegtem Zustand – eine optimale Basis für langfristig zufriedene Mieter und nachhaltige Werterhaltung. Besonders hervorzuheben ist das Potenzial zur Errichtung eines Balkons mit rund 5,5 m². Eine behördliche Bewilligung liegt derzeit noch nicht vor, jedoch wurde laut Wohnungseigentumsvertrag bereits das Einverständnis sämtlicher Miteigentümer erteilt – ein wichtiger Vorteil, der die Realisierung eines Balkons erheblich erleichtert. Dieses Ausbaupotenzial bietet zusätzliches Wertsteigerungspotenzial und macht das Objekt langfristig noch attraktiver.
Eckdaten im Überblick:
WNFL: ca. 56 m²
Zimmer: 2
WC: 1
Bad: 1
Beschreibung:
- separate Einbauküche mit Fenster
- Badezimmer mit Badewanne und Fenster
- lichtdurchflutetes Wohn-Esszimmer
- Schlafzimmer
Ausstattung:
- Parkettböden
- Fliesen in den Nassräumen
- Gegensprechanlange
Kosten:
KP: EUR 122.500 ,--
Monatliche Vorschreibung gesamt: EUR 204,07 inkl. 10% USt.
Provision: 3% vom Kaufpreis zzgl. 20% USt.
Kontakt:
Für Fragen und Besichtigungen kontaktieren Sie bitte Herrn Boris Büer unter 069919473730 oder unter boris.bueer@wisionhome.at
Weitere Objekte auf: www.wisionhome.at
Infrastruktur / Entfernungen
Gesundheit
Arzt <500m
Apotheke <500m
Klinik <500m
Krankenhaus <1.500m
Kinder & Schulen
Schule <500m
Kindergarten <500m
Universität <1.500m
Höhere Schule <1.000m
Nahversorgung
Supermarkt <500m
Bäckerei <500m
Einkaufszentrum <500m
Sonstige
Geldautomat <500m
Bank <500m
Post <500m
Polizei <500m
Verkehr
Bus <500m
U-Bahn <500m
Straßenbahn <500m
Bahnhof <500m
Autobahnanschluss <4.500m
Angaben Entfernung Luftlinie / Quelle: OpenStreetMap
Objektdaten
Ausstattung
- Bad mit Badewanne
- Parkettboden
- Befeuerung mit Gas
- Elektrische Befeuerung
Zustand
- Zustand
- GEPFLEGT
- Baujahr
- 1905
- Alter
- ALTBAU
- HWB
- 152.4 kWh/m² pro Jahr
- Klasse HWB
- E
- fGEE
- 2.64
- Klasse fGEE
- E
Flächen
- Anzahl der Zimmer
- 2
- Anzahl der Badezimmer
- 1
- Anzahl der sep. WCs
- 1
- Wohnfläche
- 55m²
Kosten
- Kaufpreis Brutto
- € 122.500,00
- Betriebskosten
- € 132,04
- Sonstige Kosten
- € 58,83
Wohnungen zum Kaufen in Österreich
- Bezirk Gemeindebezirk Ottakring
- Bezirk Gemeindebezirk Ottakring
- Bezirk Gemeindebezirk Ottakring
- Bezirk Gemeindebezirk Hernals
- Bezirk Gemeindebezirk Hernals
- Bezirk Gemeindebezirk Hernals
- Bezirk Gemeindebezirk Penzing
- Bezirk Gemeindebezirk Penzing
- Bezirk Gemeindebezirk Penzing
- Bezirk Gemeindebezirk Währing
Wohnungen zum Kaufen in Österreich
Wohnungen zum Kaufen in Österreich
Andere Besucher suchen nach...
- Grundstücke kaufen in 3400 Weidlingbach
- Wohnungen kaufen in 4663 Laakirchen
- Häuser in 7471 Rechnitz
- Wohnungen in 2410 Hainburg an der Donau
- Häuser kaufen in 2432 Schwadorf
- Wohnungen kaufen in 3002 Purkersdorf
- Häuser in 3150 Wilhelmsburg
- Wohnungen kaufen in 3470 Engelmannsbrunn
- Grundstücke kaufen im Bezirk Mattersburg
- Grundstücke kaufen im Bezirk Gmunden