Dachterrasse Maisonette Grünlage Dornbach | STADTleben
Beschreibung
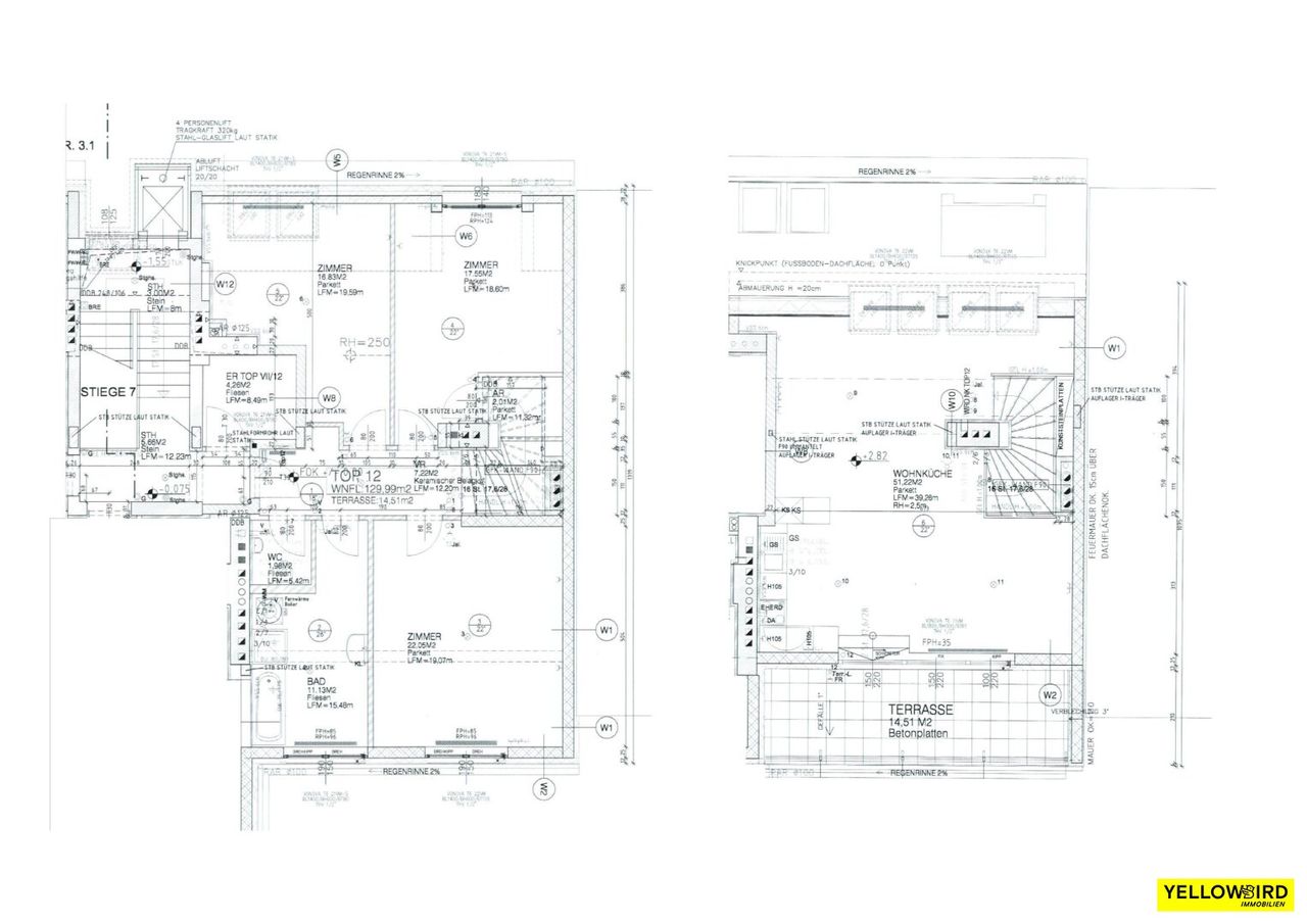
Maisonettewohnung | Obergeschoss Wohnküche und Terrasse | Untergeschoss 3 Zimmer, Badezimmer und separater Toilette mit sehr guter Raumaufteilung und Lichtdurchflutet.
Die Wohnung ist hochwertig ausgestattet mit Holz-Alu-Fenstern und Sicherheits-Wohnungseingangstür, die Böden aus Parkett in Wohn- und Schlafräumen sowie Fliesen in Bad und WC.
Für angenehmes Raumklima sorgt eine Fernwärmezentralheizung mit dezentraler Warmwasseraufbereitung und die Verbrauchsmessung erfolgt mittels Durchfluss - Wärmemengenzähler. Anschlüsse für TV, Telefon und elektrische Ausstattung sind ausreichend vorhanden. Statt eines Kellers, verfügt die Wohnung über einen gegenüberliegenden Abstellraum. In der Hausanlage stehen ein Fahrrad- und Kinderwagenraum sowie ein Waschraum zur Verfügung.
Der begrünte Innenhof mit Altbaumbestand, Sitzbänken, Wiese...
Maisonettewohnung | Obergeschoss Wohnküche und Terrasse | Untergeschoss 3 Zimmer, Badezimmer und separater Toilette mit sehr guter Raumaufteilung und Lichtdurchflutet.
Die Wohnung ist hochwertig ausgestattet mit Holz-Alu-Fenstern und Sicherheits-Wohnungseingangstür, die Böden aus Parkett in Wohn- und Schlafräumen sowie Fliesen in Bad und WC.
Für angenehmes Raumklima sorgt eine Fernwärmezentralheizung mit dezentraler Warmwasseraufbereitung und die Verbrauchsmessung erfolgt mittels Durchfluss - Wärmemengenzähler. Anschlüsse für TV, Telefon und elektrische Ausstattung sind ausreichend vorhanden. Statt eines Kellers, verfügt die Wohnung über einen gegenüberliegenden Abstellraum.
In der Hausanlage stehen ein Fahrrad- und Kinderwagenraum sowie ein Waschraum zur Verfügung.
Der begrünte Innenhof mit Altbaumbestand, Sitzbänken, Wiese und einem kleinen, hauseigenen Spielplatz schafft eine ruhige Rückzugsoase im urbanen Umfeld.
Die Lage in Dornbach vereint naturnahes Wohnen mit schneller Erreichbarkeit des Stadtzentrums. Die Straßenbahnlinien 43, 2 und 10 sowie die S-Bahn S45 sind fußläufig erreichbar – mit der kommenden U5 wird die Anbindung noch schneller und komfortabler.
Der nahe Wienerwald lädt zu entspannten Spaziergängen, Laufrunden oder Ausflügen ins Grüne ein.
HIGHLIGHTS:
- Orientierung: Ost/West
- Öffentliche Anbindung
- Lebensmittelgeschäfte (Lebensmitteleinkauf) in unmittelbarer Umgebung
- Optimale Infrastruktur – alles für den täglichen Bedarf in unmittelbarer Nähe
- Leben in der LEBENSWERTESTEN Stadt der Welt
INFOS ZUR WOHNUNG:
- STOCKWERK: 1. DG./2. DG.
- BEZIEHBAR: nach Absprache
- WOHNFLÄCHE: 129,99 m²
- ZIMMER: 4
- BADEZIMMER: Waschbecken und Dusche, Badewanne
- TOILETTE: separat
- RAUMHÖHE: bis 2,78 m
- HEIZUNG: Fernwärmezentralheizung mit dezentraler Warmwasserbereitung
- KLIMAANLAGE: möglich
- LÜFTUNG: Bad, WC Raumventilatoren mit elektronischen Nachlaufrelais
- INNENJALOUSIEN: Leichtmetall
- AUSSENJALOUSIN: Dachfenster mit außenliegenden Rollläden (elektrische Bedienung vorbereitet)
- KÜCHE: nach Absprache
KAMIN: möglich (Edelstahlaufsatz montiert)
TERRASSE: Wandleuchte, FR-Unterputzsteckdose, Wasseranschluss im Freien
- LIFT: Personenaufzug
AUSSENANLAGEN: Gemeinschaftsgarten, Altbaumbestand, Sitzplatz
- ALLGEMEINRÄUME: Gemeinschaftsräume, Kinderwagen- Fahrradabstellräume, Waschküche
- VERKEHRSANBINDUNG: diverse öffentliche Verkehrsmittel in 3-4 Gehminuten erreichbar (Straßenbahnen 43, 2, 10) in der Nähe S45; U5 in Bau
- INFRASTRUKTUR: sämtliche Nahversorger schnell zu Fuß erreichbar
- PLAN: derzeit nur eine Skizze vorhanden
- RENDERINGS: KI generierte Bilder dienen zur Veranschaulichung der leeren Wohnung
KOSTEN:
- KAUFPREIS: EUR 899.000, -
- BETRIEBSKOSTEN inkl USt.: EUR 257,38
- Aufzugskostenpauschalrate inkl USt.: EUR 45,76
- Verwaltungskosten inkl. USt.: EUR 54,34
- Reparaturrücklage: EUR 137,79
NEBENKOSTEN WELCHE VOM KÄUFER ZU TRAGEN SIND:
- Provision: 3% d. Kaufpreises zzgl. 20% USt.
- Vertragserrichtung
- Grundbucheintragung: 1,1% des Kaufpreises
- Grunderwerbsteuer: 3,5% des Kaufpreises
Die Wohnung wird in dem Zustand verkauft, indem Sie besichtigt wird.
Haben Sie weitere Fragen oder wünschen eine Besichtigung? - Gleich Kontakt aufnehmen!
In Entsprechung des FAGG (Fern- und Auswärtsgeschäfte-Gesetz) und des VRUG (Verbraucherrechte-Richtlinie-Umsetzungsgesetz) ist es uns leider nur mehr möglich Termine nach Erhalt einer schriftlichen Anfrage mit vollständigen Kontaktangaben (Kontaktformular) zu vereinbaren, dies gilt ebenso für die Herausgabe relevanter Informationen wie z.B. der Lage. Sehr gerne sind wir auf diesem Wege bereit, uns um sämtliche Anliegen rasch und kompetent zu kümmern.
Wir weisen darauf hin, dass zwischen dem Vermittler und dem Auftraggeber ein wirtschaftliches Naheverhältnis besteht. Der Vermittler ist als Doppelmakler tätig.
Homepage: https://yellowbird-immo.at
Infrastruktur / Entfernungen
Gesundheit
Arzt <500m
Apotheke <500m
Klinik <1.500m
Krankenhaus <1.000m
Kinder & Schulen
Schule <500m
Kindergarten <1.000m
Universität <2.000m
Höhere Schule <2.000m
Nahversorgung
Supermarkt <500m
Bäckerei <500m
Einkaufszentrum <1.000m
Sonstige
Geldautomat <1.000m
Bank <1.000m
Post <1.000m
Polizei <1.000m
Verkehr
Bus <500m
U-Bahn <1.000m
Straßenbahn <500m
Bahnhof <500m
Autobahnanschluss <4.500m
Angaben Entfernung Luftlinie / Quelle: OpenStreetMap
Objektdaten
Ausstattung
- Bad mit Dusche
- Bad mit Badewanne
- Bad mit Fenster
- Fliesenboden
- Parkettboden
- Fernwärme Heizung
- Ausrichtung Balkon/Terrasse - Südwest
Zustand
- Zustand
- GEPFLEGT
- Baujahr
- 2005
- Alter
- NEUBAU
- HWB
- 35.7 kWh/m² pro Jahr
- Klasse HWB
- B
- fGEE
- 1.48
- Klasse fGEE
- C
Flächen
- Anzahl der Zimmer
- 4
- Anzahl der Badezimmer
- 1
- Anzahl der sep. WCs
- 1
- Anzahl der Terrassen
- 1
- Wohnfläche
- 130m²
- Nutzfläche
- 130m²
- Gesamtfläche
- 145m²
- Freifläche
- 15m²
- Terrassenfläche
- 1m²
Kosten
- Kaufpreis Brutto
- € 899.000,00
- Betriebskosten
- € 233,98
- Sonstige Kosten
- € 41,60
Wohnungen zum Kaufen in Österreich
- Bezirk Gemeindebezirk Ottakring
- Bezirk Gemeindebezirk Ottakring
- Bezirk Gemeindebezirk Ottakring
- Bezirk Gemeindebezirk Hernals
- Bezirk Gemeindebezirk Hernals
- Bezirk Gemeindebezirk Hernals
- Bezirk Gemeindebezirk Währing
- Bezirk Gemeindebezirk Währing
- Bezirk Gemeindebezirk Währing
- Bezirk Gemeindebezirk Penzing
Wohnungen zum Kaufen in Österreich
Wohnungen zum Kaufen in Österreich
Andere Besucher suchen nach...
- Grundstücke kaufen in 3400 Weidlingbach
- Wohnungen kaufen in 4663 Laakirchen
- Häuser in 7471 Rechnitz
- Wohnungen in 2410 Hainburg an der Donau
- Häuser kaufen in 2432 Schwadorf
- Wohnungen kaufen in 3002 Purkersdorf
- Häuser in 3150 Wilhelmsburg
- Wohnungen kaufen in 3470 Engelmannsbrunn
- Grundstücke kaufen im Bezirk Mattersburg
- Grundstücke kaufen im Bezirk Gmunden