VERKAUFSSTART - EXKLUSIVES WOHNEN MIT WEITBLICK IN TOPLAGE
-
Erstbezug
-
2026
-
1. Quartal 2027
Beschreibung
EXKLUSIVES WOHNEN MIT WEITBLICK UND MEHRWERT
Am Rande von Dornbach, dem exklusiven und charmanten Stadtteil am westlichen Stadtrand von Wien, steht ein einzigartiges Neubauprojekt kurz vor der Fertigstellung. Genießen Sie eine urbane Oase mit perfekter Infrastruktur und Verkehrsanbindung und die Nähe zu den schönsten Grünoasen Wiens mit all seinen Freizeitmöglichkeiten. Die „SANDLEITEN – Signature Homes“ liegen in unmittelbarer Nähe zum wunderschönen Kongresspark und verbinden energieeffiziente Bauweise, modernes Design, exklusive Ausstattung und durchdachte Raumkonzepte mit höchster Wohnqualität zu einem harmonischen Gesamtbild.
WOHNVIELFALT MIT FREIRAUM FÜR JEDES LEBENSKONZEPT
Insgesamt entstehen 29 hochwertige Eigentumswohnungen mit großzügigen Freiflächen von bis zu 80...
EXKLUSIVES WOHNEN MIT WEITBLICK UND MEHRWERT
Am Rande von Dornbach, dem exklusiven und charmanten Stadtteil am westlichen Stadtrand von Wien, steht ein einzigartiges Neubauprojekt kurz vor der Fertigstellung. Genießen Sie eine urbane Oase mit perfekter Infrastruktur und Verkehrsanbindung und die Nähe zu den schönsten Grünoasen Wiens mit all seinen Freizeitmöglichkeiten. Die „SANDLEITEN – Signature Homes“ liegen in unmittelbarer Nähe zum wunderschönen Kongresspark und verbinden energieeffiziente Bauweise, modernes Design, exklusive Ausstattung und durchdachte Raumkonzepte mit höchster Wohnqualität zu einem harmonischen Gesamtbild.
WOHNVIELFALT MIT FREIRAUM FÜR JEDES LEBENSKONZEPT
Insgesamt entstehen 29 hochwertige Eigentumswohnungen mit großzügigen Freiflächen von bis zu 80 m², sowie ein kleines Geschäftslokal. Die den oberen Geschoße begeistern mit einem beeindrucken Fernblick.
Die Bandbreite der Wohnungen reicht von kompakten 2-Zimmerr-Einheiten ab ca. 45 m² bis hin zu großzügigen 5-Zimmer-Familienwohnungen mit bis zu 130 m² Wohnfläche – ein durchdachtes Angebot für Singles, Paare und Familien gleichermaßen.
Jeder Wohnung ist ein eigener Einlagerungsraum zugeordnet. Für zusätzlichen Komfort stehen den Bewohnern ein Fahrradraum, ein Kinderwagenabstellraum sowie ein Kleinkinderspielplatz zur gemeinschaftlichen Nutzung zur Verfügung.
Die Kaufpreise beginnen bei EUR 349.000 für eine 2-Zimmer-Wohnung und reichen bis EUR 1.633.000 für das exklusive Dachgeschoss-Penthouse.
13 Tiefgaragenstellplätze im Haus – mit E-Ladevorbereitung
Bei Bedarf kann ein Pkw-Stellplatz in der hauseigenen Tiefgarage zum Kaufpreis von EUR 45.000 erworben werden.
Insgesamt stehen 13 Stellplätze zur Verfügung. Sämtliche Stellplätze sind bereits für die Installation einer E-Ladestation vorbereitet.
ENERGIEEFFIZIENTE BAUWEISE & HOCHWERTIGE AUSSTATTUNG - DIE FAKTEN ÜBERZEUGEN
- Tiefgarage mit modernen E-Ladestationen für nachhaltige Mobilität
- Fußbodenheizung und Warmwasseraufbereitung mit energieeffizienter Luft-Wasser-Wärmepumpe.
- Photovoltaikanlage, die den allgemeinen Stromverbrauch umweltfreundlich deckt
- Vorbereitung für Klimaanlage, die selbst an heißen Tagen ein angenehmes Raumklima schafft
- Großzügige und bodentiefe Fensterfronten für lichtdurchflutete und einzigartige Räume
- 3-fach verglaste Wärmeschutzfenster mit Aludeckschale in bronze– maximale Energieeffizienz und langlebige Qualität
- Elektrische, außenliegende Raffstores in bronze und solargesteuerte Außenbeschattung bei Dachflächenfenstern
- Sicherheitstüren der Klasse WK III - reduziert Risiko und Versicherungskosten
- Videotürsprechanlage mit App-Steuerung
- exklusive Innentüren – flächenbündig mit Holzzargen - Klimaklasse A, und einer Höhe von 2,20 m
- hochwertiger Mehrschicht Markenparkett „Landhausdiele“ in Eiche
- hochwertige und stilvolle Sanitärausstattung, die sich deutlich vom Standard abhebt
- WC-System von Fa. Tece - d.h. vorbereitet für WC-Dusche als Alternative zu Bidet uvm.
- Terrassengeländer aus Echtglas mit Edelstahlprofilen
- Innenwände mit doppelten Gipskartonplatten für bessere Geräuschdämmung und Stabilität
- Video-Gegensprechanlage
ALLES AUS EINER HAND - FÜR MEHR QUALITÄT, FLEXIBILITÄT UND SICHERHEIT
Dem Bauträger ist es ein Anliegen, sich deutlich von allen anderen Anbietern zu unterscheiden und Ihnen das Beste zu bieten. Hier vereinen sich die höchsten Ansprüche an Qualität, Design und Funktionalität mit nachhaltiger und energieeffizienter Bauweise. Die Referenzprojekte sprechen für sich.
Durch die Integration der Bauleistung in das eigene Unternehmen bestehen ein hohes Eigeninteresse an einer mängelfreien und termingerechten Umsetzung und viele weitere Vorteile für die Kunden:
- Mehrwert durch höhere Ausstattungsqualität zu konkurrenzfähigen Preisen
- Qualitätssicherung durch kontinuierlicher Bauüberwachung
- Mehr Klarheit bei Verantwortlichkeit und Haftung
- Mehr Flexibilität und einen Ansprechpartner bei allfälligen Sonderwünschen (nur noch kurze Zeit möglich!)
- Sichtbare Expertise - Referenzobjekte des Bauträgers ermöglichen auch die Prüfung der Qualität der tatsächlichen Bauausführung bei früheren Projekten
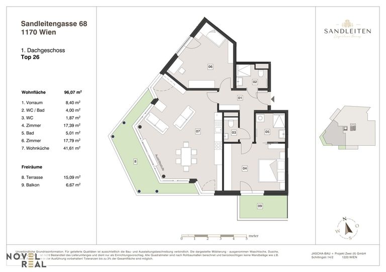
REPRÄSENTATIVE 3-ZIMMER-WOHNUNG MIT BALKON & TERRASSE!
Top 26
Die Dachgeschoss-Wohnung überzeugt durch eine kompakte und zugleich durchdachte Raumaufteilung mit hochwertigen Ausstattungsdetails. Der großzügige Wohnbereich mit integrierter Küche bildet das Herzstück der Einheit und öffnet sich über eine Doppeltür zur Terrasse/Balkon, die den Wohnraum ins Freie erweitern und eine angenehme Verbindung zwischen Innen und Außen schafft.
Zwei separate Schlafzimmer bieten Rückzug und Ruhe. Der Vorraum empfängt mit klarer Struktur und verbindet die einzelnen Bereiche effizient. Ein praktischer Abstellraum ergänzt das Raumangebot und schafft zusätzlichen Stauraum für den Alltag.
Fakten:
- Wohnküche: Offener Wohnbereich -zentraler Aufenthaltsraum
- Zwei Schlafzimmer: Ruhig gelegen, mit Parkettboden
- Badezimmer mit WC
- Separates Bad
- Separates WC
- Vorraum: Klar strukturiert, mit Parkettboden
- Abstellraum: Praktisch für Lagerung und Organisation
- Terrasse und Balkon: Zusätzliche Außenflächen mit hoher Aufenthaltsqualität
- Raumstruktur: Kompakt und effizient, ideal für Singles oder Paare
Aus rechtlichen Gründen und aufgrund der großen Nachfragen bitten wir um Verständnis, dass wir nur Anfragen per Mail beantworten, wenn Sie uns Ihren vollständigen Namen samt Mailadresse und Mobilnummer bekanntgeben.
Alle Angaben basieren alleinig auf Informationen, die uns von unserem Auftraggeber übermittelt wurden. Trotz aller Sorgfalt können wir für die Richtigkeit, Vollständigkeit und Aktualität dieser Angaben keine Gewähr übernehmen. Jegliche Weitergabe der übermittelten Daten an Dritte ist nicht gestattet. Der Maklervertrag kommt durch schriftliche Vereinbarung oder Inanspruchnahme unserer Maklertätigkeit zustande. Der Makler kann als Doppelmakler tätig werden. Sollte das von uns nachgewiesene Objekt bereits bekannt sein, teilen sie uns dies bitte unverzüglich mit.
Die Maklergebühr ist ausschließlich bei Zustandekommen eines gültigen Rechtsgeschäfts fällig und vom Mieter/Vermieter an Novel Real Immobilien GmbH zu zahlen. Es wird ausdrücklich auf die Nebenkostenübersicht hingewiesen. Bei den Visualisierungen und Abbildungen der Immobilie (insbesondere von Inneneinrichtungen) kann es sich um Symbolfotos bzw. fototechnisch optimierte Fotos handeln. Hiermit weisen wir auf das Bestehen eines familiären und/oder wirtschaftlichen Naheverhältnisses zum Vermieter/Verkäufer hin.
Für die Vereinbarung eines Termins kontaktieren Sie Frau Vassilena Valkova telefonisch unter +43 650 58 70011 oder per E-Mail: vv@novel-real.at
Infrastruktur / Entfernungen
Gesundheit
Arzt <500m
Apotheke <500m
Klinik <1.500m
Krankenhaus <1.000m
Kinder & Schulen
Schule <500m
Kindergarten <500m
Universität <2.000m
Höhere Schule <2.000m
Nahversorgung
Supermarkt <500m
Bäckerei <500m
Einkaufszentrum <500m
Sonstige
Geldautomat <500m
Bank <500m
Post <500m
Polizei <1.000m
Verkehr
Bus <500m
U-Bahn <1.000m
Straßenbahn <500m
Bahnhof <1.000m
Autobahnanschluss <5.000m
Angaben Entfernung Luftlinie / Quelle: OpenStreetMap
Objektdaten
Ausstattung
- Klimatisiert
- Kabel/SAT-TV
- Barrierefrei
- Fahrradraum
- Gäste-WC
- Seniorengerecht
- Bad mit Dusche
- Bad mit Badewanne
- Offene Küche
- Fliesenboden
- Parkettboden
- Fußbodenheizung
- Luftwärmepumpe
- Personen Fahrstuhl
- Kamera
- Massiv Bauweise
- Schlüsselfertig mit Keller
Zustand
- Zustand
- ERSTBEZUG
- Baujahr
- 2026
- Alter
- NEUBAU
- HWB
- 24.6 kWh/m² pro Jahr
- Klasse HWB
- A
- fGEE
- 0.72
- Klasse fGEE
- A
Flächen
- Anzahl der Zimmer
- 3
- Anzahl der Badezimmer
- 1
- Anzahl der sep. WCs
- 1
- Anzahl der Balkone
- 1
- Anzahl der Terrassen
- 1
- Wohnfläche
- 96m²
- Nutzfläche
- 96m²
- Terrassenfläche
- 1m²
Kosten
- Kaufpreis Brutto
- € 899.000,00
Verwaltung
- Verfügbar ab
- 1. Quartal 2027
Wohnungen zum Kaufen in Österreich
- Bezirk Gemeindebezirk Ottakring
- Bezirk Gemeindebezirk Ottakring
- Bezirk Gemeindebezirk Ottakring
- Bezirk Gemeindebezirk Hernals
- Bezirk Gemeindebezirk Hernals
- Bezirk Gemeindebezirk Hernals
- Bezirk Gemeindebezirk Währing
- Bezirk Gemeindebezirk Währing
- Bezirk Gemeindebezirk Währing
- Bezirk Gemeindebezirk Penzing
Wohnungen zum Kaufen in Österreich
Wohnungen zum Kaufen in Österreich
Andere Besucher suchen nach...
- Grundstücke kaufen in 3400 Weidlingbach
- Wohnungen kaufen in 4663 Laakirchen
- Häuser in 7471 Rechnitz
- Wohnungen in 2410 Hainburg an der Donau
- Häuser kaufen in 2432 Schwadorf
- Wohnungen kaufen in 3002 Purkersdorf
- Häuser in 3150 Wilhelmsburg
- Wohnungen kaufen in 3470 Engelmannsbrunn
- Grundstücke kaufen im Bezirk Mattersburg
- Grundstücke kaufen im Bezirk Gmunden