360 TOUR // GENERALSANIERTES EINFAMILIENHAUS IN DORNBACH MIT UNVERBAUBAREM WIEN- BLICK
€ 1.850.000
€ 8.409 / m²
1170 Wien,Hernals
Beschreibung
LUXUS-EINFAMILIENHAUS IN DORNBACH Dieses in bester Lage Dornbach gelegene Einfamilienhaus mit einzigartigem unverbaubarem Wienblick und einer Gesamtwohnfläche von ca. 220m² verteilt sich auf 3 Ebenen mit fogender Raumaufteilung: Gartengeschoß ( ca. 66m²) Vorraum (4m²) mit großen Esszimmer und Wohnzimmer (ca. 62m²) mit offener Küche und großer Terrasse (7m²) in den nach Süd-Osten ausgerichteten Garten. Obergeschoß( ca. 55m²) Vorraum, zwei Schlafzimmer (ca.16,28 & 16,21m²), eines mit Ausgang auf die 8m² große Terrasse, begehbare 4m² Garderobe, 10m² großes Badezimmer mit Wanne und Dusche & WC Dachgeschoss ( ca. 44m²) 44m² großes Dachzimmer Untergeschoß ( ca. 55m²) Wohn/Schlafzimmer (20m²) mit anschließendem Duschbad mit...
LUXUS-EINFAMILIENHAUS IN DORNBACH
Dieses in bester Lage Dornbach gelegene Einfamilienhaus mit einzigartigem unverbaubarem Wienblick und einer Gesamtwohnfläche von ca. 220m² verteilt sich auf 3 Ebenen mit fogender
Raumaufteilung:
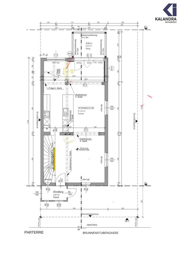
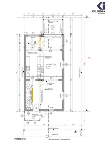
Gartengeschoß ( ca. 66m²)
Vorraum (4m²) mit großen Esszimmer und Wohnzimmer (ca. 62m²) mit offener Küche und großer Terrasse (7m²) in den nach Süd-Osten ausgerichteten Garten.
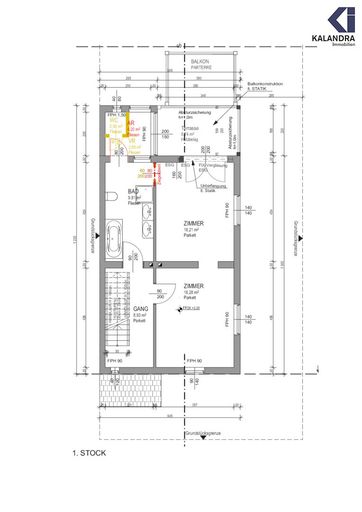
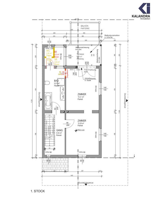
Obergeschoß( ca. 55m²)
Vorraum, zwei Schlafzimmer (ca.16,28 & 16,21m²), eines mit Ausgang auf die 8m² große Terrasse, begehbare 4m² Garderobe, 10m² großes Badezimmer mit Wanne und Dusche & WC
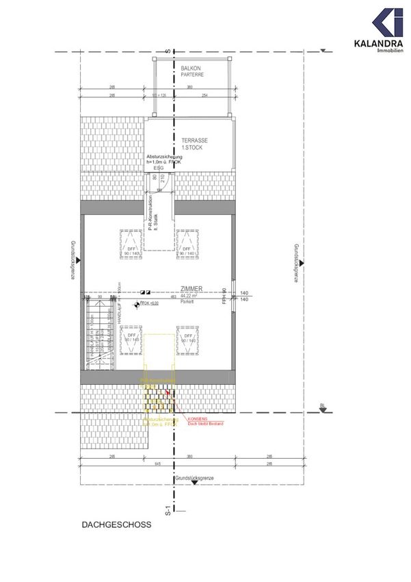
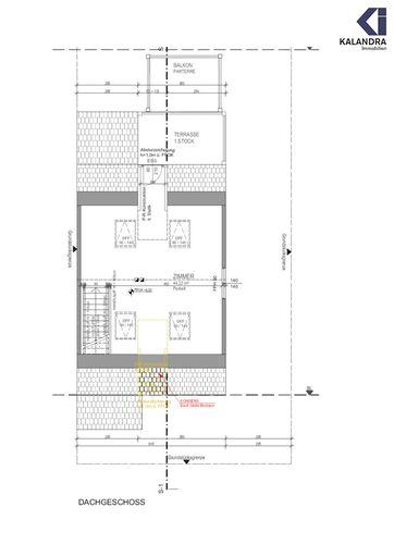
Dachgeschoss ( ca. 44m²)
44m² großes Dachzimmer
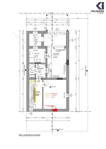
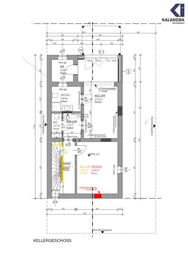
Untergeschoß ( ca. 55m²)
Wohn/Schlafzimmer (20m²) mit anschließendem Duschbad mit WC (5m²), separates Gäste WC, Weinkeller/Speis, sowie großer Wirtschafts-und Technikraum (15m²)
Ausstattung:
• Generalsanierung 2020
• Parkettboden bzw. Fliesen
• Luxus Einbauküche
• Terrasse
• Fussbodenheizung (Gas)
• Kabel-& Satelliten-TV, Internetanschluß
• Wirtschaftsraum mit Waschmaschine und Trockner- Anschluss
• Untergeschoss mit Wohnraum bzw. im Fitnessraum/Spielzimmer
• unverbaubarer Fernblick
• Balkon: 7m²
• Dachterrasse: 8m²
• Garten: ca. 300 m²
360° Tour:
https://360.kalandra.at/view/fullscreen/id/VZ74N
LUXURY SINGLE-FAMILY HOUSE IN DORNBACH
This single-family house, located in a prime location in Dornbach, offers a unique, unobstructed view of Vienna and a total living area of approximately 220m². It is spread over three levels with the following layout:
Garden level (approx. 66m²)
Entrance hall (4m²), large living and dining room (62m²), access to a south east facing terrace overlooking the rear garden
Upper floor (approx. 55m²)
Entrance hall, two bedrooms (approx. 16.28m² & 16.21m²), one with access to the 8m² terrace, walk in wardrobe (4m² ), 10m² bathroom with tub, shower, and toilet
Attic (approx. 44m²)
44m² attic room
Lower floor (approx. 55m²)
Living room/bedroom (20m²) with en-suite bathroom including toilet, seperate guest toilet, wine cellar/pantry as well as large utility/storage room (15m²)
Features:
• Completely renovated in 2020
• Parquet flooring or tiles
• Luxury fitted kitchen
• Terrace
• Underfloor heating (gas)
• Cable and satellite TV, internet connection
• Utility room with washer and dryer connection
• Lower floor with living room or fitness room/playroom
• Unobstructed panoramic view
• Balcony: 7m²
• Roof terrace: 8m²
• Garden: approx. 300m²
360° tour:
https://360.kalandra.at/view/fullscreen/id/VZ74N
Dieses in bester Lage Dornbach gelegene Einfamilienhaus mit einzigartigem unverbaubarem Wienblick und einer Gesamtwohnfläche von ca. 220m² verteilt sich auf 3 Ebenen mit fogender
Raumaufteilung:
Gartengeschoß ( ca. 66m²)
Vorraum (4m²) mit großen Esszimmer und Wohnzimmer (ca. 62m²) mit offener Küche und großer Terrasse (7m²) in den nach Süd-Osten ausgerichteten Garten.
Obergeschoß( ca. 55m²)
Vorraum, zwei Schlafzimmer (ca.16,28 & 16,21m²), eines mit Ausgang auf die 8m² große Terrasse, begehbare 4m² Garderobe, 10m² großes Badezimmer mit Wanne und Dusche & WC
Dachgeschoss ( ca. 44m²)
44m² großes Dachzimmer
Untergeschoß ( ca. 55m²)
Wohn/Schlafzimmer (20m²) mit anschließendem Duschbad mit WC (5m²), separates Gäste WC, Weinkeller/Speis, sowie großer Wirtschafts-und Technikraum (15m²)
Ausstattung:
• Generalsanierung 2020
• Parkettboden bzw. Fliesen
• Luxus Einbauküche
• Terrasse
• Fussbodenheizung (Gas)
• Kabel-& Satelliten-TV, Internetanschluß
• Wirtschaftsraum mit Waschmaschine und Trockner- Anschluss
• Untergeschoss mit Wohnraum bzw. im Fitnessraum/Spielzimmer
• unverbaubarer Fernblick
• Balkon: 7m²
• Dachterrasse: 8m²
• Garten: ca. 300 m²
360° Tour:
https://360.kalandra.at/view/fullscreen/id/VZ74N
LUXURY SINGLE-FAMILY HOUSE IN DORNBACH
This single-family house, located in a prime location in Dornbach, offers a unique, unobstructed view of Vienna and a total living area of approximately 220m². It is spread over three levels with the following layout:
Garden level (approx. 66m²)
Entrance hall (4m²), large living and dining room (62m²), access to a south east facing terrace overlooking the rear garden
Upper floor (approx. 55m²)
Entrance hall, two bedrooms (approx. 16.28m² & 16.21m²), one with access to the 8m² terrace, walk in wardrobe (4m² ), 10m² bathroom with tub, shower, and toilet
Attic (approx. 44m²)
44m² attic room
Lower floor (approx. 55m²)
Living room/bedroom (20m²) with en-suite bathroom including toilet, seperate guest toilet, wine cellar/pantry as well as large utility/storage room (15m²)
Features:
• Completely renovated in 2020
• Parquet flooring or tiles
• Luxury fitted kitchen
• Terrace
• Underfloor heating (gas)
• Cable and satellite TV, internet connection
• Utility room with washer and dryer connection
• Lower floor with living room or fitness room/playroom
• Unobstructed panoramic view
• Balcony: 7m²
• Roof terrace: 8m²
• Garden: approx. 300m²
360° tour:
https://360.kalandra.at/view/fullscreen/id/VZ74N
Infrastruktur / Entfernungen
Gesundheit
Arzt <1.000m
Apotheke <500m
Klinik <2.500m
Krankenhaus <2.000m
Kinder & Schulen
Schule <2.000m
Kindergarten <1.000m
Universität <2.000m
Höhere Schule <3.500m
Nahversorgung
Supermarkt <500m
Bäckerei <1.000m
Einkaufszentrum <2.500m
Sonstige
Geldautomat <2.500m
Bank <2.500m
Post <500m
Polizei <3.000m
Verkehr
Bus <500m
Straßenbahn <1.000m
U-Bahn <3.000m
Bahnhof <3.000m
Autobahnanschluss <6.000m
Angaben Entfernung Luftlinie / Quelle: OpenStreetMap
Objektdaten
Ausstattung
- Etage Heizung
- Befeuerung mit Gas
Dokumente / Links
Zustand
- Zustand
- NEUWERTIG
- Baujahr
- 1930
- Klasse HWB
- C
- fGEE
- 139
Flächen
- Anzahl der Zimmer
- 6
- Anzahl der Badezimmer
- 2
- Anzahl der sep. WCs
- 3
- Anzahl der Balkone
- 1
- Anzahl der Terrassen
- 1
- Wohnfläche
- 220m²
- Grundstücksfläche
- 420m²
- Terrassenfläche
- 1m²
Kosten
- Kaufpreis Brutto
- € 1.850.000,00
Verwaltung
- Verfügbar ab
- nach Vereinbarung
Wohnungen zum Kaufen in Österreich
- Bezirk Gemeindebezirk Ottakring
- Bezirk Gemeindebezirk Ottakring
- Bezirk Gemeindebezirk Ottakring
- Bezirk Gemeindebezirk Hernals
- Bezirk Gemeindebezirk Hernals
- Bezirk Gemeindebezirk Hernals
- Bezirk Gemeindebezirk Währing
- Bezirk Gemeindebezirk Währing
- Bezirk Gemeindebezirk Währing
- Bezirk Gemeindebezirk Penzing
Wohnungen zum Kaufen in Österreich
Wohnungen zum Kaufen in Österreich
Andere Besucher suchen nach...
- Grundstücke kaufen in 3400 Weidlingbach
- Wohnungen kaufen in 4663 Laakirchen
- Häuser in 7471 Rechnitz
- Wohnungen in 2410 Hainburg an der Donau
- Häuser kaufen in 2432 Schwadorf
- Wohnungen kaufen in 3002 Purkersdorf
- Häuser in 3150 Wilhelmsburg
- Wohnungen kaufen in 3470 Engelmannsbrunn
- Grundstücke kaufen im Bezirk Mattersburg
- Grundstücke kaufen im Bezirk Gmunden