(Reserviert) Nähe Jörgerbad: Einzugsbereit samt Möblierung + Perfekte Wohnlage + profitieren durch zukünftige U5 + kompakter Grundriss
-
sofort
Beschreibung
Gerne dürfen wir Ihnen diese nette, kompakte 1 Zimmer Wohnung im ersten Liftstock anbieten. Das Wohn-Schlafzimmer ist Richtung Süden zu einer wenig befahrenen Gasse ausgerichtet. Das Gebäude wurde 2001 im Rahmen des Dachgeschoßausbaus und Lifteinbau umfangreich saniert, die Wohnung selbst wurde seither laufend saniert. Durch den guten Zustand und die enthaltene Möblierung ist ein sofortiger Einzug ab Kauf möglich. Dadurch eignet sich die Wohnung ideal für Studenten, Alleinstehende und auch junge Paare mit wenig Platzbedarf. Lassen Sie sich von dieser Gelegenheit überzeugen.
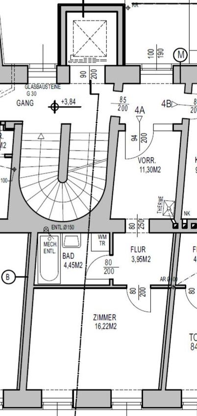
Grundriss/Ausstattung:
+ Vorraum mit Garderobe und Waschmaschine
+ Flur mit Küche und Abstellnische samt Regal
+...
Gerne dürfen wir Ihnen diese nette, kompakte 1 Zimmer Wohnung im ersten Liftstock anbieten. Das Wohn-Schlafzimmer ist Richtung Süden zu einer wenig befahrenen Gasse ausgerichtet. Das Gebäude wurde 2001 im Rahmen des Dachgeschoßausbaus und Lifteinbau umfangreich saniert, die Wohnung selbst wurde seither laufend saniert. Durch den guten Zustand und die enthaltene Möblierung ist ein sofortiger Einzug ab Kauf möglich. Dadurch eignet sich die Wohnung ideal für Studenten, Alleinstehende und auch junge Paare mit wenig Platzbedarf. Lassen Sie sich von dieser Gelegenheit überzeugen.
Grundriss/Ausstattung:
+ Vorraum mit Garderobe und Waschmaschine
+ Flur mit Küche und Abstellnische samt Regal
+ Wohn-Schlafzimmer mit Bett, Tisch samt Stühle, Schrank, Regal und Innenrollos
+ Badezimmer mit Waschbecken, Dusche und WC
+ Allgemeiner Fahrradstellplatz überdacht im Hof
Wir weisen darauf hin, dass zwischen dem Vermittler und dem zu vermittelnden Dritten ein familiäres oder wirtschaftliches Naheverhältnis besteht.
Der Vermittler ist als Doppelmakler tätig.
Objektdaten
Ausstattung
- Vollmöbliert
- Kabel/SAT-TV
- Fahrradraum
- Seniorengerecht
- Bad mit Dusche
- Pantry Küche
- Fliesenboden
- Parkettboden
- Linoleumboden
- Etage Heizung
- Befeuerung mit Gas
- Personen Fahrstuhl
- Massiv Bauweise
Zustand
- Zustand
- GEPFLEGT
- Baujahr
- 1900
- Alter
- ALTBAU
- HWB
- 68.3 kWh/m² pro Jahr
- Klasse HWB
- C
- fGEE
- 1.37
- Klasse fGEE
- C
Flächen
- Anzahl der Zimmer
- 1
- Anzahl der Badezimmer
- 1
- Wohnfläche
- 30m²
Kosten
- Kaufpreis Brutto
- € 157.000,00
- Betriebskosten
- € 146,79
- Sonstige Kosten
- € 33,57
Verwaltung
- Verfügbar ab
- sofort
- Ferienimmobilie
- Ja
Wohnungen zum Kaufen in Österreich
- Bezirk Gemeindebezirk Ottakring
- Bezirk Gemeindebezirk Ottakring
- Bezirk Gemeindebezirk Ottakring
- Bezirk Gemeindebezirk Hernals
- Bezirk Gemeindebezirk Hernals
- Bezirk Gemeindebezirk Hernals
- Bezirk Gemeindebezirk Währing
- Bezirk Gemeindebezirk Währing
- Bezirk Gemeindebezirk Währing
- Bezirk Gemeindebezirk Penzing
Wohnungen zum Kaufen in Österreich
Wohnungen zum Kaufen in Österreich
Andere Besucher suchen nach...
- Grundstücke kaufen in 3400 Weidlingbach
- Wohnungen kaufen in 4663 Laakirchen
- Häuser in 7471 Rechnitz
- Wohnungen in 2410 Hainburg an der Donau
- Häuser kaufen in 2432 Schwadorf
- Wohnungen kaufen in 3002 Purkersdorf
- Häuser in 3150 Wilhelmsburg
- Wohnungen kaufen in 3470 Engelmannsbrunn
- Grundstücke kaufen im Bezirk Mattersburg
- Grundstücke kaufen im Bezirk Gmunden