Exklusive Penthouse-Wohnungen | Terrassen | Dachterrassen | 360° Rundumblick | Toplage 1180 | Nähe Kutschkermarkt
-
Erstbezug
-
2025
-
sofort
Beschreibung
Diese außergewöhnliche Penthouse-Maisonette vereint Großzügigkeit, Privatsphäre und höchste Wohnqualität auf insgesamt ca. 200 m² Wohnfläche und ca. 82 m² Freiflächen. Auf zwei Etagen erstreckt sich ein durchdachtes Raumkonzept mit bis zu fünf Zimmern, mehreren begehbaren Schrankräumen, drei WCs, zwei Badezimmern – und einer Dachterrasse mit spektakulärem Rundumblick über ganz Wien.
Ein echtes Unikat innerhalb des Projekts – für alle, die das Besondere suchen.
RAUMAUFTEILUNG (ca. 200 m² Wohnfläche):
-
Großzügiger Wohn-Essbereich mit direktem Zugang zur hofseitigen Terrasse (ca. 26,8 m²)
-
Masterbedroom mit eigenem Bad und begehbarem Schrankraum
-
Zweites Schlafzimmer mit begehbarem Schrank und eigenem Arbeitszimmer
...
Diese außergewöhnliche Penthouse-Maisonette vereint Großzügigkeit, Privatsphäre und höchste Wohnqualität auf insgesamt ca. 200 m² Wohnfläche und ca. 82 m² Freiflächen. Auf zwei Etagen erstreckt sich ein durchdachtes Raumkonzept mit bis zu fünf Zimmern, mehreren begehbaren Schrankräumen, drei WCs, zwei Badezimmern – und einer Dachterrasse mit spektakulärem Rundumblick über ganz Wien.
Ein echtes Unikat innerhalb des Projekts – für alle, die das Besondere suchen.
RAUMAUFTEILUNG (ca. 200 m² Wohnfläche):
Großzügiger Wohn-Essbereich mit direktem Zugang zur hofseitigen Terrasse (ca. 26,8 m²)
Masterbedroom mit eigenem Bad und begehbarem Schrankraum
Zweites Schlafzimmer mit begehbarem Schrank und eigenem Arbeitszimmer
Drittes Schlafzimmer klassisch nutzbar
Im oberen Bereich zusätzlich ein Raum mit Potenzial für ein viertes Schlafzimmer oder Atelier
Zwei Badezimmer (jeweils mit Badewanne und Dusche)
Drei WCs
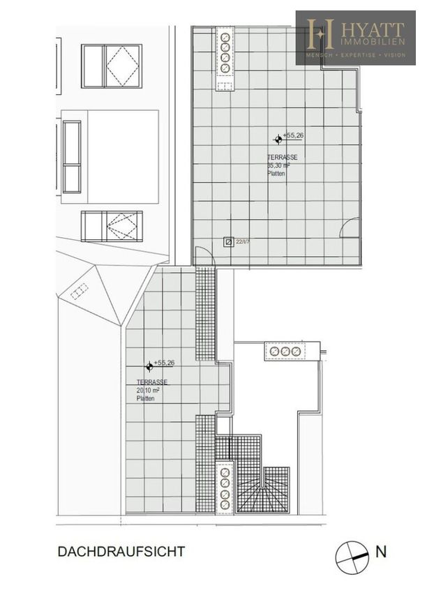
Dachterrasse mit ca. 55,4 m² und beeindruckendem 360-Grad-Blick
2 praktische Einlagerungsräume ca. 23 m²
Gesamtnutzfläche: ca. 282 m² inkl. Freiflächen
Wohnnutzung auf höchstem Niveau – vereint mit urbanem Weitblick
Garagenplatz optional um € 60.000,– verfügbar.
Die Wohnung ist Teil eines exklusiven Dachgeschossprojekts in einem stilvollen Wiener Altbau mit nur sieben Einheiten – gelegen in unmittelbarer Nähe zum Kutschkermarkt, Türkenschanzpark, Schubertpark und Aumannplatz im 18. Bezirk.
Wir weisen darauf hin, dass zwischen dem Vermittler und dem zu vermittelnden Dritten ein familiäres oder wirtschaftliches Naheverhältnis besteht.
Der Vermittler ist als Doppelmakler tätig.
Infrastruktur / Entfernungen
Gesundheit
Arzt <500m
Apotheke <500m
Klinik <500m
Krankenhaus <500m
Kinder & Schulen
Schule <500m
Kindergarten <500m
Universität <500m
Höhere Schule <500m
Nahversorgung
Supermarkt <500m
Bäckerei <500m
Einkaufszentrum <1.500m
Sonstige
Geldautomat <500m
Bank <500m
Post <500m
Polizei <1.000m
Verkehr
Bus <500m
U-Bahn <1.000m
Straßenbahn <500m
Bahnhof <1.000m
Autobahnanschluss <2.500m
Angaben Entfernung Luftlinie / Quelle: OpenStreetMap
Objektdaten
Ausstattung
- WG geeignet
- Klimatisiert
- Rollstuhlgerecht
- Kabel/SAT-TV
- DVBT
- Fahrradraum
- Gäste-WC
- Bad mit Dusche
- Bad mit Badewanne
- Bad mit Fenster
- Fliesenboden
- Parkettboden
- Zentralheizung
- Fußbodenheizung
- Luftwärmepumpe
- Personen Fahrstuhl
- Ausrichtung Balkon/Terrasse - Ost
- Ausrichtung Balkon/Terrasse - Süd
- Ausrichtung Balkon/Terrasse - West
- Ausrichtung Balkon/Terrasse - Nordost
- Flachdach
- Massiv Bauweise
- Schlüsselfertig mit Keller
Dokumente / Links
Zustand
- Zustand
- ERSTBEZUG
- Baujahr
- 2025
- Alter
- ALTBAU
- HWB
- 40 kWh/m² pro Jahr
- Klasse HWB
- B
- fGEE
- 0.5
- Klasse fGEE
- A++
Flächen
- Anzahl der Zimmer
- 4
- Anzahl der Badezimmer
- 2
- Anzahl der sep. WCs
- 3
- Anzahl der Terrassen
- 2
- Wohnfläche
- 200m²
- Nutzfläche
- 282m²
- Gesamtfläche
- 282m²
- Freifläche
- 82m²
- Kellerfläche
- 23m²
- Terrassenfläche
- 2m²
Kosten
- Kaufpreis Brutto
- € 2.035.000,00
- Betriebskosten
- € 348,94
- Sonstige Kosten
- € 251,69
Verwaltung
- Verfügbar ab
- sofort
Wohnungen zum Kaufen in Österreich
- Bezirk Gemeindebezirk Währing
- Bezirk Gemeindebezirk Währing
- Bezirk Gemeindebezirk Währing
- Bezirk Gemeindebezirk Hernals
- Bezirk Gemeindebezirk Hernals
- Bezirk Gemeindebezirk Hernals
- Bezirk Gemeindebezirk Döbling
- Bezirk Gemeindebezirk Döbling
- Bezirk Gemeindebezirk Döbling
- Bezirk Gemeindebezirk Ottakring
Wohnungen zum Kaufen in Österreich
Wohnungen zum Kaufen in Österreich
Andere Besucher suchen nach...
- Grundstücke kaufen in 3400 Weidlingbach
- Wohnungen kaufen in 4663 Laakirchen
- Häuser in 7471 Rechnitz
- Wohnungen in 2410 Hainburg an der Donau
- Häuser kaufen in 2432 Schwadorf
- Wohnungen kaufen in 3002 Purkersdorf
- Häuser in 3150 Wilhelmsburg
- Wohnungen kaufen in 3470 Engelmannsbrunn
- Grundstücke kaufen im Bezirk Mattersburg
- Grundstücke kaufen im Bezirk Gmunden