Unbefristet vermietete 3-Zimmer-Wohnung in Wien-Währing
Beschreibung
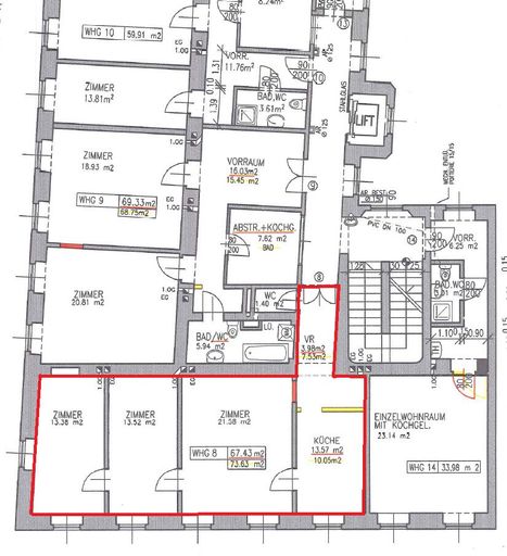
Diese 3-Zimmer-Wohnung im 18. Bezirk ist unbefristet vermietet. Die Nettomiete beträgt ca. 330 Euro. Der Mieter ist ca. 70 Jahre alt.
Die Wohnung verfügt über einen Vorraum, eine Küche, einem WC, ein Wohnzimmer sowie zwei Schlafzimmer. Ein Badezimmer gibt es nicht, eine Duschgelegenheit befindet sich in der Küche. Ein eigenes Kellerabteil ist der Wohnung zugewiesen.
Noch nichts gefunden? Wir informieren Sie über geeignete Immobilienangebote noch vor allen anderen. Legen Sie jetzt Ihren individuellen Suchagenten unter folgendem Link an. Wir schicken Ihnen passende Immobilien exklusiv vorab zu. Suchagent anlegen - https://levanto.service.immo/registrieren/de
Wir weisen darauf hin, dass zwischen dem Vermittler und...
Diese 3-Zimmer-Wohnung im 18. Bezirk ist unbefristet vermietet. Die Nettomiete beträgt ca. 330 Euro. Der Mieter ist ca. 70 Jahre alt.
Die Wohnung verfügt über einen Vorraum, eine Küche, einem WC, ein Wohnzimmer sowie zwei Schlafzimmer. Ein Badezimmer gibt es nicht, eine Duschgelegenheit befindet sich in der Küche. Ein eigenes Kellerabteil ist der Wohnung zugewiesen.
Noch nichts gefunden? Wir informieren Sie über geeignete Immobilienangebote noch vor allen anderen.
Legen Sie jetzt Ihren individuellen Suchagenten unter folgendem Link an. Wir schicken Ihnen passende Immobilien exklusiv vorab zu.
Suchagent anlegen - https://levanto.service.immo/registrieren/de
Wir weisen darauf hin, dass zwischen dem Vermittler und dem zu vermittelnden Dritten ein familiäres oder wirtschaftliches Naheverhältnis besteht.
Infrastruktur / Entfernungen
Gesundheit
Arzt <500m
Apotheke <500m
Klinik <500m
Krankenhaus <1.000m
Kinder & Schulen
Schule <500m
Kindergarten <500m
Universität <1.000m
Höhere Schule <500m
Nahversorgung
Supermarkt <500m
Bäckerei <500m
Einkaufszentrum <1.000m
Sonstige
Geldautomat <500m
Bank <500m
Post <500m
Polizei <500m
Verkehr
Bus <500m
U-Bahn <1.000m
Straßenbahn <500m
Bahnhof <1.000m
Autobahnanschluss <2.500m
Angaben Entfernung Luftlinie / Quelle: OpenStreetMap
Objektdaten
Ausstattung
- Parkettboden
- Etage Heizung
- Befeuerung mit Gas
- Personen Fahrstuhl
Zustand
- Alter
- ALTBAU
- HWB
- 54 kWh/m² pro Jahr
- Klasse HWB
- C
Flächen
- Anzahl der Zimmer
- 3
- Anzahl der sep. WCs
- 1
- Wohnfläche
- 67m²
Kosten
- Kaufpreis Brutto
- € 375.000,00
Wohnungen zum Kaufen in Österreich
- Bezirk Gemeindebezirk Währing
- Bezirk Gemeindebezirk Währing
- Bezirk Gemeindebezirk Währing
- Bezirk Gemeindebezirk Hernals
- Bezirk Gemeindebezirk Hernals
- Bezirk Gemeindebezirk Hernals
- Bezirk Gemeindebezirk Döbling
- Bezirk Gemeindebezirk Döbling
- Bezirk Gemeindebezirk Döbling
- Bezirk Gemeindebezirk Ottakring
Wohnungen zum Kaufen in Österreich
Wohnungen zum Kaufen in Österreich
Andere Besucher suchen nach...
- Grundstücke kaufen in 3400 Weidlingbach
- Wohnungen kaufen in 4663 Laakirchen
- Häuser in 7471 Rechnitz
- Wohnungen in 2410 Hainburg an der Donau
- Häuser kaufen in 2432 Schwadorf
- Wohnungen kaufen in 3002 Purkersdorf
- Häuser in 3150 Wilhelmsburg
- Wohnungen kaufen in 3470 Engelmannsbrunn
- Grundstücke kaufen im Bezirk Mattersburg
- Grundstücke kaufen im Bezirk Gmunden