Großzügige Terrassenwohnung mit Grünblick: 4 Zimmer und Essbereich, sonnig und ruhig, 2 Terrassen, inklusive Stellplatz, Nähe Währingerstraße, Linien 40 +41+ U6!
-
sofort
Beschreibung
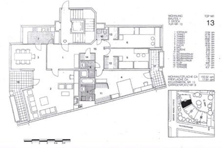
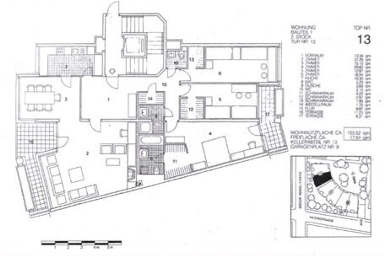
Die ruhige, großzügige Terrassenwohnung liegt im 2. Stock eines gepflegten Hauses aus dem Baujahr 1982 und wirkt aufgrund der Hanglage wie ein 4. Stock.
Von allen Zimmern, der Küche sowie den beiden hübschen Terrassen hat man einen schönen Grünblick. Teilweise Blick in den hauseigenen Garten, der hofseitig und ganz ruhig gelegen ist. Dieser Grünbereich kann von den Bewohnern des Hauses genutzt werden kann.
Die Wohnung verfügt über 4 Zimmer, davon ist eines ein sehr großer Wohnraum, der in einen Essbereich übergeht. Weiters gibt es eine Küche, 2 Badezimmer, 2 WC, 2 begehbare Garderoben und einen Abstellraum. Ein Kellerabteil ist...
Die ruhige, großzügige Terrassenwohnung liegt im 2. Stock eines gepflegten Hauses aus dem Baujahr 1982 und wirkt aufgrund der Hanglage wie ein 4. Stock.
Von allen Zimmern, der Küche sowie den beiden hübschen Terrassen hat man einen schönen Grünblick.
Teilweise Blick in den hauseigenen Garten, der hofseitig und ganz ruhig gelegen ist. Dieser Grünbereich kann von den Bewohnern des Hauses genutzt werden kann.
Die Wohnung verfügt über 4 Zimmer, davon ist eines ein sehr großer Wohnraum, der in einen Essbereich übergeht. Weiters gibt es eine Küche, 2 Badezimmer, 2 WC, 2 begehbare Garderoben und einen Abstellraum.
Ein Kellerabteil ist vorhanden.
Ein Stellplatz im Haus gehört ebenfalls zum Objekt und ist im Kaufpreis inbegriffen.
Die Wohnung ist ruhig gelegen. Sie orientiert sich sowohl zu einer ruhigen Gasse mit vorgelagerten Bäumen als auch zum grünen Innenhof.
Sie ist über einen barrierefreien Zugang und mit Lift zu erreichen.
Alle 4 Zimmer sind getrennt begehbar. Der Essbereich ist offen zum Wohnraum gestaltet und ist auch von der Küche aus erreichbar.
Eine Küchenzeile ist vorhanden.
Ein Badezimmer ist mit Badewanne und WC ausgestattet, im zweiten Badezimmer befindet sich eine Dusche. Ein weiteres WC ist separat vom Vorraum aus begehbar.
Böden: Teppichboden beziehungsweise Fliesen
Heizung: Zentralheizung
Haus:
HWB (kWh/m²a): 103,2, Klasse D
Haus und Anlage sind sehr gepflegt. Den Bewohnern stehen eine Waschküche, ein Aufenthaltsraum und ein Fahrradraum zur Verfügung.
Betriebskosten mit Stellplatz, ohne Heizung und Warmwasser: € 551,12
Heizung und Warmwasser derzeit: € 333,02
Gesamtbetriebskosten inklusive Garagenplatz und Heizung: € 884,14
Die Wohnung befindet sich in einem gepflegten, jedoch etwas abgewohnten Zustand und ist entsprechend herzurichten. Dafür erhält man in herrlicher Grünlage eine großzügige, ruhige und sehr gut angelegte Wohnung mit zwei Terrassen und Stellplatz.
Sehr gute Lage:
Etwa 4 Minuten zur Straßenbahnstation Aumannplatz. Mit den Linien 40 und 41 erreicht man in wenigen Minuten die U6 Währinger Straße.
Mit der Straßenbahn gelangt man auch sehr rasch direkt ins Zentrum von Wien und bis zur Ringstraße (Schottentor und Universität).
Die nahe Währinger Straße bietet zahlreiche Einkaufsmöglichkeiten. Auch der beliebte Kutschkermarkt ist nicht weit entfernt.
Der Sternwartepark und der wunderschöne Türkenschanzpark laden zum Spazieren und Joggen ein.
Die Wohnung ist ideal für Menschen, die ruhiges und grünes Wohnen schätzen und dennoch die Nähe zur Stadt genießen möchten.
Wenn Sie Fragen haben oder wegen eines Besichtigungstermins senden Sie bitte eine Mail-Anfrage oder wenden sich telefonisch an Frau Mag. Uta Ribarits 0699/19460464 oder Herrn Gregor Lesniewski 0699/11306746.
Der Vermittler ist als Doppelmakler tätig.
Objektdaten
Ausstattung
- WG geeignet
- Gartennutzung
- Bad mit Dusche
- Bad mit Badewanne
- Einbauküche
- Fliesenboden
- Teppichboden
- Zentralheizung
- Personen Fahrstuhl
- Ausrichtung Balkon/Terrasse - Nordost
- Ausrichtung Balkon/Terrasse - Südwest
Zustand
- Baujahr
- 1982
- Alter
- NEUBAU
- HWB
- 103.2 kWh/m² pro Jahr
- Klasse HWB
- D
- fGEE
- 1.61
- Klasse fGEE
- C
Flächen
- Anzahl der Zimmer
- 4.5
- Anzahl der Badezimmer
- 2
- Anzahl der sep. WCs
- 2
- Anzahl der Terrassen
- 2
- Stellplätze
- 1
- Wohnfläche
- 156m²
- Nutzfläche
- 173m²
- Terrassenfläche
- 2m²
Kosten
- Kaufpreis Brutto
- € 960.000,00
- Betriebskosten
- € 551,12
Verwaltung
- Verfügbar ab
- sofort
Wohnungen zum Kaufen in Österreich
- Bezirk Gemeindebezirk Währing
- Bezirk Gemeindebezirk Währing
- Bezirk Gemeindebezirk Währing
- Bezirk Gemeindebezirk Hernals
- Bezirk Gemeindebezirk Hernals
- Bezirk Gemeindebezirk Hernals
- Bezirk Gemeindebezirk Döbling
- Bezirk Gemeindebezirk Döbling
- Bezirk Gemeindebezirk Döbling
- Bezirk Gemeindebezirk Ottakring
Wohnungen zum Kaufen in Österreich
Wohnungen zum Kaufen in Österreich
Andere Besucher suchen nach...
- Grundstücke kaufen in 3400 Weidlingbach
- Wohnungen kaufen in 4663 Laakirchen
- Häuser in 7471 Rechnitz
- Wohnungen in 2410 Hainburg an der Donau
- Häuser kaufen in 2432 Schwadorf
- Wohnungen kaufen in 3002 Purkersdorf
- Häuser in 3150 Wilhelmsburg
- Wohnungen kaufen in 3470 Engelmannsbrunn
- Grundstücke kaufen im Bezirk Mattersburg
- Grundstücke kaufen im Bezirk Gmunden